NEW一戸建て八潮3(八潮駅) 3500万円の詳細情報
3500万円
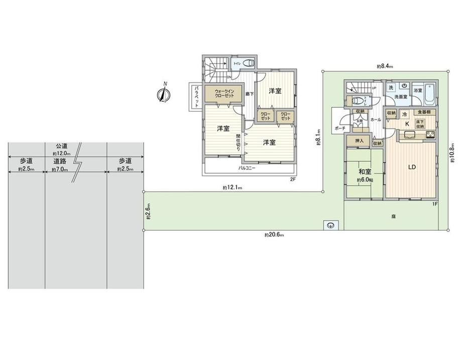
月々のローン返済額を試算■三井のリハウス■全居室2面採光WICや玄関収納有
物件概要
| 物件名 | 八潮3(八潮駅) 3500万円 | ||||
|---|---|---|---|---|---|
| 所在地 | 埼玉県八潮市八潮3 | ||||
| 交通 |
つくばエクスプレス「八潮」歩18分 | ||||
| 建物構造 | 木造2階建 | 最多価格帯 | - | ||
| 販売戸数/総戸数 | 1戸/- | 入居時期 | 相談 | ||
| 駐車場 | - | 地目 | - | ||
| 用途地域 | 1種中高 | 建ぺい率・容積率 | 60%・200% | ||
| 土地権利 | 所有権 | 私道負担・道路 | 無、西12m幅(接道幅2.6m) | ||
| セットバック | - | リフォーム |
2019年4月完了 その他リフォーム:屋根 | ||
| 取引態様 | 仲介 | 施工会社名 | - | ||
| 建築確認番号 | - | ||||
| その他費用 | - | ||||
| 販売スケジュール | - | ||||
| イベント情報 | - | ||||
| その他制限事項 | - | ||||
| 備考 | 担当者:岩井 脩馬、設備:公営水道、本下水、オール電化 | ||||
| 取引条件有効期限 | - | ||||
情報公開日:2025/11/10 次回更新予定日:情報提供より8日以内
取り扱い不動産会社
- 電話番号
- 00786-01794074
- 営業時間
- 営業時間:10:00~18:00 / 定休日:毎週火曜日・水曜日
- 免許番号
- 国土交通大臣(15)第000777号
- 会社概要
- <仲介>
国土交通大臣(15)第000777号
(一社)不動産流通経営協会会員 (公社)首都圏不動産公正取引協議会加盟
三井のリハウス草加センター三井不動産リアルティ(株)
〒340-0015 埼玉県草加市高砂2-18-7 ソライエアイル草加1階
三井のリハウス草加センター 三井不動産リアルティ(株)
八潮駅の口コミ
治安・安全
3.0
八潮は昔から決して治安がいい地域ではないが、ここ最近はそこまで悪い感じはしていない。周辺は若いファミリーも多いため治安はよい。
子育て・病院
3.0
周辺は道路も整備されており、駅までベビーカーが躓くような道も一切ありません。道も広いところが多く歩きやすいです。 しかしながら八潮は産院がないため、車がないと選択肢がかなり狭まります。 陣痛の際もこの地域は来てくれる陣痛タクシーがありません。 (通常のタクシーは使用できます) また待機児童が多いため八潮で保育園に入れるのはなかなか難しいです。 駅前に気軽にテイクアウトできるようなお店がないので(牛丼チェーンなど)何にもしたくない日などは少し不便に感じます。
八潮市の駅から中古一戸建てを探す
住宅ローンシミュレーション
住宅ローン設定
物件価格
返済期間
頭金
ボーナス払(年1回)
※
※物件価格の80%以下でお借入れの場合
※50歳以下で一般団信をご選択の場合
※住宅ローン金利優遇割適用後の変動金利(全期間引き下げプラン)
※実際のお借入日の金利により変動します。
※審査の結果によっては保証付金利プランとなる場合があり、この場合は上記とは異なる金利となります。
※別途借入金額の2.20%(税込)の事務手数料が発生します。
ボーナス払 | 35年間返済 | 30年間返済 | 25年間返済 | 20年間返済 | 15年間返済 | 10年間返済 |
|---|---|---|---|---|---|---|
0万円 | -円/月 | -円/月 | -円/月 | -円/月 | -円/月 | -円/月 |
5万円 | -円/月 | -円/月 | -円/月 | -円/月 | -円/月 | -円/月 |
10万円 | -円/月 | -円/月 | -円/月 | -円/月 | -円/月 | -円/月 |
15万円 | -円/月 | -円/月 | -円/月 | -円/月 | -円/月 | -円/月 |
20万円 | -円/月 | -円/月 | -円/月 | -円/月 | -円/月 | -円/月 |
25万円 | -円/月 | -円/月 | -円/月 | -円/月 | -円/月 | -円/月 |
30万円 | -円/月 | -円/月 | -円/月 | -円/月 | -円/月 | -円/月 |
ボーナス払 | 35年間返済 | 30年間返済 | 25年間返済 | 20年間返済 | 15年間返済 | 10年間返済 |
|---|---|---|---|---|---|---|
0万円 | -円/月 | -円/月 | -円/月 | -円/月 | -円/月 | -円/月 |
5万円 | -円/月 | -円/月 | -円/月 | -円/月 | -円/月 | -円/月 |
10万円 | -円/月 | -円/月 | -円/月 | -円/月 | -円/月 | -円/月 |
15万円 | -円/月 | -円/月 | -円/月 | -円/月 | -円/月 | -円/月 |
20万円 | -円/月 | -円/月 | -円/月 | -円/月 | -円/月 | -円/月 |
25万円 | -円/月 | -円/月 | -円/月 | -円/月 | -円/月 | -円/月 |
30万円 | -円/月 | -円/月 | -円/月 | -円/月 | -円/月 | -円/月 |
- ・金利は、今後35年間変動しない仮定のもと元利均等返済方式で計算しております。
- ・実際の金利は、各金融機関のホームページをご参照ください。
- ・ローン契約の際には、手数料や印紙税などの諸費用が別途かかります。
- ・ボーナス支払総額が総支払額の50%を超えている場合、上記の表では「ローン不可」となります。
- ・シミュレーションを利用し、それが原因で利用者が受けたいかなる損害についても当社は一切責任を負いません。あらかじめご了承ください。












