一戸建て川町 1480万円の詳細情報
1480万円
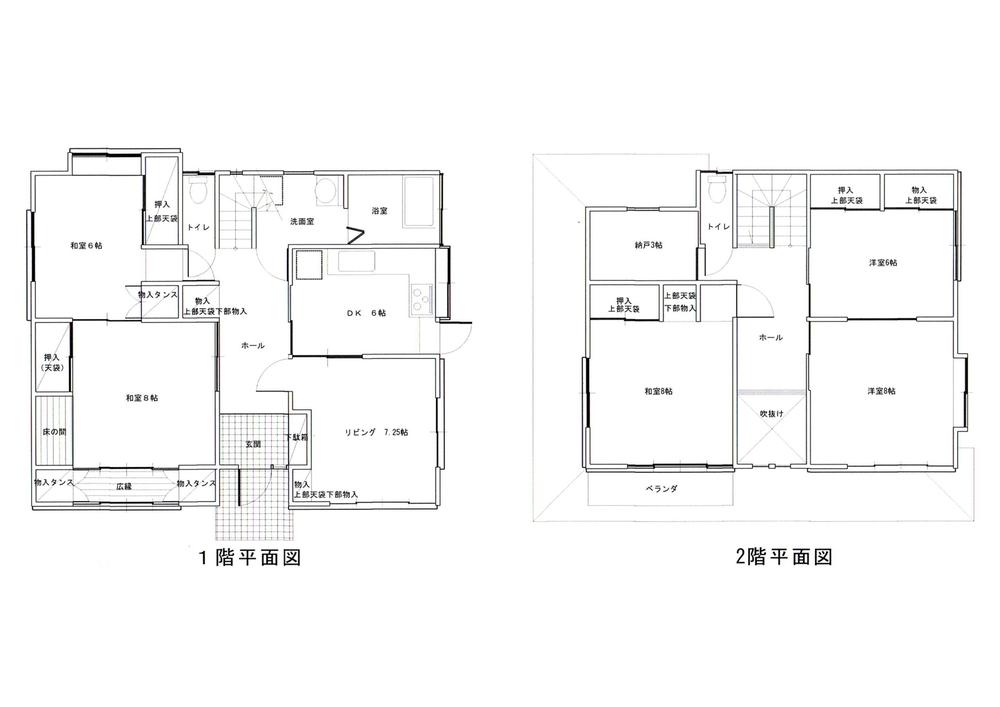
月々のローン返済額を試算広々としたお庭のある200㎡の敷地×ゆとりの5LDK+納戸付き
物件概要
| 物件名 | 川町 1480万円 | ||||
|---|---|---|---|---|---|
| 所在地 | 東京都八王子市川町 | ||||
| 交通 |
JR中央線「高尾」バス17分グリーンタウン高尾歩11分 JR中央線「西八王子」バス20分川町東歩3分 京王高尾線「高尾」車4.2km | ||||
| 建物構造 | 木造2階建 | 最多価格帯 | - | ||
| 販売戸数/総戸数 | 1戸/- | 入居時期 | 相談 | ||
| 駐車場 | カースペース | 地目 | - | ||
| 用途地域 | - | 建ぺい率・容積率 | - | ||
| 土地権利 | 所有権 | 私道負担・道路 | 35.78㎡ | ||
| セットバック | - | リフォーム | - | ||
| 取引態様 | 仲介 | 施工会社名 | - | ||
| 建築確認番号 | - | ||||
| その他費用 | - | ||||
| 販売スケジュール | - | ||||
| イベント情報 |
現地案内会(事前に必ずお問い合わせください) 日程/公開中 時間/10:00~19:00 ■日時 毎日(年末年始等を除く)物件のご見学やご相談が可能です。 曜日・時間帯問わず柔軟に対応させて頂きます。 ※ご予約を優先させていただきますので、お早めにご相談ください。 ■ご案内方法 ①弊社へのご来店・ご来社から出発 ②物件現地・周辺でのお待ち合わせ ③物件最寄り駅等でのお待ち合わせ ④ご自宅からの送迎 など 上記いずれも柔軟に対応させて頂きますのでご相談ください。 物件の周辺環境や類似物件、ご希望に合わせた物件のご案内も併せて承ります。 ■ご予約・ご相談方法 事前に鍵の手配等が必要な場合がございますので、お早めにご予約をお願いいたします。 居住中の物件は事前に売主様との日程調整が必要になります。 ※当日のご見学希望にお応えできない場合がございますので予めご承知おきください。 ■取扱い不動産・サービス情報 新築・中古一戸建て、新築・中古マンション、土地、賃貸収益物件 など 不動産査定、売却・買い取り・買い替えのご相談も承ります。 お客様のご状況に合わせてご売却イメージやお住み替えのプランをご提案いたします。 ■その他・各種ご相談 ①FPによるライフプランのシミュレーション ・生活収支のキャッシュフローと比較 ・お客様のライフプランに合った資金計画のご提案 ・効果的な生命保険の見直し など ②住宅ローンのご相談 ・借入可能額と適切な借り入れ額のシミュレーション ・繰り上げ返済や購入に際した控除などについてのアドバイス ・過去に否決や異動があった、借入にご不安がある場合でもご相談ください。 ■無料提携駐車場 詳しくはスタッフよりお伝えさせて頂きます。 お気軽にお申し付けください。 -----まずは【資料請求する(無料)】よりお問い合わせください----- | ||||
| その他制限事項 | 景観法による規制有、航空法による規制有、宅地造成工事規制区域、準防火地域 | ||||
| 備考 | 担当者:蜂谷雅人、設備:公営水道、本下水、駐車場:カースペース | ||||
| 取引条件有効期限 | - | ||||
情報公開日:2026/02/01 次回更新予定日:2026/2/9
取り扱い不動産会社
- 電話番号
- 042-649-9558
- 営業時間
- 営業時間:9:00~21:00
- 免許番号
- 東京都知事(1)第110166号
- 会社概要
- <仲介>
東京都知事(1)第110166号
(公社)東京都宅地建物取引業協会会員 (公社)首都圏不動産公正取引協議会加盟
みどり不動産(株)
〒192-0082 東京都八王子市東町3-8 浦島ビル5階
みどり不動産(株)
高尾駅の口コミ
自然環境
4.0
自然が多いので、虫には要注意です。 窓をしっかり閉めていれば問題ありませんが、極度に虫嫌いの人には向かないかもしれません。田舎なら当たり前ですが。
お買い物・飲食
4.0
飲食店はぼちぼちのものがありますが、これと言って決め手に欠けます。行列のできるような良い飲食店はほとんどありません。
住宅ローンシミュレーション
住宅ローン設定
物件価格
返済期間
頭金
ボーナス払(年1回)
※
※物件価格の80%以下でお借入れの場合
※50歳以下で一般団信をご選択の場合
※住宅ローン金利優遇割適用後の変動金利(全期間引き下げプラン)
※実際のお借入日の金利により変動します。
※審査の結果によっては保証付金利プランとなる場合があり、この場合は上記とは異なる金利となります。
※別途借入金額の2.20%(税込)の事務手数料が発生します。
ボーナス払 | 35年間返済 | 30年間返済 | 25年間返済 | 20年間返済 | 15年間返済 | 10年間返済 |
|---|---|---|---|---|---|---|
0万円 | -円/月 | -円/月 | -円/月 | -円/月 | -円/月 | -円/月 |
5万円 | -円/月 | -円/月 | -円/月 | -円/月 | -円/月 | -円/月 |
10万円 | -円/月 | -円/月 | -円/月 | -円/月 | -円/月 | -円/月 |
15万円 | -円/月 | -円/月 | -円/月 | -円/月 | -円/月 | -円/月 |
20万円 | -円/月 | -円/月 | -円/月 | -円/月 | -円/月 | -円/月 |
25万円 | -円/月 | -円/月 | -円/月 | -円/月 | -円/月 | -円/月 |
30万円 | -円/月 | -円/月 | -円/月 | -円/月 | -円/月 | -円/月 |
ボーナス払 | 35年間返済 | 30年間返済 | 25年間返済 | 20年間返済 | 15年間返済 | 10年間返済 |
|---|---|---|---|---|---|---|
0万円 | -円/月 | -円/月 | -円/月 | -円/月 | -円/月 | -円/月 |
5万円 | -円/月 | -円/月 | -円/月 | -円/月 | -円/月 | -円/月 |
10万円 | -円/月 | -円/月 | -円/月 | -円/月 | -円/月 | -円/月 |
15万円 | -円/月 | -円/月 | -円/月 | -円/月 | -円/月 | -円/月 |
20万円 | -円/月 | -円/月 | -円/月 | -円/月 | -円/月 | -円/月 |
25万円 | -円/月 | -円/月 | -円/月 | -円/月 | -円/月 | -円/月 |
30万円 | -円/月 | -円/月 | -円/月 | -円/月 | -円/月 | -円/月 |
- ・金利は、今後35年間変動しない仮定のもと元利均等返済方式で計算しております。
- ・実際の金利は、各金融機関のホームページをご参照ください。
- ・ローン契約の際には、手数料や印紙税などの諸費用が別途かかります。
- ・ボーナス支払総額が総支払額の50%を超えている場合、上記の表では「ローン不可」となります。
- ・シミュレーションを利用し、それが原因で利用者が受けたいかなる損害についても当社は一切責任を負いません。あらかじめご了承ください。





















