マンションライオンズガーデン日吉台の詳細情報
3690万円
月々のローン返済額を試算◆リノベーション物件◆≪売主≫ならではの充実した物件資料と豊富な知識!
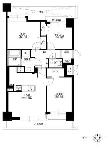
物件概要
| 物件名 | ライオンズガーデン日吉台 | ||||
|---|---|---|---|---|---|
| 所在地 | 神奈川県横浜市港北区下田町5 | ||||
| 交通 |
グリーンライン「高田」歩12分 東急東横線「日吉」バス13分南原(横浜市港北区)歩2分 東急目黒線「日吉」バス13分南原(横浜市港北区)歩2分 | ||||
| 建物構造 | RC8階建 | 最多価格帯 | - | ||
| 販売戸数/総戸数 | 1戸/51戸 | 主要採光面 | 西 | ||
| 修繕積立金 | 1万1210円/月 | 修繕積立基金 | - | ||
| その他面積 | バルコニー面積:7.51㎡ | 土地権利 | 所有権 | ||
| 入居時期 | 相談 | 管理 | 1万1700円/月(委託(通勤)) | ||
| 駐車場 | 空無 | 用途地域 | 1種住居、1種低層 | ||
| リフォーム |
2025年7月完了 水回り設備交換:キッチン・浴室・トイレ 内装リフォーム:壁・床・全室 その他:給排水管 給湯器 ※年月は一番古いリフォーム箇所を表します | 取引態様 | 売主 | ||
| 施工会社名 | - | ||||
| その他費用 | 取引にかかる費用:弊社が売主のため仲介手数料がかかりません! | ||||
| 販売スケジュール | - | ||||
| イベント情報 | - | ||||
| その他制限事項 | - | ||||
| 備考 | 担当者:赤石沢 和也 | ||||
| 取引条件有効期限 | - | ||||
情報公開日:2025/10/30 次回更新予定日:情報提供より8日以内
この物件の地図・周辺環境
このアイコンは物件のおおよその位置を表しており、実際の場所と異なる場合がございます。詳しくは不動産会社に直接ご確認ください。
※地図上に表示される物件の位置は付近住所に所在することを表すものであり、実際の物件所在地とは異なる場合がございます。
※地図の更新タイミングの関係で、物件情報が実際のものとは異なる場合や最新情報に更新されていない場合がございます。
※以下の南西諸島及び離島においては、表示される物件の位置が実際のものとは数百メートル程度ずれる場合がございます。
東京都:硫黄島・青ヶ島、沖縄県: 北大東島・南大東島・多良間島・水納島・与那国島・宮古諸島・石垣島・竹富島
取り扱い不動産会社
- 住所
- 東京都中央区日本橋小舟町8ー1 ヒューリック小舟町ビル6階
- 電話番号
- 03-5652-8343
- 営業時間
- 営業時間:9:30-18:30 / 定休日:火曜日・水曜日
- 免許番号
- 国土交通大臣(4)第007356号
- 会社概要
- <売主>
国土交通大臣(4)第007356号
(公社)東京都宅地建物取引業協会会員 (公社)首都圏不動産公正取引協議会加盟 / (一社)不動産流通経営協会会員 (公社)首都圏不動産公正取引協議会加盟
(株)マイプレイス
〒103-0024 東京都中央区日本橋小舟町8ー1 ヒューリック小舟町ビル6階
(株)マイプレイス
高田駅の口コミ
お買い物・飲食
4.0
駅前にイオンができたので食品には困りません。ドラッグストアと100均もあり便利です。スタバも入ってます。チェーン店のファミレスなどが無いのが残念です。
お買い物・飲食
4.0
飲食店が少ない。 少ないバリエーションなので、今日は別のものが食べたいと思うと日吉まで出ないと行けないのが面倒です。 特に駅前にカフェがないのは残念です。 買物は日用品には困りませんが、電気屋、服屋などはありませんから日吉やセンター北、南などに出る必要があります。
神奈川県近隣の都道府県から中古マンションを探す
住宅ローンシミュレーション
住宅ローン設定
物件価格
返済期間
頭金
ボーナス払(年1回)
※
※物件価格の80%以下でお借入れの場合
※50歳以下で一般団信をご選択の場合
※住宅ローン金利優遇割適用後の変動金利(全期間引き下げプラン)
※実際のお借入日の金利により変動します。
※審査の結果によっては保証付金利プランとなる場合があり、この場合は上記とは異なる金利となります。
※別途借入金額の2.20%(税込)の事務手数料が発生します。
ボーナス払 | 35年間返済 | 30年間返済 | 25年間返済 | 20年間返済 | 15年間返済 | 10年間返済 |
|---|---|---|---|---|---|---|
0万円 | -円/月 | -円/月 | -円/月 | -円/月 | -円/月 | -円/月 |
5万円 | -円/月 | -円/月 | -円/月 | -円/月 | -円/月 | -円/月 |
10万円 | -円/月 | -円/月 | -円/月 | -円/月 | -円/月 | -円/月 |
15万円 | -円/月 | -円/月 | -円/月 | -円/月 | -円/月 | -円/月 |
20万円 | -円/月 | -円/月 | -円/月 | -円/月 | -円/月 | -円/月 |
25万円 | -円/月 | -円/月 | -円/月 | -円/月 | -円/月 | -円/月 |
30万円 | -円/月 | -円/月 | -円/月 | -円/月 | -円/月 | -円/月 |
ボーナス払 | 35年間返済 | 30年間返済 | 25年間返済 | 20年間返済 | 15年間返済 | 10年間返済 |
|---|---|---|---|---|---|---|
0万円 | -円/月 | -円/月 | -円/月 | -円/月 | -円/月 | -円/月 |
5万円 | -円/月 | -円/月 | -円/月 | -円/月 | -円/月 | -円/月 |
10万円 | -円/月 | -円/月 | -円/月 | -円/月 | -円/月 | -円/月 |
15万円 | -円/月 | -円/月 | -円/月 | -円/月 | -円/月 | -円/月 |
20万円 | -円/月 | -円/月 | -円/月 | -円/月 | -円/月 | -円/月 |
25万円 | -円/月 | -円/月 | -円/月 | -円/月 | -円/月 | -円/月 |
30万円 | -円/月 | -円/月 | -円/月 | -円/月 | -円/月 | -円/月 |
- ・金利は、今後35年間変動しない仮定のもと元利均等返済方式で計算しております。
- ・実際の金利は、各金融機関のホームページをご参照ください。
- ・ローン契約の際には、手数料や印紙税などの諸費用が別途かかります。
- ・ボーナス支払総額が総支払額の50%を超えている場合、上記の表では「ローン不可」となります。
- ・シミュレーションを利用し、それが原因で利用者が受けたいかなる損害についても当社は一切責任を負いません。あらかじめご了承ください。




















