マンションダイアパレス横須賀中央の詳細情報
3590万円
月々のローン返済額を試算◆リノベーション物件◆≪売主≫ならではの充実した物件資料と豊富な知識!
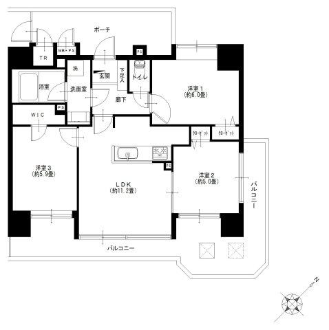
物件概要
| 物件名 | ダイアパレス横須賀中央 | ||||
|---|---|---|---|---|---|
| 所在地 | 神奈川県横須賀市米が浜通1-4-2 | ||||
| 交通 |
京急本線「横須賀中央」歩7分 京急本線「県立大学」歩13分 京急本線「汐入」歩22分 | ||||
| 建物構造 | SRC13階建 | 最多価格帯 | - | ||
| 販売戸数/総戸数 | 1戸/32戸 | 主要採光面 | 南東 | ||
| 修繕積立金 | 2万150円/月 | 修繕積立基金 | - | ||
| その他面積 | バルコニー面積:19.21㎡ | 土地権利 | 所有権 | ||
| 入居時期 | 相談 | 管理 | 1万560円/月(委託(通勤)) | ||
| 駐車場 | 空無 | 用途地域 | 商業 | ||
| リフォーム |
2025年7月完了 水回り設備交換:キッチン・浴室・トイレ 内装リフォーム:壁・床・全室 ※年月は一番古いリフォーム箇所を表します | 取引態様 | 売主 | ||
| 施工会社名 | - | ||||
| その他費用 | 取引にかかる費用:弊社が売主のため仲介手数料がかかりません! | ||||
| 販売スケジュール | - | ||||
| イベント情報 | - | ||||
| その他制限事項 | ポーチ面積:9.60平米 | ||||
| 備考 | 担当者:前田 操輝 | ||||
| 取引条件有効期限 | - | ||||
情報公開日:2025/10/30 次回更新予定日:情報提供より8日以内
この物件の地図・周辺環境
このアイコンは物件のおおよその位置を表しており、実際の場所と異なる場合がございます。詳しくは不動産会社に直接ご確認ください。
※地図上に表示される物件の位置は付近住所に所在することを表すものであり、実際の物件所在地とは異なる場合がございます。
※地図の更新タイミングの関係で、物件情報が実際のものとは異なる場合や最新情報に更新されていない場合がございます。
※以下の南西諸島及び離島においては、表示される物件の位置が実際のものとは数百メートル程度ずれる場合がございます。
東京都:硫黄島・青ヶ島、沖縄県: 北大東島・南大東島・多良間島・水納島・与那国島・宮古諸島・石垣島・竹富島
取り扱い不動産会社
- 住所
- 東京都中央区日本橋小舟町8ー1 ヒューリック小舟町ビル6階
- 電話番号
- 03-5652-8343
- 営業時間
- 営業時間:9:30-18:30 / 定休日:火曜日・水曜日
- 免許番号
- 国土交通大臣(4)第007356号
- 会社概要
- <売主>
国土交通大臣(4)第007356号
(公社)東京都宅地建物取引業協会会員 (公社)首都圏不動産公正取引協議会加盟 / (一社)不動産流通経営協会会員 (公社)首都圏不動産公正取引協議会加盟
(株)マイプレイス
〒103-0024 東京都中央区日本橋小舟町8ー1 ヒューリック小舟町ビル6階
(株)マイプレイス
横須賀中央駅の口コミ
自然環境
4.0
海が近く、海辺の公園も複数ある。釣りを楽しんでいる方も多く、のどかな環境でのんびり過ごしやすいと思います。
子育て・病院
4.0
神奈川歯科大学、横須賀共済病院、ヨゼフ病院など大きな病院や開業医も豊富だと思いました。海岸通りに休日夜間に利用できる救急センターができたのでいざという時にかなり安心です。
神奈川県近隣の都道府県から中古マンションを探す
住宅ローンシミュレーション
住宅ローン設定
物件価格
返済期間
頭金
ボーナス払(年1回)
※
※物件価格の80%以下でお借入れの場合
※50歳以下で一般団信をご選択の場合
※住宅ローン金利優遇割適用後の変動金利(全期間引き下げプラン)
※実際のお借入日の金利により変動します。
※審査の結果によっては保証付金利プランとなる場合があり、この場合は上記とは異なる金利となります。
※別途借入金額の2.20%(税込)の事務手数料が発生します。
ボーナス払 | 35年間返済 | 30年間返済 | 25年間返済 | 20年間返済 | 15年間返済 | 10年間返済 |
|---|---|---|---|---|---|---|
0万円 | -円/月 | -円/月 | -円/月 | -円/月 | -円/月 | -円/月 |
5万円 | -円/月 | -円/月 | -円/月 | -円/月 | -円/月 | -円/月 |
10万円 | -円/月 | -円/月 | -円/月 | -円/月 | -円/月 | -円/月 |
15万円 | -円/月 | -円/月 | -円/月 | -円/月 | -円/月 | -円/月 |
20万円 | -円/月 | -円/月 | -円/月 | -円/月 | -円/月 | -円/月 |
25万円 | -円/月 | -円/月 | -円/月 | -円/月 | -円/月 | -円/月 |
30万円 | -円/月 | -円/月 | -円/月 | -円/月 | -円/月 | -円/月 |
ボーナス払 | 35年間返済 | 30年間返済 | 25年間返済 | 20年間返済 | 15年間返済 | 10年間返済 |
|---|---|---|---|---|---|---|
0万円 | -円/月 | -円/月 | -円/月 | -円/月 | -円/月 | -円/月 |
5万円 | -円/月 | -円/月 | -円/月 | -円/月 | -円/月 | -円/月 |
10万円 | -円/月 | -円/月 | -円/月 | -円/月 | -円/月 | -円/月 |
15万円 | -円/月 | -円/月 | -円/月 | -円/月 | -円/月 | -円/月 |
20万円 | -円/月 | -円/月 | -円/月 | -円/月 | -円/月 | -円/月 |
25万円 | -円/月 | -円/月 | -円/月 | -円/月 | -円/月 | -円/月 |
30万円 | -円/月 | -円/月 | -円/月 | -円/月 | -円/月 | -円/月 |
- ・金利は、今後35年間変動しない仮定のもと元利均等返済方式で計算しております。
- ・実際の金利は、各金融機関のホームページをご参照ください。
- ・ローン契約の際には、手数料や印紙税などの諸費用が別途かかります。
- ・ボーナス支払総額が総支払額の50%を超えている場合、上記の表では「ローン不可」となります。
- ・シミュレーションを利用し、それが原因で利用者が受けたいかなる損害についても当社は一切責任を負いません。あらかじめご了承ください。




















