中古売マンション三和コーポ萩原No.15 大分県大分市萩原1丁目の中古売マンションの詳細情報
物件概要
| 物件名 | 三和コーポ萩原No.15 大分県大分市萩原1丁目の中古売マンション | ||||
|---|---|---|---|---|---|
| 所在地 | 大分県大分市萩原1丁目 | ||||
| 交通 |
JR日豊本線 「牧」駅 徒歩10分 | ||||
| 建物構造 | RC | 総戸数 | - | ||
| 主要採光面 | 南 | 修繕積立金 | 8,480円 | ||
| バルコニー面積 | 6.30㎡ | 土地権利 | 所有権 | ||
| 入居時期 | 即時 | 現況 | 空 | ||
| 管理 | 管理員/管理人日勤 管理形態/全部委託 管理組合/あり | 駐車場 | 有 2,000円/月 | ||
| 都市計画 | - | 用途地域 | 近隣商業 | ||
| 建ぺい率 | - | 容積率 | - | ||
| リフォーム | 備考に記載 | リノベーション | 備考に記載 | ||
| 取引態様 | 媒介 | 施工会社名 | 備考に記載 | ||
| 建築確認番号 | - | ||||
| その他費用 | 町内会費/月:325円 | ||||
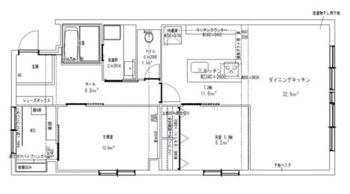
| 備考 | ・ペット飼育は不可となります。・共用部の修繕履歴についてはお問合せください。・施工会社:三和建設株式会社・維持費等:町内会費325円/月・管理形態/管理員の勤務形態:全部委託/日勤(有限会社三和コミュニティー)・管理組合:あり・中心部にもアクセス良好なリノベーション済み2LDKが誕生しました。スーパーやその他商業施設が並び周辺環境も良好です。水回りも一新しており、築年数を感じさせない洗練された空間です。駐車場1台確保可能。・バイク置場:有(500円/月)・駐輪場:有(100円/月)・仲介手数料:売買代金の3.3%+66,000円・リフォーム実施:2015年9月共用部の大規模修繕工事(他修繕履歴についてはお問合せください。)・リノベーション実施:2025年6月・内装全面(床・壁クロス・天井・建具) ・水回り(キッチン・浴室・トイレ・洗面所) | ||||
情報公開日:2025/09/03 次回更新予定日:情報更新日より14日以内
取り扱い不動産会社
- 住所
- 大分県大分市高城西町7-24
- 電話番号
- 097-576-7650
- 免許番号
- 大分県知事免許(1)第3600号
- 所属団体
- (公社)大分県宅地建物取引業協会、(一社)九州不動産公正取引協議会
掲載期限まであと4日
牧駅の口コミ
自然環境
4.0
市の管理する市民公園も近くにあり、小さな公園も何ヵ所かあるので、子供を遊ばせるにはいい環境だったと思う。
自然環境
1.0
排気ガス、周辺に工場がとても多いので、空気も悪く、海風にのって工場地帯の灰がとんで、窓際ほ汚れてしまう
住宅ローンシミュレーション
住宅ローン設定
物件価格
返済期間
頭金
ボーナス払(年1回)
※
※物件価格の80%以下でお借入れの場合
※50歳以下で一般団信をご選択の場合
※住宅ローン金利優遇割適用後の変動金利(全期間引き下げプラン)
※実際のお借入日の金利により変動します。
※審査の結果によっては保証付金利プランとなる場合があり、この場合は上記とは異なる金利となります。
※別途借入金額の2.20%(税込)の事務手数料が発生します。
ボーナス払 | 35年間返済 | 30年間返済 | 25年間返済 | 20年間返済 | 15年間返済 | 10年間返済 |
|---|---|---|---|---|---|---|
0万円 | -円/月 | -円/月 | -円/月 | -円/月 | -円/月 | -円/月 |
5万円 | -円/月 | -円/月 | -円/月 | -円/月 | -円/月 | -円/月 |
10万円 | -円/月 | -円/月 | -円/月 | -円/月 | -円/月 | -円/月 |
15万円 | -円/月 | -円/月 | -円/月 | -円/月 | -円/月 | -円/月 |
20万円 | -円/月 | -円/月 | -円/月 | -円/月 | -円/月 | -円/月 |
25万円 | -円/月 | -円/月 | -円/月 | -円/月 | -円/月 | -円/月 |
30万円 | -円/月 | -円/月 | -円/月 | -円/月 | -円/月 | -円/月 |
ボーナス払 | 35年間返済 | 30年間返済 | 25年間返済 | 20年間返済 | 15年間返済 | 10年間返済 |
|---|---|---|---|---|---|---|
0万円 | -円/月 | -円/月 | -円/月 | -円/月 | -円/月 | -円/月 |
5万円 | -円/月 | -円/月 | -円/月 | -円/月 | -円/月 | -円/月 |
10万円 | -円/月 | -円/月 | -円/月 | -円/月 | -円/月 | -円/月 |
15万円 | -円/月 | -円/月 | -円/月 | -円/月 | -円/月 | -円/月 |
20万円 | -円/月 | -円/月 | -円/月 | -円/月 | -円/月 | -円/月 |
25万円 | -円/月 | -円/月 | -円/月 | -円/月 | -円/月 | -円/月 |
30万円 | -円/月 | -円/月 | -円/月 | -円/月 | -円/月 | -円/月 |
- ・金利は、今後35年間変動しない仮定のもと元利均等返済方式で計算しております。
- ・実際の金利は、各金融機関のホームページをご参照ください。
- ・ローン契約の際には、手数料や印紙税などの諸費用が別途かかります。
- ・ボーナス支払総額が総支払額の50%を超えている場合、上記の表では「ローン不可」となります。
- ・シミュレーションを利用し、それが原因で利用者が受けたいかなる損害についても当社は一切責任を負いません。あらかじめご了承ください。
















