中古マンションリーベスト所沢 7階/9階 南東向きの詳細情報
物件概要
| 物件名 | リーベスト所沢 7階/9階 南東向き | ||||
|---|---|---|---|---|---|
| 所在地 | 埼玉県所沢市大字北秋津 | ||||
| 交通 |
西武池袋線 所沢駅 徒歩15分 | ||||
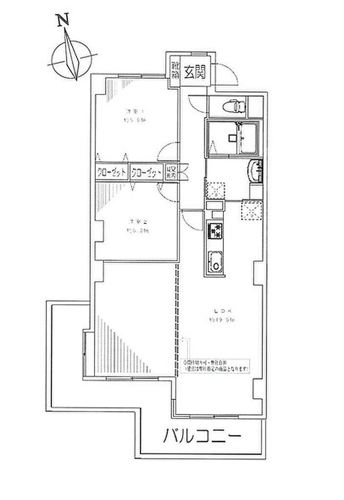
| 建物構造 | RC(鉄筋コンクリート) | 間取り詳細(帖) | - | ||
| 総戸数 | 89戸 | 事務所戸数 | - | ||
| 主要採光面 | 南東 | 修繕積立金 | 7,770円 | ||
| 修繕積立基金 | - | バルコニー面積 | 16.18m2 | ||
| 土地権利 | 所有権 | 引渡し | 即時 | ||
| 現況 | 空家 | 管理 | 管理員:日勤、管理形態:全部委託 | ||
| 駐車場 | 空有 9,000円(税無) 月額 9000円~15000円 | 地目 | - | ||
| 地勢 | - | 都市計画 | - | ||
| 用途地域 | - | 建ぺい率 | - | ||
| 容積率 | - | リフォーム |
実施年月(水回り):2025年09月 箇所:キッチン/浴室/トイレ/洗面所/給湯器 実施年月(内装):2025年09月 箇所:全室クロス張替/床(フローリング等)/建具(室内ドア等) | ||
| リノベーション | - | 取引態様 | 仲介 | ||
| 施工会社名 | - | ||||
| その他費用 | - | ||||
| オープンルーム情報 | 2025年11月12日~2026年06月30日 09時00分~18時00分 内覧随時受付中、お気軽にお問い合わせくださいませ | ||||
| 備考 | 諸費用サービス・ご見学・ご成約キャンペーン実施中 弊社で初めてご見学頂いたお客様に500円分QUOカードプレゼント 弊社でご契約頂いたお客様に20000円分ギフトカードプレゼント キャンペーン期間:2025年11月1日~2026年6月30日 キャンペーン対象:キャンペーン期間中に弊社で初めてご見学頂いたお客様全員 キャンペーン期間中に弊社でご契約頂いたお客様全員 内覧予約、フリーコールにて受付中です。弊社独自のサービスがあります。下記備考欄をご覧ください | ||||
情報公開日:2025/10/01 有効期限:2025/11/19
設備・条件
| 位置 | 2階以上 | ||||
|---|---|---|---|---|---|
| キッチン | 浄水器・活水器、コンロ三口、コンロ三口以上、システムキッチン、コンロ二口以上、給湯 | ||||
| セキュリティ | 宅配ボックス | ||||
| 設備・サービス | バルコニー、下水、公営水道、浴室乾燥機、専用バス、追焚機能、バス・トイレ別、洗面所独立、エレベーター | ||||
| 物件規模 | 総戸数・総区画数30以上 | ||||
| その他 | 事務所不可、ペット不可、照明器具付き、所有権、リフォーム・リノベーション済、鉄筋系、リフォーム物件、駐輪場あり、即入居可、シューズボックス、クローゼット、駐車場あり、バイク置き場あり、見学可能、現地内覧可能 | ||||
| 周辺環境 | 複数路線 | ||||
この物件の地図・周辺環境
このアイコンは物件のおおよその位置を表しており、実際の場所と異なる場合がございます。詳しくは不動産会社に直接ご確認ください。
取り扱い不動産会社
- 住所
- 埼玉県川口市芝1丁目28-1
- 電話番号
- 0120-400-609
- 営業時間
- 09:00~22:00
- 定休日
- 年中無休
- 免許番号
- 国土交通大臣免許(03)第008642号
- 所属団体
- (公財)東日本不動産流通機構
電話で問い合わせる(無料)お急ぎの方はこちらから!
物件お問い合わせ専用ダイヤル
営業時間:09:00~22:00(定休日:年中無休) 携帯・PHS可
音声案内に従って以下の数字を入力
お問い合わせ番号:98023-1058
LIFULL HOME'S物件番号:KGO035907
※お客様の電話番号は不動産会社に通知されません。
※光IP電話、及びIP電話からはご利用になれません。
※不動産会社の方からの上記電話番号によるお問合せはお断りしております。
掲載期限まであと5日
所沢駅の口コミ
お買い物・飲食
5.0
駅ビルに商業施設のグランエミオが開店して以降、所沢駅周辺で食料品、日用品、衣類、雑貨などほとんどの生活必需品を手に入れることができるようになり、とても便利です。 駅の西側でも大規模な商業施設を含む再開発が続いており、今後も更に住みやすい街になると思います。
お買い物・飲食
5.0
所沢駅に出れば、お買い物でそろわないものはないと思います。外食も、ファストフードからつけ麺、ラーメン、女子ウケのよいカフェまで、なんでもあります。エキナカのスーパーはザ・ガーデンでちょっとお高めですが、ちょっといいものを買いたい時使えます。
埼玉県近隣の都道府県から中古マンションを探す
住宅ローンシミュレーション
住宅ローン設定
物件価格
返済期間
頭金
ボーナス払(年1回)
※
※物件価格の80%以下でお借入れの場合
※50歳以下で一般団信をご選択の場合
※住宅ローン金利優遇割適用後の変動金利(全期間引き下げプラン)
※実際のお借入日の金利により変動します。
※審査の結果によっては保証付金利プランとなる場合があり、この場合は上記とは異なる金利となります。
※別途借入金額の2.20%(税込)の事務手数料が発生します。
ボーナス払 | 35年間返済 | 30年間返済 | 25年間返済 | 20年間返済 | 15年間返済 | 10年間返済 |
|---|---|---|---|---|---|---|
0万円 | -円/月 | -円/月 | -円/月 | -円/月 | -円/月 | -円/月 |
5万円 | -円/月 | -円/月 | -円/月 | -円/月 | -円/月 | -円/月 |
10万円 | -円/月 | -円/月 | -円/月 | -円/月 | -円/月 | -円/月 |
15万円 | -円/月 | -円/月 | -円/月 | -円/月 | -円/月 | -円/月 |
20万円 | -円/月 | -円/月 | -円/月 | -円/月 | -円/月 | -円/月 |
25万円 | -円/月 | -円/月 | -円/月 | -円/月 | -円/月 | -円/月 |
30万円 | -円/月 | -円/月 | -円/月 | -円/月 | -円/月 | -円/月 |
ボーナス払 | 35年間返済 | 30年間返済 | 25年間返済 | 20年間返済 | 15年間返済 | 10年間返済 |
|---|---|---|---|---|---|---|
0万円 | -円/月 | -円/月 | -円/月 | -円/月 | -円/月 | -円/月 |
5万円 | -円/月 | -円/月 | -円/月 | -円/月 | -円/月 | -円/月 |
10万円 | -円/月 | -円/月 | -円/月 | -円/月 | -円/月 | -円/月 |
15万円 | -円/月 | -円/月 | -円/月 | -円/月 | -円/月 | -円/月 |
20万円 | -円/月 | -円/月 | -円/月 | -円/月 | -円/月 | -円/月 |
25万円 | -円/月 | -円/月 | -円/月 | -円/月 | -円/月 | -円/月 |
30万円 | -円/月 | -円/月 | -円/月 | -円/月 | -円/月 | -円/月 |
- ・金利は、今後35年間変動しない仮定のもと元利均等返済方式で計算しております。
- ・実際の金利は、各金融機関のホームページをご参照ください。
- ・ローン契約の際には、手数料や印紙税などの諸費用が別途かかります。
- ・ボーナス支払総額が総支払額の50%を超えている場合、上記の表では「ローン不可」となります。
- ・シミュレーションを利用し、それが原因で利用者が受けたいかなる損害についても当社は一切責任を負いません。あらかじめご了承ください。





