一戸建てポラスの分譲住宅 リーズン市川 森都の詳細情報
5790万円~6580万円
月々のローン返済額を試算この物件は未完成のため、掲載写真(外観、内観、設備等)には、施工例が含まれている場合があります。物件詳細については、掲載の不動産会社宛にお問合せください。
■モデルハウス完成■ 「市川」駅徒歩20分/自転車9分/全13邸
外観・室内・設備(29枚)

現地外観写真
【四季を感じるシンボルツリー】春の芽吹きや秋の紅葉など、季節の移ろいを身近に感じさせてくれます。家族の成長とともに時を重ね、日々の暮らしに彩りとやすらぎを添える、わが家だけの特別な存在です。

リビング
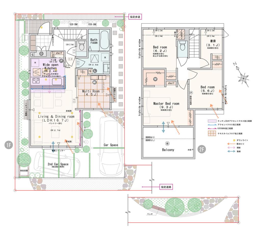
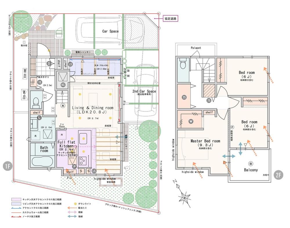
【開放的なリビング】一般的な居室の天井高は2.2~2.4mのところ、ポラスの新築一戸建てでは、リビングの天井の高さを標準仕様で2.7mに設定。ゆとりと開放感が違います。(12号棟/2025年10月撮影

リビング
【アクセントパネル】銘木に凹凸加工を施し、その立体感と陰影が木肌の美しさを際立たせシャープでモダンな印象を演出してくれる壁材をリビングの一部に施しました。(12号棟※成約済/2025年11月撮影)

【アルミ樹脂複合サッシ「エピソードⅡ」】
断熱性・防露性に優れた「樹脂」を窓の室内側に採用することにより高い断熱性能を実現。高い断熱性能で窓周辺を外気温の影響から守り、家族みんなが快適な健やかな室内環境を保ちます。

【リビングの天井高は2.7m】
リビングの天井高はゆとりある2.7mで、伸びやかな空間を創出。高さ2.2mのハイサッシから、陽光を豊かに採り込み、明るく心地よい広がりをもたらします。(一部該当しない物件がございます。)

【地震に強い基礎づくり】
基礎工事は、住宅の耐震性の重要な鍵を握ります。ポラスは、建物全体の荷重を支えるとても重要な「基礎」についても一棟一棟綿密に強度計算。地震に強い基礎づくりを行い、永く安心できる住まいを実現します。

【敷地調査・地盤改良】
ポラスでは、限られた土地資産を最大限に活用するため、一棟一棟で、地耐力、土質、地下水などの地盤状況を綿密に調査。その地盤に合わせた正確で最適な工法で必要に応じて地盤改良を施工しています。

【材料から自社にて製造】
ポラスの住宅の品質を支えているのが、最新鋭のプレカット工場です。日本最大級の工場において、正確に加工された構造材が使用され、地震などの外力の影響を受けやすい躯体接合部の強度を大幅に向上させています。
周辺環境・アクセス(9枚)
物件概要
| 物件名 | ポラスの分譲住宅 リーズン市川 森都 | ||||
|---|---|---|---|---|---|
| 所在地 | 千葉県市川市須和田2-322番1、322番2、321番5、321番6、321番7(地番)他 | ||||
| 交通 |
JR総武線快速「市川」歩19分~20分 京成本線「市川真間」歩15分 JR総武線快速「市川」バス6分須和田歩3分 | ||||
| 構造および階数 | 木造2階建(在来工法) | 建ぺい率・容積率 | 建ぺい率40% 容積率80% | ||
| 完成予定日 | 2026年4月10日予定 | 入居可能予定日 | 2026年5月28日予定 | ||
| 土地権利 | 所有権 | ||||
| 駐車場 | - | 国土法届出 | - | ||
| 地目 | 宅地 | 道路付け | 道路幅:5m、アスファルト舗装、[私道負担]あり 128㎡(持分10分の1) [道路]5.0M、5.0M私道 | ||
| 機構融資 | - | 取引態様 | 売主 | ||
| 用途地域 | 1種低層 | ||||
| 施工会社 | ポラテック(株) | ||||
| 建築確認番号 | 2025年10月14日第SJK-KX255627560号(5号棟)他 | ||||
| 設備 | 省エネルギー対策 / フラット35Sに対応 / 駐車2台可 / 2沿線以上利用可 / 省エネ給湯器 / スーパー 徒歩10分以内 / 市街地が近い / システムキッチン / 陽当り良好 / 閑静な住宅地 / LDK15畳以上 / 庭 / 対面式キッチン / セキュリティ充実 / トイレ2ヶ所 / 浴室1坪以上 / 2階建 / 温水洗浄便座 / 床下収納 / 浴室に窓 / TVモニタ付インターホン / 緑豊かな住宅地 / 都市近郊 / 通風良好 / パントリー(食器・食品の収納庫) / ウォークインクローゼット / 天井高2.5m以上 / 都市ガス / シューズインクローク / 床暖房 / 食器洗乾燥機 / 浄水器 / スマートキー | ||||
| その他制限事項 | - | ||||
| 備考 | 設備:公営水道、東京電力・他、都市ガス、個別浄化槽、カースペース、外構、植栽その他付帯設備一式、建築確認番号:2025年10月14日第SJK-KX255627560号(5号棟)他、※電車の所要時間は通勤ラッシュ時のものとなります。乗換・待ち時間の分数を含みます。 ※分数・距離はすべて現地からのものです。徒歩での分数は80m=1分での換算です。 ※各施設までの徒歩所要時間(距離)は、「最も遠い号棟を起点」に計測しております。 ※上記金額には消費税(10%相当額)、水道分担金が含まれております。 ※7号棟は抽選販売となります。(要望書受付締切:2026年3月6日(金)16時00分、抽選:同日16時30分~) ※12、13号棟は、モデルハウスとして使用するため、契約後も2026年4月26日まで内覧させていただきます。 ■その他の設備 公営水道/東京電力・他/都市ガス/個別浄化槽/カースペース/外構/植栽その他付帯設備一式 | ||||
情報更新日:2025/11/16 次回更新予定日:情報提供より8日以内
販売概要
| 販売価格 | 5790万円~6580万円 お問い合わせはこちら | ||||
|---|---|---|---|---|---|
| 販売スケジュール | 「先着順申込受付中」 | ||||
| 販売戸数/総戸数 | 4戸/13戸 | ||||
| 最多価格帯 | - | ||||
| 間取り | 3LDK~5LDK | ||||
| 建物面積 | 97.29㎡~99.55㎡ | 土地面積 | 128.2㎡~158.54㎡(登記) | ||
| その他施設費用、償却費 | - | ||||
| その他費用 | - | ||||
| 登録受付 | - | 抽選日 | - | ||
| モデルルーム情報 | 現地見学会(事前に必ず予約してください)日程/公開中現地モデルハウス2邸完成!!定休日:火曜日・水曜日(1)10:00 (2)14:00 (3)17:00〈予約制〉◆お気軽にご相談ください◆マイホーム購入は人生の大切なご決断です。気になる点は何でもお気軽にご相談ください。当社スタッフがご納得いただけるまでご相談をお受けいたします。◆お客様のご都合に合わせてご案内できます◆「知りたい情報だけ」という短時間のご案内も可能です。事前に予定をお伝えください!◆詳しい資料やパンフレットもご用意しております◆ご見学した物件以外でもお客様のお探しの条件をお伝えいただければ条件に合った物件をご紹介いたします。 | ||||
| 取引条件有効期限 | 2025年11月18日 | ||||
会社情報
| お問い合わせ先 |
(株)中央住宅戸建分譲千葉事業部市川営業所 047-335-1870 上記の電話番号にお問合せください。(携帯・PHS 可) 【物件番号】78049227 | ||||
|---|---|---|---|---|---|
| 会社概要 |
(株)中央住宅戸建分譲千葉事業部市川営業所[国土交通大臣(13)第002401号] - | ||||
取り扱い不動産会社
- 電話番号
- 047-335-1870
- 物件番号
- 78049227
市川駅の口コミ
お買い物・飲食
5.0
駅前にシャポーがあるため和洋中なんでも揃うし飲食街とかもあるので食事カフェ酒飲みもOKですね。 ナナズグリーンティーカフェがなかなか使い勝手が良いですね。
自然環境
4.0
大雨が降ると目の前の道路が水没する。 これは市川南全域でそう。 長靴を履いて川を渡らないといけないことがたまにあります
住宅ローンシミュレーション
住宅ローン設定
物件価格
返済期間
頭金
ボーナス払(年1回)
※
※物件価格の80%以下でお借入れの場合
※50歳以下で一般団信をご選択の場合
※住宅ローン金利優遇割適用後の変動金利(全期間引き下げプラン)
※実際のお借入日の金利により変動します。
※審査の結果によっては保証付金利プランとなる場合があり、この場合は上記とは異なる金利となります。
※別途借入金額の2.20%(税込)の事務手数料が発生します。
ボーナス払 | 35年間返済 | 30年間返済 | 25年間返済 | 20年間返済 | 15年間返済 | 10年間返済 |
|---|---|---|---|---|---|---|
0万円 | -円/月 | -円/月 | -円/月 | -円/月 | -円/月 | -円/月 |
5万円 | -円/月 | -円/月 | -円/月 | -円/月 | -円/月 | -円/月 |
10万円 | -円/月 | -円/月 | -円/月 | -円/月 | -円/月 | -円/月 |
15万円 | -円/月 | -円/月 | -円/月 | -円/月 | -円/月 | -円/月 |
20万円 | -円/月 | -円/月 | -円/月 | -円/月 | -円/月 | -円/月 |
25万円 | -円/月 | -円/月 | -円/月 | -円/月 | -円/月 | -円/月 |
30万円 | -円/月 | -円/月 | -円/月 | -円/月 | -円/月 | -円/月 |
ボーナス払 | 35年間返済 | 30年間返済 | 25年間返済 | 20年間返済 | 15年間返済 | 10年間返済 |
|---|---|---|---|---|---|---|
0万円 | -円/月 | -円/月 | -円/月 | -円/月 | -円/月 | -円/月 |
5万円 | -円/月 | -円/月 | -円/月 | -円/月 | -円/月 | -円/月 |
10万円 | -円/月 | -円/月 | -円/月 | -円/月 | -円/月 | -円/月 |
15万円 | -円/月 | -円/月 | -円/月 | -円/月 | -円/月 | -円/月 |
20万円 | -円/月 | -円/月 | -円/月 | -円/月 | -円/月 | -円/月 |
25万円 | -円/月 | -円/月 | -円/月 | -円/月 | -円/月 | -円/月 |
30万円 | -円/月 | -円/月 | -円/月 | -円/月 | -円/月 | -円/月 |
- ・金利は、今後35年間変動しない仮定のもと元利均等返済方式で計算しております。
- ・実際の金利は、各金融機関のホームページをご参照ください。
- ・ローン契約の際には、手数料や印紙税などの諸費用が別途かかります。
- ・ボーナス支払総額が総支払額の50%を超えている場合、上記の表では「ローン不可」となります。
- ・シミュレーションを利用し、それが原因で利用者が受けたいかなる損害についても当社は一切責任を負いません。あらかじめご了承ください。
※価格は物件の代金総額を表示しており、消費税が課税される場合は税込み価格です。 (1000円未満は切り上げ。)
※写真に写っている、またはパース(絵)や間取り図に描かれている家具や車などは、特にコメントがない場合、販売価格に含まれません。
※敷地権利が定期借地権のものは価格に権利金を含みます。
※建築条件付き土地価格には、建物価格は含まれません。
※物件情報は、原則として情報提供日の2日前に最終確認した情報です。
※完成予想図はいずれも外構、植栽、外観等実際のものとは多少異なることがあります。
※モデルルーム・モデルハウス・展示場・ショールームの画像の場合、今回販売の物件と異なる場合があります。
※CG合成の画像の場合、実際とは多少異なる場合があります。
※物件特徴:販売戸数が複数の物件は、全ての住戸に該当しない項目もあります。
※0800で始まる電話番号は通話料無料です。また、サービス検証のため当該番号の利用履歴を個人が特定できない範囲で取得しています。予めご了承ください。
※完成後1年以上を経過した未入居物件が掲載される場合があります。ご了承ください。
※新着:物件情報が「SUUMO」に掲載された日から1週間表示されます。
※価格更新:物件価格が変更された日から1週間表示されます。
※販売予定物件はすべて、販売開始するまで契約または予約の申込みはできません。
※購入の前には物件内容や契約条件についてご自身で十分な確認をしていただくようにお願いいたします。
※建築条件土地の情報内に掲載されている、建物プラン例は、土地購入者の設計プランの参考の一例であって、プランの採用可否は任意です。
※土地(建築条件なし)で「建物プラン例」が表記してある時、そのプラン例は特定の建築請負会社によるもので、当該建築請負会社以外で建てた場合、同様のものが同価格で建てられるとは限りません。また建築請負会社を特定するものではありません。
※建築条件付き土地とは、その土地に建築する建物の建築請負契約が、一定期間内に成立することを条件として売買される土地のことをいいます。建築請負契約成立に向けて設計プランを協議するため、土地購入者が自己の希望する建物の設計協議をするために必要な相当の期間の交渉期間が設定され、その期間内で希望を満たすプランが実現できたかどうかにより結論を出します。なお、この期間は概ね3ヶ月程度とされています。納得のいくプランが出来ず、建築請負契約が成立しない場合、土地売買契約は白紙に戻り、土地契約にかかった代金(土地代金、手付金など)は名目のいかんに関わらず、全て返却されます。


































