NEW一戸建て東小保方町(国定駅) 2290万円~2390万円の詳細情報
2290万円~2390万円
月々のローン返済額を試算この物件は未完成のため、掲載写真(外観、内観、設備等)には、施工例が含まれている場合があります。物件詳細については、掲載の不動産会社宛にお問合せください。
『トトハウス管理物件』すぐご案内できます♪ご来場ご成約のW特典付
外観・室内・設備(2枚)
その他(19枚)

構造・工法・仕様
地震に強い、構造用面材を使った工法です。地震等による外力を壁面全体で受け止め、住まい全体の耐久性を高めている筋交いを使用する従来工法より、機密性が高いのが特長です。また、筋交いがない分、断熱材を隙間なく施工しやすく、断熱性能にもプラスの効果が期待できます。壁の外側は全ての面へ構造用面材を施工し、耐力壁が必要な部分に関しては壁の内側にも構造用面材を使用します。

構造・工法・仕様
新築の住宅において、基礎着工前に地盤調査会社による地盤調査を行っています。調査結果を元に、必要に応じた、地盤補強等を実施し、不同沈下しないよう対策をとっております。万が一不同沈下による損害があった場合でも地盤調査会社による保証があるため安心です。

構造・工法・仕様
「鉄筋入りコンクリートベタ基礎」を標準採用。ベタ基礎は地面全体を基礎で覆うため、建物の荷重を分散して地面に伝えることができ、不動沈下に対する耐久性や耐震性を向上することができます。又、床下全面がコンクリートになるので防湿対策にもなります。

構造・工法・仕様
構造材をつなぎとめる接合部には「耐震金物」を採用。基礎・土台・柱など接合部ごとに適材適所な耐震金具を選び、構造体をしっかりと緊結します。こうした表からは見えない部分にこだわることで、地震による揺れから建物のゆがみや倒壊を防ぎ、住まい全体の耐久性を高めています。

構造・工法・仕様
一建設の住まいでは、1階と2階の床に「剛床工法」を選びました。これは構造用面材を土台と梁に直接留めつける工法で、床をひとつの面として家全体を一体化することで、横からの力にも非常に強い構造となります。家屋のねじれを防止し、耐震性に優れた効果を発揮します。
物件概要
| 物件名 | 東小保方町(国定駅) 2290万円~2390万円 | ||||
|---|---|---|---|---|---|
| 所在地 | 群馬県伊勢崎市東小保方町 | ||||
| 交通 |
JR両毛線「国定」歩42分 東武伊勢崎線「新伊勢崎」歩67分 東武伊勢崎線「剛志」歩66分 | ||||
| 構造および階数 | 地上2階 木造 | 建ぺい率・容積率 | 建蔽率60% 容積率200% | ||
| 完成予定日 | 2026年4月予定 | 入居可能予定日 | 2026年4月下旬予定 | ||
| 土地権利 | 所有権 | ||||
| 駐車場 | - | 国土法届出 | - | ||
| 地目 | 宅地 | 道路付け | 道路幅:4.5m~4.9m、アスファルト舗装 | ||
| 機構融資 | - | 取引態様 | 仲介 | ||
| 用途地域 | 1種住居 | ||||
| 施工会社 | - | ||||
| 建築確認番号 | 6号棟:第R07SHC111157号5号棟:第R07SHC111156… | ||||
| 設備 | 長期優良住宅認定通知書 / 設計住宅性能評価書 / 建設住宅性能評価書(新築時) / 駐車3台以上可 / 2沿線以上利用可 / 土地50坪以上 / 南向き / システムキッチン / 浴室乾燥機 / 陽当り良好 / 全居室収納 / LDK15畳以上 / 和室 / 庭 / シャワー付洗面化粧台 / 対面式キッチン / トイレ2ヶ所 / 浴室1坪以上 / 2階建 / 南面バルコニー / 複層ガラス / 温水洗浄便座 / 南庭 / 床下収納 / 浴室に窓 / TVモニタ付インターホン / ウォークインクローゼット / シューズインクローク / 小学校 徒歩10分以内 | ||||
| その他制限事項 | - | ||||
| 備考 | 担当者:佐藤祐太、設備:公営水道 個別浄化槽 個別LPG、建築確認番号:6号棟:第R07SHC111157号5号棟:第R07SHC111156… | ||||
情報更新日:2026/02/02 次回更新予定日:2026/2/10
販売概要
| 販売価格 | 2290万円~2390万円 お問い合わせはこちら | ||||
|---|---|---|---|---|---|
| 販売スケジュール | - | ||||
| 販売戸数/総戸数 | 3戸/7戸 | ||||
| 最多価格帯 | 2200万円台(2戸) | ||||
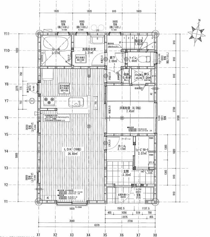
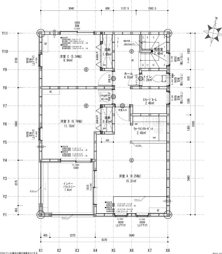
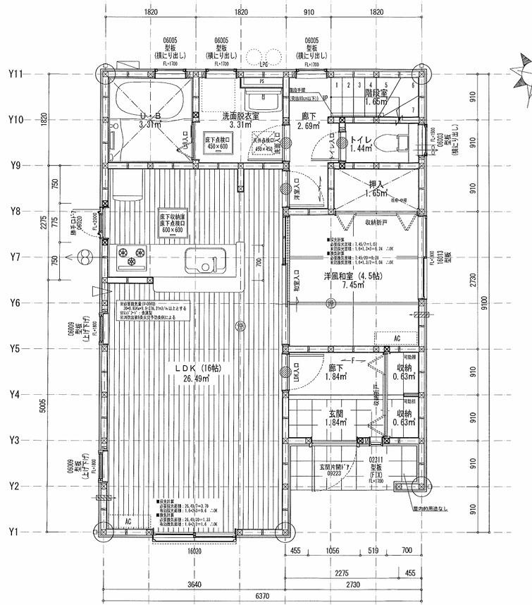
| 間取り | 3LDK~4LDK | ||||
| 建物面積 | 105.57㎡~113.44㎡(31.93坪~34.31坪)(登記) | 土地面積 | 173.87㎡~178.6㎡(52.59坪~54.02坪)(登記) | ||
| その他施設費用、償却費 | - | ||||
| その他費用 | - | ||||
| 登録受付 | - | 抽選日 | - | ||
| モデルルーム情報 | 現地見学会(事前に必ずお問い合わせください)日程/公開中時間/8:00~21:00◆◇ご来場者特典◇◆SUUMOからお問い合わせで物件の現地にご来場またはご来店くださったお客様にギフト券3000円分をプレゼントいたします。※一家族様1つまで。※住宅をお探しの方でアンケート記入いただいた方のみ対象です。◆◇トト限定!ご成約者特典◇◆当社取扱の該当物件をご成約いただいた方に、えらべ~る家電をプレゼントいたします。※該当物件のご詳細はスタッフまでお問い合わせください。※水曜日や長期休みは売主様が休みの場合があるため、鍵の手配ができず物件内覧ができない場合がございます。水曜日に内覧希望の方は、前日の18時までにご予約をお願いします。◆住宅ローン相談会◆住宅購入に関わるお金の問題について、ファイナンシャルプランナー資格者が秘密厳守でご相談をお受けします。・いくらまでの家なら自分は無理なく購入できるの?・車のローンがあるけど大丈夫?・自営業だけど‥転職したばかりだけど・・・などなど資金計画、ローンの進め方等気になるお金の事もしっかりご説明させていただきます。お気軽にご相談下さい!◆オンライン見学会◆物件・店舗へ行かなくてもOK!スマートフォンやタブレットを使用し、ビデオ通話で資料や映像を見ながら営業担当者とご相談頂けます。遠方に居住中で中々現地に足を運べない方にもおススメです!自宅にいながら物件見学をすることもできますので、ぜひお気軽にご活用ください♪前日までに営業担当までオンライン接客を希望する旨をお伝えください。「ご利用可能環境」事前にZoomもしくはLINEアプリのダウンロードが必要になります。カメラ、マイク、スピーカーが付いたパソコン・タブレット・スマー | ||||
| 取引条件有効期限 | 2026年2月5日 | ||||
会社情報
| お問い合わせ先 |
トトハウス(株) 0120-671010(無料通話) 上記の電話番号にお問合せください。(携帯・PHS 可) 【物件番号】20108355 | ||||
|---|---|---|---|---|---|
| 会社概要 |
トトハウス(株)[群馬県知事(1)第008073号] 群馬県伊勢崎市昭和町1854-8 【所属団体】 群馬県知事(1)第008073号(一社)群馬県宅地建物取引業協会会員 (公社)首都圏不動産公正取引協議会加盟 | ||||
この物件の地図・周辺環境
このアイコンは物件のおおよその位置を表しており、実際の場所と異なる場合がございます。詳しくは不動産会社に直接ご確認ください。
※地図上に表示される物件の位置は付近住所に所在することを表すものであり、実際の物件所在地とは異なる場合がございます。
※地図の更新タイミングの関係で、物件情報が実際のものとは異なる場合や最新情報に更新されていない場合がございます。
※以下の南西諸島及び離島においては、表示される物件の位置が実際のものとは数百メートル程度ずれる場合がございます。
東京都:硫黄島・青ヶ島、沖縄県: 北大東島・南大東島・多良間島・水納島・与那国島・宮古諸島・石垣島・竹富島
取り扱い不動産会社
- 電話番号
- 0120-671010
- 受付
- 営業時間:8:00~21:00 / 定休日:年中無休
- 物件番号
- 20108355
住宅ローンシミュレーション
住宅ローン設定
物件価格
返済期間
頭金
ボーナス払(年1回)
※
※物件価格の80%以下でお借入れの場合
※50歳以下で一般団信をご選択の場合
※住宅ローン金利優遇割適用後の変動金利(全期間引き下げプラン)
※実際のお借入日の金利により変動します。
※審査の結果によっては保証付金利プランとなる場合があり、この場合は上記とは異なる金利となります。
※別途借入金額の2.20%(税込)の事務手数料が発生します。
ボーナス払 | 35年間返済 | 30年間返済 | 25年間返済 | 20年間返済 | 15年間返済 | 10年間返済 |
|---|---|---|---|---|---|---|
0万円 | -円/月 | -円/月 | -円/月 | -円/月 | -円/月 | -円/月 |
5万円 | -円/月 | -円/月 | -円/月 | -円/月 | -円/月 | -円/月 |
10万円 | -円/月 | -円/月 | -円/月 | -円/月 | -円/月 | -円/月 |
15万円 | -円/月 | -円/月 | -円/月 | -円/月 | -円/月 | -円/月 |
20万円 | -円/月 | -円/月 | -円/月 | -円/月 | -円/月 | -円/月 |
25万円 | -円/月 | -円/月 | -円/月 | -円/月 | -円/月 | -円/月 |
30万円 | -円/月 | -円/月 | -円/月 | -円/月 | -円/月 | -円/月 |
ボーナス払 | 35年間返済 | 30年間返済 | 25年間返済 | 20年間返済 | 15年間返済 | 10年間返済 |
|---|---|---|---|---|---|---|
0万円 | -円/月 | -円/月 | -円/月 | -円/月 | -円/月 | -円/月 |
5万円 | -円/月 | -円/月 | -円/月 | -円/月 | -円/月 | -円/月 |
10万円 | -円/月 | -円/月 | -円/月 | -円/月 | -円/月 | -円/月 |
15万円 | -円/月 | -円/月 | -円/月 | -円/月 | -円/月 | -円/月 |
20万円 | -円/月 | -円/月 | -円/月 | -円/月 | -円/月 | -円/月 |
25万円 | -円/月 | -円/月 | -円/月 | -円/月 | -円/月 | -円/月 |
30万円 | -円/月 | -円/月 | -円/月 | -円/月 | -円/月 | -円/月 |
- ・金利は、今後35年間変動しない仮定のもと元利均等返済方式で計算しております。
- ・実際の金利は、各金融機関のホームページをご参照ください。
- ・ローン契約の際には、手数料や印紙税などの諸費用が別途かかります。
- ・ボーナス支払総額が総支払額の50%を超えている場合、上記の表では「ローン不可」となります。
- ・シミュレーションを利用し、それが原因で利用者が受けたいかなる損害についても当社は一切責任を負いません。あらかじめご了承ください。
※価格は物件の代金総額を表示しており、消費税が課税される場合は税込み価格です。 (1000円未満は切り上げ。)
※写真に写っている、またはパース(絵)や間取り図に描かれている家具や車などは、特にコメントがない場合、販売価格に含まれません。
※敷地権利が定期借地権のものは価格に権利金を含みます。
※建築条件付き土地価格には、建物価格は含まれません。
※物件情報は、原則として情報提供日の2日前に最終確認した情報です。
※完成予想図はいずれも外構、植栽、外観等実際のものとは多少異なることがあります。
※モデルルーム・モデルハウス・展示場・ショールームの画像の場合、今回販売の物件と異なる場合があります。
※CG合成の画像の場合、実際とは多少異なる場合があります。
※物件特徴:販売戸数が複数の物件は、全ての住戸に該当しない項目もあります。
※0800で始まる電話番号は通話料無料です。また、サービス検証のため当該番号の利用履歴を個人が特定できない範囲で取得しています。予めご了承ください。
※完成後1年以上を経過した未入居物件が掲載される場合があります。ご了承ください。
※新着:物件情報が「SUUMO」に掲載された日から1週間表示されます。
※価格更新:物件価格が変更された日から1週間表示されます。
※販売予定物件はすべて、販売開始するまで契約または予約の申込みはできません。
※購入の前には物件内容や契約条件についてご自身で十分な確認をしていただくようにお願いいたします。
※建築条件土地の情報内に掲載されている、建物プラン例は、土地購入者の設計プランの参考の一例であって、プランの採用可否は任意です。
※土地(建築条件なし)で「建物プラン例」が表記してある時、そのプラン例は特定の建築請負会社によるもので、当該建築請負会社以外で建てた場合、同様のものが同価格で建てられるとは限りません。また建築請負会社を特定するものではありません。
※建築条件付き土地とは、その土地に建築する建物の建築請負契約が、一定期間内に成立することを条件として売買される土地のことをいいます。建築請負契約成立に向けて設計プランを協議するため、土地購入者が自己の希望する建物の設計協議をするために必要な相当の期間の交渉期間が設定され、その期間内で希望を満たすプランが実現できたかどうかにより結論を出します。なお、この期間は概ね3ヶ月程度とされています。納得のいくプランが出来ず、建築請負契約が成立しない場合、土地売買契約は白紙に戻り、土地契約にかかった代金(土地代金、手付金など)は名目のいかんに関わらず、全て返却されます。
















