NEW新築売戸建住宅山形県西置賜郡飯豊町大字萩生の新築売戸建住宅の詳細情報
この物件は未完成のため、掲載写真(外観、内観、設備等)には、施工例が含まれている場合があります。物件詳細については、掲載の不動産会社宛にお問合せください。
掲載期限まであと13日
物件概要
| 物件名 | 山形県西置賜郡飯豊町大字萩生の新築売戸建住宅 | ||||
|---|---|---|---|---|---|
| 所在地 | 山形県西置賜郡飯豊町大字萩生 | ||||
| 交通 |
JR米坂線 「萩生」駅 徒歩17分 | ||||
| 構造および階数 | 木造・2階建 | 建ぺい率・容積率 | - | ||
| 完成予定日 | 2026年03月 | 入居可能予定日 | - | ||
| 土地権利 | 所有権 | ||||
| 駐車場 | 有 | 国土法届出 | - | ||
| 私道負担・道路 | - | 道路付け | 南 8.3m 公道 接面15.1m東 5.9m 公道 接面16.3m | ||
| 地目 | 宅地 | 都市計画 | 区域外 | ||
| 取引態様 | 媒介 | 用途地域 | - | ||
| 施工会社 | - | ||||
| 建築確認番号 | 第R06ASC-10014号 | ||||
| 設備 | 給湯・追焚機能・フローリング・Wクロゼット・シャンプードレッサー・ウォシュレット・システムキッチン・カウンターキッチン・モニタ付インターホン・IHクッキングヒータ・複層ガラス・電気・上水道・下水道・省エネ給湯器 | ||||
| 備考 | 自然素材の家Bio「飯豊町萩生」●堆雪場確保+排雪安心な官地水路接面●駐車場4台東南角地+「自然素材」の高断熱気密新築住宅!●お客様が決り次第、着工開始となります・自然素材の家Bio「飯豊町萩生」東南角地+「自然素材」の高断熱気密新築住宅!堆雪場確保+排雪安心な官地水路接面 ☆駐車場4台・仲介手数料:売買代金の3.3%+66,000円 | ||||
情報更新日:2025/11/27 次回更新予定日:情報更新日より14日以内
販売概要
| 販売価格 | 2,970万円 お問い合わせはこちら | ||||
|---|---|---|---|---|---|
| 販売戸数/総戸数 | -/- | ||||
| 最多価格帯 | - | ||||
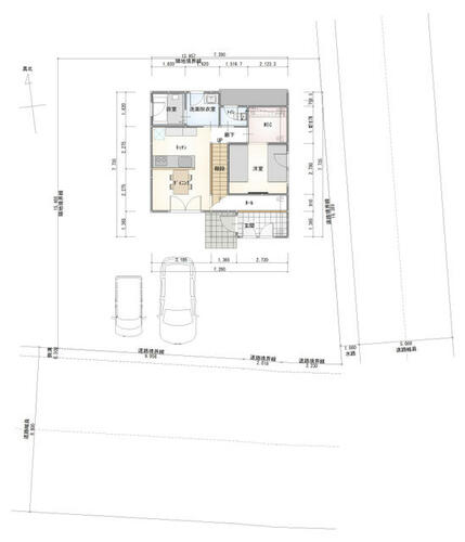
| 間取り | 2LDK | ||||
| 建物面積 | 72.19㎡ | 土地面積 | 231.86㎡ | ||
| その他施設費用、償却費 | - / - | ||||
| その他費用 | - | ||||
会社情報
| お問い合わせ先 |
ならびや不動産 023-607-3244 上記の電話番号にお問合せください。(携帯・PHS 可) 【物件番号】6988531758 | ||||
|---|---|---|---|---|---|
| 会社概要 |
ならびや不動産[山形県知事免許(2)第2565号] 山形県山形市銅町2丁目10-28 【所属団体】 (公社)山形県宅地建物取引業協会、東北地区不動産公正取引協議会 | ||||
この物件の地図・周辺環境
このアイコンは物件のおおよその位置を表しており、実際の場所と異なる場合がございます。詳しくは不動産会社に直接ご確認ください。
取り扱い不動産会社
- 電話番号
- 023-607-3244
- 営業時間
- 10:00~18:00
- 定休日
- 水曜、日曜、祝日
- 物件番号
- 6988531758
掲載期限まであと13日
西置賜郡飯豊町の駅から新築一戸建てを探す
住宅ローンシミュレーション
住宅ローン設定
物件価格
返済期間
頭金
ボーナス払(年1回)
※
※物件価格の80%以下でお借入れの場合
※50歳以下で一般団信をご選択の場合
※住宅ローン金利優遇割適用後の変動金利(全期間引き下げプラン)
※実際のお借入日の金利により変動します。
※審査の結果によっては保証付金利プランとなる場合があり、この場合は上記とは異なる金利となります。
※別途借入金額の2.20%(税込)の事務手数料が発生します。
ボーナス払 | 35年間返済 | 30年間返済 | 25年間返済 | 20年間返済 | 15年間返済 | 10年間返済 |
|---|---|---|---|---|---|---|
0万円 | -円/月 | -円/月 | -円/月 | -円/月 | -円/月 | -円/月 |
5万円 | -円/月 | -円/月 | -円/月 | -円/月 | -円/月 | -円/月 |
10万円 | -円/月 | -円/月 | -円/月 | -円/月 | -円/月 | -円/月 |
15万円 | -円/月 | -円/月 | -円/月 | -円/月 | -円/月 | -円/月 |
20万円 | -円/月 | -円/月 | -円/月 | -円/月 | -円/月 | -円/月 |
25万円 | -円/月 | -円/月 | -円/月 | -円/月 | -円/月 | -円/月 |
30万円 | -円/月 | -円/月 | -円/月 | -円/月 | -円/月 | -円/月 |
ボーナス払 | 35年間返済 | 30年間返済 | 25年間返済 | 20年間返済 | 15年間返済 | 10年間返済 |
|---|---|---|---|---|---|---|
0万円 | -円/月 | -円/月 | -円/月 | -円/月 | -円/月 | -円/月 |
5万円 | -円/月 | -円/月 | -円/月 | -円/月 | -円/月 | -円/月 |
10万円 | -円/月 | -円/月 | -円/月 | -円/月 | -円/月 | -円/月 |
15万円 | -円/月 | -円/月 | -円/月 | -円/月 | -円/月 | -円/月 |
20万円 | -円/月 | -円/月 | -円/月 | -円/月 | -円/月 | -円/月 |
25万円 | -円/月 | -円/月 | -円/月 | -円/月 | -円/月 | -円/月 |
30万円 | -円/月 | -円/月 | -円/月 | -円/月 | -円/月 | -円/月 |
- ・金利は、今後35年間変動しない仮定のもと元利均等返済方式で計算しております。
- ・実際の金利は、各金融機関のホームページをご参照ください。
- ・ローン契約の際には、手数料や印紙税などの諸費用が別途かかります。
- ・ボーナス支払総額が総支払額の50%を超えている場合、上記の表では「ローン不可」となります。
- ・シミュレーションを利用し、それが原因で利用者が受けたいかなる損害についても当社は一切責任を負いません。あらかじめご了承ください。



