一戸建て駅東1(酒田駅) 3030万円の詳細情報
3030万円
月々のローン返済額を試算快適な室温!夏は涼しい全館空調搭載住宅!Z空調!電気代も低コスト!
外観・室内・設備(10枚)
その他(11枚)
物件概要
| 物件名 | 駅東1(酒田駅) 3030万円 | ||||
|---|---|---|---|---|---|
| 所在地 | 山形県酒田市駅東1-11-12 | ||||
| 交通 |
JR羽越本線「酒田」歩9分 | ||||
| 構造および階数 | 木造2階建(軸組工法) | 建ぺい率・容積率 | 建ペい率:70%、容積率:200% | ||
| 完成予定日 | 2025年7月 | 入居可能予定日 | 契約後1ヶ月 | ||
| 土地権利 | 所有権 | ||||
| 駐車場 | - | 国土法届出 | - | ||
| 地目 | 宅地 | 道路付け | 道路幅:6m、アスファルト舗装 | ||
| 機構融資 | フラット35Sベーシック | 取引態様 | 仲介 | ||
| 用途地域 | 1種中高 | ||||
| 施工会社 | 株式会社ヒノキヤグループ | ||||
| 建築確認番号 | 第R06確認建築酒田市00090号 | ||||
| 設備 | BELS/省エネ基準適合認定書あり / フラット35・S適合証明書 / 省エネルギー対策 / フラット35Sに対応 / 高気密高断熱住宅 / 地盤調査済 / 駐車3台以上可 / 土地50坪以上 / 省エネ給湯器 / スーパー 徒歩10分以内 / 市街地が近い / システムキッチン / 陽当り良好 / 全居室収納 / 閑静な住宅地 / LDK15畳以上 / 前道6m以上 / シャワー付洗面化粧台 / 対面式キッチン / EV車充電設備 / 3面採光 / バリアフリー / トイレ2ヶ所 / 自然素材使用 / 浴室1坪以上 / 2階建 / 複層ガラス / オートバス / 温水洗浄便座 / 床下収納 / 浴室に窓 / TVモニタ付インターホン / 節水型トイレ / 通風良好 / 全居室フローリング / パントリー(食器・食品の収納庫) / ウォークインクローゼット / 全居室6畳以上 / IHクッキングヒーター / 全居室複層ガラスか複層サッシ / 小学校 徒歩10分以内 / 平坦地 / 開発分譲地内 / テラス / 区画整理地内 / 納戸 / オール電化 / スマートキー / 高機能トイレ | ||||
| その他制限事項 | - | ||||
| 備考 | 担当者:大沼俊之、設備:公営水道、本下水、オール電化、建築確認番号:第R06確認建築酒田市00090号 | ||||
情報更新日:2025/10/27 次回更新予定日:情報提供より8日以内
販売概要
| 販売価格 | 3030万円 お問い合わせはこちら | ||||
|---|---|---|---|---|---|
| 販売スケジュール | ◆スケジュールをご説明致します◆①買受申込書物件に納得して頂けましたら買受申込書を提出して頂きます。②銀行融資相談・仮審査申込み住宅ローンをご利用の場合、どの様な金利のローンにするのか、どの金融機関を使うのか打ち合わせさせて頂きます。そして仮審査の申込みを行います。③売買契約不動産の売買契約を行います。④住宅ローンの申込み仮審査結果を踏まえ金融機関に正式に住宅ローンを申し込みます。⑤物件の確認買主様、施工業者、不動産業者立会いのもと建物の不具合やキズのチェックを行い、施工業者より是正して頂きます。⑥金銭消費貸借契約銀行にて手続きを行います。⑦残金決済、所有権移転手続き銀行にて手続きを行い、お客様に所有権が移転します。※お問合せ頂いたお客様へしつこい勧誘のお電話をしたり、自宅を訪問する等は一切ございませんので、お気軽にお問合せください。 | ||||
| 販売戸数/総戸数 | 1戸/1戸 | ||||
| 最多価格帯 | - | ||||
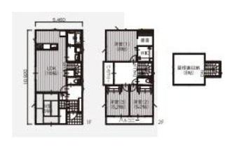
| 間取り | 4LDK | ||||
| 建物面積 | 109.3㎡(33.06坪) | 土地面積 | 187.45㎡(56.70坪) | ||
| その他施設費用、償却費 | - | ||||
| その他費用 | - | ||||
| 登録受付 | - | 抽選日 | - | ||
| モデルルーム情報 | 現地見学会(事前に必ずお問い合わせください)日程/毎週土日祝時間/10:00~16:00◆◇◆お問合せ・ご見学希望のお客様へ◆◇◆Z空調!体験して下さい!部屋毎の温度差によるストレスが全くありません!土日に限らず、平日もご案内・ご相談お受け致します。お仕事の合間やお仕事帰り、夜間でもご案内受付中です♪※お問合せ頂いたお客様へしつこい勧誘のお電話をしたり、 自宅を訪問する等は一切ございませんので、お気軽にお問合せください。…ご予約方法…1.慶愛不動産0237-85-0198までご連絡下さい。2.【見学予約】よりフォームをご入力下さい。なお前日、当日のお問い合わせにつきましてはお電話がスムーズです。3.他の物件もご見学ご希望の場合お電話にてお伝え下さい。弊社スタッフがご対応させて頂きます。4.物件所在地が分かりずらい場合お近くでお待ち合わせもしくは最寄り駅や商業施設までお迎えにあがります。◆◇◆住宅ローン・資金相談も随時受付中◆◇◆自己資金がない方、ローンやその他借入がある方など…夢のマイホーム購入に関するお客様の不安を一緒に解消致します! 「月々の返済額、ちゃんと支払っていけるのかな・・」「どのくらい借入ができるのだろう?」「金融機関はどこを利用するのがいいの?」住宅購入に関する悩みやご不安を弊社スタッフが、お客様の良きアドバイザー、パートナーとして親身になってご対応致します。アンケートのご記入をお願い致しますが、無理なくご記入できる範囲で構いません。今後の参考にさせて頂ければと思います。断っていただいても結構です。現在、Amazonギフト券、QUOカードがもらえるキャンペーン実施中です!ぜひこの機会に内覧のご予約をしてみませんか?お問合せをお待ちしております(^ω^)/ | ||||
| 取引条件有効期限 | 2025年12月31日 | ||||
会社情報
| お問い合わせ先 |
(株)慶愛不動産 0237-85-0198 上記の電話番号にお問合せください。(携帯・PHS 可) 【物件番号】77650947 | ||||
|---|---|---|---|---|---|
| 会社概要 |
(株)慶愛不動産[山形県知事(2)第002624号] 山形県寒河江市本町1-7-21 【所属団体】 山形県知事(2)第002624号(公社)山形県宅地建物取引業協会会員 東北地区不動産公正取引協議会加盟 | ||||
この物件の地図・周辺環境
このアイコンは物件のおおよその位置を表しており、実際の場所と異なる場合がございます。詳しくは不動産会社に直接ご確認ください。
※地図上に表示される物件の位置は付近住所に所在することを表すものであり、実際の物件所在地とは異なる場合がございます。
※地図の更新タイミングの関係で、物件情報が実際のものとは異なる場合や最新情報に更新されていない場合がございます。
※以下の南西諸島及び離島においては、表示される物件の位置が実際のものとは数百メートル程度ずれる場合がございます。
東京都:硫黄島・青ヶ島、沖縄県: 北大東島・南大東島・多良間島・水納島・与那国島・宮古諸島・石垣島・竹富島
取り扱い不動産会社
- 電話番号
- 0237-85-0198
- 受付
- 営業時間:9:00~18:00 / 定休日:不定休
- 物件番号
- 77650947
(株)不動産企画室土地屋
(株)ヒノキヤグループパパまるハウスカンパニー鶴岡営業所
酒田駅の口コミ
治安・安全
2.0
土地柄、治安はふつうかあまりよくないか程度なので、あまり期待できないと思います。強いていえば賃料が高めなので、比較的治安も安全も担保されます
住宅ローンシミュレーション
住宅ローン設定
物件価格
返済期間
頭金
ボーナス払(年1回)
※
※物件価格の80%以下でお借入れの場合
※50歳以下で一般団信をご選択の場合
※住宅ローン金利優遇割適用後の変動金利(全期間引き下げプラン)
※実際のお借入日の金利により変動します。
※審査の結果によっては保証付金利プランとなる場合があり、この場合は上記とは異なる金利となります。
※別途借入金額の2.20%(税込)の事務手数料が発生します。
ボーナス払 | 35年間返済 | 30年間返済 | 25年間返済 | 20年間返済 | 15年間返済 | 10年間返済 |
|---|---|---|---|---|---|---|
0万円 | -円/月 | -円/月 | -円/月 | -円/月 | -円/月 | -円/月 |
5万円 | -円/月 | -円/月 | -円/月 | -円/月 | -円/月 | -円/月 |
10万円 | -円/月 | -円/月 | -円/月 | -円/月 | -円/月 | -円/月 |
15万円 | -円/月 | -円/月 | -円/月 | -円/月 | -円/月 | -円/月 |
20万円 | -円/月 | -円/月 | -円/月 | -円/月 | -円/月 | -円/月 |
25万円 | -円/月 | -円/月 | -円/月 | -円/月 | -円/月 | -円/月 |
30万円 | -円/月 | -円/月 | -円/月 | -円/月 | -円/月 | -円/月 |
ボーナス払 | 35年間返済 | 30年間返済 | 25年間返済 | 20年間返済 | 15年間返済 | 10年間返済 |
|---|---|---|---|---|---|---|
0万円 | -円/月 | -円/月 | -円/月 | -円/月 | -円/月 | -円/月 |
5万円 | -円/月 | -円/月 | -円/月 | -円/月 | -円/月 | -円/月 |
10万円 | -円/月 | -円/月 | -円/月 | -円/月 | -円/月 | -円/月 |
15万円 | -円/月 | -円/月 | -円/月 | -円/月 | -円/月 | -円/月 |
20万円 | -円/月 | -円/月 | -円/月 | -円/月 | -円/月 | -円/月 |
25万円 | -円/月 | -円/月 | -円/月 | -円/月 | -円/月 | -円/月 |
30万円 | -円/月 | -円/月 | -円/月 | -円/月 | -円/月 | -円/月 |
- ・金利は、今後35年間変動しない仮定のもと元利均等返済方式で計算しております。
- ・実際の金利は、各金融機関のホームページをご参照ください。
- ・ローン契約の際には、手数料や印紙税などの諸費用が別途かかります。
- ・ボーナス支払総額が総支払額の50%を超えている場合、上記の表では「ローン不可」となります。
- ・シミュレーションを利用し、それが原因で利用者が受けたいかなる損害についても当社は一切責任を負いません。あらかじめご了承ください。
※価格は物件の代金総額を表示しており、消費税が課税される場合は税込み価格です。 (1000円未満は切り上げ。)
※写真に写っている、またはパース(絵)や間取り図に描かれている家具や車などは、特にコメントがない場合、販売価格に含まれません。
※敷地権利が定期借地権のものは価格に権利金を含みます。
※建築条件付き土地価格には、建物価格は含まれません。
※物件情報は、原則として情報提供日の2日前に最終確認した情報です。
※完成予想図はいずれも外構、植栽、外観等実際のものとは多少異なることがあります。
※モデルルーム・モデルハウス・展示場・ショールームの画像の場合、今回販売の物件と異なる場合があります。
※CG合成の画像の場合、実際とは多少異なる場合があります。
※物件特徴:販売戸数が複数の物件は、全ての住戸に該当しない項目もあります。
※0800で始まる電話番号は通話料無料です。また、サービス検証のため当該番号の利用履歴を個人が特定できない範囲で取得しています。予めご了承ください。
※完成後1年以上を経過した未入居物件が掲載される場合があります。ご了承ください。
※新着:物件情報が「SUUMO」に掲載された日から1週間表示されます。
※価格更新:物件価格が変更された日から1週間表示されます。
※販売予定物件はすべて、販売開始するまで契約または予約の申込みはできません。
※購入の前には物件内容や契約条件についてご自身で十分な確認をしていただくようにお願いいたします。
※建築条件土地の情報内に掲載されている、建物プラン例は、土地購入者の設計プランの参考の一例であって、プランの採用可否は任意です。
※土地(建築条件なし)で「建物プラン例」が表記してある時、そのプラン例は特定の建築請負会社によるもので、当該建築請負会社以外で建てた場合、同様のものが同価格で建てられるとは限りません。また建築請負会社を特定するものではありません。
※建築条件付き土地とは、その土地に建築する建物の建築請負契約が、一定期間内に成立することを条件として売買される土地のことをいいます。建築請負契約成立に向けて設計プランを協議するため、土地購入者が自己の希望する建物の設計協議をするために必要な相当の期間の交渉期間が設定され、その期間内で希望を満たすプランが実現できたかどうかにより結論を出します。なお、この期間は概ね3ヶ月程度とされています。納得のいくプランが出来ず、建築請負契約が成立しない場合、土地売買契約は白紙に戻り、土地契約にかかった代金(土地代金、手付金など)は名目のいかんに関わらず、全て返却されます。





















