新築マンションレ・ジェイド奈良三条通りの詳細情報
7,390万円~15,990万円
月々のローン返済額を試算三条通に12年ぶりの新築マンション誕生。※1ルーフバルコニーや専用駐車場など魅力的なプランが満載。全戸トランクルーム付きで収納に困らない生活を実現。
外観・室内・設備(21枚)

エントランスラウンジ完成予想CG
エントランスホールから続くラウンジスペースは、フロアに高低差をつけることで、落ち着いて過ごせる空間としての結界性を演出。ダウンライトと間接照明によるやわらかな光とともにやすらぎを満たします。

キッチンラウンジ完成予想CG
集会室を兼ねたキッチンラウンジには、気軽に腰かけられるビッグスツールや、ワークスペースとしても便利なカウンターデスクを配置。奥のキッチンエリアは、貸切や住民同士のパーティーにもご利用いただけます。

ガス温水式床暖房「ヌック」
ガス温水式床暖房「ヌック」と、ガス温水浴室暖房乾燥機+給湯延長保証との併用で、あっためトク料金から最大9%割引で、ランニングコストは1日あたり約135円となります。※メーカー参考写真
周辺環境・アクセス(11枚)
物件概要
| 物件名 | レ・ジェイド奈良三条通り | ||||
|---|---|---|---|---|---|
| 所在地 | 奈良県奈良市下三条町47番1、百万ヶ辻子町1番1、林小路町34番1 | ||||
| 交通 |
近鉄奈良線「近鉄奈良」駅 徒歩4分 JR関西本線「奈良」駅 徒歩7分 JR奈良線「奈良」駅 徒歩7分 | ||||
| 構造および階数 | 鉄筋コンクリート造・地上8階建て | 敷地面積 | 開発敷地面積:2,363.24㎡、建築確認対象敷地面積:2,152.98㎡ | ||
| 完成時期 | 2026年5月下旬予定 | 入居時期 | 2026年7月下旬予定 | ||
| 土地権利 | 所有権 | ||||
| 駐車場 | - | ||||
| 分譲後の権利形態 | 敷地及び建物共用部分は専有面積持分割合による所有権の共有、建物専有部分は区分所有権 | ||||
| 管理形態 | 区分所有者全員により管理組合を結成し、管理組合に委託、管理人の勤務形態:日勤管理予定 | ||||
| 取引態様 | 株式会社ジェイウィル(代理) | 用途地域 | 商業地域、第1種住居地域 | ||
| 建築確認番号 | 第ERI-24026008号(2024年10月15日付) | ||||
| 共有施設 | ■駐車場:機械式駐車場:10台、平面式駐車場:6台(月額使用料:11,500円~20,000円)■自転車置場:154台 使用料:200~400円■バイク置場:3台 使用料:2,000円■ミニバイク置場:4台 使用料:1,000円 | ||||
| 設備 | - | ||||
| 備考 |
【ポイント】 ※1 三条通沿いに供給される新築分譲マンションは12年ぶりとなります。(2024年9月時点MRC調べ) ----------------- 【TOP】 ※1.掲載の外観完成予想CGは、現地周辺写真(2024年5月撮影)に合成したもので、一部変更が生ずる場合があります。 | ||||
情報更新日:2025/10/24 次回更新予定日:2025/10/31
販売概要
| 販売価格 | 7,390万円~15,990万円 お問い合わせはこちら | ||||
|---|---|---|---|---|---|
| 販売スケジュール | 先着順 | ||||
| 販売戸数/総戸数 | 3戸/77戸(他に店舗1戸) | ||||
| 最多価格帯 | - | ||||
| 管理費 | 15,110円~21,610円(月額) | ||||
| 修繕積立金 | 11,340円~16,200円(月額) | 修繕積立基金 | 1,134,000円~1,620,000円(引渡時一括払い) | ||
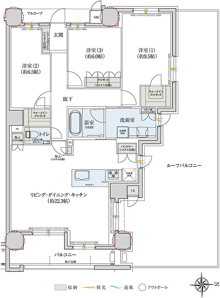
| 間取り | 2LDK~3LDK | ||||
| 専有面積 | 75.57㎡~108.03㎡(トランクルーム面積含む) | バルコニー面積 | 7.82㎡~9.52㎡ | ||
| その他面積 | ■ルーフバルコニー面積/56.45㎡ ■サービスバルコニー面積/1.01㎡ ■室外機置場面積/3.33㎡ ■アルコーブ面積/2.30㎡~3.72㎡ | ||||
| その他施設費用、償却費 | - | ||||
| その他費用 | 【保証金、敷金】:-、【その他費用】:■管理準備金(引渡時一括払い):30,230円~43,210円 ■ルーフバルコニー使用料(月額):2,820円 ■個別防犯費(月額):165円 ■インターネット使用料(月額):1,320円 | ||||
| 登録受付 | - | 抽選日 | - | ||
| 取引条件有効期限 | 取引条件有効期限:2025-10-31 | ||||
モデルルーム情報
| 営業時間 | 10:00~18:00 | 定休日 | 火・水曜日(祝日は除く) | ||
|---|---|---|---|---|---|
| 開催期間 | - | 登録受付 | - | ||
| 販売スケジュール | 先着順 | 抽選日 | - | ||
| モデルルーム所在地 | - | ||||
| お問い合わせ先 |
「レ・ジェイド奈良三条通り」マンションサロン 0037-619-15794(通話無料) お問合せ受付時間:営業時間/10:00~18:00、定休日/火・水曜日(祝日は除く) | ||||
会社情報
| 売主 | 株式会社エスコン | ||||
|---|---|---|---|---|---|
| お問い合わせ先 |
「レ・ジェイド奈良三条通り」マンションサロン 0037-619-15794(無料通話) 上記の電話番号にお問合せください。(携帯・PHS 可) ※光IP 電話、及びIP 電話からはご利用になれません 光IP電話、及びIP電話をご利用のお客様は以下へご連絡ください。 「レ・ジェイド奈良三条通り」マンションサロン TEL:0120-770-417 【物件番号】1600134-0000176 | ||||
| 管理会社 | 株式会社エスコンリビングサービス | ||||
| 施工会社 | スナダ建設 株式会社 | ||||
| 販売会社 | 株式会社ジェイウィル(代理) | ||||
| 情報提供元 |
株式会社エスコン 大阪本社[国土交通大臣(6)第6034号] 大阪府大阪市中央区伏見町4丁目1番1号 明治安田生命大阪御堂筋ビル13階 【所属団体】 (公社)首都圏不動産公正取引協議会、(一社)不動産協会 | ||||
この物件の地図・周辺環境
このアイコンは物件のおおよその位置を表しており、実際の場所と異なる場合がございます。詳しくは不動産会社に直接ご確認ください。
取り扱い不動産会社
「レ・ジェイド奈良三条通り」マンションサロン
- 電話番号
- 0120-770-417
- 営業時間
- 10:00~18:00
- 定休日
- 火・水曜日(祝日は除く)
- 物件番号
- 1600134-0000176
電話で問い合わせる(無料)お急ぎの方はこちらから!
物件お問い合わせ専用ダイヤル
受付:10:00~18:00(定休日:火・水曜日(祝日は除く)) 携帯・PHS可
※携帯・PHS可。光IP電話、及びIP電話からはご利用になれません。
近鉄奈良駅の口コミ
お買い物・飲食
4.0
特に不便さは感じませんが、強いて言えば帰宅時にさっと寄れるようなスーパーが駅の近くにあるともっと便利でした。
治安・安全
4.0
駅まではほとんど大通りを通るので、怖いと感じるところは少なかったです。駅前も明るく、危険を感じることはありませんでした。
住宅ローンシミュレーション
住宅ローン設定
物件価格
返済期間
頭金
ボーナス払(年1回)
※
※物件価格の80%以下でお借入れの場合
※50歳以下で一般団信をご選択の場合
※住宅ローン金利優遇割適用後の変動金利(全期間引き下げプラン)
※実際のお借入日の金利により変動します。
※審査の結果によっては保証付金利プランとなる場合があり、この場合は上記とは異なる金利となります。
※別途借入金額の2.20%(税込)の事務手数料が発生します。
ボーナス払 | 35年間返済 | 30年間返済 | 25年間返済 | 20年間返済 | 15年間返済 | 10年間返済 |
|---|---|---|---|---|---|---|
0万円 | -円/月 | -円/月 | -円/月 | -円/月 | -円/月 | -円/月 |
5万円 | -円/月 | -円/月 | -円/月 | -円/月 | -円/月 | -円/月 |
10万円 | -円/月 | -円/月 | -円/月 | -円/月 | -円/月 | -円/月 |
15万円 | -円/月 | -円/月 | -円/月 | -円/月 | -円/月 | -円/月 |
20万円 | -円/月 | -円/月 | -円/月 | -円/月 | -円/月 | -円/月 |
25万円 | -円/月 | -円/月 | -円/月 | -円/月 | -円/月 | -円/月 |
30万円 | -円/月 | -円/月 | -円/月 | -円/月 | -円/月 | -円/月 |
ボーナス払 | 35年間返済 | 30年間返済 | 25年間返済 | 20年間返済 | 15年間返済 | 10年間返済 |
|---|---|---|---|---|---|---|
0万円 | -円/月 | -円/月 | -円/月 | -円/月 | -円/月 | -円/月 |
5万円 | -円/月 | -円/月 | -円/月 | -円/月 | -円/月 | -円/月 |
10万円 | -円/月 | -円/月 | -円/月 | -円/月 | -円/月 | -円/月 |
15万円 | -円/月 | -円/月 | -円/月 | -円/月 | -円/月 | -円/月 |
20万円 | -円/月 | -円/月 | -円/月 | -円/月 | -円/月 | -円/月 |
25万円 | -円/月 | -円/月 | -円/月 | -円/月 | -円/月 | -円/月 |
30万円 | -円/月 | -円/月 | -円/月 | -円/月 | -円/月 | -円/月 |
- ・金利は、今後35年間変動しない仮定のもと元利均等返済方式で計算しております。
- ・実際の金利は、各金融機関のホームページをご参照ください。
- ・ローン契約の際には、手数料や印紙税などの諸費用が別途かかります。
- ・ボーナス支払総額が総支払額の50%を超えている場合、上記の表では「ローン不可」となります。
- ・シミュレーションを利用し、それが原因で利用者が受けたいかなる損害についても当社は一切責任を負いません。あらかじめご了承ください。






































