新築マンションポレスター堺の詳細情報
3,878万円 ~ 5,348万円
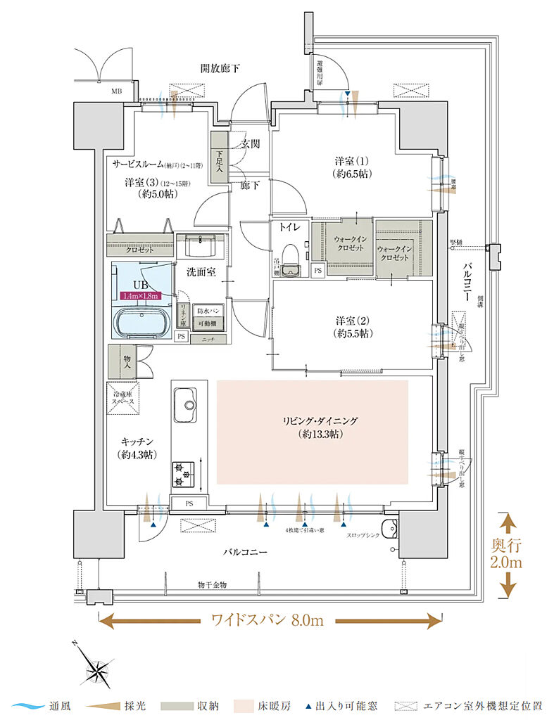
月々のローン返済額を試算開口7.6m以上のワイドスパン設計1フロア3邸 角住戸率66% スーパー徒歩5分 ドラッグストア徒歩3分
外観・室内・設備(21枚)

エントランスアプローチ完成予想図
住まわれるご家族を迎えるのは、心をやさしく解きほぐす癒しの空気に包まれたエントランス。ぬくもり豊かな壁の木調タイル、美しい模様と艶感を浮かべる床タイル、植栽と間接照明が織りなす幻想的な光景。

エントランスホール完成予想図
エントランスを抜けると、外と内を緩やかにつなぐサードプレイスとなるエントランスホールへ。繊細な陰影を描く縦格子の木調ルーバー、風合い豊かな石積み風の壁、窓に映る花木のみずみずしい彩り。

3口ガラストップコンロ
トロ火から強火まで火力調節幅が広めの3口コンロと、調理時間を短縮できる無水両面焼きグリルを採用。全口温度センサー付で安全にも配慮し、機能性と安全性を両立しました。※モデルルーム写真

整流板付レンジフード
レンジフードは高級感のあるステンレス製です。ホーローパネルの整流板が換気効率を高めるとともに、お手入れの負担を軽減します。※一部の住戸はサイド整流板付レンジフードとなります。※詳しくは設計図書をご確認ください。※参考写真

三面鏡裏収納
化粧品や洗面用具の収納にピッタリのスペース。ドライヤーフックや下から引き出せて使いやすいティッシュボックスの設置スペースやコンセントを設け、使い勝手の良さを高めています。※モデルルーム写真

食配ラボ
ネットスーパーボックスを利用して、提携した食材宅配会社やネットスーパーなどの「食品留め置きサービス※」をご利用いただけます。操作キーを発行された提携会社だけがお届けできるから安心。しかも美観を保ち、セキュリティレベルも下がりません。※お留守のときでも、宅配ロッカーに食品をお届けするサービスです。※サービス内容は状況により変更される場合があります。サービスに伴う利用料金は利用者の負担となります。
周辺環境・アクセス(11枚)
物件概要
| 物件名 | ポレスター堺 | ||||
|---|---|---|---|---|---|
| 所在地 | 大阪府堺市堺区大町東二丁11-1(地番) | ||||
| 交通 |
南海線「堺」駅 徒歩12分 南海高野線「堺東」駅 徒歩16分 阪堺電気軌道阪堺線「宿院」駅 徒歩3分 | ||||
| 構造および階数 | 鉄筋コンクリート造地上15階建 | 敷地面積 | 764.25㎡(建築確認対象面積763.11㎡) | ||
| 完成時期 | 完成済(2025年3月) | 入居時期 | 手続き完了後引き渡し可 | ||
| 土地権利 | 所有権 | ||||
| 駐車場 | - | ||||
| 分譲後の権利形態 | 敷地:総専有面積に対する各戸専有面積の割合に基づく共有 建物:〈専有部分〉区分所有〈共用部分〉総専有面積に対する各戸専有面積の割合に基づく共有 | ||||
| 管理形態 | 管理組合方式により、管理組合と管理会社の間で管理委託契約を締結していただきます。、管理人の勤務形態:日勤 | ||||
| 取引態様 | 株式会社住まいる不動産(代理) | 用途地域 | 商業地域 | ||
| 建築確認番号 | 第R04確認建築近確0003946号 令和5年7月21日付 | ||||
| 共有施設 | ■駐車場/23台、駐車料金(月額)/11,000円 ~ 24,000円■バイク置場/1台、バイク置場料金(月額)/3,000円■駐輪場/56台、駐輪場料金(月額)/300円 ~ 500円 | ||||
| 設備 | - | ||||
| 備考 | - | ||||
情報更新日:2025/11/06 次回更新予定日:2025/11/13
販売概要
| 販売価格 | 3,878万円 ~ 5,348万円 お問い合わせはこちら | ||||
|---|---|---|---|---|---|
| 販売スケジュール | 先着順申込受付中 | ||||
| 販売戸数/総戸数 | 7戸/42戸 | ||||
| 最多価格帯 | - | ||||
| 管理費 | 7,710円 ~ 9,050円(月額) | ||||
| 修繕積立金 | 6,430円 ~ 7,540円(月額) | 修繕積立基金 | 514,400円 ~ 603,200円(一時払) | ||
| 間取り | 3LDK、2LDK、2LDK+S | ||||
| 専有面積 | 64.24㎡ ~ 75.39㎡ | バルコニー面積 | 13.76㎡ ~ 34.54㎡ | ||
| その他面積 | サービスバルコニー面積/5.95㎡ | ||||
| その他施設費用、償却費 | ■インターネット料金(月額)/1,210円(うち消費税等(10%)110円) ■GMアソシエライフアップサービス料金(月額)/275円(うち消費税等(10%)25円) | ||||
| その他費用 | 【保証金、敷金】:-、【その他費用】:管理準備金(一時払):15,420円 ~ 18,100円 | ||||
| 登録受付 | - | 抽選日 | - | ||
| 取引条件有効期限 | 取引条件有効期限:2025-11-14 | ||||
モデルルーム情報
| 営業時間 | 10:00~19:00 | 定休日 | 火・水・木曜日 | ||
|---|---|---|---|---|---|
| 開催期間 | - | 登録受付 | - | ||
| 販売スケジュール | 先着順申込受付中 | 抽選日 | - | ||
| モデルルーム所在地 | - | ||||
| お問い合わせ先 |
ポレスター堺 0037-634-61902(通話無料) お問合せ受付時間:営業時間/10:00~19:00、定休日/火・水・木曜日 | ||||
会社情報
| 売主 | 株式会社マリモ | ||||
|---|---|---|---|---|---|
| お問い合わせ先 |
ポレスター堺 0037-634-61902(無料通話) 上記の電話番号にお問合せください。(携帯・PHS 可) ※光IP 電話、及びIP 電話からはご利用になれません 光IP電話、及びIP電話をご利用のお客様は以下へご連絡ください。 ポレスター堺 TEL:0120-375-315 【物件番号】1600300-0000359 | ||||
| 管理会社 | 株式会社GMアソシエ | ||||
| 施工会社 | 株式会社深阪工務店 | ||||
| 販売会社 | 株式会社住まいる不動産(代理) | ||||
| 情報提供元 |
株式会社マリモ[国土交通大臣(6)第6032号] 広島県広島市西区庚午北1丁目17-23 【所属団体】 (一社)全国住宅産業協会、中国地区不動産公正取引協議会、(公社)広島県宅地建物取引業協会、(公社)全国宅地建物取引業保証協会、(一社)広島県住宅産業協会、(一社)第二種金融商品取引業協会、(一社)日本投資顧問業協会 | ||||
この物件の地図・周辺環境
このアイコンは物件のおおよその位置を表しており、実際の場所と異なる場合がございます。詳しくは不動産会社に直接ご確認ください。
取り扱い不動産会社
ポレスター堺
- 電話番号
- 0120-375-315
- 営業時間
- 10:00~19:00
- 定休日
- 火・水・木曜日
- 物件番号
- 1600300-0000359
電話で問い合わせる(無料)お急ぎの方はこちらから!
物件お問い合わせ専用ダイヤル
受付:10:00~19:00(定休日:火・水・木曜日) 携帯・PHS可
※携帯・PHS可。光IP電話、及びIP電話からはご利用になれません。
堺駅の口コミ
自然環境
4.0
特にないが、もちろん田舎ではなく、古くから存在する住宅街なので、田舎と比べたら自然の充実度は相対的に低い。海までも自転車でならいけるが、徒歩圏内というほどではない。
お買い物・飲食
3.0
南口には小さなスーパーがあり便利。近所にはコンビニもローソンとファミリーマートがある。南口前には居酒屋が充実している。
住宅ローンシミュレーション
住宅ローン設定
物件価格
返済期間
頭金
ボーナス払(年1回)
※
※物件価格の80%以下でお借入れの場合
※50歳以下で一般団信をご選択の場合
※住宅ローン金利優遇割適用後の変動金利(全期間引き下げプラン)
※実際のお借入日の金利により変動します。
※審査の結果によっては保証付金利プランとなる場合があり、この場合は上記とは異なる金利となります。
※別途借入金額の2.20%(税込)の事務手数料が発生します。
ボーナス払 | 35年間返済 | 30年間返済 | 25年間返済 | 20年間返済 | 15年間返済 | 10年間返済 |
|---|---|---|---|---|---|---|
0万円 | -円/月 | -円/月 | -円/月 | -円/月 | -円/月 | -円/月 |
5万円 | -円/月 | -円/月 | -円/月 | -円/月 | -円/月 | -円/月 |
10万円 | -円/月 | -円/月 | -円/月 | -円/月 | -円/月 | -円/月 |
15万円 | -円/月 | -円/月 | -円/月 | -円/月 | -円/月 | -円/月 |
20万円 | -円/月 | -円/月 | -円/月 | -円/月 | -円/月 | -円/月 |
25万円 | -円/月 | -円/月 | -円/月 | -円/月 | -円/月 | -円/月 |
30万円 | -円/月 | -円/月 | -円/月 | -円/月 | -円/月 | -円/月 |
ボーナス払 | 35年間返済 | 30年間返済 | 25年間返済 | 20年間返済 | 15年間返済 | 10年間返済 |
|---|---|---|---|---|---|---|
0万円 | -円/月 | -円/月 | -円/月 | -円/月 | -円/月 | -円/月 |
5万円 | -円/月 | -円/月 | -円/月 | -円/月 | -円/月 | -円/月 |
10万円 | -円/月 | -円/月 | -円/月 | -円/月 | -円/月 | -円/月 |
15万円 | -円/月 | -円/月 | -円/月 | -円/月 | -円/月 | -円/月 |
20万円 | -円/月 | -円/月 | -円/月 | -円/月 | -円/月 | -円/月 |
25万円 | -円/月 | -円/月 | -円/月 | -円/月 | -円/月 | -円/月 |
30万円 | -円/月 | -円/月 | -円/月 | -円/月 | -円/月 | -円/月 |
- ・金利は、今後35年間変動しない仮定のもと元利均等返済方式で計算しております。
- ・実際の金利は、各金融機関のホームページをご参照ください。
- ・ローン契約の際には、手数料や印紙税などの諸費用が別途かかります。
- ・ボーナス支払総額が総支払額の50%を超えている場合、上記の表では「ローン不可」となります。
- ・シミュレーションを利用し、それが原因で利用者が受けたいかなる損害についても当社は一切責任を負いません。あらかじめご了承ください。


































