新築マンションルネ川口ユトリエ/予告広告の詳細情報
4,900万円台~7,900万円台※100万円単位(予定)(予告広告)
月々のローン返済額を試算
この広告は予告広告です。販売を開始するまでは、契約または予約(仮予約を含む)のお申込みには一切応じられませんのでご了承ください。
価格または販売方法が未定の場合は、新規分譲広告にて確定情報をお知らせします。
川口市最大の広さ※。73m2台4,900万円台~/100m2台7,300万円台~竣工後販売方式を採用徒歩4分の川口駅行き、徒歩1分の南鳩ケ谷駅行きバスが利用可能。平均4分に1本運行で快適アクセス。全南西向き住戸。敷地内駐車場完備でカーライフも快適、フラットなエリアだから自転車移動も快適。
外観・室内・設備(13枚)

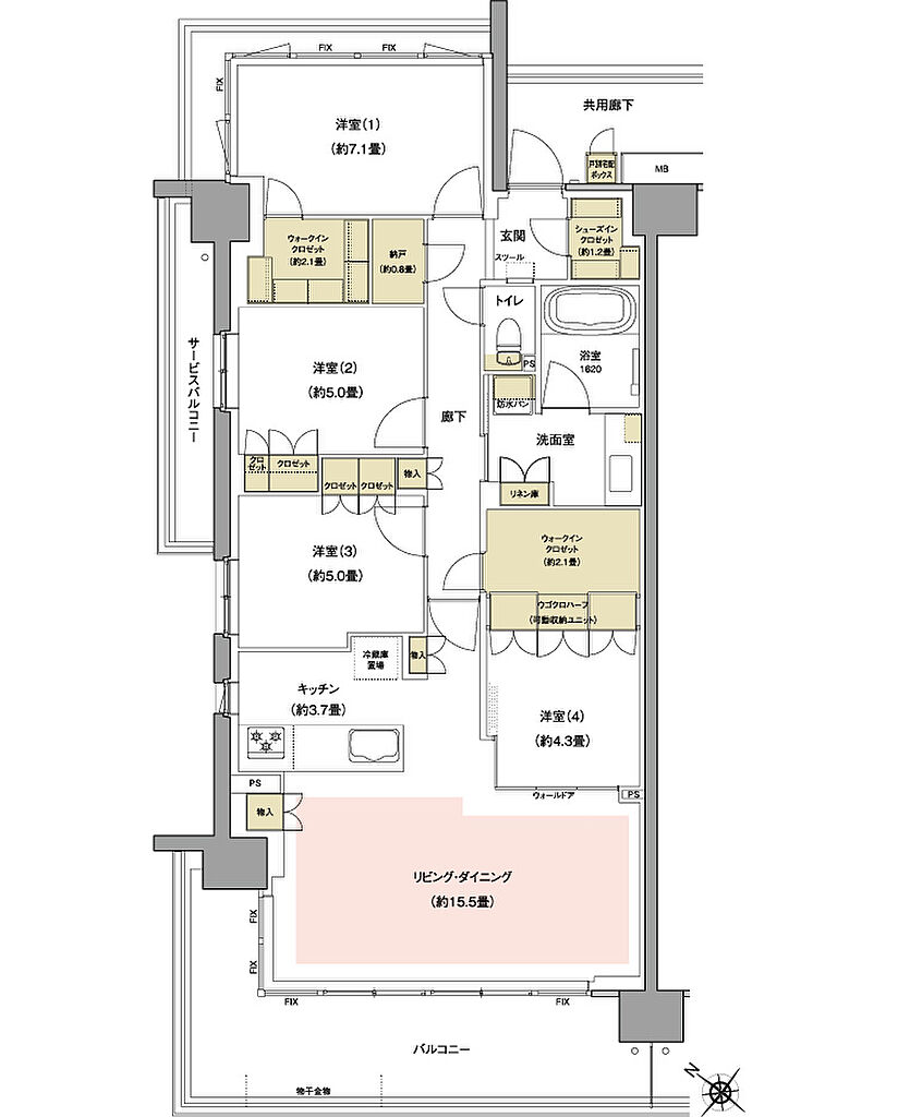
敷地配置イラスト
住まう方の快適な日常に寄り添う、充実の共用部&サービスを実現。2方道路の開放的な敷地に明るい全戸南西向きの配棟計画を実現。ゆとりあるランドプランを活かして豊富な植栽計画を導入し、緑の庭園を眺めるエントランスホールもご用意しています。
潤いの街並みにきらめく新たなランドマーク全戸南西向きの明るく開放的なレジデンス落ち着いた低層の住宅街を前面に見晴らす、地上7階建て、全68邸の重厚で存在感を漂わせる佇まい。心地よい光と開放感を享受する、永住のライフステージです。
カーライフを充実させる共用施設、快適な暮らしを育む多彩なサービス。車の利用により、さらに広がる快適な暮らしをサポートするため、敷地内に駐車場は全戸分確保し、平置き駐車場もご用意しました。さらに環境にやさしいEVカー用充電設備も設置しています。
周辺環境・アクセス(11枚)
物件概要
| 物件名 | ルネ川口ユトリエ/予告広告 | ||||
|---|---|---|---|---|---|
| 所在地 | 埼玉県川口市朝日6丁目303番8の一部(地番) | ||||
| 交通 |
JR京浜東北・根岸線「川口」駅 バス約18~20分、「朝日環境センター」バス停 徒歩4分 埼玉高速鉄道「南鳩ヶ谷」駅 徒歩15分 | ||||
| 構造および階数 | 鉄筋コンクリート造 地上7階建て | 敷地面積 | 3,110.48㎡ | ||
| 完成時期 | 2025年12月下旬予定 | 入居時期 | 2026年3月下旬予定 | ||
| 土地権利 | 所有権 | ||||
| 駐車場 | - | ||||
| 分譲後の権利形態 | 敷地及び建物共有部分は専有面積割合による所有権の共有、建物専有部分は区分所有 | ||||
| 管理形態 | 区分所有者全員により管理組合を結成し、管理会社に委託予定、管理人の勤務形態:日勤 | ||||
| 取引態様 | 株式会社長谷工アーベスト(代理) | 用途地域 | 第二種住居地域 第一種住居地域 | ||
| 建築確認番号 | 第UHEC建確R050915(令和6年3月25日)、第UHEC建確R050915変1号(計画変更)(令和7年1月20日) | ||||
| 共有施設 | ■駐車場:68台〔平置11台、機械式57台〕/月額使用料:未定■駐輪場:サイクルポート68区画/月額使用料:未定■バイク置場:6台/月額使用料:未定 | ||||
| 設備 | - | ||||
| 備考 |
【ポイント】 ※本プロジェクトは、2011年以降に供給された川口市の新築分譲マンションの中で、平均専有面積が最も広い物件となります。対象期間:2011年1月~2025年1月15日までのMRC調査・捕捉に基づく分譲マンションデータ データ資料:MRC・2025年2月号 作成2025.3.6(有)エム・アール・シー ●MRC入力ベースで1期・新規販売が2011年以降の物件のみ●表示物件数は本調査段階におけるMRC捕捉・入力済みの合計 【TOP画像】 ※1.掲載の外観完成予想CGは計画段階の図面を基に描き起こしたもので、実際とは異なります。外観の細部・設備機器・配管類及び電柱・架線・道路標識・周辺建物等は一部省略または簡略化しております。植栽は、実際に植樹する樹形、枝ぶり、葉や色合いとは異なる場合があり、特定の季節の状況を示すものではありません。また、竣工時には完成予想CG程度には成長しておりません。タイルや各部材等につきましては、実際と質感・色等の見え方が異なる可能性があります。また、今後変更になる場合があります。 ※2.掲載の情報は2025年4月時点のもので、今後変更になる場合がございます。 | ||||
情報更新日:2025/11/11 次回更新予定日:2025/11/25
販売概要
| 販売価格 | 4,900万円台~7,900万円台※100万円単位(予定)(予告広告) お問い合わせはこちら | ||||
|---|---|---|---|---|---|
| 販売スケジュール | 2025年11月中旬販売開始予定 | ||||
| 販売戸数/総戸数 | 未定/68戸 | ||||
| 予定最多価格帯 | 6,600万円台・6,700万円台(8戸)※100万円単位 | ||||
| 管理費 | 未定 | ||||
| 修繕積立金 | 未定 | 修繕積立基金 | 未定 | ||
| 間取り | 2LDK~4LDK | ||||
| 専有面積 | 73.11㎡~100.64㎡ | バルコニー面積 | 12.41㎡~17.84㎡ | ||
| その他面積 | サービスバルコニー面積/5.89㎡~9.43㎡ | ||||
| その他施設費用、償却費 | - | ||||
| その他費用 | 【保証金、敷金】:-、【その他費用】:管理準備金:未定 | ||||
| 登録受付 | - | 抽選日 | - | ||
| 取引条件有効期限 | - | ||||
モデルルーム情報
| 営業時間 | 10:00~18:00 | 定休日 | 水・木曜日(祝日除く) | ||
|---|---|---|---|---|---|
| 開催期間 | 2025年11月11日~ | 登録受付 | - | ||
| 販売スケジュール | 2025年11月中旬販売開始予定 | 抽選日 | - | ||
| モデルルーム所在地 | - | ||||
| お問い合わせ先 |
「長谷工アーベストお客様総合窓口」 0037-619-84659(通話無料) お問合せ受付時間:営業時間/10:00~18:00、定休日/水・木曜日(祝日除く) | ||||
会社情報
| 売主 | 総合地所株式会社 | ||||
|---|---|---|---|---|---|
| お問い合わせ先 |
「長谷工アーベストお客様総合窓口」 0037-619-84659(無料通話) 上記の電話番号にお問合せください。(携帯・PHS 可) ※光IP 電話、及びIP 電話からはご利用になれません 光IP電話、及びIP電話をご利用のお客様は以下へご連絡ください。 「長谷工アーベストお客様総合窓口」 TEL:0120-068-315 【物件番号】1600080-0000147 | ||||
| 管理会社 | 株式会社長谷工コミュニティ | ||||
| 施工会社 | 株式会社長谷工コーポレーション | ||||
| 販売会社 | 株式会社長谷工アーベスト(代理) | ||||
| 情報提供元 |
総合地所株式会社[国土交通大臣(5)第6814号] 東京都港区東京都港区芝 2-31-19 バンザイビル4階 【所属団体】 (公社)首都圏不動産公正取引協議会、(一社)不動産協会 | ||||
この物件の地図・周辺環境
このアイコンは物件のおおよその位置を表しており、実際の場所と異なる場合がございます。詳しくは不動産会社に直接ご確認ください。
取り扱い不動産会社
「長谷工アーベストお客様総合窓口」
- 電話番号
- 0120-068-315
- 営業時間
- 10:00~18:00
- 定休日
- 水・木曜日(祝日除く)
- 物件番号
- 1600080-0000147
総合地所
電話で問い合わせる(無料)お急ぎの方はこちらから!
物件お問い合わせ専用ダイヤル
受付:10:00~18:00(定休日:水・木曜日(祝日除く)) 携帯・PHS可
※携帯・PHS可。光IP電話、及びIP電話からはご利用になれません。
川口駅の口コミ
治安・安全
3.0
私は男性でしたので気になりませんでしたが、川口駅付近は深夜になると若者、酔っ払いが多く女性は嫌かもしれません。しかし近くに住む友人なども含め危険な目に遭った、という話は聞いてことはありません。
自然環境
3.0
場所柄、自転車の数が尋常ではありませんでした。当然歩道を暴走する輩も多く、小さい子供といる時は必ず手を繋がなければ危険でした。
住宅ローンシミュレーション
住宅ローン設定
物件価格
返済期間
頭金
ボーナス払(年1回)
※
※物件価格の80%以下でお借入れの場合
※50歳以下で一般団信をご選択の場合
※住宅ローン金利優遇割適用後の変動金利(全期間引き下げプラン)
※実際のお借入日の金利により変動します。
※審査の結果によっては保証付金利プランとなる場合があり、この場合は上記とは異なる金利となります。
※別途借入金額の2.20%(税込)の事務手数料が発生します。
ボーナス払 | 35年間返済 | 30年間返済 | 25年間返済 | 20年間返済 | 15年間返済 | 10年間返済 |
|---|---|---|---|---|---|---|
0万円 | -円/月 | -円/月 | -円/月 | -円/月 | -円/月 | -円/月 |
5万円 | -円/月 | -円/月 | -円/月 | -円/月 | -円/月 | -円/月 |
10万円 | -円/月 | -円/月 | -円/月 | -円/月 | -円/月 | -円/月 |
15万円 | -円/月 | -円/月 | -円/月 | -円/月 | -円/月 | -円/月 |
20万円 | -円/月 | -円/月 | -円/月 | -円/月 | -円/月 | -円/月 |
25万円 | -円/月 | -円/月 | -円/月 | -円/月 | -円/月 | -円/月 |
30万円 | -円/月 | -円/月 | -円/月 | -円/月 | -円/月 | -円/月 |
ボーナス払 | 35年間返済 | 30年間返済 | 25年間返済 | 20年間返済 | 15年間返済 | 10年間返済 |
|---|---|---|---|---|---|---|
0万円 | -円/月 | -円/月 | -円/月 | -円/月 | -円/月 | -円/月 |
5万円 | -円/月 | -円/月 | -円/月 | -円/月 | -円/月 | -円/月 |
10万円 | -円/月 | -円/月 | -円/月 | -円/月 | -円/月 | -円/月 |
15万円 | -円/月 | -円/月 | -円/月 | -円/月 | -円/月 | -円/月 |
20万円 | -円/月 | -円/月 | -円/月 | -円/月 | -円/月 | -円/月 |
25万円 | -円/月 | -円/月 | -円/月 | -円/月 | -円/月 | -円/月 |
30万円 | -円/月 | -円/月 | -円/月 | -円/月 | -円/月 | -円/月 |
- ・金利は、今後35年間変動しない仮定のもと元利均等返済方式で計算しております。
- ・実際の金利は、各金融機関のホームページをご参照ください。
- ・ローン契約の際には、手数料や印紙税などの諸費用が別途かかります。
- ・ボーナス支払総額が総支払額の50%を超えている場合、上記の表では「ローン不可」となります。
- ・シミュレーションを利用し、それが原因で利用者が受けたいかなる損害についても当社は一切責任を負いません。あらかじめご了承ください。

































