新築マンションサーパス熊谷銀座レジデンス/予告広告の詳細情報
未定(予告広告)
月々のローン返済額を試算
この広告は予告広告です。販売を開始するまでは、契約または予約(仮予約を含む)のお申込みには一切応じられませんのでご了承ください。
価格または販売方法が未定の場合は、新規分譲広告にて確定情報をお知らせします。
熊谷銀座。その煌めきの中へ。The LIMITED KUMAGAYA GINZAJR高崎線、上越・北陸新幹線、秩父鉄道秩父本線「熊谷」駅まで徒歩6分(約460m)前48邸、3LDK・平均面積70m2超 全戸南向き
外観・室内・設備(12枚)
周辺環境・アクセス(11枚)
物件概要
| 物件名 | サーパス熊谷銀座レジデンス/予告広告 | ||||
|---|---|---|---|---|---|
| 所在地 | 埼玉県熊谷市銀座二丁目85番(地番) | ||||
| 交通 |
JR高崎線「熊谷」駅 徒歩6分 | ||||
| 構造および階数 | 鉄筋コンクリート造、地上13階建 | 敷地面積 | 897.54㎡ | ||
| 完成時期 | 2027年1月中旬(予定) | 入居時期 | 2027年3月下旬(予定) | ||
| 土地権利 | 所有権 | ||||
| 駐車場 | - | ||||
| 分譲後の権利形態 | 土地:専有面積割合による敷地権の共有、建物:専有部分:区分所有権、共用部分:専有面積割合による所有権の共有 | ||||
| 管理形態 | 区分所有者全員による管理組合を結成の上、管理会社に委託、管理人の勤務形態:通勤方式 | ||||
| 取引態様 | 株式会社大京(販売提携・媒介) | 用途地域 | 商業地域 | ||
| 建築確認番号 | 第ERI-24032824号(2024年12月12日)第ERI-25019399号(2025年8月6日)【計画変更】 | ||||
| 共有施設 | - | ||||
| 設備 | - | ||||
| 備考 |
[駐車場]総32区画(屋外機械式) 使用料(月額)/未定 本広告は、当物件の公式ホームページで行う予定です。掲載予定時期/2025年12月上旬 公式ホームページ/https://www.384.co.jp/kumagayaginza/ または「サーパス熊谷銀座レジデンス」で検索 【お詫びと訂正】 2025年6月27日~10月24日の期間で掲載していた販売予告概要において、竣工時期と入居時期を下記の内容で掲載しておりましたが、上記の通り変更になりました。 お詫びして訂正させていただきます。 <変更前> 竣工時期/2027年1月上旬(予定) 入居時期/2027年3月上旬(予定) 2025年6月27日~2025年10月24日の期間で掲載の販売予告概要において、販売時期を下記の内容で掲載しておりましたが上記の通り変更になりました。 お詫びして訂正させていただきます。 <変更前> 販売時期/2025年11月下旬予定 | ||||
情報更新日:2025/11/06 次回更新予定日:2025/11/13
販売概要
| 販売価格 | 未定(予告広告) お問い合わせはこちら | ||||
|---|---|---|---|---|---|
| 販売スケジュール | 2025年12月上旬予定 | ||||
| 販売戸数/総戸数 | 未定/48戸 (?般分譲対象?数47?)他事務所1? | ||||
| 予定最多価格帯 | 未定 | ||||
| 管理費 | 月額 (インターネットサービス保守管理費等を含む):未定 | ||||
| 修繕積立金 | 月額 未定 | 修繕積立基金 | 引渡時一括:未定 | ||
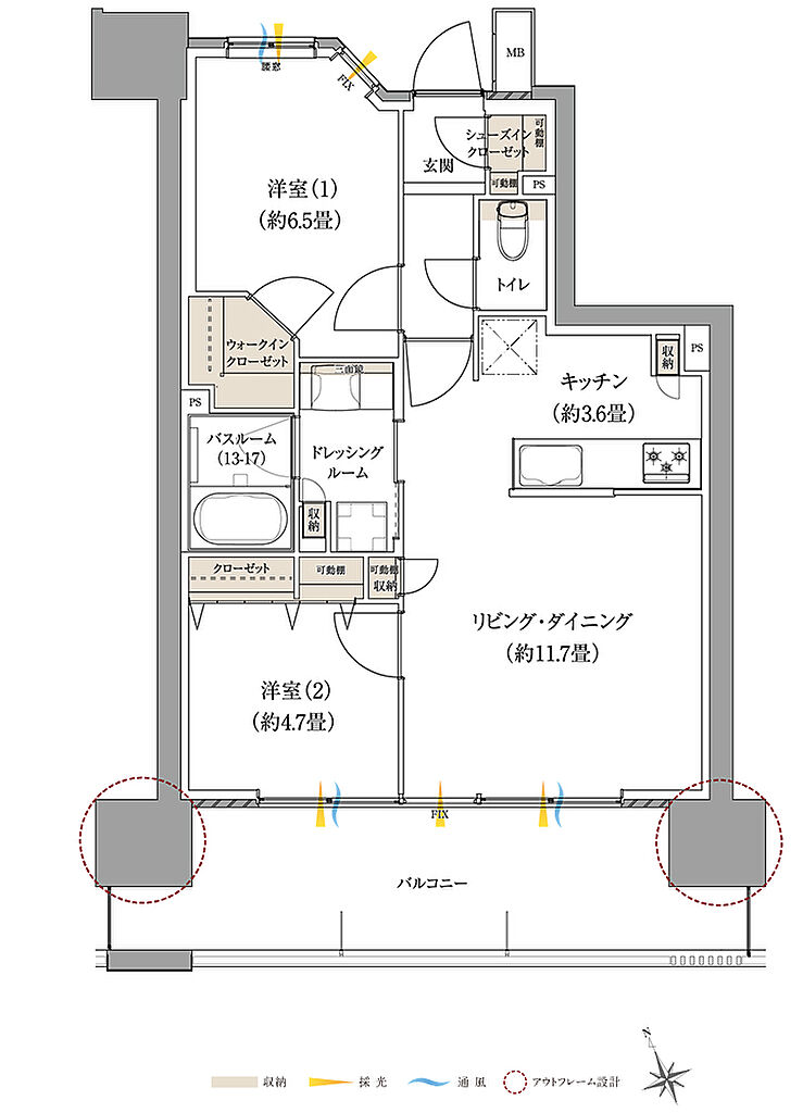
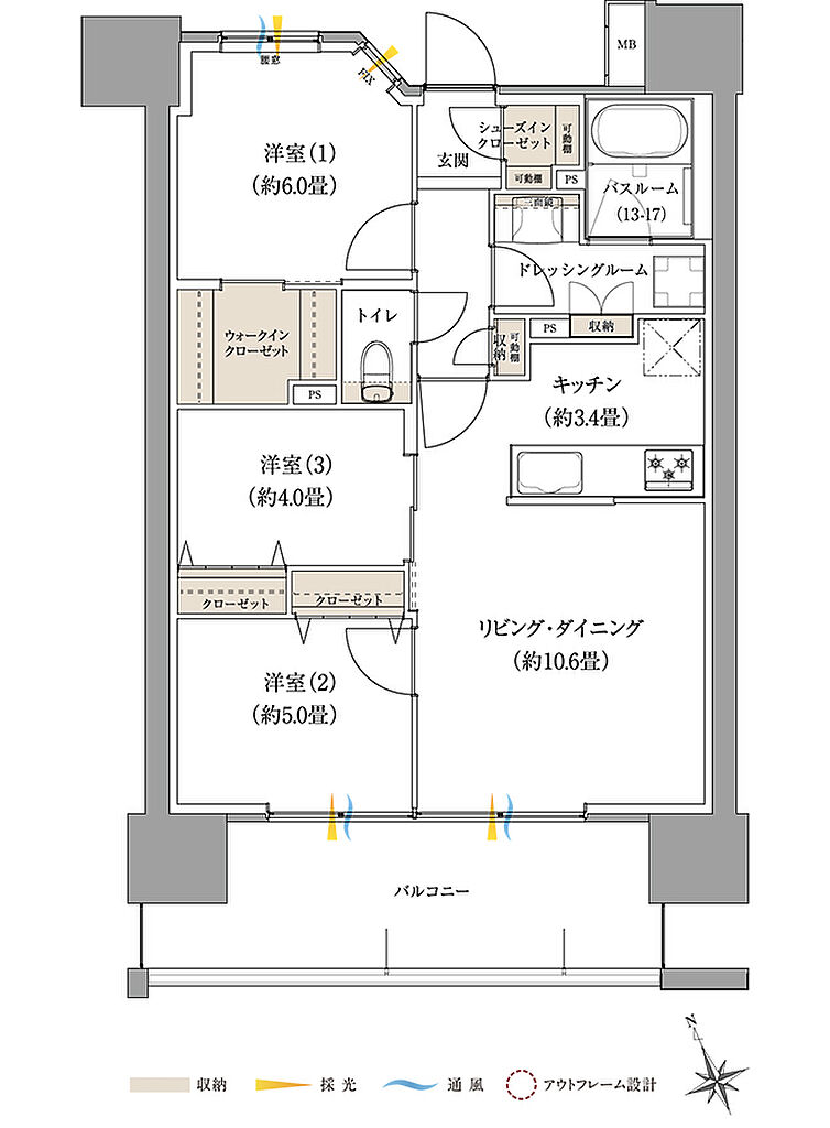
| 間取り | 2LDK・3LDK | ||||
| 専有面積 | 60.55㎡~81.22㎡ | バルコニー面積 | 13.06㎡~16.44㎡ | ||
| その他面積 | - | ||||
| その他施設費用、償却費 | - | ||||
| その他費用 | 【保証金、敷金】:- | ||||
| 登録受付 | - | 抽選日 | - | ||
| 取引条件有効期限 | - | ||||
モデルルーム情報
| 営業時間 | - | 定休日 | - | ||
|---|---|---|---|---|---|
| 開催期間 | - | 登録受付 | - | ||
| 販売スケジュール | 2025年12月上旬予定 | 抽選日 | - | ||
| モデルルーム所在地 | - | ||||
| お問い合わせ先 |
総合ご案内センター フリーダイヤル0120-384-215 0037-619-48644(通話無料) お問合せ受付時間:営業時間/-、定休日/- | ||||
会社情報
| 売主 | 株式会社穴吹工務店 東京支店 | ||||
|---|---|---|---|---|---|
| お問い合わせ先 |
総合ご案内センター フリーダイヤル0120-384-215 0037-619-48644(無料通話) 上記の電話番号にお問合せください。(携帯・PHS 可) ※光IP 電話、及びIP 電話からはご利用になれません 光IP電話、及びIP電話をご利用のお客様は以下へご連絡ください。 総合ご案内センター フリーダイヤル0120-384-215 TEL:0120-384-215 【物件番号】1600008-0000989 | ||||
| 管理会社 | - | ||||
| 施工会社 | 株式会社穴吹工務店 | ||||
| 販売会社 | 株式会社大京(販売提携・媒介) | ||||
| 情報提供元 |
株式会社穴吹工務店[国土交通大臣(14)第1545号] 香川県高松市藤塚町1-11-22 【所属団体】 (公社)首都圏不動産公正取引協議会 | ||||
この物件の地図・周辺環境
このアイコンは物件のおおよその位置を表しており、実際の場所と異なる場合がございます。詳しくは不動産会社に直接ご確認ください。
取り扱い不動産会社
総合ご案内センター フリーダイヤル0120-384-215
- 電話番号
- 0120-384-215
- 物件番号
- 1600008-0000989
電話で問い合わせる(無料)お急ぎの方はこちらから!
物件お問い合わせ専用ダイヤル
受付:- 携帯・PHS可
※携帯・PHS可。光IP電話、及びIP電話からはご利用になれません。
熊谷駅の口コミ
お買い物・飲食
5.0
駅直結で和洋中の飲食店があります。食事には不便がないです。アズ、ティアラ、ニットモール等も雨に濡れず買い物でき日常生活に困りません。
自然環境
3.0
荒川の土手沿いに咲く桜と菜の花は一見の価値があると思います。駅前に川があり星川通りとネーミングで整備されています。熊谷はラグビータウンと銘打つだけあって、3キロのところにある熊谷スポーツ文化公園や5キロのところにある熊谷さくら運動公園は充実して気持ちがいいです。
熊谷市の駅から新築マンションを探す
住宅ローンシミュレーション
住宅ローン設定
物件価格
返済期間
頭金
ボーナス払(年1回)
※
※物件価格の80%以下でお借入れの場合
※50歳以下で一般団信をご選択の場合
※住宅ローン金利優遇割適用後の変動金利(全期間引き下げプラン)
※実際のお借入日の金利により変動します。
※審査の結果によっては保証付金利プランとなる場合があり、この場合は上記とは異なる金利となります。
※別途借入金額の2.20%(税込)の事務手数料が発生します。
ボーナス払 | 35年間返済 | 30年間返済 | 25年間返済 | 20年間返済 | 15年間返済 | 10年間返済 |
|---|---|---|---|---|---|---|
0万円 | -円/月 | -円/月 | -円/月 | -円/月 | -円/月 | -円/月 |
5万円 | -円/月 | -円/月 | -円/月 | -円/月 | -円/月 | -円/月 |
10万円 | -円/月 | -円/月 | -円/月 | -円/月 | -円/月 | -円/月 |
15万円 | -円/月 | -円/月 | -円/月 | -円/月 | -円/月 | -円/月 |
20万円 | -円/月 | -円/月 | -円/月 | -円/月 | -円/月 | -円/月 |
25万円 | -円/月 | -円/月 | -円/月 | -円/月 | -円/月 | -円/月 |
30万円 | -円/月 | -円/月 | -円/月 | -円/月 | -円/月 | -円/月 |
ボーナス払 | 35年間返済 | 30年間返済 | 25年間返済 | 20年間返済 | 15年間返済 | 10年間返済 |
|---|---|---|---|---|---|---|
0万円 | -円/月 | -円/月 | -円/月 | -円/月 | -円/月 | -円/月 |
5万円 | -円/月 | -円/月 | -円/月 | -円/月 | -円/月 | -円/月 |
10万円 | -円/月 | -円/月 | -円/月 | -円/月 | -円/月 | -円/月 |
15万円 | -円/月 | -円/月 | -円/月 | -円/月 | -円/月 | -円/月 |
20万円 | -円/月 | -円/月 | -円/月 | -円/月 | -円/月 | -円/月 |
25万円 | -円/月 | -円/月 | -円/月 | -円/月 | -円/月 | -円/月 |
30万円 | -円/月 | -円/月 | -円/月 | -円/月 | -円/月 | -円/月 |
- ・金利は、今後35年間変動しない仮定のもと元利均等返済方式で計算しております。
- ・実際の金利は、各金融機関のホームページをご参照ください。
- ・ローン契約の際には、手数料や印紙税などの諸費用が別途かかります。
- ・ボーナス支払総額が総支払額の50%を超えている場合、上記の表では「ローン不可」となります。
- ・シミュレーションを利用し、それが原因で利用者が受けたいかなる損害についても当社は一切責任を負いません。あらかじめご了承ください。






























