株式会社ハンドの詳細情報
| アクセス | 札幌市南北線/澄川 徒歩5分 | ||||
|---|---|---|---|---|---|
| 住所 | 北海道札幌市南区澄川二条2丁目4-24 | ||||
| 営業時間 | 9:30~17:30 | ||||
| 定休日 | 年末年始 | ||||
| 電話番号 | 011-811-3663 | ||||
株式会社ハンドの周辺地図
店舗の特徴
電子メールで対応可、賃貸管理業務、リフォーム対応、引越し業者の紹介可
ニフティ不動産に掲載中の物件情報
| 1R~1LDK | 2K~2LDK | 3K~3LDK | 4K~4LDK | 5K~ | |
|---|---|---|---|---|---|
| 賃貸 | 137件 | 81件 | 12件 | - | - |
| 新築マンション | - | - | - | - | - |
| 中古マンション | - | - | - | - | - |
| 新築戸建 | - | - | - | - | - |
| 中古戸建 | - | 1件 | 1件 | - | - |
| ~50㎡ | 50~80㎡ | 80~100㎡ | 100~130㎡ | 130㎡~ | |
| 土地 | - | - | - | - | - |
不動産会社情報の精度向上にご協力をお願いいたします。不動産会社情報に誤りがある場合はこちらよりご連絡ください。
株式会社ハンドの物件一覧
並び替え
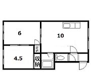
マンション・アパート福住駅よりバス10分 徒歩3分 4階 築35年11ヶ月の賃貸物件
- 札幌市営東豊線/福住駅 バス10分 徒歩3分
北海道札幌市清田区北野二条3丁目2-12
- 総階数
- 4階建
- 築年数
- 35年11ヶ月
- 建物構造
- 鉄骨造
バス・トイレ別駐車場あり間取り図
階数
間取り
専有面積
賃料
管理費等
敷金
礼金
特徴
お気に入り
詳細
4階
1DK
30.0㎡
2.9万円
3,000円
- 敷
- 不要
- 礼
- 不要
バス・トイレ別
駐車場あり
詳細を見る マンション・アパート澄川駅より徒歩20分 2階 築37年11ヶ月の賃貸物件
- 札幌市営南北線/澄川駅 徒歩20分
北海道札幌市南区澄川六条11丁目
- 総階数
- 2階建
- 築年数
- 37年11ヶ月
- 建物構造
- 木造
バス・トイレ別ペット相談角部屋間取り図
階数
間取り
専有面積
賃料
管理費等
敷金
礼金
特徴
お気に入り
詳細
2階
1LDK
30.0㎡
3.4万円
2,000円
- 敷
- 不要
- 礼
- 不要
バス・トイレ別
ペット相談
角部屋
詳細を見る マンション・アパート真駒内駅よりバス10分 徒歩3分 2階 築35年1ヶ月の賃貸物件
- 札幌市営南北線/真駒内駅 バス10分 徒歩3分
北海道札幌市南区川沿十五条2丁目
- 総階数
- 3階建
- 築年数
- 35年1ヶ月
- 建物構造
- 木造
バス・トイレ別駐車場ありペット相談間取り図
階数
間取り
専有面積
賃料
管理費等
敷金
礼金
特徴
お気に入り
詳細
2階
1LDK
28.0㎡
3.6万円
3,000円
- 敷
- 1.0ヶ月
- 礼
- 不要
バス・トイレ別
駐車場あり
ペット相談
詳細を見る マンション・アパート真駒内駅よりバス10分 徒歩3分 1階 築33年7ヶ月の賃貸物件
- 札幌市営南北線/真駒内駅 バス10分 徒歩3分
北海道札幌市南区石山東3丁目
- 総階数
- 2階建
- 築年数
- 33年7ヶ月
- 建物構造
- 木造
バス・トイレ別駐車場ありペット相談間取り図
階数
間取り
専有面積
賃料
管理費等
敷金
礼金
特徴
お気に入り
詳細
1階
1LDK
28.0㎡
3.6万円
2,000円
- 敷
- 不要
- 礼
- 不要
バス・トイレ別
駐車場あり
ペット相談
詳細を見る マンション・アパート福住駅よりバス10分 徒歩3分 5階 築35年11ヶ月の賃貸物件
- 札幌市営東豊線/福住駅 バス10分 徒歩3分
北海道札幌市清田区北野二条3丁目2-13
- 総階数
- 5階建
- 築年数
- 35年11ヶ月
- 建物構造
- 鉄骨造
バス・トイレ別駐車場あり駐輪場あり間取り図
階数
間取り
専有面積
賃料
管理費等
敷金
礼金
特徴
お気に入り
詳細
5階
2LDK
50.0㎡
3.9万円
3,000円
- 敷
- 不要
- 礼
- 不要
バス・トイレ別
駐車場あり
駐輪場あり
詳細を見る マンション・アパート福住駅よりバス10分 徒歩3分 4階 築35年11ヶ月の賃貸物件
- 札幌市営東豊線/福住駅 バス10分 徒歩3分
北海道札幌市清田区北野二条3丁目2-13
- 総階数
- 5階建
- 築年数
- 35年11ヶ月
- 建物構造
- 鉄骨造
バス・トイレ別駐車場あり駐輪場あり間取り図
階数
間取り
専有面積
賃料
管理費等
敷金
礼金
特徴
お気に入り
詳細
4階
2LDK
50.0㎡
4万円
3,000円
- 敷
- 不要
- 礼
- 不要
バス・トイレ別
駐車場あり
駐輪場あり
詳細を見る マンション・アパート真駒内駅よりバス10分 徒歩3分 2階 築44年11ヶ月の賃貸物件
- 札幌市営南北線/真駒内駅 バス10分 徒歩3分
北海道札幌市豊平区西岡五条14丁目19-11
- 総階数
- 2階建
- 築年数
- 44年11ヶ月
- 建物構造
- 木造
バス・トイレ別駐車場ありフローリング間取り図
階数
間取り
専有面積
賃料
管理費等
敷金
礼金
特徴
お気に入り
詳細
2階
2LDK
48.55㎡
4万円
2,000円
- 敷
- 不要
- 礼
- 不要
バス・トイレ別
駐車場あり
フローリング
詳細を見る マンション・アパート福住駅よりバス10分 徒歩3分 2階 築36年4ヶ月の賃貸物件
- 札幌市営東豊線/福住駅 バス10分 徒歩3分
北海道札幌市清田区真栄一条2丁目33-6
- 総階数
- 3階建
- 築年数
- 36年4ヶ月
- 建物構造
- 木造
バス・トイレ別駐車場あり角部屋間取り図
階数
間取り
専有面積
賃料
管理費等
敷金
礼金
特徴
お気に入り
詳細
2階
2DK
37.95㎡
4.1万円
不要
- 敷
- 1.0ヶ月
- 礼
- 不要
バス・トイレ別
駐車場あり
角部屋
詳細を見る マンション・アパート福住駅よりバス10分 徒歩3分 2階 築18年2ヶ月の賃貸物件
- 札幌市営東豊線/福住駅 バス10分 徒歩3分
北海道札幌市清田区清田二条1丁目
- 総階数
- 3階建
- 築年数
- 18年2ヶ月
- 建物構造
- 木造
バス・トイレ別フローリング間取り図
階数
間取り
専有面積
賃料
管理費等
敷金
礼金
特徴
お気に入り
詳細
2階
1DK
31.5㎡
4.1万円
不要
- 敷
- 1.0ヶ月
- 礼
- 不要
バス・トイレ別
フローリング
詳細を見る マンション・アパート真駒内駅よりバス12分 徒歩1分 2階 築42年4ヶ月の賃貸物件
- 札幌市営南北線/真駒内駅 バス12分 徒歩1分
北海道札幌市南区南沢四条2丁目6番23号
- 総階数
- 2階建
- 築年数
- 42年4ヶ月
- 建物構造
- 木造
バス・トイレ別間取り図
階数
間取り
専有面積
賃料
管理費等
敷金
礼金
特徴
お気に入り
詳細
2階
2R
47.0㎡
4.2万円
不要
- 敷
- 1.0ヶ月
- 礼
- 不要
バス・トイレ別
詳細を見る マンション・アパートカトリーヌ 3階 築20年2ヶ月の賃貸物件
- 札幌市営東豊線/福住駅 バス10分 徒歩3分
北海道札幌市清田区清田二条1丁目
- 総階数
- 3階建
- 築年数
- 20年2ヶ月
- 建物構造
- 木造
バス・トイレ別インターネット対応間取り図
階数
間取り
専有面積
賃料
管理費等
敷金
礼金
特徴
お気に入り
詳細
3階
1DK
29.16㎡
4.3万円
2,000円
- 敷
- 不要
- 礼
- 不要
バス・トイレ別
インターネット対応
詳細を見る ほかの部屋を検索中…ほかの部屋は見つかりませんでしたマンション・アパートパルコート澄川 2階 築34年8ヶ月の賃貸物件
- 札幌市営南北線/澄川駅 徒歩13分
北海道札幌市南区澄川一条4丁目2-1
- 総階数
- 4階建
- 築年数
- 34年8ヶ月
- 建物構造
- RC
バス・トイレ別駐車場ありオートロック間取り図
階数
間取り
専有面積
賃料
管理費等
敷金
礼金
特徴
お気に入り
詳細
2階
2LDK
43.8㎡
4.7万円
3,500円
- 敷
- 不要
- 礼
- 不要
バス・トイレ別
駐車場あり
オートロック
詳細を見る ほかの部屋を検索中…ほかの部屋は見つかりませんでしたマンション・アパート福住駅よりバス10分 徒歩1分 3階 築37年5ヶ月の賃貸物件
- 札幌市営東豊線/福住駅 バス10分 徒歩1分
北海道札幌市清田区清田三条1丁目3-19
- 総階数
- 3階建
- 築年数
- 37年5ヶ月
- 建物構造
- 木造
バス・トイレ別駐車場ありペット相談間取り図
階数
間取り
専有面積
賃料
管理費等
敷金
礼金
特徴
お気に入り
詳細
3階
2LDK
60.0㎡
5.5万円
不要
- 敷
- 1.0ヶ月
- 礼
- 不要
バス・トイレ別
駐車場あり
ペット相談
詳細を見る マンション・アパート五輪通レジデンス 3階 築36年1ヶ月の賃貸物件
- 札幌市営南北線/自衛隊前駅 徒歩15分
北海道札幌市南区澄川五条11丁目
- 総階数
- 4階建
- 築年数
- 36年1ヶ月
- 建物構造
- 鉄骨造
バス・トイレ別駐車場あり間取り図
階数
間取り
専有面積
賃料
管理費等
敷金
礼金
特徴
お気に入り
詳細
3階
1R
28.0㎡
3万円
3,000円
- 敷
- 不要
- 礼
- 不要
バス・トイレ別
駐車場あり
詳細を見る ほかの部屋を検索中…ほかの部屋は見つかりませんでしたマンション・アパートベルファーレ 3階 築31年2ヶ月の賃貸物件
- 札幌市営南北線/真駒内駅 バス8分 徒歩6分
北海道札幌市南区南三十四条西8丁目4-3
- 総階数
- 4階建
- 築年数
- 31年2ヶ月
- 建物構造
- 鉄骨造
バス・トイレ別駐車場あり角部屋間取り図
階数
間取り
専有面積
賃料
管理費等
敷金
礼金
特徴
お気に入り
詳細
3階
1LDK
28.0㎡
3.3万円
3,000円
- 敷
- 不要
- 礼
- 不要
バス・トイレ別
駐車場あり
角部屋
詳細を見る ほかの部屋を検索中…ほかの部屋は見つかりませんでしたマンション・アパートカントリー70 1階 築36年4ヶ月の賃貸物件
- 札幌市営南北線/澄川駅 徒歩14分
- 札幌市営南北線/自衛隊前駅 徒歩15分
北海道札幌市南区澄川一条4丁目5-16
- 総階数
- 4階建
- 築年数
- 36年4ヶ月
- 建物構造
- 鉄骨造
バス・トイレ別駐車場あり間取り図
階数
間取り
専有面積
賃料
管理費等
敷金
礼金
特徴
お気に入り
詳細
1階
1DK
34.6㎡
3.6万円
3,000円
- 敷
- 1.0ヶ月
- 礼
- 不要
バス・トイレ別
駐車場あり
詳細を見る ほかの部屋を検索中…ほかの部屋は見つかりませんでしたマンション・アパートハイツ115 3階 築41年9ヶ月の賃貸物件
- 札幌市営南北線/南平岸駅 徒歩14分
- 札幌市営南北線/澄川駅 徒歩16分
北海道札幌市豊平区平岸一条15丁目5-28
- 総階数
- 3階建
- 築年数
- 41年9ヶ月
- 建物構造
- 木造
バス・トイレ別駐車場あり間取り図
階数
間取り
専有面積
賃料
管理費等
敷金
礼金
特徴
お気に入り
詳細
3階
2LDK
45.36㎡
4万円
3,000円
- 敷
- 不要
- 礼
- 不要
バス・トイレ別
駐車場あり
詳細を見る ほかの部屋を検索中…ほかの部屋は見つかりませんでしたマンション・アパートカントリー70 4階 築36年4ヶ月の賃貸物件
- 札幌市営南北線/澄川駅 徒歩14分
- 札幌市営南北線/自衛隊前駅 徒歩15分
北海道札幌市南区澄川一条4丁目5-16
- 総階数
- 4階建
- 築年数
- 36年4ヶ月
- 建物構造
- 鉄骨造
バス・トイレ別駐車場あり角部屋間取り図
階数
間取り
専有面積
賃料
管理費等
敷金
礼金
特徴
お気に入り
詳細
4階
2LDK
52.8㎡
4.9万円
3,000円
- 敷
- 1.0ヶ月
- 礼
- 不要
バス・トイレ別
駐車場あり
角部屋
詳細を見る ほかの部屋を検索中…ほかの部屋は見つかりませんでしたマンション・アパートヴェルドーラ2 2階 築27年4ヶ月の賃貸物件
北海道札幌市南区川沿一条5丁目1-6
- 総階数
- 2階建
- 築年数
- 27年4ヶ月
- 建物構造
- 鉄骨造
バス・トイレ別駐車場ありフローリング間取り図
階数
間取り
専有面積
賃料
管理費等
敷金
礼金
特徴
お気に入り
詳細
2階
2LDK
57.25㎡
5.4万円
2,500円
- 敷
- 不要
- 礼
- 不要
バス・トイレ別
駐車場あり
フローリング
詳細を見る ほかの部屋を検索中…ほかの部屋は見つかりませんでしたマンション・アパート福住駅より徒歩15分 2階 築40年7ヶ月の賃貸物件
- 札幌市営東豊線/福住駅 徒歩15分
北海道札幌市豊平区西岡四条1丁目
- 総階数
- 7階建
- 築年数
- 40年7ヶ月
- 建物構造
- RC
バス・トイレ別間取り図
階数
間取り
専有面積
賃料
管理費等
敷金
礼金
特徴
お気に入り
詳細
2階
3DK
53.25㎡
5.5万円
4,000円
- 敷
- 1.0ヶ月
- 礼
- 不要
バス・トイレ別
詳細を見る マンション・アパートKOKOPELLIココペリ 2階 築19年8ヶ月の賃貸物件
- 札幌市営南北線/中の島駅 バス8分 徒歩3分
北海道札幌市豊平区中の島一条9丁目8-13
- 総階数
- 3階建
- 築年数
- 19年8ヶ月
- 建物構造
- 木造
バス・トイレ別駐車場ありペット相談間取り図
階数
間取り
専有面積
賃料
管理費等
敷金
礼金
特徴
お気に入り
詳細
2階
2LDK
56.31㎡
6.4万円
2,000円
- 敷
- 1.0ヶ月
- 礼
- 不要
バス・トイレ別
駐車場あり
ペット相談
詳細を見る ほかの部屋を検索中…ほかの部屋は見つかりませんでしたマンション・アパート菊水駅よりバス10分 徒歩5分 3階 築40年5ヶ月の賃貸物件
- 札幌市営東西線/菊水駅 バス10分 徒歩5分
北海道札幌市白石区菊水元町四条1丁目4-10
- 総階数
- 3階建
- 築年数
- 40年5ヶ月
- 建物構造
- 木造
ペット相談フローリング間取り図
階数
間取り
専有面積
賃料
管理費等
敷金
礼金
特徴
お気に入り
詳細
3階
1DK
23.2㎡
3万円
不要
- 敷
- 1.0ヶ月
- 礼
- 不要
ペット相談
フローリング
詳細を見る マンション・アパートパークサイド月寒東 2階 築31年10ヶ月の賃貸物件
- 札幌市営東西線/南郷13丁目駅 徒歩15分
北海道札幌市豊平区月寒東五条11丁目1-17
- 総階数
- 3階建
- 築年数
- 31年10ヶ月
- 建物構造
- 木造
バス・トイレ別駐車場あり角部屋間取り図
階数
間取り
専有面積
賃料
管理費等
敷金
礼金
特徴
お気に入り
詳細
2階
1DK
33.8㎡
3.6万円
1,000円
- 敷
- 不要
- 礼
- 不要
バス・トイレ別
駐車場あり
角部屋
詳細を見る ほかの部屋を検索中…ほかの部屋は見つかりませんでしたマンション・アパート福住駅よりバス13分 徒歩2分 3階 築42年11ヶ月の賃貸物件
- 札幌市営東豊線/福住駅 バス13分 徒歩2分
北海道札幌市清田区平岡一条1丁目
- 総階数
- 3階建
- 築年数
- 42年11ヶ月
- 建物構造
- 木造
バス・トイレ別駐車場ありペット相談間取り図
階数
間取り
専有面積
賃料
管理費等
敷金
礼金
特徴
お気に入り
詳細
3階
1LDK
40.0㎡
3.6万円
1,000円
- 敷
- 1.0ヶ月
- 礼
- 不要
バス・トイレ別
駐車場あり
ペット相談
詳細を見る マンション・アパート福住駅より徒歩15分 3階 築32年3ヶ月の賃貸物件
- 札幌市営東豊線/福住駅 徒歩15分
北海道札幌市豊平区西岡五条3丁目3-33
- 総階数
- 3階建
- 築年数
- 32年3ヶ月
- 建物構造
- 木造
バス・トイレ別駐車場ありペット相談間取り図
階数
間取り
専有面積
賃料
管理費等
敷金
礼金
特徴
お気に入り
詳細
3階
1LDK
27.22㎡
3.7万円
不要
- 敷
- 1.0ヶ月
- 礼
- 不要
バス・トイレ別
駐車場あり
ペット相談
詳細を見る マンション・アパート南平岸駅より徒歩15分 2階 築21年2ヶ月の賃貸物件
- 札幌市営南北線/南平岸駅 徒歩15分
北海道札幌市豊平区中の島一条9丁目
- 総階数
- 3階建
- 築年数
- 21年2ヶ月
- 建物構造
- 木造
バス・トイレ別駐車場ありフローリング間取り図
階数
間取り
専有面積
賃料
管理費等
敷金
礼金
特徴
お気に入り
詳細
2階
1LDK
34.73㎡
4.3万円
2,500円
- 敷
- 不要
- 礼
- 不要
バス・トイレ別
駐車場あり
フローリング
詳細を見る マンション・アパートモン・リジェール 3階 築39年3ヶ月の賃貸物件
- 札幌市営東豊線/福住駅 徒歩15分
- 札幌市営東豊線/月寒中央駅 徒歩26分
北海道札幌市豊平区福住二条4丁目4-5
- 総階数
- 3階建
- 築年数
- 39年3ヶ月
- 建物構造
- 木造
バス・トイレ別駐車場あり間取り図
階数
間取り
専有面積
賃料
管理費等
敷金
礼金
特徴
お気に入り
詳細
3階
2DK
46.2㎡
4.7万円
3,000円
- 敷
- 不要
- 礼
- 不要
バス・トイレ別
駐車場あり
詳細を見る ほかの部屋を検索中…ほかの部屋は見つかりませんでしたマンション・アパート福住駅よりバス15分 徒歩5分 3階 築35年2ヶ月の賃貸物件
- 札幌市営東豊線/福住駅 バス15分 徒歩5分
北海道札幌市清田区真栄二条1丁目9-13
- 総階数
- 3階建
- 築年数
- 35年2ヶ月
- 建物構造
- 木造
バス・トイレ別駐車場ありペット相談間取り図
階数
間取り
専有面積
賃料
管理費等
敷金
礼金
特徴
お気に入り
詳細
3階
1LDK
33.0㎡
3.6万円
4,000円
- 敷
- 不要
- 礼
- 不要
バス・トイレ別
駐車場あり
ペット相談
詳細を見る マンション・アパート風と光 2階 築21年6ヶ月の賃貸物件
北海道札幌市清田区清田三条1丁目1-10
- 総階数
- 3階建
- 築年数
- 21年6ヶ月
- 建物構造
- 木造
バス・トイレ別間取り図
階数
間取り
専有面積
賃料
管理費等
敷金
礼金
特徴
お気に入り
詳細
2階
1LDK
37.46㎡
4万円
2,000円
- 敷
- 不要
- 礼
- 不要
バス・トイレ別
詳細を見る ほかの部屋を検索中…ほかの部屋は見つかりませんでしたマンション・アパートティマル 4階 築28年8ヶ月の賃貸物件
- 札幌市営南北線/中の島駅 バス10分 徒歩5分
北海道札幌市豊平区中の島一条9丁目1-22
- 総階数
- 4階建
- 築年数
- 28年8ヶ月
- 建物構造
- 鉄骨造
バス・トイレ別駐車場あり角部屋間取り図
階数
間取り
専有面積
賃料
管理費等
敷金
礼金
特徴
お気に入り
詳細
4階
2LDK
51.81㎡
5.2万円
500円
- 敷
- 不要
- 礼
- 不要
バス・トイレ別
駐車場あり
角部屋
詳細を見る ほかの部屋を検索中…ほかの部屋は見つかりませんでしたマンション・アパート南平岸駅より徒歩14分 5階 築34年2ヶ月の賃貸物件
- 札幌市営南北線/南平岸駅 徒歩14分
北海道札幌市豊平区平岸六条17丁目
- 総階数
- 8階建
- 築年数
- 34年2ヶ月
- 建物構造
- RC
バス・トイレ別駐車場ありペット相談間取り図
階数
間取り
専有面積
賃料
管理費等
敷金
礼金
特徴
お気に入り
詳細
5階
3LDK
61.38㎡
6.7万円
6,000円
- 敷
- 1.0ヶ月
- 礼
- 不要
バス・トイレ別
駐車場あり
ペット相談
詳細を見る マンション・アパート福住駅より徒歩17分 2階 築28年2ヶ月の賃貸物件
- 札幌市営東豊線/福住駅 徒歩17分
- 札幌市営東豊線/月寒中央駅 徒歩24分
北海道札幌市豊平区福住一条4丁目5-8
- 総階数
- 2階建
- 築年数
- 28年2ヶ月
- 建物構造
- 木造
バス・トイレ別角部屋間取り図
階数
間取り
専有面積
賃料
管理費等
敷金
礼金
特徴
お気に入り
詳細
2階
1DK
35.0㎡
3.8万円
3,000円
- 敷
- 不要
- 礼
- 不要
バス・トイレ別
角部屋
詳細を見る マンション・アパート東屯田通駅より徒歩20分 4階 築36年4ヶ月の賃貸物件
- 札幌市電2系統/東屯田通駅 徒歩20分
- 札幌市電2系統/幌南小学校前駅 徒歩18分
北海道札幌市豊平区中の島一条10丁目1番11号
- 総階数
- 4階建
- 築年数
- 36年4ヶ月
- 建物構造
- RC
バス・トイレ別角部屋インターネット対応間取り図
階数
間取り
専有面積
賃料
管理費等
敷金
礼金
特徴
お気に入り
詳細
4階
1LDK
38.11㎡
4.2万円
3,000円
- 敷
- 不要
- 礼
- 不要
バス・トイレ別
角部屋
インターネット対応
詳細を見る マンション・アパート澄川駅より徒歩22分 1階 築37年3ヶ月の賃貸物件
- 札幌市営南北線/澄川駅 徒歩22分
北海道札幌市豊平区西岡二条8丁目
- 総階数
- 4階建
- 築年数
- 37年3ヶ月
- 建物構造
- RC
バス・トイレ別角部屋駐輪場あり間取り図
階数
間取り
専有面積
賃料
管理費等
敷金
礼金
特徴
お気に入り
詳細
1階
2LDK
48.0㎡
4.3万円
2,000円
- 敷
- 不要
- 礼
- 不要
バス・トイレ別
角部屋
駐輪場あり
詳細を見る マンション・アパートヒルズ—K 1階 築26年4ヶ月の賃貸物件
- 札幌市営東豊線/福住駅 徒歩19分
北海道札幌市豊平区月寒東三条15丁目1-43
- 総階数
- 4階建
- 築年数
- 26年4ヶ月
- 建物構造
- RC
バス・トイレ別駐車場あり角部屋間取り図
階数
間取り
専有面積
賃料
管理費等
敷金
礼金
特徴
お気に入り
詳細
1階
2LDK
59.85㎡
4.7万円
5,000円
- 敷
- 1.0ヶ月
- 礼
- 不要
バス・トイレ別
駐車場あり
角部屋
詳細を見る ほかの部屋を検索中…ほかの部屋は見つかりませんでしたマンション・アパート 2階 築32年2ヶ月の賃貸物件
北海道札幌市清田区清田六条2丁目
- 総階数
- 3階建
- 築年数
- 32年2ヶ月
- 建物構造
- 木造
バス・トイレ別駐車場ありフローリング間取り図
階数
間取り
専有面積
賃料
管理費等
敷金
礼金
特徴
お気に入り
詳細
2階
2LDK
50.0㎡
5.5万円
不要
- 敷
- 不要
- 礼
- 不要
バス・トイレ別
駐車場あり
フローリング
詳細を見る マンション・アパートコート澄川B 2階 築33年の賃貸物件
- 札幌市営南北線/真駒内駅 バス10分 徒歩8分
北海道札幌市南区澄川五条12丁目6-22
- 総階数
- 3階建
- 築年数
- 33年
- 建物構造
- 木造
バス・トイレ別インターネット対応間取り図
階数
間取り
専有面積
賃料
管理費等
敷金
礼金
特徴
お気に入り
詳細
2階
1K
27.5㎡
1.8万円
不要
- 敷
- 不要
- 礼
- 不要
バス・トイレ別
インターネット対応
詳細を見る ほかの部屋を検索中…ほかの部屋は見つかりませんでしたマンション・アパート南平岸駅より徒歩19分 2階 築53年10ヶ月の賃貸物件
- 札幌市営南北線/南平岸駅 徒歩19分
北海道札幌市豊平区中の島一条7丁目13-7
- 総階数
- 2階建
- 築年数
- 53年10ヶ月
- 建物構造
- 木造
バス・トイレ別コンロ2口以上角部屋間取り図
階数
間取り
専有面積
賃料
管理費等
敷金
礼金
特徴
お気に入り
詳細
2階
1DK
28.57㎡
2.8万円
不要
- 敷
- 不要
- 礼
- 不要
バス・トイレ別
コンロ2口以上
角部屋
詳細を見る マンション・アパート福住駅よりバス15分 徒歩3分 2階 築35年11ヶ月の賃貸物件
- 札幌市営東豊線/福住駅 バス15分 徒歩3分
北海道札幌市清田区真栄二条1丁目
- 総階数
- 3階建
- 築年数
- 35年11ヶ月
- 建物構造
- 木造
バス・トイレ別駐車場ありペット相談間取り図
階数
間取り
専有面積
賃料
管理費等
敷金
礼金
特徴
お気に入り
詳細
2階
1DK
32.83㎡
2.9万円
2,500円
- 敷
- 不要
- 礼
- 不要
バス・トイレ別
駐車場あり
ペット相談
詳細を見る マンション・アパート新星荘 1階 築37年7ヶ月の賃貸物件
- 札幌市営南北線/真駒内駅 徒歩49分
北海道札幌市南区川沿七条3丁目2-7
- 総階数
- 2階建
- 築年数
- 37年7ヶ月
- 建物構造
- 木造
角部屋間取り図
階数
間取り
専有面積
賃料
管理費等
敷金
礼金
特徴
お気に入り
詳細
1階
1R
19.88㎡
2.9万円
不要
- 敷
- 不要
- 礼
- 不要
角部屋
詳細を見る ほかの部屋を検索中…ほかの部屋は見つかりませんでした


この店舗からのコメント
札幌市内のお部屋探しは当社にお任せ下さい。1ルームから一戸建物件まで幅広く取り扱っています。