株式会社良和ハウス 広島駅前店の詳細情報
| アクセス | 広島電鉄本線/広島駅 徒歩5分 | ||||
|---|---|---|---|---|---|
| 住所 | 広島県広島市南区大須賀町13−6 加藤ビル1F | ||||
| 営業時間 | 10:00~18:00 | ||||
| 定休日 | 毎週木曜日 | ||||
| 電話番号 | 082-553-9377 | ||||
株式会社良和ハウス 広島駅前店の周辺地図
店舗の特徴
駅のそば(歩3分以内)、女性スタッフ対応、保証人不要の相談可、引越し業者の紹介可、法人の契約取扱い、賃貸管理業務、建築・設計等の取扱いあり、リフォーム対応、24時間管理
ニフティ不動産に掲載中の物件情報
| 1R~1LDK | 2K~2LDK | 3K~3LDK | 4K~4LDK | 5K~ | |
|---|---|---|---|---|---|
| 賃貸 | 6,764件 | 1,985件 | 892件 | 95件 | 29件 |
| 新築マンション | - | - | - | - | - |
| 中古マンション | - | - | - | - | - |
| 新築戸建 | - | - | - | - | - |
| 中古戸建 | - | - | - | - | - |
| ~50㎡ | 50~80㎡ | 80~100㎡ | 100~130㎡ | 130㎡~ | |
| 土地 | - | - | - | - | - |
不動産会社情報の精度向上にご協力をお願いいたします。不動産会社情報に誤りがある場合はこちらよりご連絡ください。
株式会社良和ハウス 広島駅前店の物件一覧
並び替え
マンション・アパートアスプロパラティ’5 2階 築40年8ヶ月の賃貸物件
- JR山陽本線/横川駅 徒歩21分
- JR可部線/横川駅 徒歩21分
広島県広島市中区西十日市町
- 総階数
- 5階建
- 築年数
- 40年8ヶ月
- 建物構造
- RC
オートロック南向き角部屋間取り図
階数
間取り
専有面積
賃料
管理費等
敷金
礼金
特徴
お気に入り
詳細
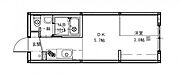
2階
1R
14.78㎡
3.1万円
2,000円
- 敷
- 不要
- 礼
- 1.0ヶ月
オートロック
南向き
角部屋
詳細を見る ほかの部屋を検索中…ほかの部屋は見つかりませんでしたマンション・アパートアスプロパラティ’5 5階 築40年8ヶ月の賃貸物件
- JR山陽本線/横川駅 徒歩21分
- JR可部線/横川駅 徒歩21分
広島県広島市中区西十日市町
- 総階数
- 5階建
- 築年数
- 40年8ヶ月
- 建物構造
- RC
オートロック南向き角部屋間取り図
階数
間取り
専有面積
賃料
管理費等
敷金
礼金
特徴
お気に入り
詳細
5階
1R
14.78㎡
3.1万円
2,000円
- 敷
- 不要
- 礼
- 1.0ヶ月
オートロック
南向き
角部屋
詳細を見る ほかの部屋を検索中…ほかの部屋は見つかりませんでしたマンション・アパート広島駅より徒歩21分 4階 築36年6ヶ月の賃貸物件
- JR山陽本線/広島駅 徒歩21分
- JR呉線/天神川駅 徒歩14分
広島県広島市南区大州2丁目
- 総階数
- 4階建
- 築年数
- 36年6ヶ月
- 建物構造
- RC
フローリング角部屋駐輪場あり間取り図
階数
間取り
専有面積
賃料
管理費等
敷金
礼金
特徴
お気に入り
詳細
4階
1K
18.0㎡
3.2万円
800円
- 敷
- 不要
- 礼
- 1.0ヶ月
フローリング
角部屋
駐輪場あり
詳細を見る マンション・アパートプログレス本川 4階 築40年の賃貸物件
- JR山陽本線/横川駅 徒歩21分
- 広島電鉄2系統/本川町駅 徒歩5分
広島県広島市中区本川町2丁目
- 総階数
- 5階建
- 築年数
- 40年
- 建物構造
- RC
フローリング南向き駐輪場あり間取り図
階数
間取り
専有面積
賃料
管理費等
敷金
礼金
特徴
お気に入り
詳細
4階
1R
14.58㎡
3.2万円
不要
- 敷
- 不要
- 礼
- 1.0ヶ月
フローリング
南向き
駐輪場あり
詳細を見る ほかの部屋を検索中…ほかの部屋は見つかりませんでしたマンション・アパート広島駅より徒歩21分 1階 築36年6ヶ月の賃貸物件
- JR山陽本線/広島駅 徒歩21分
- JR呉線/天神川駅 徒歩14分
広島県広島市南区大州2丁目
- 総階数
- 4階建
- 築年数
- 36年6ヶ月
- 建物構造
- RC
フローリング駐輪場あり間取り図
階数
間取り
専有面積
賃料
管理費等
敷金
礼金
特徴
お気に入り
詳細
1階
1K
19.0㎡
3.2万円
800円
- 敷
- 不要
- 礼
- 1.0ヶ月
フローリング
駐輪場あり
詳細を見る マンション・アパートアスプロパラティ’5 3階 築40年8ヶ月の賃貸物件
- JR山陽本線/横川駅 徒歩21分
- JR可部線/横川駅 徒歩21分
広島県広島市中区西十日市町
- 総階数
- 5階建
- 築年数
- 40年8ヶ月
- 建物構造
- RC
オートロック南向き駐輪場あり間取り図
階数
間取り
専有面積
賃料
管理費等
敷金
礼金
特徴
お気に入り
詳細
3階
1R
17.26㎡
3.3万円
2,000円
- 敷
- 不要
- 礼
- 1.0ヶ月
オートロック
南向き
駐輪場あり
詳細を見る ほかの部屋を検索中…ほかの部屋は見つかりませんでしたマンション・アパートアスプロパラティ’5 4階 築40年8ヶ月の賃貸物件
- JR山陽本線/横川駅 徒歩21分
- JR可部線/横川駅 徒歩21分
広島県広島市中区西十日市町
- 総階数
- 5階建
- 築年数
- 40年8ヶ月
- 建物構造
- RC
フローリングオートロック南向き間取り図
階数
間取り
専有面積
賃料
管理費等
敷金
礼金
特徴
お気に入り
詳細
4階
1R
17.26㎡
3.3万円
2,000円
- 敷
- 不要
- 礼
- 1.0ヶ月
フローリング
オートロック
南向き
詳細を見る ほかの部屋を検索中…ほかの部屋は見つかりませんでしたマンション・アパート広島駅より徒歩21分 5階 築37年1ヶ月の賃貸物件
- JR山陽本線/広島駅 徒歩21分
- JR芸備線/広島駅 徒歩21分
広島県広島市東区曙5丁目
- 総階数
- 5階建
- 築年数
- 37年1ヶ月
- 建物構造
- 鉄骨造
フローリング南向き角部屋間取り図
階数
間取り
専有面積
賃料
管理費等
敷金
礼金
特徴
お気に入り
詳細
5階
1K
17.0㎡
3.5万円
不要
- 敷
- 1.0ヶ月
- 礼
- 1.0ヶ月
フローリング
南向き
角部屋
詳細を見る マンション・アパートエクセレント安田D館 1階 築37年1ヶ月の賃貸物件
- JR山陽本線/天神川駅 徒歩21分
- JR芸備線/矢賀駅 徒歩18分
広島県安芸郡府中町石井城1丁目
- 総階数
- 2階建
- 築年数
- 37年1ヶ月
- 建物構造
- 軽量鉄骨
バス・トイレ別フローリング駐輪場あり間取り図
階数
間取り
専有面積
賃料
管理費等
敷金
礼金
特徴
お気に入り
詳細
1階
1K
22.0㎡
3.5万円
不要
- 敷
- 1.0ヶ月
- 礼
- 1.0ヶ月
バス・トイレ別
フローリング
駐輪場あり
詳細を見る ほかの部屋を検索中…ほかの部屋は見つかりませんでしたマンション・アパート海田市駅より徒歩21分 2階 築54年2ヶ月の賃貸物件
- JR山陽本線/海田市駅 徒歩21分
- JR呉線/海田市駅 徒歩21分
広島県安芸郡海田町蟹原2丁目
- 総階数
- 2階建
- 築年数
- 54年2ヶ月
- 建物構造
- その他
バス・トイレ別フローリング間取り図
階数
間取り
専有面積
賃料
管理費等
敷金
礼金
特徴
お気に入り
詳細
2階
2DK
30.0㎡
3.5万円
不要
- 敷
- 3.0ヶ月
- 礼
- 1.0ヶ月
バス・トイレ別
フローリング
詳細を見る マンション・アパート広島駅より徒歩21分 2階 築37年1ヶ月の賃貸物件
- JR山陽本線/広島駅 徒歩21分
- JR芸備線/広島駅 徒歩21分
広島県広島市東区曙5丁目
- 総階数
- 5階建
- 築年数
- 37年1ヶ月
- 建物構造
- 鉄骨造
フローリング南向き角部屋間取り図
階数
間取り
専有面積
賃料
管理費等
敷金
礼金
特徴
お気に入り
詳細
2階
1K
17.0㎡
3.5万円
不要
- 敷
- 1.0ヶ月
- 礼
- 1.0ヶ月
フローリング
南向き
角部屋
詳細を見る マンション・アパート広島駅より徒歩21分 5階 築37年1ヶ月の賃貸物件
- JR山陽本線/広島駅 徒歩21分
- JR芸備線/広島駅 徒歩21分
広島県広島市東区曙5丁目
- 総階数
- 5階建
- 築年数
- 37年1ヶ月
- 建物構造
- 鉄骨造
フローリング南向き角部屋間取り図
階数
間取り
専有面積
賃料
管理費等
敷金
礼金
特徴
お気に入り
詳細
5階
1R
17.0㎡
3.5万円
不要
- 敷
- 1.0ヶ月
- 礼
- 1.0ヶ月
フローリング
南向き
角部屋
詳細を見る マンション・アパート横川駅より徒歩21分 2階 築36年10ヶ月の賃貸物件
- JR山陽本線/横川駅 徒歩21分
- 広島電鉄2系統/観音町駅 徒歩14分
広島県広島市西区小河内町2丁目
- 総階数
- 4階建
- 築年数
- 36年10ヶ月
- 建物構造
- RC
フローリングオートロック南向き間取り図
階数
間取り
専有面積
賃料
管理費等
敷金
礼金
特徴
お気に入り
詳細
2階
1K
24.84㎡
3.6万円
不要
- 敷
- 1.0ヶ月
- 礼
- 1.0ヶ月
フローリング
オートロック
南向き
詳細を見る マンション・アパートエクセレント安田D館 2階 築37年1ヶ月の賃貸物件
- JR山陽本線/天神川駅 徒歩21分
- JR芸備線/矢賀駅 徒歩18分
広島県安芸郡府中町石井城1丁目
- 総階数
- 2階建
- 築年数
- 37年1ヶ月
- 建物構造
- 軽量鉄骨
バス・トイレ別フローリング駐輪場あり間取り図
階数
間取り
専有面積
賃料
管理費等
敷金
礼金
特徴
お気に入り
詳細
2階
1K
22.0㎡
3.6万円
不要
- 敷
- 1.0ヶ月
- 礼
- 1.0ヶ月
バス・トイレ別
フローリング
駐輪場あり
詳細を見る ほかの部屋を検索中…ほかの部屋は見つかりませんでしたマンション・アパート横川駅より徒歩21分 4階 築36年10ヶ月の賃貸物件
- JR山陽本線/横川駅 徒歩21分
- 広島電鉄2系統/観音町駅 徒歩14分
広島県広島市西区小河内町2丁目
- 総階数
- 4階建
- 築年数
- 36年10ヶ月
- 建物構造
- RC
フローリングオートロック南向き間取り図
階数
間取り
専有面積
賃料
管理費等
敷金
礼金
特徴
お気に入り
詳細
4階
1K
24.84㎡
3.6万円
不要
- 敷
- 1.0ヶ月
- 礼
- 1.0ヶ月
フローリング
オートロック
南向き
詳細を見る マンション・アパート広島駅より徒歩21分 4階 築31年10ヶ月の賃貸物件
- JR山陽本線/広島駅 徒歩21分
- JR山陽本線/新白島駅 徒歩6分
広島県広島市中区東白島町
- 総階数
- 4階建
- 築年数
- 31年10ヶ月
- 建物構造
- RC
バス・トイレ別フローリング角部屋間取り図
階数
間取り
専有面積
賃料
管理費等
敷金
礼金
特徴
お気に入り
詳細
4階
1K
19.48㎡
3.6万円
不要
- 敷
- 2.0ヶ月
- 礼
- 1.0ヶ月
バス・トイレ別
フローリング
角部屋
詳細を見る マンション・アパート西広島駅より徒歩21分 3階 築38年6ヶ月の賃貸物件
- JR山陽本線/西広島駅 徒歩21分
- 広島電鉄宮島線/高須駅 徒歩3分
広島県広島市西区庚午北3丁目
- 総階数
- 3階建
- 築年数
- 38年6ヶ月
- 建物構造
- RC
フローリングリフォーム済間取り図
階数
間取り
専有面積
賃料
管理費等
敷金
礼金
特徴
お気に入り
詳細
3階
1DK
22.0㎡
3.6万円
2,000円
- 敷
- 1.0ヶ月
- 礼
- 1.0ヶ月
フローリング
リフォーム済
詳細を見る マンション・アパート広島駅より徒歩21分 5階 築45年8ヶ月の賃貸物件
- JR山陽本線/広島駅 徒歩21分
- 広島電鉄1系統/銀山町駅 徒歩9分
広島県広島市中区西平塚町
- 総階数
- 5階建
- 築年数
- 45年8ヶ月
- 建物構造
- RC
駐輪場あり間取り図
階数
間取り
専有面積
賃料
管理費等
敷金
礼金
特徴
お気に入り
詳細
5階
1K
21.0㎡
3.6万円
不要
- 敷
- 1.0ヶ月
- 礼
- 1.0ヶ月
駐輪場あり
詳細を見る マンション・アパート西広島駅より徒歩21分 2階 築38年6ヶ月の賃貸物件
- JR山陽本線/西広島駅 徒歩21分
- 広島電鉄宮島線/高須駅 徒歩3分
広島県広島市西区庚午北3丁目
- 総階数
- 3階建
- 築年数
- 38年6ヶ月
- 建物構造
- RC
バス・トイレ別フローリング間取り図
階数
間取り
専有面積
賃料
管理費等
敷金
礼金
特徴
お気に入り
詳細
2階
1K
22.69㎡
3.8万円
2,000円
- 敷
- 1.0ヶ月
- 礼
- 1.0ヶ月
バス・トイレ別
フローリング
詳細を見る マンション・アパート田川アパート 2階 築45年の賃貸物件
- 広島電鉄5系統/比治山橋駅 徒歩21分
- 広島電鉄5系統/南区役所前駅 徒歩19分
広島県広島市南区西霞町
- 総階数
- 2階建
- 築年数
- 45年
- 建物構造
- 木造
バス・トイレ別南向き駐輪場あり間取り図
階数
間取り
専有面積
賃料
管理費等
敷金
礼金
特徴
お気に入り
詳細
2階
2K
31.5㎡
3.8万円
不要
- 敷
- 2.0ヶ月
- 礼
- 1.0ヶ月
バス・トイレ別
南向き
駐輪場あり
詳細を見る ほかの部屋を検索中…ほかの部屋は見つかりませんでしたマンション・アパート横川駅より徒歩21分 2階 築31年10ヶ月の賃貸物件
- JR山陽本線/横川駅 徒歩21分
- 広島電鉄2系統/観音町駅 徒歩12分
広島県広島市西区小河内町2丁目
- 総階数
- 4階建
- 築年数
- 31年10ヶ月
- 建物構造
- RC
バス・トイレ別フローリング南向き間取り図
階数
間取り
専有面積
賃料
管理費等
敷金
礼金
特徴
お気に入り
詳細
2階
1K
21.0㎡
3.8万円
2,000円
- 敷
- 2.0ヶ月
- 礼
- 1.0ヶ月
バス・トイレ別
フローリング
南向き
詳細を見る マンション・アパートウエスト・サイド・Ave 5階 築31年4ヶ月の賃貸物件
- JR山陽本線/横川駅 徒歩21分
- 広島電鉄8系統/十日市町駅 徒歩3分
広島県広島市中区西十日市町
- 総階数
- 7階建
- 築年数
- 31年4ヶ月
- 建物構造
- 鉄骨造
バス・トイレ別フローリング駐輪場あり間取り図
階数
間取り
専有面積
賃料
管理費等
敷金
礼金
特徴
お気に入り
詳細
5階
1K
17.7㎡
3.9万円
3,000円
- 敷
- 1.0ヶ月
- 礼
- 1.0ヶ月
バス・トイレ別
フローリング
駐輪場あり
詳細を見る ほかの部屋を検索中…ほかの部屋は見つかりませんでしたマンション・アパートウエスト・サイド・Ave 2階 築31年4ヶ月の賃貸物件
- JR山陽本線/横川駅 徒歩21分
- 広島電鉄8系統/十日市町駅 徒歩3分
広島県広島市中区西十日市町
- 総階数
- 7階建
- 築年数
- 31年4ヶ月
- 建物構造
- 鉄骨造
バス・トイレ別フローリング角部屋間取り図
階数
間取り
専有面積
賃料
管理費等
敷金
礼金
特徴
お気に入り
詳細
2階
1K
17.7㎡
3.9万円
3,000円
- 敷
- 1.0ヶ月
- 礼
- 1.0ヶ月
バス・トイレ別
フローリング
角部屋
詳細を見る ほかの部屋を検索中…ほかの部屋は見つかりませんでしたマンション・アパートウエスト・サイド・Ave 4階 築31年4ヶ月の賃貸物件
- JR山陽本線/横川駅 徒歩21分
- 広島電鉄8系統/十日市町駅 徒歩3分
広島県広島市中区西十日市町
- 総階数
- 7階建
- 築年数
- 31年4ヶ月
- 建物構造
- 鉄骨造
バス・トイレ別フローリング角部屋間取り図
階数
間取り
専有面積
賃料
管理費等
敷金
礼金
特徴
お気に入り
詳細
4階
1K
17.7㎡
3.9万円
3,000円
- 敷
- 1.0ヶ月
- 礼
- 1.0ヶ月
バス・トイレ別
フローリング
角部屋
詳細を見る ほかの部屋を検索中…ほかの部屋は見つかりませんでしたマンション・アパートウエスト・サイド・Ave 3階 築31年4ヶ月の賃貸物件
- JR山陽本線/横川駅 徒歩21分
- 広島電鉄8系統/十日市町駅 徒歩3分
広島県広島市中区西十日市町
- 総階数
- 7階建
- 築年数
- 31年4ヶ月
- 建物構造
- 鉄骨造
バス・トイレ別フローリング角部屋間取り図
階数
間取り
専有面積
賃料
管理費等
敷金
礼金
特徴
お気に入り
詳細
3階
1K
17.8㎡
3.9万円
3,000円
- 敷
- 1.0ヶ月
- 礼
- 1.0ヶ月
バス・トイレ別
フローリング
角部屋
詳細を見る ほかの部屋を検索中…ほかの部屋は見つかりませんでしたマンション・アパート比治山下駅より徒歩21分 1階 築55年6ヶ月の賃貸物件
- 広島電鉄5系統/比治山下駅 徒歩21分
- 広島電鉄5系統/比治山橋駅 徒歩22分
広島県広島市南区東雲本町1丁目
- 総階数
- 2階建
- 築年数
- 55年6ヶ月
- 建物構造
- 木造
バス・トイレ別駐車場ありフローリング間取り図
階数
間取り
専有面積
賃料
管理費等
敷金
礼金
特徴
お気に入り
詳細
1階
2DK
40.0㎡
4万円
不要
- 敷
- 2.0ヶ月
- 礼
- 1.0ヶ月
バス・トイレ別
駐車場あり
フローリング
詳細を見る マンション・アパート鶴見ヴィル 1階 築37年の賃貸物件
- JR山陽本線/広島駅 徒歩21分
- 広島電鉄5系統/比治山下駅 徒歩5分
広島県広島市中区東平塚町
- 総階数
- 4階建
- 築年数
- 37年
- 建物構造
- RC
フローリングコンロ2口以上駐輪場あり間取り図
階数
間取り
専有面積
賃料
管理費等
敷金
礼金
特徴
お気に入り
詳細
1階
1DK
21.45㎡
4万円
不要
- 敷
- 2.0ヶ月
- 礼
- 1.0ヶ月
フローリング
コンロ2口以上
駐輪場あり
詳細を見る ほかの部屋を検索中…ほかの部屋は見つかりませんでしたマンション・アパートハイネ光南 4階 築31年3ヶ月の賃貸物件
- 広島電鉄6系統/江波駅 徒歩21分
- 広島電鉄6系統/舟入南駅 徒歩18分
広島県広島市中区光南2丁目
- 総階数
- 4階建
- 築年数
- 31年3ヶ月
- 建物構造
- RC
バス・トイレ別角部屋駐輪場あり間取り図
階数
間取り
専有面積
賃料
管理費等
敷金
礼金
特徴
お気に入り
詳細
4階
1K
22.0㎡
4万円
2,000円
- 敷
- 不要
- 礼
- 不要
バス・トイレ別
角部屋
駐輪場あり
詳細を見る ほかの部屋を検索中…ほかの部屋は見つかりませんでしたマンション・アパート横川駅より徒歩18分 7階 築27年9ヶ月の賃貸物件
- JR山陽本線/横川駅 徒歩18分
広島県広島市西区大芝3丁目
- 総階数
- 10階建
- 築年数
- 27年9ヶ月
- 建物構造
- RC
バス・トイレ別フローリングオートロック間取り図
階数
間取り
専有面積
賃料
管理費等
敷金
礼金
特徴
お気に入り
詳細
7階
1K
21.7㎡
4万円
2,000円
- 敷
- 1.0ヶ月
- 礼
- 1.0ヶ月
バス・トイレ別
フローリング
オートロック
詳細を見る マンション・アパート横川駅より徒歩21分 5階 築35年10ヶ月の賃貸物件
- JR山陽本線/横川駅 徒歩21分
- 広島電鉄8系統/十日市町駅 徒歩6分
広島県広島市中区榎町
- 総階数
- 5階建
- 築年数
- 35年10ヶ月
- 建物構造
- RC
フローリング駐輪場あり間取り図
階数
間取り
専有面積
賃料
管理費等
敷金
礼金
特徴
お気に入り
詳細
5階
1R
20.0㎡
4万円
不要
- 敷
- 2.0ヶ月
- 礼
- 1.0ヶ月
フローリング
駐輪場あり
詳細を見る マンション・アパート第3柴田ビル 4階 築39年9ヶ月の賃貸物件
- JR山陽本線/向洋駅 徒歩24分
- 広島電鉄5系統/南区役所前駅 徒歩28分
広島県広島市南区東雲2丁目
- 総階数
- 7階建
- 築年数
- 39年9ヶ月
- 建物構造
- RC
バス・トイレ別駐車場ありフローリング間取り図
階数
間取り
専有面積
賃料
管理費等
敷金
礼金
特徴
お気に入り
詳細
4階
1K
19.0㎡
4.2万円
3,000円
- 敷
- 1.0ヶ月
- 礼
- 1.0ヶ月
バス・トイレ別
駐車場あり
フローリング
詳細を見る ほかの部屋を検索中…ほかの部屋は見つかりませんでしたマンション・アパート横川駅より徒歩18分 7階 築27年9ヶ月の賃貸物件
- JR山陽本線/横川駅 徒歩18分
広島県広島市西区大芝3丁目
- 総階数
- 10階建
- 築年数
- 27年9ヶ月
- 建物構造
- RC
バス・トイレ別フローリングオートロック間取り図
階数
間取り
専有面積
賃料
管理費等
敷金
礼金
特徴
お気に入り
詳細
7階
1K
21.7㎡
4.2万円
2,000円
- 敷
- 1.0ヶ月
- 礼
- 1.0ヶ月
バス・トイレ別
フローリング
オートロック
詳細を見る マンション・アパートグリーンハイム九軒町 1階 築36年7ヶ月の賃貸物件
- JR山陽本線/広島駅 徒歩21分
- 広島電鉄9系統/白島駅 徒歩6分
広島県広島市中区白島九軒町
- 総階数
- 4階建
- 築年数
- 36年7ヶ月
- 建物構造
- RC
バス・トイレ別フローリング角部屋間取り図
階数
間取り
専有面積
賃料
管理費等
敷金
礼金
特徴
お気に入り
詳細
1階
1K
26.53㎡
4.2万円
不要
- 敷
- 2.0ヶ月
- 礼
- 不要
バス・トイレ別
フローリング
角部屋
詳細を見る ほかの部屋を検索中…ほかの部屋は見つかりませんでしたマンション・アパート南区役所前駅より徒歩21分 4階 築47年8ヶ月の賃貸物件
- 広島電鉄5系統/南区役所前駅 徒歩21分
- 広島電鉄5系統/比治山橋駅 徒歩22分
広島県広島市南区西霞町
- 総階数
- 4階建
- 築年数
- 47年8ヶ月
- 建物構造
- RC
バス・トイレ別駐車場ありフローリング間取り図
階数
間取り
専有面積
賃料
管理費等
敷金
礼金
特徴
お気に入り
詳細
4階
1K
20.99㎡
4.3万円
不要
- 敷
- 不要
- 礼
- 1.0ヶ月
バス・トイレ別
駐車場あり
フローリング
詳細を見る マンション・アパート広島駅より徒歩21分 1階 築17年3ヶ月の賃貸物件
- JR山陽本線/広島駅 徒歩21分
- JR芸備線/広島駅 徒歩21分
広島県広島市東区尾長東2丁目
- 総階数
- 2階建
- 築年数
- 17年3ヶ月
- 建物構造
- 鉄骨造
バス・トイレ別フローリングオートロック間取り図
階数
間取り
専有面積
賃料
管理費等
敷金
礼金
特徴
お気に入り
詳細
1階
1K
19.87㎡
4.4万円
4,500円
- 敷
- 不要
- 礼
- 不要
バス・トイレ別
フローリング
オートロック
詳細を見る マンション・アパート広島駅より徒歩21分 2階 築17年3ヶ月の賃貸物件
- JR山陽本線/広島駅 徒歩21分
- JR芸備線/広島駅 徒歩21分
広島県広島市東区尾長東2丁目
- 総階数
- 2階建
- 築年数
- 17年3ヶ月
- 建物構造
- 鉄骨造
バス・トイレ別フローリングオートロック間取り図
階数
間取り
専有面積
賃料
管理費等
敷金
礼金
特徴
お気に入り
詳細
2階
1K
19.87㎡
4.4万円
4,500円
- 敷
- 不要
- 礼
- 不要
バス・トイレ別
フローリング
オートロック
詳細を見る マンション・アパート西広島駅より徒歩21分 4階 築57年10ヶ月の賃貸物件
- JR山陽本線/西広島駅 徒歩21分
- 広島電鉄宮島線/東高須駅 徒歩8分
広島県広島市西区庚午北1丁目
- 総階数
- 4階建
- 築年数
- 57年10ヶ月
- 建物構造
- RC
バス・トイレ別ペット相談フローリング間取り図
階数
間取り
専有面積
賃料
管理費等
敷金
礼金
特徴
お気に入り
詳細
4階
2DK
40.82㎡
4.4万円
3,000円
- 敷
- 2.0ヶ月
- 礼
- 1.0ヶ月
バス・トイレ別
ペット相談
フローリング
詳細を見る マンション・アパート西広島駅より徒歩17分 1階 築9年7ヶ月の賃貸物件
- JR山陽本線/西広島駅 徒歩17分
- 広島電鉄宮島線/広電西広島(己斐)駅 徒歩20分
広島県広島市西区己斐上1丁目
- 総階数
- 2階建
- 築年数
- 9年7ヶ月
- 建物構造
- 木造
バス・トイレ別ペット相談追い炊き機能間取り図
階数
間取り
専有面積
賃料
管理費等
敷金
礼金
特徴
お気に入り
詳細
1階
1DK
23.5㎡
4.5万円
不要
- 敷
- 不要
- 礼
- 1.0ヶ月
バス・トイレ別
ペット相談
追い炊き機能
詳細を見る マンション・アパート横川駅より徒歩21分 8階 築41年10ヶ月の賃貸物件
- JR山陽本線/横川駅 徒歩21分
- 広島電鉄8系統/十日市町駅 徒歩3分
広島県広島市中区十日市町1丁目
- 総階数
- 8階建
- 築年数
- 41年10ヶ月
- 建物構造
- RC
駐輪場ありインターネット対応間取り図
階数
間取り
専有面積
賃料
管理費等
敷金
礼金
特徴
お気に入り
詳細
8階
1DK
22.35㎡
4.5万円
不要
- 敷
- 1.0ヶ月
- 礼
- 1.0ヶ月
駐輪場あり
インターネット対応
詳細を見る マンション・アパート横川駅より徒歩21分 5階 築41年10ヶ月の賃貸物件
- JR山陽本線/横川駅 徒歩21分
- 広島電鉄8系統/十日市町駅 徒歩3分
広島県広島市中区十日市町1丁目
- 総階数
- 8階建
- 築年数
- 41年10ヶ月
- 建物構造
- RC
角部屋駐輪場あり間取り図
階数
間取り
専有面積
賃料
管理費等
敷金
礼金
特徴
お気に入り
詳細
5階
1DK
25.19㎡
4.5万円
不要
- 敷
- 1.0ヶ月
- 礼
- 1.0ヶ月
角部屋
駐輪場あり
詳細を見る


この店舗からのコメント
地元広島で培ってきた豊富な物件情報を基に広島市全域から府中方面までお部屋探しは当店へお任せください!親切・丁寧に対応させていただきます。スタッフ一同心よりお待ちしております。