ウインズリンク株式会社 アパマンショップ河原町三条店の詳細情報
| アクセス | 京阪電気鉄道鴨東線/三条 徒歩7分 | ||||
|---|---|---|---|---|---|
| 住所 | 京都府京都市中京区河原町通三条上る恵比須町435番地5 | ||||
| 営業時間 | 9:30~19:00 | ||||
| 定休日 | 年中無休(盆・正月を除く) | ||||
| 電話番号 | 075-256-2600 | ||||
ウインズリンク株式会社 アパマンショップ河原町三条店の周辺地図
店舗の特徴
駅のそば(歩3分以内)、年中無休、女性スタッフ対応、保証人不要の相談可、引越し業者の紹介可、法人の契約取扱い、賃貸管理業務
ニフティ不動産に掲載中の物件情報
| 1R~1LDK | 2K~2LDK | 3K~3LDK | 4K~4LDK | 5K~ | |
|---|---|---|---|---|---|
| 賃貸 | 5,503件 | 1,173件 | 433件 | 80件 | 45件 |
| 新築マンション | - | - | - | - | - |
| 中古マンション | - | - | - | - | - |
| 新築戸建 | - | - | - | - | - |
| 中古戸建 | - | - | - | - | - |
| ~50㎡ | 50~80㎡ | 80~100㎡ | 100~130㎡ | 130㎡~ | |
| 土地 | - | - | - | - | - |
不動産会社情報の精度向上にご協力をお願いいたします。不動産会社情報に誤りがある場合はこちらよりご連絡ください。
ウインズリンク株式会社 アパマンショップ河原町三条店の物件一覧
並び替え
マンション・アパート京都駅より徒歩9分 4階 新築の賃貸物件
- JR東海道本線/京都駅 徒歩9分
- 地下鉄烏丸線/九条駅 徒歩9分
- 京阪本線/東福寺駅 徒歩11分
京都府京都市南区東九条東岩本町
- 総階数
- 8階建
- 築年数
- 新築
- 建物構造
- 鉄筋コン
バス・トイレ別駐車場ありオートロック間取り図
階数
間取り
専有面積
賃料
管理費等
敷金
礼金
特徴
お気に入り
詳細
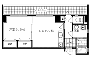
4階
1LDK
43.15㎡
12.48万円
13,250円
- 敷
- 不要
- 礼
- 不要
バス・トイレ別
駐車場あり
オートロック
詳細を見る マンション・アパートHALELUANA東山 3階 築2年10ヶ月の賃貸物件
- 京阪本線/清水五条駅 徒歩8分
- 京阪本線/祇園四条駅 徒歩7分
京都府京都市東山区大和大路通松原下る弓矢町
- 総階数
- 5階建
- 築年数
- 2年10ヶ月
- 建物構造
- RC
バス・トイレ別オートロックコンロ2口以上間取り図
階数
間取り
専有面積
賃料
管理費等
敷金
礼金
特徴
お気に入り
詳細
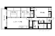
3階
1LDK
44.59㎡
12.5万円
10,000円
- 敷
- 不要
- 礼
- 250,000円
バス・トイレ別
オートロック
コンロ2口以上
詳細を見る ほかの部屋を検索中…ほかの部屋は見つかりませんでしたマンション・アパートハイツリヴィエール 5階 築36年2ヶ月の賃貸物件
- 京福電気鉄道北野線/北野白梅町駅 徒歩10分
- JR山陰本線/円町駅 徒歩23分
京都府京都市北区平野鳥居前町
- 総階数
- 5階建
- 築年数
- 36年2ヶ月
- 建物構造
- SRC
バス・トイレ別フローリングオートロック間取り図
階数
間取り
専有面積
賃料
管理費等
敷金
礼金
特徴
お気に入り
詳細
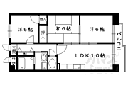
5階
2LDK
68.0㎡
12.5万円
5,000円
- 敷
- 125,000円
- 礼
- 125,000円
バス・トイレ別
フローリング
オートロック
詳細を見る ほかの部屋を検索中…ほかの部屋は見つかりませんでしたマンション・アパート京都駅より徒歩6分 2階 築2年5ヶ月の賃貸物件
- JR東海道本線/京都駅 徒歩6分
- 京阪本線/七条駅 徒歩6分
- 地下鉄烏丸線/京都駅 徒歩6分
京都府京都市下京区材木町
- 総階数
- 10階建
- 築年数
- 2年5ヶ月
- 建物構造
- 鉄筋コン
バス・トイレ別オートロック追い炊き機能間取り図
階数
間取り
専有面積
賃料
管理費等
敷金
礼金
特徴
お気に入り
詳細
2階
1LDK
36.01㎡
12.5万円
不要
- 敷
- 不要
- 礼
- 200,000円
バス・トイレ別
オートロック
追い炊き機能
詳細を見る マンション・アパート烏丸御池駅より徒歩8分 9階 築42年4ヶ月の賃貸物件
- 地下鉄烏丸線/烏丸御池駅 徒歩8分
- 地下鉄東西線/京都市役所前駅 徒歩8分
- 京阪本線/三条駅 徒歩10分
京都府京都市中京区油屋町
- 総階数
- 11階建
- 築年数
- 42年4ヶ月
- 建物構造
- 鉄筋コン
バス・トイレ別オートロック駐輪場あり間取り図
階数
間取り
専有面積
賃料
管理費等
敷金
礼金
特徴
お気に入り
詳細
9階
2LDK
52.17㎡
12.5万円
15,000円
- 敷
- 250,000円
- 礼
- 250,000円
バス・トイレ別
オートロック
駐輪場あり
詳細を見る マンション・アパート四条駅より徒歩8分 4階 築34年10ヶ月の賃貸物件
- 京都市営烏丸線/四条駅 徒歩8分
- 阪急京都本線/大宮駅 徒歩7分
京都府京都市中京区錦小路通堀川東入ル三文字町
- 総階数
- 7階建
- 築年数
- 34年10ヶ月
- 建物構造
- RC
バス・トイレ別フローリングオートロック間取り図
階数
間取り
専有面積
賃料
管理費等
敷金
礼金
特徴
お気に入り
詳細
4階
3LDK
60.0㎡
12.5万円
10,000円
- 敷
- 125,000円
- 礼
- 125,000円
バス・トイレ別
フローリング
オートロック
詳細を見る マンション・アパート京都駅より徒歩9分 5階 新築の賃貸物件
- JR東海道・山陽本線/京都駅 徒歩9分
- 京都市営烏丸線/九条駅 徒歩9分
京都府京都市南区東九条東岩本町
- 総階数
- 8階建
- 築年数
- 新築
- 建物構造
- RC
バス・トイレ別駐車場ありオートロック間取り図
階数
間取り
専有面積
賃料
管理費等
敷金
礼金
特徴
お気に入り
詳細
5階
1LDK
43.15㎡
12.525万円
13,250円
- 敷
- 不要
- 礼
- 不要
バス・トイレ別
駐車場あり
オートロック
詳細を見る マンション・アパート京都駅より徒歩9分 5階 新築の賃貸物件
- JR東海道本線/京都駅 徒歩9分
- 地下鉄烏丸線/九条駅 徒歩9分
- 京阪本線/東福寺駅 徒歩11分
京都府京都市南区東九条東岩本町
- 総階数
- 8階建
- 築年数
- 新築
- 建物構造
- 鉄筋コン
バス・トイレ別駐車場ありオートロック間取り図
階数
間取り
専有面積
賃料
管理費等
敷金
礼金
特徴
お気に入り
詳細
5階
1LDK
43.15㎡
12.53万円
13,250円
- 敷
- 不要
- 礼
- 不要
バス・トイレ別
駐車場あり
オートロック
詳細を見る マンション・アパート京都駅より徒歩9分 6階 新築の賃貸物件
- JR東海道・山陽本線/京都駅 徒歩9分
- 京都市営烏丸線/九条駅 徒歩9分
京都府京都市南区東九条東岩本町
- 総階数
- 8階建
- 築年数
- 新築
- 建物構造
- RC
バス・トイレ別駐車場ありオートロック間取り図
階数
間取り
専有面積
賃料
管理費等
敷金
礼金
特徴
お気に入り
詳細
6階
1LDK
43.15㎡
12.575万円
13,250円
- 敷
- 不要
- 礼
- 不要
バス・トイレ別
駐車場あり
オートロック
詳細を見る マンション・アパート京都駅より徒歩9分 6階 新築の賃貸物件
- JR東海道本線/京都駅 徒歩9分
- 地下鉄烏丸線/九条駅 徒歩9分
- 京阪本線/東福寺駅 徒歩11分
京都府京都市南区東九条東岩本町
- 総階数
- 8階建
- 築年数
- 新築
- 建物構造
- 鉄筋コン
バス・トイレ別駐車場ありオートロック間取り図
階数
間取り
専有面積
賃料
管理費等
敷金
礼金
特徴
お気に入り
詳細
6階
1LDK
43.15㎡
12.58万円
13,250円
- 敷
- 不要
- 礼
- 不要
バス・トイレ別
駐車場あり
オートロック
詳細を見る マンション・アパート京都駅より徒歩6分 10階 築2年5ヶ月の賃貸物件
- JR東海道・山陽本線/京都駅 徒歩6分
- 京阪本線/七条駅 徒歩6分
京都府京都市下京区七条通間之町東入材木町
- 総階数
- 10階建
- 築年数
- 2年5ヶ月
- 建物構造
- RC
バス・トイレ別オートロック追い炊き機能間取り図
階数
間取り
専有面積
賃料
管理費等
敷金
礼金
特徴
お気に入り
詳細
10階
1LDK
36.01㎡
13万円
不要
- 敷
- 不要
- 礼
- 250,000円
バス・トイレ別
オートロック
追い炊き機能
詳細を見る 一戸建て北野白梅町駅より徒歩7分 築53年1ヶ月の賃貸物件
- 京福電気鉄道北野線/北野白梅町駅 徒歩7分
- JR山陰本線/円町駅 徒歩19分
京都府京都市北区小松原南町
- 総階数
- 2階建
- 築年数
- 53年1ヶ月
- 建物構造
- 木造
バス・トイレ別駐車場ありコンロ2口以上間取り図
階数
間取り
専有面積
賃料
管理費等
敷金
礼金
特徴
お気に入り
詳細
-
6K
110.44㎡
13万円
不要
- 敷
- 260,000円
- 礼
- 260,000円
バス・トイレ別
駐車場あり
コンロ2口以上
詳細を見る マンション・アパートCRESTTAPP十条 7階 新築の賃貸物件
- 近鉄京都線/十条駅 徒歩8分
- 近鉄京都線/東寺駅 徒歩17分
京都府京都市南区上鳥羽高畠町
- 総階数
- 7階建
- 築年数
- 新築
- 建物構造
- RC
バス・トイレ別ペット相談フローリング間取り図
階数
間取り
専有面積
賃料
管理費等
敷金
礼金
特徴
お気に入り
詳細
7階
2LDK
48.9㎡
13.39万円
10,000円
- 敷
- 不要
- 礼
- 不要
バス・トイレ別
ペット相談
フローリング
詳細を見る ほかの部屋を検索中…ほかの部屋は見つかりませんでしたマンション・アパートエルソレイユ 2階 築21年4ヶ月の賃貸物件
- 地下鉄烏丸線/烏丸御池駅 徒歩7分
- 地下鉄烏丸線/丸太町駅 徒歩10分
- 地下鉄東西線/二条城前駅 徒歩7分
京都府京都市中京区上松屋町
- 総階数
- 3階建
- 築年数
- 21年4ヶ月
- 建物構造
- 鉄骨
バス・トイレ別駐車場ありオートロック間取り図
階数
間取り
専有面積
賃料
管理費等
敷金
礼金
特徴
お気に入り
詳細
2階
3LDK
64.76㎡
13.4万円
4,400円
- 敷
- 不要
- 礼
- 134,000円
バス・トイレ別
駐車場あり
オートロック
詳細を見る ほかの部屋を検索中…ほかの部屋は見つかりませんでしたマンション・アパート元田中駅より徒歩9分 1階 築14年3ヶ月の賃貸物件
- 叡山電鉄叡山本線/元田中駅 徒歩9分
- 京阪本線/出町柳駅 徒歩12分
京都府京都市左京区田中門前町
- 総階数
- 5階建
- 築年数
- 14年3ヶ月
- 建物構造
- RC
バス・トイレ別駐車場ありフローリング間取り図
階数
間取り
専有面積
賃料
管理費等
敷金
礼金
特徴
お気に入り
詳細
1階
1LDK
47.3㎡
13.5万円
10,000円
- 敷
- 不要
- 礼
- 135,000円
バス・トイレ別
駐車場あり
フローリング
詳細を見る マンション・アパート北山駅より徒歩8分 1階 築4年2ヶ月の賃貸物件
- 京都市営烏丸線/北山駅 徒歩8分
- 京都市営烏丸線/北大路駅 徒歩15分
京都府京都市北区上賀茂高縄手町
- 総階数
- 2階建
- 築年数
- 4年2ヶ月
- 建物構造
- 鉄骨造
バス・トイレ別フローリングオートロック間取り図
階数
間取り
専有面積
賃料
管理費等
敷金
礼金
特徴
お気に入り
詳細
1階
2LDK
56.1㎡
13.6万円
5,000円
- 敷
- 30,000円
- 礼
- 300,000円
バス・トイレ別
フローリング
オートロック
詳細を見る マンション・アパート烏丸御池駅より徒歩8分 2階 築20年6ヶ月の賃貸物件
- 地下鉄烏丸線/烏丸御池駅 徒歩8分
- 地下鉄東西線/二条城前駅 徒歩3分
- JR山陰本線/二条駅 徒歩13分
京都府京都市中京区鍛冶町
- 総階数
- 11階建
- 築年数
- 20年6ヶ月
- 建物構造
- 鉄筋コン
バス・トイレ別フローリングオートロック間取り図
階数
間取り
専有面積
賃料
管理費等
敷金
礼金
特徴
お気に入り
詳細
2階
2LDK
57.45㎡
13.8万円
12,180円
- 敷
- 不要
- 礼
- 260,000円
バス・トイレ別
フローリング
オートロック
詳細を見る マンション・アパート烏丸御池駅より徒歩8分 2階 築20年6ヶ月の賃貸物件
- 京都市営烏丸線/烏丸御池駅 徒歩8分
- 京都地下鉄東西線/二条城前駅 徒歩3分
京都府京都市中京区姉小路通堀川東入鍛冶町
- 総階数
- 11階建
- 築年数
- 20年6ヶ月
- 建物構造
- RC
バス・トイレ別フローリングオートロック間取り図
階数
間取り
専有面積
賃料
管理費等
敷金
礼金
特徴
お気に入り
詳細
2階
2LDK
57.45㎡
13.8万円
12,180円
- 敷
- 不要
- 礼
- 260,000円
バス・トイレ別
フローリング
オートロック
詳細を見る マンション・アパート四条駅より徒歩8分 4階 築7年3ヶ月の賃貸物件
- 京都市営烏丸線/四条駅 徒歩8分
- 阪急京都本線/烏丸駅 徒歩8分
京都府京都市中京区錦小路通油小路東入空也町
- 総階数
- 5階建
- 築年数
- 7年3ヶ月
- 建物構造
- RC
バス・トイレ別フローリングオートロック間取り図
階数
間取り
専有面積
賃料
管理費等
敷金
礼金
特徴
お気に入り
詳細
4階
1LDK
50.0㎡
14万円
10,000円
- 敷
- 不要
- 礼
- 280,000円
バス・トイレ別
フローリング
オートロック
詳細を見る マンション・アパート烏丸御池駅より徒歩8分 10階 築35年1ヶ月の賃貸物件
- 地下鉄烏丸線/烏丸御池駅 徒歩8分
- 地下鉄東西線/二条城前駅 徒歩3分
- 地下鉄東西線/烏丸御池駅 徒歩8分
京都府京都市中京区押油小路町
- 総階数
- 11階建
- 築年数
- 35年1ヶ月
- 建物構造
- 鉄骨鉄筋
バス・トイレ別フローリングオートロック間取り図
階数
間取り
専有面積
賃料
管理費等
敷金
礼金
特徴
お気に入り
詳細
10階
3DK
61.07㎡
14万円
不要
- 敷
- 200,000円
- 礼
- 200,000円
バス・トイレ別
フローリング
オートロック
詳細を見る 一戸建て北大路駅より徒歩8分 築56年2ヶ月の賃貸物件
- 京都市営烏丸線/北大路駅 徒歩8分
- 京都市営烏丸線/北山駅 徒歩14分
京都府京都市北区紫野下柳町
- 総階数
- 2階建
- 築年数
- 56年2ヶ月
- 建物構造
- 木造
バス・トイレ別駐車場ありフローリング間取り図
階数
間取り
専有面積
賃料
管理費等
敷金
礼金
特徴
お気に入り
詳細
-
3LDK
98.02㎡
14万円
不要
- 敷
- 140,000円
- 礼
- 140,000円
バス・トイレ別
駐車場あり
フローリング
詳細を見る マンション・アパート四条駅より徒歩8分 4階 築7年3ヶ月の賃貸物件
- 地下鉄烏丸線/四条駅 徒歩8分
- 阪急京都線/烏丸駅 徒歩8分
- 阪急京都線/大宮駅 徒歩8分
京都府京都市中京区空也町
- 総階数
- 5階建
- 築年数
- 7年3ヶ月
- 建物構造
- 鉄筋コン
バス・トイレ別フローリングオートロック間取り図
階数
間取り
専有面積
賃料
管理費等
敷金
礼金
特徴
お気に入り
詳細
4階
1LDK
50.0㎡
14万円
10,000円
- 敷
- 不要
- 礼
- 280,000円
バス・トイレ別
フローリング
オートロック
詳細を見る マンション・アパートメゾン・グラウコ 3階 築2年10ヶ月の賃貸物件
- 京阪本線/清水五条駅 徒歩9分
- 京阪本線/七条駅 徒歩11分
- JR東海道本線/京都駅 徒歩24分
京都府京都市東山区上梅屋町
- 総階数
- 4階建
- 築年数
- 2年10ヶ月
- 建物構造
- 鉄骨
バス・トイレ別オートロック追い炊き機能間取り図
階数
間取り
専有面積
賃料
管理費等
敷金
礼金
特徴
お気に入り
詳細
3階
2LDK
55.47㎡
14万円
11,000円
- 敷
- 150,000円
- 礼
- 200,000円
バス・トイレ別
オートロック
追い炊き機能
詳細を見る ほかの部屋を検索中…ほかの部屋は見つかりませんでした一戸建て北山駅より徒歩8分 築53年10ヶ月の賃貸物件
- 京都市営烏丸線/北山駅 徒歩8分
- 京都市営烏丸線/松ヶ崎駅 徒歩10分
京都府京都市左京区下鴨夜光町
- 総階数
- 2階建
- 築年数
- 53年10ヶ月
- 建物構造
- 木造
バス・トイレ別駐車場ありペット相談間取り図
階数
間取り
専有面積
賃料
管理費等
敷金
礼金
特徴
お気に入り
詳細
-
4K
77.53㎡
14万円
不要
- 敷
- 140,000円
- 礼
- 280,000円
バス・トイレ別
駐車場あり
ペット相談
詳細を見る マンション・アパートメゾン・グラウコ 4階 築2年10ヶ月の賃貸物件
- 京阪本線/清水五条駅 徒歩9分
- 京阪本線/七条駅 徒歩11分
- JR東海道本線/京都駅 徒歩24分
京都府京都市東山区上梅屋町
- 総階数
- 4階建
- 築年数
- 2年10ヶ月
- 建物構造
- 鉄骨
バス・トイレ別オートロック追い炊き機能間取り図
階数
間取り
専有面積
賃料
管理費等
敷金
礼金
特徴
お気に入り
詳細
4階
2LDK
55.47㎡
14.3万円
11,000円
- 敷
- 150,000円
- 礼
- 200,000円
バス・トイレ別
オートロック
追い炊き機能
詳細を見る ほかの部屋を検索中…ほかの部屋は見つかりませんでしたマンション・アパートWith京Grandes 4階 築7年4ヶ月の賃貸物件
- 京都市営烏丸線/烏丸御池駅 徒歩10分
- 阪急京都本線/烏丸駅 徒歩12分
京都府京都市中京区三条油小路町
- 総階数
- 5階建
- 築年数
- 7年4ヶ月
- 建物構造
- RC
バス・トイレ別フローリングオートロック間取り図
階数
間取り
専有面積
賃料
管理費等
敷金
礼金
特徴
お気に入り
詳細
4階
2LDK
50.24㎡
14.4万円
13,000円
- 敷
- 144,000円
- 礼
- 200,000円
バス・トイレ別
フローリング
オートロック
詳細を見る ほかの部屋を検索中…ほかの部屋は見つかりませんでしたマンション・アパートリーガル京都聖護院 3階 築7年7ヶ月の賃貸物件
- 京阪本線/神宮丸太町駅 徒歩10分
- 京都地下鉄東西線/東山駅 徒歩16分
京都府京都市左京区聖護院山王町
- 総階数
- 5階建
- 築年数
- 7年7ヶ月
- 建物構造
- RC
バス・トイレ別駐車場ありフローリング間取り図
階数
間取り
専有面積
賃料
管理費等
敷金
礼金
特徴
お気に入り
詳細
3階
2LDK
55.0㎡
14.5万円
11,780円
- 敷
- 不要
- 礼
- 145,000円
バス・トイレ別
駐車場あり
フローリング
詳細を見る ほかの部屋を検索中…ほかの部屋は見つかりませんでしたマンション・アパートメゾン油小路 2階 築21年5ヶ月の賃貸物件
- 京都市営烏丸線/四条駅 徒歩8分
- 阪急京都本線/烏丸駅 徒歩9分
京都府京都市下京区油小路通四条下ル石井筒町
- 総階数
- 10階建
- 築年数
- 21年5ヶ月
- 建物構造
- RC
バス・トイレ別駐車場ありフローリング間取り図
階数
間取り
専有面積
賃料
管理費等
敷金
礼金
特徴
お気に入り
詳細
2階
2LDK
64.04㎡
14.5万円
9,000円
- 敷
- 不要
- 礼
- 145,000円
バス・トイレ別
駐車場あり
フローリング
詳細を見る ほかの部屋を検索中…ほかの部屋は見つかりませんでしたマンション・アパート四条駅より徒歩8分 2階 築9年4ヶ月の賃貸物件
- 京都市営烏丸線/四条駅 徒歩8分
- 京都市営烏丸線/烏丸御池駅 徒歩13分
京都府京都市中京区油小路通四条上る藤本町
- 総階数
- 5階建
- 築年数
- 9年4ヶ月
- 建物構造
- RC
バス・トイレ別駐車場ありフローリング間取り図
階数
間取り
専有面積
賃料
管理費等
敷金
礼金
特徴
お気に入り
詳細
2階
2LDK
52.93㎡
14.7万円
8,000円
- 敷
- 147,000円
- 礼
- 294,000円
バス・トイレ別
駐車場あり
フローリング
詳細を見る マンション・アパート四条駅より徒歩9分 7階 築14年2ヶ月の賃貸物件
- 地下鉄烏丸線/四条駅 徒歩9分
- 阪急京都線/大宮駅 徒歩8分
- 阪急京都線/烏丸駅 徒歩9分
京都府京都市下京区綾堀川町
- 総階数
- 10階建
- 築年数
- 14年2ヶ月
- 建物構造
- 鉄筋コン
バス・トイレ別フローリングオートロック間取り図
階数
間取り
専有面積
賃料
管理費等
敷金
礼金
特徴
お気に入り
詳細
7階
2LDK
71.0㎡
14.7万円
8,000円
- 敷
- 不要
- 礼
- 300,000円
バス・トイレ別
フローリング
オートロック
詳細を見る マンション・アパート京都駅より徒歩3分 7階 築20年2ヶ月の賃貸物件
- JR東海道・山陽本線/京都駅 徒歩3分
- 京都市営烏丸線/九条駅 徒歩4分
京都府京都市南区東九条上殿田町
- 総階数
- 10階建
- 築年数
- 20年2ヶ月
- 建物構造
- RC
バス・トイレ別フローリングオートロック間取り図
階数
間取り
専有面積
賃料
管理費等
敷金
礼金
特徴
お気に入り
詳細
7階
2DK
46.03㎡
14.7万円
8,500円
- 敷
- 147,000円
- 礼
- 294,000円
バス・トイレ別
フローリング
オートロック
詳細を見る マンション・アパート烏丸駅より徒歩9分 4階 築3年3ヶ月の賃貸物件
- 阪急京都線/烏丸駅 徒歩9分
- 地下鉄烏丸線/四条駅 徒歩9分
- 地下鉄東西線/烏丸御池駅 徒歩9分
京都府京都市中京区池須町
- 総階数
- 5階建
- 築年数
- 3年3ヶ月
- 建物構造
- 鉄筋コン
バス・トイレ別フローリングオートロック間取り図
階数
間取り
専有面積
賃料
管理費等
敷金
礼金
特徴
お気に入り
詳細
4階
1LDK
37.26㎡
14.8万円
不要
- 敷
- 不要
- 礼
- 296,000円
バス・トイレ別
フローリング
オートロック
詳細を見る マンション・アパート烏丸駅より徒歩9分 4階 築3年3ヶ月の賃貸物件
- 阪急京都本線/烏丸駅 徒歩9分
- 京都市営烏丸線/四条駅 徒歩9分
京都府京都市中京区西洞院通六角下る池須町
- 総階数
- 5階建
- 築年数
- 3年3ヶ月
- 建物構造
- RC
バス・トイレ別フローリングオートロック間取り図
階数
間取り
専有面積
賃料
管理費等
敷金
礼金
特徴
お気に入り
詳細
4階
1LDK
37.26㎡
14.8万円
不要
- 敷
- 不要
- 礼
- 296,000円
バス・トイレ別
フローリング
オートロック
詳細を見る マンション・アパート四条駅より徒歩8分 5階 築7年3ヶ月の賃貸物件
- 地下鉄烏丸線/四条駅 徒歩8分
- 阪急京都線/烏丸駅 徒歩8分
- 阪急京都線/大宮駅 徒歩8分
京都府京都市中京区空也町
- 総階数
- 5階建
- 築年数
- 7年3ヶ月
- 建物構造
- 鉄筋コン
バス・トイレ別フローリングオートロック間取り図
階数
間取り
専有面積
賃料
管理費等
敷金
礼金
特徴
お気に入り
詳細
5階
1LDK
54.71㎡
14.9万円
10,000円
- 敷
- 不要
- 礼
- 298,000円
バス・トイレ別
フローリング
オートロック
詳細を見る マンション・アパート四条駅より徒歩8分 5階 築7年3ヶ月の賃貸物件
- 京都市営烏丸線/四条駅 徒歩8分
- 阪急京都本線/烏丸駅 徒歩8分
京都府京都市中京区錦小路通油小路東入空也町
- 総階数
- 5階建
- 築年数
- 7年3ヶ月
- 建物構造
- RC
バス・トイレ別フローリングオートロック間取り図
階数
間取り
専有面積
賃料
管理費等
敷金
礼金
特徴
お気に入り
詳細
5階
1LDK
54.71㎡
14.9万円
10,000円
- 敷
- 不要
- 礼
- 298,000円
バス・トイレ別
フローリング
オートロック
詳細を見る 一戸建て出町柳駅より徒歩8分 1階 築5年7ヶ月の賃貸物件
- 京阪鴨東線/出町柳駅 徒歩8分
- 地下鉄烏丸線/今出川駅 徒歩10分
- 叡山電鉄叡山本線/出町柳駅 徒歩10分
京都府京都市上京区真如堂突抜町
- 総階数
- 3階建
- 築年数
- 5年7ヶ月
- 建物構造
- 木造
バス・トイレ別角部屋駐輪場あり間取り図
階数
間取り
専有面積
賃料
管理費等
敷金
礼金
特徴
お気に入り
詳細
1階
1LDK
50.0㎡
15万円
不要
- 敷
- 50,000円
- 礼
- 150,000円
バス・トイレ別
角部屋
駐輪場あり
詳細を見る 出町柳駅より徒歩8分 築5年7ヶ月の賃貸物件
- 京阪本線/出町柳駅 徒歩8分
- 京都市営烏丸線/今出川駅 徒歩10分
京都府京都市上京区真如堂突抜町
- 総階数
- 3階建
- 築年数
- 5年7ヶ月
- 建物構造
- 木造
バス・トイレ別角部屋駐輪場あり間取り図
階数
間取り
専有面積
賃料
管理費等
敷金
礼金
特徴
お気に入り
詳細
-
1LDK
50.0㎡
15万円
不要
- 敷
- 50,000円
- 礼
- 150,000円
バス・トイレ別
角部屋
駐輪場あり
詳細を見る マンション・アパートアリヴィオ清涼A 1階 築17年3ヶ月の賃貸物件
- JR東海道・山陽本線/向日町駅 徒歩9分
- JR東海道・山陽本線/桂川駅 徒歩15分
京都府京都市南区久世殿城町
- 総階数
- 2階建
- 築年数
- 17年3ヶ月
- 建物構造
- 軽量鉄骨
バス・トイレ別駐車場ありフローリング間取り図
階数
間取り
専有面積
賃料
管理費等
敷金
礼金
特徴
お気に入り
詳細
1階
4LDK
105.64㎡
15万円
6,000円
- 敷
- 150,000円
- 礼
- 300,000円
バス・トイレ別
駐車場あり
フローリング
詳細を見る ほかの部屋を検索中…ほかの部屋は見つかりませんでしたマンション・アパート京都駅より徒歩8分 1階 新築の賃貸物件
- JR東海道・山陽本線/京都駅 徒歩8分
- 京都市営烏丸線/九条駅 徒歩1分
京都府京都市南区東九条烏丸町
- 総階数
- 3階建
- 築年数
- 新築
- 建物構造
- RC
バス・トイレ別駐車場ありフローリング間取り図
階数
間取り
専有面積
賃料
管理費等
敷金
礼金
特徴
お気に入り
詳細
1階
2LDK
56.0㎡
15万円
8,000円
- 敷
- 不要
- 礼
- 300,000円
バス・トイレ別
駐車場あり
フローリング
詳細を見る マンション・アパートコンフォールパレ新町二条 3階 築8年2ヶ月の賃貸物件
- 京都市営烏丸線/烏丸御池駅 徒歩8分
- 京都市営烏丸線/丸太町駅 徒歩6分
京都府京都市中京区二条新町
- 総階数
- 3階建
- 築年数
- 8年2ヶ月
- 建物構造
- RC
バス・トイレ別駐車場ありフローリング間取り図
階数
間取り
専有面積
賃料
管理費等
敷金
礼金
特徴
お気に入り
詳細
3階
2LDK
61.6㎡
15.5万円
13,000円
- 敷
- 不要
- 礼
- 不要
バス・トイレ別
駐車場あり
フローリング
詳細を見る ほかの部屋を検索中…ほかの部屋は見つかりませんでした


この店舗からのコメント
担当エリアは京都市全域、京都市内各地を熟知したスタッフが揃っています。住まいの事から生活情報に至るまで、京都のこと・賃貸情報のことならなんでもご相談ください!