株式会社京都ライフ 京都ライフ西大路店の詳細情報
| アクセス | 東海道本線/西大路 徒歩2分 | ||||
|---|---|---|---|---|---|
| 住所 | 京都府京都市南区唐橋西平垣町38-1 ルミエール唐橋1階 | ||||
| 営業時間 | 9:30~19:00 | ||||
| 定休日 | 年中無休(盆・正月を除く) | ||||
| 電話番号 | 075-585-6501 | ||||
株式会社京都ライフ 京都ライフ西大路店の周辺地図
ニフティ不動産に掲載中の物件情報
| 1R~1LDK | 2K~2LDK | 3K~3LDK | 4K~4LDK | 5K~ | |
|---|---|---|---|---|---|
| 賃貸 | 9,075件 | 2,405件 | 958件 | 215件 | 81件 |
| 新築マンション | - | - | - | - | - |
| 中古マンション | - | - | - | - | - |
| 新築戸建 | - | - | - | - | - |
| 中古戸建 | - | - | - | - | - |
| ~50㎡ | 50~80㎡ | 80~100㎡ | 100~130㎡ | 130㎡~ | |
| 土地 | - | - | - | - | - |
不動産会社情報の精度向上にご協力をお願いいたします。不動産会社情報に誤りがある場合はこちらよりご連絡ください。
株式会社京都ライフ 京都ライフ西大路店の物件一覧
並び替え
マンション・アパート祇園四条駅より徒歩8分 4階 築45年9ヶ月の賃貸物件
- 京阪本線/祇園四条駅 徒歩8分
- 阪急京都線/京都河原町駅 徒歩12分
- 地下鉄東西線/東山駅 徒歩8分
京都府京都市東山区林下町
- 総階数
- 5階建
- 築年数
- 45年9ヶ月
- 建物構造
- 鉄筋コン
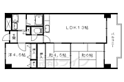
フローリング南向き駐輪場あり間取り図
階数
間取り
専有面積
賃料
管理費等
敷金
礼金
特徴
お気に入り
詳細
4階
1LDK
34.0㎡
6.5万円
9,000円
- 敷
- 不要
- 礼
- 不要
フローリング
南向き
駐輪場あり
詳細を見る マンション・アパート京都市役所前駅より徒歩6分 4階 築17年の賃貸物件
- 京都地下鉄東西線/京都市役所前駅 徒歩6分
- 京都市営烏丸線/烏丸御池駅 徒歩9分
京都府京都市中京区橘町
- 総階数
- 5階建
- 築年数
- 17年
- 建物構造
- ALC
バス・トイレ別フローリングオートロック間取り図
階数
間取り
専有面積
賃料
管理費等
敷金
礼金
特徴
お気に入り
詳細
4階
1K
20.54㎡
6.5万円
5,000円
- 敷
- 不要
- 礼
- 130,000円
バス・トイレ別
フローリング
オートロック
詳細を見る 一戸建て花園駅より徒歩9分 築56年2ヶ月の賃貸物件
- JR山陰本線/花園駅 徒歩9分
- 京都地下鉄東西線/西大路御池駅 徒歩23分
京都府京都市右京区花園木辻南町
- 総階数
- 2階建
- 築年数
- 56年2ヶ月
- 建物構造
- 木造
バス・トイレ別ペット相談フローリング間取り図
階数
間取り
専有面積
賃料
管理費等
敷金
礼金
特徴
お気に入り
詳細
-
4DK
75.36㎡
6.5万円
不要
- 敷
- 65,000円
- 礼
- 120,000円
バス・トイレ別
ペット相談
フローリング
詳細を見る マンション・アパート五条駅より徒歩9分 5階 築41年10ヶ月の賃貸物件
- 京都市営烏丸線/五条駅 徒歩9分
- 京都市営烏丸線/四条駅 徒歩12分
京都府京都市下京区本上神明町
- 総階数
- 7階建
- 築年数
- 41年10ヶ月
- 建物構造
- RC
バス・トイレ別フローリング角部屋間取り図
階数
間取り
専有面積
賃料
管理費等
敷金
礼金
特徴
お気に入り
詳細
5階
1R
28.5㎡
6.5万円
5,000円
- 敷
- 65,000円
- 礼
- 65,000円
バス・トイレ別
フローリング
角部屋
詳細を見る マンション・アパート沢町ハイツ 3階 築30年の賃貸物件
- JR東海道・山陽本線/山科駅 徒歩9分
- 京都地下鉄東西線/山科駅 徒歩9分
京都府京都市山科区音羽沢町
- 総階数
- 3階建
- 築年数
- 30年
- 建物構造
- RC
バス・トイレ別駐車場ありフローリング間取り図
階数
間取り
専有面積
賃料
管理費等
敷金
礼金
特徴
お気に入り
詳細
3階
2LDK
42.1㎡
6.55万円
5,500円
- 敷
- 不要
- 礼
- 不要
バス・トイレ別
駐車場あり
フローリング
詳細を見る ほかの部屋を検索中…ほかの部屋は見つかりませんでしたマンション・アパート大山崎駅より徒歩9分 2階 築29年10ヶ月の賃貸物件
- 阪急京都本線/大山崎駅 徒歩9分
- JR東海道・山陽本線/山崎駅 徒歩12分
京都府乙訓郡大山崎町字大山崎小字尻江
- 総階数
- 3階建
- 築年数
- 29年10ヶ月
- 建物構造
- ALC
バス・トイレ別駐車場ありフローリング間取り図
階数
間取り
専有面積
賃料
管理費等
敷金
礼金
特徴
お気に入り
詳細
2階
2DK
44.0㎡
6.6万円
5,000円
- 敷
- 不要
- 礼
- 66,000円
バス・トイレ別
駐車場あり
フローリング
詳細を見る マンション・アパート京都駅より徒歩12分 1階 築3年の賃貸物件
- JR東海道・山陽本線/京都駅 徒歩12分
- 京都市営烏丸線/五条駅 徒歩7分
京都府京都市下京区唐物町
- 総階数
- 3階建
- 築年数
- 3年
- 建物構造
- 鉄骨造
バス・トイレ別ペット相談フローリング間取り図
階数
間取り
専有面積
賃料
管理費等
敷金
礼金
特徴
お気に入り
詳細
1階
1K
25.84㎡
6.6万円
5,000円
- 敷
- 66,000円
- 礼
- 66,000円
バス・トイレ別
ペット相談
フローリング
詳細を見る マンション・アパート大山崎駅より徒歩9分 2階 築29年10ヶ月の賃貸物件
- 阪急京都線/大山崎駅 徒歩9分
- JR東海道本線/山崎駅 徒歩12分
- JR東海道本線/長岡京駅 徒歩44分
京都府乙訓郡大山崎町字大山崎
- 総階数
- 3階建
- 築年数
- 29年10ヶ月
- 建物構造
- 鉄骨
バス・トイレ別駐車場ありフローリング間取り図
階数
間取り
専有面積
賃料
管理費等
敷金
礼金
特徴
お気に入り
詳細
2階
2DK
44.0㎡
6.6万円
5,000円
- 敷
- 不要
- 礼
- 66,000円
バス・トイレ別
駐車場あり
フローリング
詳細を見る マンション・アパート西大路御池駅より徒歩9分 2階 築37年2ヶ月の賃貸物件
- 京都地下鉄東西線/西大路御池駅 徒歩9分
- 阪急京都本線/西院駅 徒歩20分
京都府京都市右京区太秦安井水戸田町
- 総階数
- 2階建
- 築年数
- 37年2ヶ月
- 建物構造
- 軽量鉄骨
バス・トイレ別駐車場ありフローリング間取り図
階数
間取り
専有面積
賃料
管理費等
敷金
礼金
特徴
お気に入り
詳細
2階
2DK
38.0㎡
6.6万円
3,000円
- 敷
- 不要
- 礼
- 50,000円
バス・トイレ別
駐車場あり
フローリング
詳細を見る マンション・アパート丸太町駅より徒歩10分 2階 築25年2ヶ月の賃貸物件
- 地下鉄烏丸線/丸太町駅 徒歩10分
- 地下鉄東西線/二条城前駅 徒歩13分
- JR山陰本線/二条駅 徒歩23分
京都府京都市上京区西裏辻町
- 総階数
- 2階建
- 築年数
- 25年2ヶ月
- 建物構造
- 鉄骨
バス・トイレ別南向き駐輪場あり間取り図
階数
間取り
専有面積
賃料
管理費等
敷金
礼金
特徴
お気に入り
詳細
2階
1K
19.87㎡
6.6万円
5,000円
- 敷
- 不要
- 礼
- 66,000円
バス・トイレ別
南向き
駐輪場あり
詳細を見る マンション・アパート桃山駅より徒歩9分 1階 築1年10ヶ月の賃貸物件
- JR奈良線/桃山駅 徒歩9分
- 京阪宇治線/観月橋駅 徒歩9分
京都府京都市伏見区桃山町泰長老
- 総階数
- 3階建
- 築年数
- 1年10ヶ月
- 建物構造
- 木造
バス・トイレ別オートロック追い炊き機能間取り図
階数
間取り
専有面積
賃料
管理費等
敷金
礼金
特徴
お気に入り
詳細
1階
1DK
31.18㎡
6.6万円
5,000円
- 敷
- 30,000円
- 礼
- 不要
バス・トイレ別
オートロック
追い炊き機能
詳細を見る マンション・アパートレオパレスフォーティウィンクス 2階 築21年4ヶ月の賃貸物件
- JR東海道・山陽本線/山科駅 徒歩9分
- 京都地下鉄東西線/山科駅 徒歩9分
京都府京都市山科区厨子奥若林町
- 総階数
- 2階建
- 築年数
- 21年4ヶ月
- 建物構造
- 軽量鉄骨
バス・トイレ別フローリングコンロ2口以上間取り図
階数
間取り
専有面積
賃料
管理費等
敷金
礼金
特徴
お気に入り
詳細
2階
1K
23.18㎡
6.6万円
7,000円
- 敷
- 不要
- 礼
- 不要
バス・トイレ別
フローリング
コンロ2口以上
詳細を見る ほかの部屋を検索中…ほかの部屋は見つかりませんでしたマンション・アパート七条駅より徒歩2分 1階 築25年1ヶ月の賃貸物件
- 京阪本線/七条駅 徒歩2分
- JR東海道・山陽本線/京都駅 徒歩9分
京都府京都市下京区下二之宮町
- 総階数
- 4階建
- 築年数
- 25年1ヶ月
- 建物構造
- 鉄骨造
バス・トイレ別フローリングオートロック間取り図
階数
間取り
専有面積
賃料
管理費等
敷金
礼金
特徴
お気に入り
詳細
1階
1K
25.64㎡
6.6万円
5,000円
- 敷
- 66,000円
- 礼
- 66,000円
バス・トイレ別
フローリング
オートロック
詳細を見る マンション・アパート大住駅より徒歩9分 1階 新築の賃貸物件
- JR片町線(学研都市線)/大住駅 徒歩9分
- JR片町線(学研都市線)/京田辺駅 徒歩20分
京都府京田辺市大住大坪
- 総階数
- 3階建
- 築年数
- 新築
- 建物構造
- 木造
バス・トイレ別駐車場ありフローリング間取り図
階数
間取り
専有面積
賃料
管理費等
敷金
礼金
特徴
お気に入り
詳細
1階
1K
27.02㎡
6.65万円
4,600円
- 敷
- 不要
- 礼
- 66,500円
バス・トイレ別
駐車場あり
フローリング
詳細を見る マンション・アパート石田駅より徒歩9分 2階 築39年の賃貸物件
- 京都地下鉄東西線/石田駅 徒歩9分
- 京都地下鉄東西線/六地蔵駅 徒歩18分
京都府京都市伏見区石田大山町
- 総階数
- 6階建
- 築年数
- 39年
- 建物構造
- RC
バス・トイレ別駐車場ありペット相談間取り図
階数
間取り
専有面積
賃料
管理費等
敷金
礼金
特徴
お気に入り
詳細
2階
3LDK
56.0㎡
6.7万円
7,000円
- 敷
- 不要
- 礼
- 67,000円
バス・トイレ別
駐車場あり
ペット相談
詳細を見る マンション・アパートCRESTTAPP京都太秦天神川dex 2階 新築の賃貸物件
- 京都地下鉄東西線/太秦天神川駅 徒歩9分
- JR山陰本線/花園駅 徒歩18分
京都府京都市右京区山ノ内宮脇町
- 総階数
- 5階建
- 築年数
- 新築
- 建物構造
- RC
バス・トイレ別ペット相談フローリング間取り図
階数
間取り
専有面積
賃料
管理費等
敷金
礼金
特徴
お気に入り
詳細
2階
1K
25.52㎡
6.7万円
20,000円
- 敷
- 不要
- 礼
- 不要
バス・トイレ別
ペット相談
フローリング
詳細を見る ほかの部屋を検索中…ほかの部屋は見つかりませんでしたマンション・アパートピアハウス 1階 築5年1ヶ月の賃貸物件
- 阪急京都本線/桂駅 徒歩9分
- 阪急嵐山線/上桂駅 徒歩13分
京都府京都市西京区桂乾町
- 総階数
- 2階建
- 築年数
- 5年1ヶ月
- 建物構造
- 木造
バス・トイレ別フローリングオートロック間取り図
階数
間取り
専有面積
賃料
管理費等
敷金
礼金
特徴
お気に入り
詳細
1階
1K
25.39㎡
6.7万円
4,000円
- 敷
- 67,000円
- 礼
- 67,000円
バス・トイレ別
フローリング
オートロック
詳細を見る ほかの部屋を検索中…ほかの部屋は見つかりませんでしたマンション・アパート西大路御池駅より徒歩9分 4階 新築の賃貸物件
- 京都地下鉄東西線/西大路御池駅 徒歩9分
- 京都地下鉄東西線/太秦天神川駅 徒歩10分
京都府京都市右京区山ノ内宮脇町
- 総階数
- 4階建
- 築年数
- 新築
- 建物構造
- 鉄骨造
バス・トイレ別フローリング新着間取り図
階数
間取り
専有面積
賃料
管理費等
敷金
礼金
特徴
お気に入り
詳細
4階
1K
25.3㎡
6.7万円
8,000円
- 敷
- 67,000円
- 礼
- 67,000円
バス・トイレ別
フローリング
新着
詳細を見る マンション・アパート石田駅より徒歩9分 3階 築39年の賃貸物件
- 京都地下鉄東西線/石田駅 徒歩9分
- 京都地下鉄東西線/六地蔵駅 徒歩18分
京都府京都市伏見区石田大山町
- 総階数
- 6階建
- 築年数
- 39年
- 建物構造
- RC
バス・トイレ別駐車場ありペット相談間取り図
階数
間取り
専有面積
賃料
管理費等
敷金
礼金
特徴
お気に入り
詳細
3階
3LDK
56.0㎡
6.7万円
7,000円
- 敷
- 不要
- 礼
- 67,000円
バス・トイレ別
駐車場あり
ペット相談
詳細を見る マンション・アパート桃山駅より徒歩9分 1階 築1年10ヶ月の賃貸物件
- JR奈良線/桃山駅 徒歩9分
- 京阪宇治線/観月橋駅 徒歩9分
京都府京都市伏見区桃山町泰長老
- 総階数
- 3階建
- 築年数
- 1年10ヶ月
- 建物構造
- 木造
バス・トイレ別オートロック追い炊き機能間取り図
階数
間取り
専有面積
賃料
管理費等
敷金
礼金
特徴
お気に入り
詳細
1階
1LDK
32.01㎡
6.7万円
5,000円
- 敷
- 30,000円
- 礼
- 不要
バス・トイレ別
オートロック
追い炊き機能
詳細を見る マンション・アパート西大路御池駅より徒歩9分 3階 新築の賃貸物件
- 京都地下鉄東西線/西大路御池駅 徒歩9分
- 京都地下鉄東西線/太秦天神川駅 徒歩10分
京都府京都市右京区山ノ内宮脇町
- 総階数
- 4階建
- 築年数
- 新築
- 建物構造
- 鉄骨造
バス・トイレ別フローリングオートロック間取り図
階数
間取り
専有面積
賃料
管理費等
敷金
礼金
特徴
お気に入り
詳細
3階
1K
25.3㎡
6.7万円
8,000円
- 敷
- 67,000円
- 礼
- 67,000円
バス・トイレ別
フローリング
オートロック
詳細を見る マンション・アパートベラジオ京都神泉苑601 5階 築20年の賃貸物件
- JR山陰本線/二条駅 徒歩9分
- 阪急京都本線/大宮駅 徒歩9分
京都府京都市中京区今新在家西町
- 総階数
- 8階建
- 築年数
- 20年
- 建物構造
- RC
バス・トイレ別フローリングオートロック間取り図
階数
間取り
専有面積
賃料
管理費等
敷金
礼金
特徴
お気に入り
詳細
5階
1K
34.3㎡
6.748万円
14,520円
- 敷
- 不要
- 礼
- 82,000円
バス・トイレ別
フローリング
オートロック
詳細を見る ほかの部屋を検索中…ほかの部屋は見つかりませんでしたマンション・アパート四宮駅より徒歩4分 2階 築2年8ヶ月の賃貸物件
- 京阪京津線/四宮駅 徒歩4分
- JR東海道本線/山科駅 徒歩8分
- 京阪京津線/京阪山科駅 徒歩9分
京都府京都市山科区四ノ宮泉水町
- 総階数
- 3階建
- 築年数
- 2年8ヶ月
- 建物構造
- 木造
バス・トイレ別フローリングオートロック間取り図
階数
間取り
専有面積
賃料
管理費等
敷金
礼金
特徴
お気に入り
詳細
2階
1LDK
30.1㎡
6.75万円
4,000円
- 敷
- 不要
- 礼
- 70,500円
バス・トイレ別
フローリング
オートロック
詳細を見る マンション・アパートCRESTTAPP京都太秦天神川dex 2階 新築の賃貸物件
- 京都地下鉄東西線/太秦天神川駅 徒歩9分
- JR山陰本線/花園駅 徒歩18分
京都府京都市右京区山ノ内宮脇町
- 総階数
- 5階建
- 築年数
- 新築
- 建物構造
- RC
バス・トイレ別ペット相談フローリング間取り図
階数
間取り
専有面積
賃料
管理費等
敷金
礼金
特徴
お気に入り
詳細
2階
1K
25.52㎡
6.77万円
20,000円
- 敷
- 不要
- 礼
- 不要
バス・トイレ別
ペット相談
フローリング
詳細を見る ほかの部屋を検索中…ほかの部屋は見つかりませんでしたマンション・アパート京都駅より徒歩9分 1階 築9年5ヶ月の賃貸物件
- JR東海道・山陽本線/京都駅 徒歩9分
- 京阪本線/七条駅 徒歩9分
京都府京都市下京区堀詰町
- 総階数
- 3階建
- 築年数
- 9年5ヶ月
- 建物構造
- 鉄骨造
バス・トイレ別フローリングオートロック間取り図
階数
間取り
専有面積
賃料
管理費等
敷金
礼金
特徴
お気に入り
詳細
1階
1K
24.84㎡
6.8万円
5,500円
- 敷
- 不要
- 礼
- 68,000円
バス・トイレ別
フローリング
オートロック
詳細を見る マンション・アパート元田中駅より徒歩9分 2階 築21年6ヶ月の賃貸物件
- 叡山電鉄叡山本線/元田中駅 徒歩9分
- 京阪本線/出町柳駅 徒歩19分
京都府京都市左京区北白川蔦町
- 総階数
- 2階建
- 築年数
- 21年6ヶ月
- 建物構造
- 軽量鉄骨
バス・トイレ別フローリングインターネット対応間取り図
階数
間取り
専有面積
賃料
管理費等
敷金
礼金
特徴
お気に入り
詳細
2階
1K
19.6㎡
6.8万円
5,000円
- 敷
- 不要
- 礼
- 68,000円
バス・トイレ別
フローリング
インターネット対応
詳細を見る マンション・アパートサンクトスコート京都駅北 1階 築9年5ヶ月の賃貸物件
- JR東海道本線/京都駅 徒歩9分
- 京阪電鉄本線/七条駅 徒歩9分
- 京都市営地下鉄烏丸線/五条駅 徒歩9分
京都府京都市下京区間之町通七条上る堀詰町
- 総階数
- 3階建
- 築年数
- 9年5ヶ月
- 建物構造
- 鉄骨造
バス・トイレ別フローリングオートロック間取り図
階数
間取り
専有面積
賃料
管理費等
敷金
礼金
特徴
お気に入り
詳細
1階
1K
24.84㎡
6.8万円
5,500円
- 敷
- 不要
- 礼
- 68,000円
バス・トイレ別
フローリング
オートロック
詳細を見る ほかの部屋を検索中…ほかの部屋は見つかりませんでしたマンション・アパートCasa de issa 6階 築19年の賃貸物件
- 京都市営烏丸線/四条駅 徒歩9分
- 阪急京都本線/大宮駅 徒歩8分
京都府京都市下京区喜吉町
- 総階数
- 7階建
- 築年数
- 19年
- 建物構造
- ALC
バス・トイレ別フローリングオートロック間取り図
階数
間取り
専有面積
賃料
管理費等
敷金
礼金
特徴
お気に入り
詳細
6階
1K
27.3㎡
6.8万円
7,000円
- 敷
- 70,000円
- 礼
- 60,000円
バス・トイレ別
フローリング
オートロック
詳細を見る ほかの部屋を検索中…ほかの部屋は見つかりませんでしたマンション・アパートグッディライフ御幸町 1階 築38年の賃貸物件
- 京都市営烏丸線/丸太町駅 徒歩9分
- 京都地下鉄東西線/京都市役所前駅 徒歩11分
京都府京都市中京区松本町
- 総階数
- 3階建
- 築年数
- 38年
- 建物構造
- RC
新着オートロック南向き間取り図
階数
間取り
専有面積
賃料
管理費等
敷金
礼金
特徴
お気に入り
詳細
1階
1K
22.8㎡
6.8万円
8,000円
- 敷
- 68,000円
- 礼
- 68,000円
新着
オートロック
南向き
詳細を見る ほかの部屋を検索中…ほかの部屋は見つかりませんでしたマンション・アパート太秦天神川駅より徒歩9分 1階 築9年8ヶ月の賃貸物件
- 京都地下鉄東西線/太秦天神川駅 徒歩9分
- JR山陰本線/花園駅 徒歩22分
京都府京都市右京区太秦松本町
- 総階数
- 2階建
- 築年数
- 9年8ヶ月
- 建物構造
- 木造
バス・トイレ別駐車場あり保証人不要間取り図
階数
間取り
専有面積
賃料
管理費等
敷金
礼金
特徴
お気に入り
詳細
1階
1K
25.89㎡
6.8万円
7,000円
- 敷
- 不要
- 礼
- 68,000円
バス・トイレ別
駐車場あり
保証人不要
詳細を見る マンション・アパートBoulogneKamogawa 1階 築20年の賃貸物件
- 京都市営烏丸線/北大路駅 徒歩9分
- 京都市営烏丸線/北山駅 徒歩12分
京都府京都市北区小山元町
- 総階数
- 7階建
- 築年数
- 20年
- 建物構造
- RC
バス・トイレ別ペット相談フローリング間取り図
階数
間取り
専有面積
賃料
管理費等
敷金
礼金
特徴
お気に入り
詳細
1階
1K
28.86㎡
6.8万円
6,000円
- 敷
- 80,000円
- 礼
- 150,000円
バス・トイレ別
ペット相談
フローリング
詳細を見る ほかの部屋を検索中…ほかの部屋は見つかりませんでしたマンション・アパートサンクトスコート京都駅北 2階 築9年5ヶ月の賃貸物件
- JR東海道本線/京都駅 徒歩9分
- 京阪電鉄本線/七条駅 徒歩9分
- 京都市営地下鉄烏丸線/五条駅 徒歩9分
京都府京都市下京区間之町通七条上る堀詰町
- 総階数
- 3階建
- 築年数
- 9年5ヶ月
- 建物構造
- 鉄骨造
バス・トイレ別フローリングオートロック間取り図
階数
間取り
専有面積
賃料
管理費等
敷金
礼金
特徴
お気に入り
詳細
2階
1K
22.35㎡
6.8万円
5,500円
- 敷
- 不要
- 礼
- 68,000円
バス・トイレ別
フローリング
オートロック
詳細を見る ほかの部屋を検索中…ほかの部屋は見つかりませんでした一戸建て西京極駅より徒歩9分 1階 築60年8ヶ月の賃貸物件
- 阪急京都線/西京極駅 徒歩9分
- 地下鉄東西線/太秦天神川駅 徒歩15分
- 阪急京都線/西院駅 徒歩18分
京都府京都市右京区西院西田町
- 総階数
- 2階建
- 築年数
- 60年8ヶ月
- 建物構造
- 木造
バス・トイレ別駐車場ありフローリング間取り図
階数
間取り
専有面積
賃料
管理費等
敷金
礼金
特徴
お気に入り
詳細
1階
2LDK
48.0㎡
6.8万円
不要
- 敷
- 不要
- 礼
- 100,000円
バス・トイレ別
駐車場あり
フローリング
詳細を見る マンション・アパートCasa de issa 6階 築19年の賃貸物件
- 京都市営地下鉄烏丸線/四条駅 徒歩9分
- 阪急電鉄京都線/大宮駅 徒歩8分
- 阪急電鉄京都線/烏丸駅 徒歩9分
京都府京都市下京区仏光寺通堀川東入喜吉町
- 総階数
- 7階建
- 築年数
- 19年
- 建物構造
- ALC
バス・トイレ別フローリングオートロック間取り図
階数
間取り
専有面積
賃料
管理費等
敷金
礼金
特徴
お気に入り
詳細
6階
1K
27.3㎡
6.8万円
7,000円
- 敷
- 70,000円
- 礼
- 60,000円
バス・トイレ別
フローリング
オートロック
詳細を見る ほかの部屋を検索中…ほかの部屋は見つかりませんでしたマンション・アパート西大路駅より徒歩9分 2階 築5年7ヶ月の賃貸物件
- JR東海道・山陽本線/西大路駅 徒歩9分
- 阪急京都本線/西京極駅 徒歩22分
京都府京都市南区吉祥院西ノ庄西中町
- 総階数
- 6階建
- 築年数
- 5年7ヶ月
- 建物構造
- RC
バス・トイレ別駐車場ありペット相談間取り図
階数
間取り
専有面積
賃料
管理費等
敷金
礼金
特徴
お気に入り
詳細
2階
1K
25.5㎡
6.8万円
7,650円
- 敷
- 不要
- 礼
- 不要
バス・トイレ別
駐車場あり
ペット相談
詳細を見る 東向日駅より徒歩9分 築44年8ヶ月の賃貸物件
- 阪急京都本線/東向日駅 徒歩9分
- JR東海道・山陽本線/向日町駅 徒歩17分
京都府向日市寺戸町南垣内
- 総階数
- 2階建
- 築年数
- 44年8ヶ月
- 建物構造
- 木造
バス・トイレ別ペット相談駐輪場あり間取り図
階数
間取り
専有面積
賃料
管理費等
敷金
礼金
特徴
お気に入り
詳細
-
4DK
82.5㎡
6.8万円
不要
- 敷
- 不要
- 礼
- 不要
バス・トイレ別
ペット相談
駐輪場あり
詳細を見る マンション・アパート京都駅より徒歩9分 2階 築9年5ヶ月の賃貸物件
- JR東海道・山陽本線/京都駅 徒歩9分
- 京阪本線/七条駅 徒歩9分
京都府京都市下京区堀詰町
- 総階数
- 3階建
- 築年数
- 9年5ヶ月
- 建物構造
- 鉄骨造
バス・トイレ別フローリングオートロック間取り図
階数
間取り
専有面積
賃料
管理費等
敷金
礼金
特徴
お気に入り
詳細
2階
1K
22.35㎡
6.8万円
5,500円
- 敷
- 不要
- 礼
- 68,000円
バス・トイレ別
フローリング
オートロック
詳細を見る 一戸建て西京極駅より徒歩10分 築56年8ヶ月の賃貸物件
- 阪急京都本線/西京極駅 徒歩10分
- JR東海道・山陽本線/西大路駅 徒歩29分
京都府京都市右京区西京極徳大寺団子田町
- 総階数
- 2階建
- 築年数
- 56年8ヶ月
- 建物構造
- 木造
バス・トイレ別フローリング南向き間取り図
階数
間取り
専有面積
賃料
管理費等
敷金
礼金
特徴
お気に入り
詳細
-
4DK
41.12㎡
6.8万円
不要
- 敷
- 68,000円
- 礼
- 68,000円
バス・トイレ別
フローリング
南向き
詳細を見る 西京極駅より徒歩9分 築60年8ヶ月の賃貸物件
- 阪急京都本線/西京極駅 徒歩9分
- 京都地下鉄東西線/太秦天神川駅 徒歩15分
京都府京都市右京区西院西田町
- 総階数
- 2階建
- 築年数
- 60年8ヶ月
- 建物構造
- 木造
バス・トイレ別フローリング駐輪場あり間取り図
階数
間取り
専有面積
賃料
管理費等
敷金
礼金
特徴
お気に入り
詳細
-
2LDK
48.0㎡
6.8万円
不要
- 敷
- 不要
- 礼
- 100,000円
バス・トイレ別
フローリング
駐輪場あり
詳細を見る 一戸建て東向日駅より徒歩9分 1階 築44年8ヶ月の賃貸物件
- 阪急京都線/東向日駅 徒歩9分
- JR東海道本線/向日町駅 徒歩17分
- 阪急京都線/洛西口駅 徒歩20分
京都府向日市寺戸町南垣内
- 総階数
- 2階建
- 築年数
- 44年8ヶ月
- 建物構造
- 木造
バス・トイレ別駐車場ありペット相談間取り図
階数
間取り
専有面積
賃料
管理費等
敷金
礼金
特徴
お気に入り
詳細
1階
4DK
82.5㎡
6.8万円
不要
- 敷
- 不要
- 礼
- 不要
バス・トイレ別
駐車場あり
ペット相談
詳細を見る


店舗の特徴
駅のそば(歩3分以内)、年中無休、女性スタッフ対応、保証人不要の相談可、引越し業者の紹介可、法人の契約取扱い