(株)エコーの詳細情報
| アクセス | 東葉高速鉄道/八千代緑が丘 徒歩25分 | ||||
|---|---|---|---|---|---|
| 住所 | 千葉県八千代市高津850-64 | ||||
| 営業時間 | 9:30~18:00 | ||||
| 定休日 | 水 | ||||
| 電話番号 | 047-458-6888 | ||||
(株)エコーの周辺地図
ニフティ不動産に掲載中の物件情報
| 1R~1LDK | 2K~2LDK | 3K~3LDK | 4K~4LDK | 5K~ | |
|---|---|---|---|---|---|
| 賃貸 | - | - | - | - | - |
| 新築マンション | - | - | - | - | - |
| 中古マンション | - | - | - | - | - |
| 新築戸建 | - | - | - | 1件 | - |
| 中古戸建 | - | - | - | - | - |
| ~50㎡ | 50~80㎡ | 80~100㎡ | 100~130㎡ | 130㎡~ | |
| 土地 | - | - | - | - | 1件 |
不動産会社情報の精度向上にご協力をお願いいたします。不動産会社情報に誤りがある場合はこちらよりご連絡ください。
(株)エコーの物件一覧
現在の検索条件
並び替え
2件中1〜2件を表示
新築一戸建て千葉県千葉市花見川区作新台
所在地千葉県千葉市花見川区作新台
交通京成本線/八千代台駅 徒歩20分
京成本線「八千代台」歩20分 指定なし 駐車場2台可 3日以内 販売戸数1戸 総戸数2戸 価格/3590万円 千葉県千葉市花見川区作新台2-16-21 4LDK 96.05平米 向き/▼未選択 by SUUMO
価格
間取り
建物面積
土地面積
築年月
階建
お気に入り
詳細
3590万円
4LDK
96.05m²
103.86m²
-
-
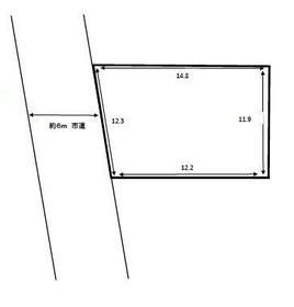
詳細を見る 土地・売地千葉県市原市西国吉
所在地千葉県市原市西国吉
交通小湊鐵道/馬立駅 徒歩36分
価格
土地面積
建ぺい率
容積率
お気に入り
詳細
130万円
162.17m²
60%
100%
詳細を見る
2件中1〜2件を表示

