ウインズリンク株式会社 アパマンショップ山科店の詳細情報
| アクセス | 湖西線/山科 徒歩4分 | ||||
|---|---|---|---|---|---|
| 住所 | 京都府京都市山科区安朱南屋敷町19-11 | ||||
| 営業時間 | 9:30~19:00 | ||||
| 定休日 | なし(盆休み8/13〜8/16・年末年始12/27〜1/4) | ||||
| 電話番号 | 075-594-4100 | ||||
ウインズリンク株式会社 アパマンショップ山科店の周辺地図
店舗の特徴
駅のそば(歩3分以内)、年中無休、女性スタッフ対応、保証人不要の相談可、引越し業者の紹介可、法人の契約取扱い、賃貸管理業務、リフォーム対応
ニフティ不動産に掲載中の物件情報
| 1R~1LDK | 2K~2LDK | 3K~3LDK | 4K~4LDK | 5K~ | |
|---|---|---|---|---|---|
| 賃貸 | 4,426件 | 1,105件 | 403件 | 68件 | 41件 |
| 新築マンション | - | - | - | - | - |
| 中古マンション | - | - | - | - | - |
| 新築戸建 | - | - | - | - | - |
| 中古戸建 | - | - | - | - | - |
| ~50㎡ | 50~80㎡ | 80~100㎡ | 100~130㎡ | 130㎡~ | |
| 土地 | - | - | - | - | - |
不動産会社情報の精度向上にご協力をお願いいたします。不動産会社情報に誤りがある場合はこちらよりご連絡ください。
ウインズリンク株式会社 アパマンショップ山科店の物件一覧
並び替え
マンション・アパート茶山・京都芸術大学駅より徒歩15分 2階 築41年8ヶ月の賃貸物件
- 叡山電鉄叡山本線/茶山・京都芸術大学駅 徒歩15分
- 京阪鴨東線/出町柳駅 徒歩39分
- 叡山電鉄叡山本線/出町柳駅 徒歩39分
京都府京都市左京区一乗寺松原町
- 総階数
- 2階建
- 築年数
- 41年8ヶ月
- 建物構造
- 軽量鉄骨
バス・トイレ別フローリング南向き間取り図
階数
間取り
専有面積
賃料
管理費等
敷金
礼金
特徴
お気に入り
詳細
2階
1K
19.5㎡
3.2万円
3,000円
- 敷
- 不要
- 礼
- 不要
バス・トイレ別
フローリング
南向き
詳細を見る マンション・アパート茶山・京都芸術大学駅より徒歩15分 1階 築41年8ヶ月の賃貸物件
- 叡山電鉄叡山本線/茶山・京都芸術大学駅 徒歩15分
- 京阪鴨東線/出町柳駅 徒歩39分
- 叡山電鉄叡山本線/出町柳駅 徒歩39分
京都府京都市左京区一乗寺松原町
- 総階数
- 2階建
- 築年数
- 41年8ヶ月
- 建物構造
- 軽量鉄骨
バス・トイレ別フローリング南向き間取り図
階数
間取り
専有面積
賃料
管理費等
敷金
礼金
特徴
お気に入り
詳細
1階
1K
19.5㎡
3.2万円
3,000円
- 敷
- 不要
- 礼
- 不要
バス・トイレ別
フローリング
南向き
詳細を見る マンション・アパートゾンネハウス 1階 築31年11ヶ月の賃貸物件
- 京阪鴨東線/出町柳駅 徒歩15分
- 叡山電鉄叡山本線/茶山・京都芸術大学駅 徒歩7分
- 叡山電鉄叡山本線/元田中駅 徒歩6分
京都府京都市左京区田中西浦町
- 総階数
- 3階建
- 築年数
- 31年11ヶ月
- 建物構造
- 鉄骨
新着オートロック角部屋間取り図
階数
間取り
専有面積
賃料
管理費等
敷金
礼金
特徴
お気に入り
詳細
1階
1K
19.0㎡
3.5万円
3,000円
- 敷
- 35,000円
- 礼
- 35,000円
新着
オートロック
角部屋
詳細を見る ほかの部屋を検索中…ほかの部屋は見つかりませんでしたマンション・アパート東野駅より徒歩15分 2階 築34年10ヶ月の賃貸物件
- 京都地下鉄東西線/東野駅 徒歩15分
- 京阪京津線/四宮駅 徒歩18分
京都府京都市山科区大塚北溝町
- 総階数
- 3階建
- 築年数
- 34年10ヶ月
- 建物構造
- RC
フローリング駐輪場あり間取り図
階数
間取り
専有面積
賃料
管理費等
敷金
礼金
特徴
お気に入り
詳細
2階
1K
17.0㎡
3.5万円
5,000円
- 敷
- 不要
- 礼
- 不要
フローリング
駐輪場あり
詳細を見る マンション・アパート京都駅より徒歩15分 3階 築44年9ヶ月の賃貸物件
- JR東海道・山陽本線/京都駅 徒歩15分
- 京阪本線/七条駅 徒歩9分
京都府京都市東山区今熊野池田町
- 総階数
- 3階建
- 築年数
- 44年9ヶ月
- 建物構造
- RC
フローリング保証人不要角部屋間取り図
階数
間取り
専有面積
賃料
管理費等
敷金
礼金
特徴
お気に入り
詳細
3階
1K
21.15㎡
3.5万円
3,000円
- 敷
- 不要
- 礼
- 不要
フローリング
保証人不要
角部屋
詳細を見る マンション・アパート長束荘 1階 築55年9ヶ月の賃貸物件
- 近鉄京都線/向島駅 徒歩15分
- 京阪宇治線/観月橋駅 徒歩13分
京都府京都市伏見区向島立河原町
- 総階数
- 2階建
- 築年数
- 55年9ヶ月
- 建物構造
- 木造
バス・トイレ別フローリング角部屋間取り図
階数
間取り
専有面積
賃料
管理費等
敷金
礼金
特徴
お気に入り
詳細
1階
1K
20.0㎡
3.7万円
不要
- 敷
- 不要
- 礼
- 37,000円
バス・トイレ別
フローリング
角部屋
詳細を見る ほかの部屋を検索中…ほかの部屋は見つかりませんでしたマンション・アパート長束荘 1階 築55年9ヶ月の賃貸物件
- 近鉄京都線/向島駅 徒歩15分
- 京阪宇治線/観月橋駅 徒歩13分
京都府京都市伏見区向島立河原町
- 総階数
- 2階建
- 築年数
- 55年9ヶ月
- 建物構造
- 木造
バス・トイレ別駐輪場あり間取り図
階数
間取り
専有面積
賃料
管理費等
敷金
礼金
特徴
お気に入り
詳細
1階
1K
23.74㎡
3.8万円
不要
- 敷
- 不要
- 礼
- 38,000円
バス・トイレ別
駐輪場あり
詳細を見る ほかの部屋を検索中…ほかの部屋は見つかりませんでしたマンション・アパート西大路駅より徒歩15分 2階 築36年8ヶ月の賃貸物件
- JR東海道・山陽本線/西大路駅 徒歩15分
- JR山陰本線/梅小路京都西駅 徒歩12分
京都府京都市下京区西七条比輪田町
- 総階数
- 3階建
- 築年数
- 36年8ヶ月
- 建物構造
- 鉄骨造
バス・トイレ別フローリング角部屋間取り図
階数
間取り
専有面積
賃料
管理費等
敷金
礼金
特徴
お気に入り
詳細
2階
1K
20.48㎡
3.9万円
4,000円
- 敷
- 不要
- 礼
- 不要
バス・トイレ別
フローリング
角部屋
詳細を見る マンション・アパートソルフィー山科 4階 築31年2ヶ月の賃貸物件
- 京阪京津線/四宮駅 徒歩15分
- JR東海道・山陽本線/山科駅 徒歩23分
京都府京都市山科区小山北溝町
- 総階数
- 4階建
- 築年数
- 31年2ヶ月
- 建物構造
- RC
バス・トイレ別フローリングオートロック間取り図
階数
間取り
専有面積
賃料
管理費等
敷金
礼金
特徴
お気に入り
詳細
4階
1K
24.36㎡
4万円
3,000円
- 敷
- 不要
- 礼
- 不要
バス・トイレ別
フローリング
オートロック
詳細を見る ほかの部屋を検索中…ほかの部屋は見つかりませんでしたマンション・アパートGARNET RESIDENCE下鴨 3階 築36年の賃貸物件
- 地下鉄烏丸線/松ケ崎駅 徒歩15分
- 京阪鴨東線/出町柳駅 徒歩27分
- 叡山電鉄叡山本線/出町柳駅 徒歩27分
京都府京都市左京区下鴨東本町
- 総階数
- 5階建
- 築年数
- 36年
- 建物構造
- 鉄筋コン
フローリング新着駐輪場あり間取り図
階数
間取り
専有面積
賃料
管理費等
敷金
礼金
特徴
お気に入り
詳細
3階
1K
17.2㎡
4万円
4,800円
- 敷
- 50,000円
- 礼
- 不要
フローリング
新着
駐輪場あり
詳細を見る ほかの部屋を検索中…ほかの部屋は見つかりませんでしたマンション・アパートGARNET RESIDENCE下鴨 4階 築36年の賃貸物件
- 地下鉄烏丸線/松ケ崎駅 徒歩15分
- 京阪鴨東線/出町柳駅 徒歩27分
- 叡山電鉄叡山本線/出町柳駅 徒歩27分
京都府京都市左京区下鴨東本町
- 総階数
- 5階建
- 築年数
- 36年
- 建物構造
- 鉄筋コン
フローリング駐輪場ありインターネット対応間取り図
階数
間取り
専有面積
賃料
管理費等
敷金
礼金
特徴
お気に入り
詳細
4階
1K
17.2㎡
4万円
5,000円
- 敷
- 不要
- 礼
- 40,000円
フローリング
駐輪場あり
インターネット対応
詳細を見る ほかの部屋を検索中…ほかの部屋は見つかりませんでしたマンション・アパート出町柳駅より徒歩15分 3階 築53年10ヶ月の賃貸物件
- 京阪鴨東線/出町柳駅 徒歩15分
- 地下鉄烏丸線/鞍馬口駅 徒歩14分
- 叡山電鉄叡山本線/出町柳駅 徒歩15分
京都府京都市左京区下鴨西林町
- 総階数
- 4階建
- 築年数
- 53年10ヶ月
- 建物構造
- 鉄筋コン
フローリング駐輪場ありインターネット対応間取り図
階数
間取り
専有面積
賃料
管理費等
敷金
礼金
特徴
お気に入り
詳細
3階
1K
19.0㎡
4万円
3,000円
- 敷
- 不要
- 礼
- 不要
フローリング
駐輪場あり
インターネット対応
詳細を見る マンション・アパートソルフィー山科 2階 築31年2ヶ月の賃貸物件
- 京阪京津線/四宮駅 徒歩15分
- JR東海道・山陽本線/山科駅 徒歩23分
京都府京都市山科区小山北溝町
- 総階数
- 4階建
- 築年数
- 31年2ヶ月
- 建物構造
- RC
バス・トイレ別フローリングオートロック間取り図
階数
間取り
専有面積
賃料
管理費等
敷金
礼金
特徴
お気に入り
詳細
2階
1K
24.36㎡
4万円
3,000円
- 敷
- 不要
- 礼
- 不要
バス・トイレ別
フローリング
オートロック
詳細を見る ほかの部屋を検索中…ほかの部屋は見つかりませんでしたマンション・アパート元田中駅より徒歩15分 3階 築30年9ヶ月の賃貸物件
- 叡山電鉄叡山本線/元田中駅 徒歩15分
- 京阪鴨東線/出町柳駅 徒歩25分
- 叡山電鉄叡山本線/出町柳駅 徒歩25分
京都府京都市左京区北白川堂ノ前町
- 総階数
- 5階建
- 築年数
- 30年9ヶ月
- 建物構造
- 鉄筋コン
フローリングオートロック南向き間取り図
階数
間取り
専有面積
賃料
管理費等
敷金
礼金
特徴
お気に入り
詳細
3階
1K
15.8㎡
4万円
3,000円
- 敷
- 40,000円
- 礼
- 40,000円
フローリング
オートロック
南向き
詳細を見る マンション・アパートセジュール大谷 1階 築27年10ヶ月の賃貸物件
- 京阪本線/墨染駅 徒歩15分
- JR奈良線/JR藤森駅 徒歩7分
京都府京都市伏見区深草大亀谷大谷町
- 総階数
- 2階建
- 築年数
- 27年10ヶ月
- 建物構造
- 軽量鉄骨
バス・トイレ別フローリング南向き間取り図
階数
間取り
専有面積
賃料
管理費等
敷金
礼金
特徴
お気に入り
詳細
1階
1K
23.0㎡
4万円
4,000円
- 敷
- 不要
- 礼
- 不要
バス・トイレ別
フローリング
南向き
詳細を見る ほかの部屋を検索中…ほかの部屋は見つかりませんでしたマンション・アパートサンロイヤル五条大橋403W 3階 築36年8ヶ月の賃貸物件
- JR東海道・山陽本線/京都駅 徒歩15分
- 京阪本線/清水五条駅 徒歩2分
京都府京都市下京区都市町
- 総階数
- 5階建
- 築年数
- 36年8ヶ月
- 建物構造
- RC
フローリングオートロック駐輪場あり間取り図
階数
間取り
専有面積
賃料
管理費等
敷金
礼金
特徴
お気に入り
詳細
3階
1K
19.03㎡
4万円
6,000円
- 敷
- 不要
- 礼
- 50,000円
フローリング
オートロック
駐輪場あり
詳細を見る ほかの部屋を検索中…ほかの部屋は見つかりませんでしたマンション・アパート御陵駅より徒歩15分 1階 築29年3ヶ月の賃貸物件
- 京都地下鉄東西線/御陵駅 徒歩15分
- 京阪京津線/御陵駅 徒歩15分
京都府京都市山科区北花山中道町
- 総階数
- 2階建
- 築年数
- 29年3ヶ月
- 建物構造
- 軽量鉄骨
バス・トイレ別フローリング南向き間取り図
階数
間取り
専有面積
賃料
管理費等
敷金
礼金
特徴
お気に入り
詳細
1階
1K
21.0㎡
4万円
不要
- 敷
- 20,000円
- 礼
- 30,000円
バス・トイレ別
フローリング
南向き
詳細を見る マンション・アパートセジュール大谷 1階 築27年10ヶ月の賃貸物件
- 京阪本線/墨染駅 徒歩15分
- JR奈良線/JR藤森駅 徒歩7分
京都府京都市伏見区深草大亀谷大谷町
- 総階数
- 2階建
- 築年数
- 27年10ヶ月
- 建物構造
- 軽量鉄骨
バス・トイレ別フローリング南向き間取り図
階数
間取り
専有面積
賃料
管理費等
敷金
礼金
特徴
お気に入り
詳細
1階
1K
23.0㎡
4.1万円
4,000円
- 敷
- 不要
- 礼
- 不要
バス・トイレ別
フローリング
南向き
詳細を見る ほかの部屋を検索中…ほかの部屋は見つかりませんでしたマンション・アパートレオパレス紅雪北 1階 築22年7ヶ月の賃貸物件
- 京阪宇治線/六地蔵駅 徒歩15分
- 京都地下鉄東西線/六地蔵駅 徒歩17分
京都府京都市伏見区桃山紅雪町
- 総階数
- 2階建
- 築年数
- 22年7ヶ月
- 建物構造
- 軽量鉄骨
バス・トイレ別駐車場あり保証人不要間取り図
階数
間取り
専有面積
賃料
管理費等
敷金
礼金
特徴
お気に入り
詳細
1階
1K
19.87㎡
4.2万円
5,000円
- 敷
- 不要
- 礼
- 不要
バス・トイレ別
駐車場あり
保証人不要
詳細を見る ほかの部屋を検索中…ほかの部屋は見つかりませんでしたマンション・アパートセジュール大谷 2階 築27年10ヶ月の賃貸物件
- 京阪本線/墨染駅 徒歩15分
- JR奈良線/JR藤森駅 徒歩7分
京都府京都市伏見区深草大亀谷大谷町
- 総階数
- 2階建
- 築年数
- 27年10ヶ月
- 建物構造
- 軽量鉄骨
バス・トイレ別フローリング新着間取り図
階数
間取り
専有面積
賃料
管理費等
敷金
礼金
特徴
お気に入り
詳細
2階
1K
23.0㎡
4.2万円
4,000円
- 敷
- 不要
- 礼
- 不要
バス・トイレ別
フローリング
新着
詳細を見る ほかの部屋を検索中…ほかの部屋は見つかりませんでしたマンション・アパートレオパレス紅雪北 2階 築22年7ヶ月の賃貸物件
- 京阪宇治線/六地蔵駅 徒歩15分
- 京都地下鉄東西線/六地蔵駅 徒歩17分
京都府京都市伏見区桃山紅雪町
- 総階数
- 2階建
- 築年数
- 22年7ヶ月
- 建物構造
- 軽量鉄骨
バス・トイレ別駐車場あり保証人不要間取り図
階数
間取り
専有面積
賃料
管理費等
敷金
礼金
特徴
お気に入り
詳細
2階
1K
19.87㎡
4.3万円
5,000円
- 敷
- 不要
- 礼
- 不要
バス・トイレ別
駐車場あり
保証人不要
詳細を見る ほかの部屋を検索中…ほかの部屋は見つかりませんでしたマンション・アパート西大路駅より徒歩15分 2階 築46年8ヶ月の賃貸物件
- JR東海道・山陽本線/西大路駅 徒歩15分
- JR東海道・山陽本線/京都駅 徒歩48分
京都府京都市南区吉祥院這登東町
- 総階数
- 2階建
- 築年数
- 46年8ヶ月
- 建物構造
- 木造
バス・トイレ別ペット相談フローリング間取り図
階数
間取り
専有面積
賃料
管理費等
敷金
礼金
特徴
お気に入り
詳細
2階
1K
20.0㎡
4.3万円
5,000円
- 敷
- 不要
- 礼
- 不要
バス・トイレ別
ペット相談
フローリング
詳細を見る マンション・アパートゾンネハウス 3階 築31年11ヶ月の賃貸物件
- 京阪鴨東線/出町柳駅 徒歩15分
- 叡山電鉄叡山本線/茶山・京都芸術大学駅 徒歩7分
- 叡山電鉄叡山本線/元田中駅 徒歩6分
京都府京都市左京区田中西浦町
- 総階数
- 3階建
- 築年数
- 31年11ヶ月
- 建物構造
- 鉄骨
フローリングオートロック駐輪場あり間取り図
階数
間取り
専有面積
賃料
管理費等
敷金
礼金
特徴
お気に入り
詳細
3階
1K
19.0㎡
4.3万円
3,000円
- 敷
- 43,000円
- 礼
- 43,000円
フローリング
オートロック
駐輪場あり
詳細を見る ほかの部屋を検索中…ほかの部屋は見つかりませんでしたマンション・アパート出町柳駅より徒歩15分 2階 築44年8ヶ月の賃貸物件
- 京阪鴨東線/出町柳駅 徒歩15分
- 叡山電鉄叡山本線/元田中駅 徒歩4分
- 叡山電鉄叡山本線/出町柳駅 徒歩15分
京都府京都市左京区田中西大久保町
- 総階数
- 3階建
- 築年数
- 44年8ヶ月
- 建物構造
- 鉄筋コン
フローリングオートロックコンロ2口以上間取り図
階数
間取り
専有面積
賃料
管理費等
敷金
礼金
特徴
お気に入り
詳細
2階
1R
15.16㎡
4.5万円
11,000円
- 敷
- 不要
- 礼
- 不要
フローリング
オートロック
コンロ2口以上
詳細を見る マンション・アパート出町柳駅より徒歩15分 3階 築44年8ヶ月の賃貸物件
- 京阪鴨東線/出町柳駅 徒歩15分
- 叡山電鉄叡山本線/元田中駅 徒歩4分
- 叡山電鉄叡山本線/出町柳駅 徒歩15分
京都府京都市左京区田中西大久保町
- 総階数
- 3階建
- 築年数
- 44年8ヶ月
- 建物構造
- 鉄筋コン
フローリングオートロックコンロ2口以上間取り図
階数
間取り
専有面積
賃料
管理費等
敷金
礼金
特徴
お気に入り
詳細
3階
1R
15.16㎡
4.5万円
12,100円
- 敷
- 不要
- 礼
- 不要
フローリング
オートロック
コンロ2口以上
詳細を見る マンション・アパート出町柳駅より徒歩15分 3階 築44年8ヶ月の賃貸物件
- 京阪鴨東線/出町柳駅 徒歩15分
- 叡山電鉄叡山本線/元田中駅 徒歩4分
- 叡山電鉄叡山本線/出町柳駅 徒歩15分
京都府京都市左京区田中西大久保町
- 総階数
- 3階建
- 築年数
- 44年8ヶ月
- 建物構造
- 鉄筋コン
フローリングオートロック駐輪場あり間取り図
階数
間取り
専有面積
賃料
管理費等
敷金
礼金
特徴
お気に入り
詳細
3階
1R
15.16㎡
4.5万円
11,000円
- 敷
- 不要
- 礼
- 不要
フローリング
オートロック
駐輪場あり
詳細を見る マンション・アパートカーサビアンカ 1階 築38年2ヶ月の賃貸物件
- 京都地下鉄東西線/石田駅 徒歩15分
- 京都地下鉄東西線/醍醐駅 徒歩23分
京都府京都市伏見区日野不動講町
- 総階数
- 2階建
- 築年数
- 38年2ヶ月
- 建物構造
- 軽量鉄骨
バス・トイレ別駐車場ありフローリング間取り図
階数
間取り
専有面積
賃料
管理費等
敷金
礼金
特徴
お気に入り
詳細
1階
2K
40.0㎡
4.5万円
5,000円
- 敷
- 不要
- 礼
- 不要
バス・トイレ別
駐車場あり
フローリング
詳細を見る ほかの部屋を検索中…ほかの部屋は見つかりませんでしたマンション・アパートアムール水口 2階 築21年の賃貸物件
- 京阪本線/藤森駅 徒歩15分
- 京阪本線/龍谷大前深草駅 徒歩10分
京都府京都市伏見区深草坊町
- 総階数
- 2階建
- 築年数
- 21年
- 建物構造
- 軽量鉄骨
バス・トイレ別フローリング新着間取り図
階数
間取り
専有面積
賃料
管理費等
敷金
礼金
特徴
お気に入り
詳細
2階
1K
24.57㎡
4.5万円
3,500円
- 敷
- 不要
- 礼
- 45,000円
バス・トイレ別
フローリング
新着
詳細を見る ほかの部屋を検索中…ほかの部屋は見つかりませんでしたマンション・アパート六地蔵駅より徒歩16分 1階 築20年の賃貸物件
- 京阪宇治線/六地蔵駅 徒歩16分
- 京都地下鉄東西線/六地蔵駅 徒歩18分
京都府京都市伏見区深草大亀谷安信町
- 総階数
- 2階建
- 築年数
- 20年
- 建物構造
- 軽量鉄骨
バス・トイレ別フローリング駐輪場あり間取り図
階数
間取り
専有面積
賃料
管理費等
敷金
礼金
特徴
お気に入り
詳細
1階
1K
22.35㎡
4.5万円
7,000円
- 敷
- 不要
- 礼
- 45,000円
バス・トイレ別
フローリング
駐輪場あり
詳細を見る マンション・アパート高瀬川マンション 2階 築52年9ヶ月の賃貸物件
- JR東海道・山陽本線/京都駅 徒歩15分
- 京阪本線/七条駅 徒歩8分
京都府京都市下京区梅湊町
- 総階数
- 4階建
- 築年数
- 52年9ヶ月
- 建物構造
- RC
駐輪場あり間取り図
階数
間取り
専有面積
賃料
管理費等
敷金
礼金
特徴
お気に入り
詳細
2階
1K
18.0㎡
4.5万円
4,000円
- 敷
- 不要
- 礼
- 不要
駐輪場あり
詳細を見る ほかの部屋を検索中…ほかの部屋は見つかりませんでしたマンション・アパート出町柳駅より徒歩15分 3階 築34年2ヶ月の賃貸物件
- 京阪鴨東線/出町柳駅 徒歩15分
- 叡山電鉄叡山本線/茶山・京都芸術大学駅 徒歩7分
- 叡山電鉄叡山本線/出町柳駅 徒歩15分
京都府京都市左京区田中南大久保町
- 総階数
- 7階建
- 築年数
- 34年2ヶ月
- 建物構造
- 鉄筋コン
オートロック駐輪場ありインターネット対応間取り図
階数
間取り
専有面積
賃料
管理費等
敷金
礼金
特徴
お気に入り
詳細
3階
1K
19.8㎡
4.6万円
3,000円
- 敷
- 100,000円
- 礼
- 50,000円
オートロック
駐輪場あり
インターネット対応
詳細を見る マンション・アパート出町柳駅より徒歩15分 5階 築34年2ヶ月の賃貸物件
- 京阪鴨東線/出町柳駅 徒歩15分
- 叡山電鉄叡山本線/茶山・京都芸術大学駅 徒歩7分
- 叡山電鉄叡山本線/出町柳駅 徒歩15分
京都府京都市左京区田中南大久保町
- 総階数
- 7階建
- 築年数
- 34年2ヶ月
- 建物構造
- 鉄筋コン
オートロック駐輪場ありインターネット対応間取り図
階数
間取り
専有面積
賃料
管理費等
敷金
礼金
特徴
お気に入り
詳細
5階
1K
19.8㎡
4.7万円
3,000円
- 敷
- 100,000円
- 礼
- 50,000円
オートロック
駐輪場あり
インターネット対応
詳細を見る マンション・アパート出町柳駅より徒歩15分 4階 築34年2ヶ月の賃貸物件
- 京阪鴨東線/出町柳駅 徒歩15分
- 叡山電鉄叡山本線/茶山・京都芸術大学駅 徒歩7分
- 叡山電鉄叡山本線/出町柳駅 徒歩15分
京都府京都市左京区田中南大久保町
- 総階数
- 7階建
- 築年数
- 34年2ヶ月
- 建物構造
- 鉄筋コン
オートロック駐輪場ありインターネット対応間取り図
階数
間取り
専有面積
賃料
管理費等
敷金
礼金
特徴
お気に入り
詳細
4階
1K
19.8㎡
4.7万円
3,000円
- 敷
- 100,000円
- 礼
- 50,000円
オートロック
駐輪場あり
インターネット対応
詳細を見る 御陵駅より徒歩15分 築49年10ヶ月の賃貸物件
- 京都地下鉄東西線/御陵駅 徒歩15分
- JR東海道・山陽本線/山科駅 徒歩19分
京都府京都市山科区西野楳本町
- 総階数
- 2階建
- 築年数
- 49年10ヶ月
- 建物構造
- 木造
バス・トイレ別ペット相談フローリング間取り図
階数
間取り
専有面積
賃料
管理費等
敷金
礼金
特徴
お気に入り
詳細
-
1DK
39.7㎡
4.8万円
不要
- 敷
- 不要
- 礼
- 48,000円
バス・トイレ別
ペット相談
フローリング
詳細を見る マンション・アパート出町柳駅より徒歩15分 2階 築34年2ヶ月の賃貸物件
- 京阪鴨東線/出町柳駅 徒歩15分
- 叡山電鉄叡山本線/茶山・京都芸術大学駅 徒歩7分
- 叡山電鉄叡山本線/出町柳駅 徒歩15分
京都府京都市左京区田中南大久保町
- 総階数
- 7階建
- 築年数
- 34年2ヶ月
- 建物構造
- 鉄筋コン
オートロック駐輪場ありインターネット対応間取り図
階数
間取り
専有面積
賃料
管理費等
敷金
礼金
特徴
お気に入り
詳細
2階
1K
20.0㎡
4.8万円
3,000円
- 敷
- 100,000円
- 礼
- 50,000円
オートロック
駐輪場あり
インターネット対応
詳細を見る 一戸建て御陵駅より徒歩15分 1階 築49年10ヶ月の賃貸物件
- 地下鉄東西線/御陵駅 徒歩15分
- JR東海道本線/山科駅 徒歩19分
- 京阪京津線/御陵駅 徒歩15分
京都府京都市山科区西野楳本町
- 総階数
- 2階建
- 築年数
- 49年10ヶ月
- 建物構造
- 木造
バス・トイレ別ペット相談フローリング間取り図
階数
間取り
専有面積
賃料
管理費等
敷金
礼金
特徴
お気に入り
詳細
1階
1DK
39.7㎡
4.8万円
不要
- 敷
- 不要
- 礼
- 48,000円
バス・トイレ別
ペット相談
フローリング
詳細を見る マンション・アパートサンロイヤル五条大橋403W 4階 築36年8ヶ月の賃貸物件
- JR東海道・山陽本線/京都駅 徒歩15分
- 京阪本線/清水五条駅 徒歩2分
京都府京都市下京区都市町
- 総階数
- 5階建
- 築年数
- 36年8ヶ月
- 建物構造
- RC
フローリングオートロック角部屋間取り図
階数
間取り
専有面積
賃料
管理費等
敷金
礼金
特徴
お気に入り
詳細
4階
1K
21.79㎡
4.8万円
6,000円
- 敷
- 不要
- 礼
- 50,000円
フローリング
オートロック
角部屋
詳細を見る ほかの部屋を検索中…ほかの部屋は見つかりませんでしたマンション・アパート京都駅より徒歩15分 2階 築26年10ヶ月の賃貸物件
- JR東海道・山陽本線/京都駅 徒歩15分
- 京阪本線/七条駅 徒歩2分
京都府京都市東山区本町新6丁目
- 総階数
- 3階建
- 築年数
- 26年10ヶ月
- 建物構造
- 鉄骨造
バス・トイレ別フローリングオートロック間取り図
階数
間取り
専有面積
賃料
管理費等
敷金
礼金
特徴
お気に入り
詳細
2階
1K
21.0㎡
4.9万円
5,000円
- 敷
- 不要
- 礼
- 不要
バス・トイレ別
フローリング
オートロック
詳細を見る マンション・アパート椥辻駅より徒歩15分 2階 築38年4ヶ月の賃貸物件
- 京都地下鉄東西線/椥辻駅 徒歩15分
- 京都地下鉄東西線/小野駅 徒歩18分
京都府京都市山科区勧修寺西金ケ崎
- 総階数
- 4階建
- 築年数
- 38年4ヶ月
- 建物構造
- 鉄骨造
フローリング駐輪場あり間取り図
階数
間取り
専有面積
賃料
管理費等
敷金
礼金
特徴
お気に入り
詳細
2階
1DK
25.11㎡
5万円
3,000円
- 敷
- 不要
- 礼
- 不要
フローリング
駐輪場あり
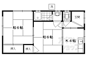
詳細を見る 一戸建て西大路駅より徒歩15分 築65年11ヶ月の賃貸物件
- JR東海道・山陽本線/西大路駅 徒歩15分
- 近鉄京都線/東寺駅 徒歩14分
京都府京都市南区八条内田町
- 総階数
- 2階建
- 築年数
- 65年11ヶ月
- 建物構造
- 木造
バス・トイレ別保証人不要角部屋間取り図
階数
間取り
専有面積
賃料
管理費等
敷金
礼金
特徴
お気に入り
詳細
-
2K
36.0㎡
5万円
不要
- 敷
- 不要
- 礼
- 50,000円
バス・トイレ別
保証人不要
角部屋
詳細を見る


この店舗からのコメント
京都市山科区エリアのお部屋探しは、アパマンショップ山科店にお任せください!あなたにぴったりのお部屋をご紹介します。