株式会社京都ライフ 出町柳店の詳細情報
| アクセス | 京阪電気鉄道鴨東線/出町柳 徒歩6分 | ||||
|---|---|---|---|---|---|
| 住所 | 京都府京都市左京区田中関田町22-13 | ||||
| 営業時間 | 9:30~19:00 | ||||
| 定休日 | 年中無休(盆正月を除く) | ||||
| 電話番号 | 075-723-8111 | ||||
株式会社京都ライフ 出町柳店の周辺地図
店舗の特徴
駅のそば(歩3分以内)、年中無休、女性スタッフ対応、保証人不要の相談可、引越し業者の紹介可、法人の契約取扱い、賃貸管理業務、リフォーム対応、24時間管理
ニフティ不動産に掲載中の物件情報
| 1R~1LDK | 2K~2LDK | 3K~3LDK | 4K~4LDK | 5K~ | |
|---|---|---|---|---|---|
| 賃貸 | 10,397件 | 2,825件 | 1,105件 | 220件 | 93件 |
| 新築マンション | - | - | - | - | - |
| 中古マンション | - | - | - | - | - |
| 新築戸建 | - | - | - | - | - |
| 中古戸建 | - | - | - | - | - |
| ~50㎡ | 50~80㎡ | 80~100㎡ | 100~130㎡ | 130㎡~ | |
| 土地 | - | - | - | - | - |
不動産会社情報の精度向上にご協力をお願いいたします。不動産会社情報に誤りがある場合はこちらよりご連絡ください。
株式会社京都ライフ 出町柳店の物件一覧
並び替え
マンション・アパート墨染駅より徒歩1分 3階 築17年の賃貸物件
- 京阪本線/墨染駅 徒歩1分
- 近鉄京都線/伏見駅 徒歩12分
京都府京都市伏見区墨染町
- 総階数
- 5階建
- 築年数
- 17年
- 建物構造
- RC
バス・トイレ別駐車場ありフローリング間取り図
階数
間取り
専有面積
賃料
管理費等
敷金
礼金
特徴
お気に入り
詳細
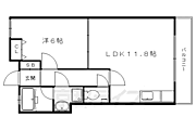
3階
1LDK
41.15㎡
7.8万円
9,000円
- 敷
- 不要
- 礼
- 不要
バス・トイレ別
駐車場あり
フローリング
詳細を見る マンション・アパート小野駅より徒歩1分 2階 築5年6ヶ月の賃貸物件
- 京都地下鉄東西線/小野駅 徒歩1分
- 京都地下鉄東西線/醍醐駅 徒歩12分
京都府京都市山科区勧修寺東出町
- 総階数
- 6階建
- 築年数
- 5年6ヶ月
- 建物構造
- RC
バス・トイレ別ペット相談フローリング間取り図
階数
間取り
専有面積
賃料
管理費等
敷金
礼金
特徴
お気に入り
詳細
2階
2DK
36.84㎡
7.9万円
6,000円
- 敷
- 100,000円
- 礼
- 150,000円
バス・トイレ別
ペット相談
フローリング
詳細を見る マンション・アパート墨染駅より徒歩1分 3階 築17年の賃貸物件
- 京阪本線/墨染駅 徒歩1分
- 近鉄京都線/伏見駅 徒歩12分
京都府京都市伏見区墨染町
- 総階数
- 5階建
- 築年数
- 17年
- 建物構造
- RC
バス・トイレ別駐車場ありフローリング間取り図
階数
間取り
専有面積
賃料
管理費等
敷金
礼金
特徴
お気に入り
詳細
3階
1LDK
41.15㎡
7.9万円
9,000円
- 敷
- 不要
- 礼
- 不要
バス・トイレ別
駐車場あり
フローリング
詳細を見る マンション・アパート近鉄丹波橋駅より徒歩1分 4階 築55年10ヶ月の賃貸物件
- 近鉄京都線/近鉄丹波橋駅 徒歩1分
- 京阪本線/丹波橋駅 徒歩3分
京都府京都市伏見区桃山筒井伊賀東町
- 総階数
- 6階建
- 築年数
- 55年10ヶ月
- 建物構造
- RC
バス・トイレ別フローリングコンロ2口以上間取り図
階数
間取り
専有面積
賃料
管理費等
敷金
礼金
特徴
お気に入り
詳細
4階
2DK
45.0㎡
7.9万円
6,000円
- 敷
- 不要
- 礼
- 158,000円
バス・トイレ別
フローリング
コンロ2口以上
詳細を見る マンション・アパート近鉄丹波橋駅より徒歩1分 4階 築52年1ヶ月の賃貸物件
- 近鉄京都線/近鉄丹波橋駅 徒歩1分
- 京阪本線/丹波橋駅 徒歩3分
京都府京都市伏見区桃山羽柴長吉中町
- 総階数
- 5階建
- 築年数
- 52年1ヶ月
- 建物構造
- RC
バス・トイレ別駐車場ありペット相談間取り図
階数
間取り
専有面積
賃料
管理費等
敷金
礼金
特徴
お気に入り
詳細
4階
2LDK
47.0㎡
8万円
不要
- 敷
- 80,000円
- 礼
- 80,000円
バス・トイレ別
駐車場あり
ペット相談
詳細を見る マンション・アパート五条駅より徒歩1分 5階 築18年10ヶ月の賃貸物件
- 地下鉄烏丸線/五条駅 徒歩1分
- 地下鉄烏丸線/四条駅 徒歩10分
- JR東海道本線/京都駅 徒歩17分
京都府京都市下京区万寿寺町
- 総階数
- 15階建
- 築年数
- 18年10ヶ月
- 建物構造
- 鉄筋コン
バス・トイレ別フローリングオートロック間取り図
階数
間取り
専有面積
賃料
管理費等
敷金
礼金
特徴
お気に入り
詳細
5階
1K
24.75㎡
8万円
11,000円
- 敷
- 不要
- 礼
- 80,000円
バス・トイレ別
フローリング
オートロック
詳細を見る マンション・アパート五条駅より徒歩1分 5階 築18年10ヶ月の賃貸物件
- 京都市営烏丸線/五条駅 徒歩1分
- 京都市営烏丸線/四条駅 徒歩10分
京都府京都市下京区五条通間之町西入万寿寺町
- 総階数
- 15階建
- 築年数
- 18年10ヶ月
- 建物構造
- RC
バス・トイレ別フローリングオートロック間取り図
階数
間取り
専有面積
賃料
管理費等
敷金
礼金
特徴
お気に入り
詳細
5階
1K
24.75㎡
8万円
11,000円
- 敷
- 不要
- 礼
- 80,000円
バス・トイレ別
フローリング
オートロック
詳細を見る マンション・アパート五条駅より徒歩1分 7階 築18年10ヶ月の賃貸物件
- 京都市営烏丸線/五条駅 徒歩1分
- 京都市営烏丸線/四条駅 徒歩10分
京都府京都市下京区五条通間之町西入万寿寺町
- 総階数
- 15階建
- 築年数
- 18年10ヶ月
- 建物構造
- RC
バス・トイレ別フローリングオートロック間取り図
階数
間取り
専有面積
賃料
管理費等
敷金
礼金
特徴
お気に入り
詳細
7階
1K
24.75㎡
8.1万円
11,000円
- 敷
- 不要
- 礼
- 81,000円
バス・トイレ別
フローリング
オートロック
詳細を見る マンション・アパート五条駅より徒歩1分 7階 築18年10ヶ月の賃貸物件
- 地下鉄烏丸線/五条駅 徒歩1分
- 地下鉄烏丸線/四条駅 徒歩10分
- JR東海道本線/京都駅 徒歩17分
京都府京都市下京区万寿寺町
- 総階数
- 15階建
- 築年数
- 18年10ヶ月
- 建物構造
- 鉄筋コン
バス・トイレ別フローリングオートロック間取り図
階数
間取り
専有面積
賃料
管理費等
敷金
礼金
特徴
お気に入り
詳細
7階
1K
24.75㎡
8.1万円
11,000円
- 敷
- 不要
- 礼
- 81,000円
バス・トイレ別
フローリング
オートロック
詳細を見る マンション・アパート三条駅より徒歩2分 7階 築18年9ヶ月の賃貸物件
- 京阪本線/三条駅 徒歩2分
- 地下鉄東西線/東山駅 徒歩4分
- 地下鉄東西線/京都市役所前駅 徒歩8分
京都府京都市東山区七軒町
- 総階数
- 7階建
- 築年数
- 18年9ヶ月
- 建物構造
- 鉄筋コン
バス・トイレ別フローリングオートロック間取り図
階数
間取り
専有面積
賃料
管理費等
敷金
礼金
特徴
お気に入り
詳細
7階
1K
28.01㎡
8.1万円
14,000円
- 敷
- 不要
- 礼
- 81,000円
バス・トイレ別
フローリング
オートロック
詳細を見る マンション・アパート墨染駅より徒歩1分 2階 新築の賃貸物件
- 京阪本線/墨染駅 徒歩1分
- JR奈良線/JR藤森駅 徒歩10分
京都府京都市伏見区墨染町
- 総階数
- 4階建
- 築年数
- 新築
- 建物構造
- RC
バス・トイレ別フローリングオートロック間取り図
階数
間取り
専有面積
賃料
管理費等
敷金
礼金
特徴
お気に入り
詳細
2階
1LDK
37.83㎡
8.1万円
7,000円
- 敷
- 81,000円
- 礼
- 162,000円
バス・トイレ別
フローリング
オートロック
詳細を見る マンション・アパートエスリード四条河原町 8階 築26年1ヶ月の賃貸物件
- 阪急京都線/京都河原町駅 徒歩2分
- 地下鉄烏丸線/四条駅 徒歩13分
- 京阪本線/祇園四条駅 徒歩8分
京都府京都市下京区順風町
- 総階数
- 14階建
- 築年数
- 26年1ヶ月
- 建物構造
- 鉄骨鉄筋
バス・トイレ別駐車場ありフローリング間取り図
階数
間取り
専有面積
賃料
管理費等
敷金
礼金
特徴
お気に入り
詳細
8階
1DK
25.44㎡
8.15万円
11,000円
- 敷
- 不要
- 礼
- 81,500円
バス・トイレ別
駐車場あり
フローリング
詳細を見る ほかの部屋を検索中…ほかの部屋は見つかりませんでしたマンション・アパート新田辺駅より徒歩1分 4階 築13年5ヶ月の賃貸物件
- 近鉄京都線/新田辺駅 徒歩1分
- JR片町線(学研都市線)/京田辺駅 徒歩4分
京都府京田辺市田辺中央1丁目
- 総階数
- 4階建
- 築年数
- 13年5ヶ月
- 建物構造
- RC
バス・トイレ別フローリングオートロック間取り図
階数
間取り
専有面積
賃料
管理費等
敷金
礼金
特徴
お気に入り
詳細
4階
1LDK
34.5㎡
8.15万円
10,000円
- 敷
- 不要
- 礼
- 150,000円
バス・トイレ別
フローリング
オートロック
詳細を見る マンション・アパート五条駅より徒歩1分 6階 築18年10ヶ月の賃貸物件
- 京都市営烏丸線/五条駅 徒歩1分
- 京都市営烏丸線/四条駅 徒歩10分
京都府京都市下京区五条通間之町西入万寿寺町
- 総階数
- 15階建
- 築年数
- 18年10ヶ月
- 建物構造
- RC
バス・トイレ別フローリングオートロック間取り図
階数
間取り
専有面積
賃料
管理費等
敷金
礼金
特徴
お気に入り
詳細
6階
1K
27.71㎡
8.15万円
11,000円
- 敷
- 不要
- 礼
- 81,500円
バス・トイレ別
フローリング
オートロック
詳細を見る マンション・アパート五条駅より徒歩1分 6階 築18年10ヶ月の賃貸物件
- 地下鉄烏丸線/五条駅 徒歩1分
- 地下鉄烏丸線/四条駅 徒歩10分
- JR東海道本線/京都駅 徒歩17分
京都府京都市下京区万寿寺町
- 総階数
- 15階建
- 築年数
- 18年10ヶ月
- 建物構造
- 鉄筋コン
バス・トイレ別フローリングオートロック間取り図
階数
間取り
専有面積
賃料
管理費等
敷金
礼金
特徴
お気に入り
詳細
6階
1K
27.71㎡
8.15万円
11,000円
- 敷
- 不要
- 礼
- 81,500円
バス・トイレ別
フローリング
オートロック
詳細を見る マンション・アパートメリア桂東 3階 築7年11ヶ月の賃貸物件
- 阪急京都本線/桂駅 徒歩1分
- 阪急京都本線/洛西口駅 徒歩22分
京都府京都市西京区川島北裏町
- 総階数
- 3階建
- 築年数
- 7年11ヶ月
- 建物構造
- 鉄骨造
バス・トイレ別フローリングオートロック間取り図
階数
間取り
専有面積
賃料
管理費等
敷金
礼金
特徴
お気に入り
詳細
3階
1DK
28.98㎡
8.2万円
8,000円
- 敷
- 82,000円
- 礼
- 82,000円
バス・トイレ別
フローリング
オートロック
詳細を見る ほかの部屋を検索中…ほかの部屋は見つかりませんでしたマンション・アパート川端マンション 5階 築32年6ヶ月の賃貸物件
- 叡山電鉄叡山本線/修学院駅 徒歩1分
- 叡山電鉄叡山本線/一乗寺駅 徒歩12分
京都府京都市左京区山端川端町
- 総階数
- 6階建
- 築年数
- 32年6ヶ月
- 建物構造
- RC
バス・トイレ別駐車場ありフローリング間取り図
階数
間取り
専有面積
賃料
管理費等
敷金
礼金
特徴
お気に入り
詳細
5階
1LDK
41.43㎡
8.2万円
6,000円
- 敷
- 100,000円
- 礼
- 100,000円
バス・トイレ別
駐車場あり
フローリング
詳細を見る ほかの部屋を検索中…ほかの部屋は見つかりませんでしたマンション・アパート墨染駅より徒歩1分 3階 新築の賃貸物件
- 京阪本線/墨染駅 徒歩1分
- JR奈良線/JR藤森駅 徒歩10分
京都府京都市伏見区墨染町
- 総階数
- 4階建
- 築年数
- 新築
- 建物構造
- RC
バス・トイレ別フローリングオートロック間取り図
階数
間取り
専有面積
賃料
管理費等
敷金
礼金
特徴
お気に入り
詳細
3階
1LDK
37.83㎡
8.2万円
7,000円
- 敷
- 82,000円
- 礼
- 164,000円
バス・トイレ別
フローリング
オートロック
詳細を見る マンション・アパート墨染駅より徒歩1分 2階 新築の賃貸物件
- 京阪本線/墨染駅 徒歩1分
- JR奈良線/JR藤森駅 徒歩10分
京都府京都市伏見区墨染町
- 総階数
- 4階建
- 築年数
- 新築
- 建物構造
- RC
バス・トイレ別フローリングオートロック間取り図
階数
間取り
専有面積
賃料
管理費等
敷金
礼金
特徴
お気に入り
詳細
2階
1LDK
37.83㎡
8.2万円
7,000円
- 敷
- 82,000円
- 礼
- 164,000円
バス・トイレ別
フローリング
オートロック
詳細を見る マンション・アパート五条駅より徒歩1分 4階 築18年10ヶ月の賃貸物件
- 京都市営烏丸線/五条駅 徒歩1分
- 京都市営烏丸線/四条駅 徒歩10分
京都府京都市下京区五条通間之町西入万寿寺町
- 総階数
- 15階建
- 築年数
- 18年10ヶ月
- 建物構造
- RC
バス・トイレ別フローリングオートロック間取り図
階数
間取り
専有面積
賃料
管理費等
敷金
礼金
特徴
お気に入り
詳細
4階
1K
28.38㎡
8.212万円
12,000円
- 敷
- 不要
- 礼
- 不要
バス・トイレ別
フローリング
オートロック
詳細を見る マンション・アパート五条駅より徒歩1分 4階 築18年10ヶ月の賃貸物件
- 地下鉄烏丸線/五条駅 徒歩1分
- 地下鉄烏丸線/四条駅 徒歩10分
- JR東海道本線/京都駅 徒歩17分
京都府京都市下京区万寿寺町
- 総階数
- 15階建
- 築年数
- 18年10ヶ月
- 建物構造
- 鉄筋コン
バス・トイレ別フローリングオートロック間取り図
階数
間取り
専有面積
賃料
管理費等
敷金
礼金
特徴
お気に入り
詳細
4階
1K
28.38㎡
8.22万円
12,000円
- 敷
- 不要
- 礼
- 不要
バス・トイレ別
フローリング
オートロック
詳細を見る マンション・アパート亀岡駅より徒歩2分 10階 築1年4ヶ月の賃貸物件
- JR山陰本線/亀岡駅 徒歩2分
- JR山陰本線/馬堀駅 徒歩29分
京都府亀岡市亀岡駅北1丁目
- 総階数
- 10階建
- 築年数
- 1年4ヶ月
- 建物構造
- RC
バス・トイレ別ペット相談フローリング間取り図
階数
間取り
専有面積
賃料
管理費等
敷金
礼金
特徴
お気に入り
詳細
10階
1LDK
38.04㎡
8.25万円
6,100円
- 敷
- 不要
- 礼
- 100,000円
バス・トイレ別
ペット相談
フローリング
詳細を見る マンション・アパート墨染駅より徒歩1分 3階 新築の賃貸物件
- 京阪本線/墨染駅 徒歩1分
- JR奈良線/JR藤森駅 徒歩10分
京都府京都市伏見区墨染町
- 総階数
- 4階建
- 築年数
- 新築
- 建物構造
- RC
バス・トイレ別フローリングオートロック間取り図
階数
間取り
専有面積
賃料
管理費等
敷金
礼金
特徴
お気に入り
詳細
3階
1LDK
37.83㎡
8.3万円
7,000円
- 敷
- 83,000円
- 礼
- 166,000円
バス・トイレ別
フローリング
オートロック
詳細を見る 一戸建て一乗寺駅より徒歩1分 築56年3ヶ月の賃貸物件
- 叡山電鉄叡山本線/一乗寺駅 徒歩1分
- 京都市営烏丸線/松ヶ崎駅 徒歩19分
京都府京都市左京区一乗寺南大丸町
- 総階数
- 2階建
- 築年数
- 56年3ヶ月
- 建物構造
- 木造
バス・トイレ別ペット相談フローリング間取り図
階数
間取り
専有面積
賃料
管理費等
敷金
礼金
特徴
お気に入り
詳細
-
1DK
38.96㎡
8.3万円
不要
- 敷
- 80,000円
- 礼
- 100,000円
バス・トイレ別
ペット相談
フローリング
詳細を見る マンション・アパート五条駅より徒歩1分 12階 築18年10ヶ月の賃貸物件
- 地下鉄烏丸線/五条駅 徒歩1分
- 地下鉄烏丸線/四条駅 徒歩10分
- JR東海道本線/京都駅 徒歩17分
京都府京都市下京区万寿寺町
- 総階数
- 15階建
- 築年数
- 18年10ヶ月
- 建物構造
- 鉄筋コン
バス・トイレ別フローリングオートロック間取り図
階数
間取り
専有面積
賃料
管理費等
敷金
礼金
特徴
お気に入り
詳細
12階
1K
24.04㎡
8.35万円
6,700円
- 敷
- 不要
- 礼
- 83,500円
バス・トイレ別
フローリング
オートロック
詳細を見る マンション・アパート五条駅より徒歩1分 12階 築18年10ヶ月の賃貸物件
- 京都市営烏丸線/五条駅 徒歩1分
- 京都市営烏丸線/四条駅 徒歩10分
京都府京都市下京区五条通間之町西入万寿寺町
- 総階数
- 15階建
- 築年数
- 18年10ヶ月
- 建物構造
- RC
バス・トイレ別フローリングオートロック間取り図
階数
間取り
専有面積
賃料
管理費等
敷金
礼金
特徴
お気に入り
詳細
12階
1K
24.04㎡
8.35万円
6,700円
- 敷
- 不要
- 礼
- 83,500円
バス・トイレ別
フローリング
オートロック
詳細を見る マンション・アパート神宮丸太町駅より徒歩1分 1階 築20年8ヶ月の賃貸物件
- 京阪鴨東線/神宮丸太町駅 徒歩1分
- 京阪本線/三条駅 徒歩10分
- 地下鉄東西線/京都市役所前駅 徒歩10分
京都府京都市左京区下堤町
- 総階数
- 4階建
- 築年数
- 20年8ヶ月
- 建物構造
- 鉄筋コン
バス・トイレ別フローリングオートロック間取り図
階数
間取り
専有面積
賃料
管理費等
敷金
礼金
特徴
お気に入り
詳細
1階
1LDK
39.99㎡
8.4万円
8,000円
- 敷
- 100,000円
- 礼
- 150,000円
バス・トイレ別
フローリング
オートロック
詳細を見る マンション・アパート第二下堤谷口マンション 1階 築20年8ヶ月の賃貸物件
- 京阪電鉄鴨東線/神宮丸太町駅 徒歩1分
- 京阪電鉄本線/三条駅 徒歩10分
- 京都市営地下鉄東西線/京都市役所前駅 徒歩10分
京都府京都市左京区川端通丸太町下る下堤町
- 総階数
- 4階建
- 築年数
- 20年8ヶ月
- 建物構造
- RC
バス・トイレ別フローリングオートロック間取り図
階数
間取り
専有面積
賃料
管理費等
敷金
礼金
特徴
お気に入り
詳細
1階
1LDK
39.99㎡
8.4万円
8,000円
- 敷
- 100,000円
- 礼
- 150,000円
バス・トイレ別
フローリング
オートロック
詳細を見る ほかの部屋を検索中…ほかの部屋は見つかりませんでしたマンション・アパートエスリード四条河原町 9階 築26年1ヶ月の賃貸物件
- 阪急京都線/京都河原町駅 徒歩2分
- 地下鉄烏丸線/四条駅 徒歩13分
- 京阪本線/祇園四条駅 徒歩8分
京都府京都市下京区順風町
- 総階数
- 14階建
- 築年数
- 26年1ヶ月
- 建物構造
- 鉄骨鉄筋
バス・トイレ別駐車場ありフローリング間取り図
階数
間取り
専有面積
賃料
管理費等
敷金
礼金
特徴
お気に入り
詳細
9階
1DK
25.44㎡
8.5万円
不要
- 敷
- 不要
- 礼
- 不要
バス・トイレ別
駐車場あり
フローリング
詳細を見る ほかの部屋を検索中…ほかの部屋は見つかりませんでしたマンション・アパートレオパレス西ノ京 3階 築18年6ヶ月の賃貸物件
- JR山陰本線/二条駅 徒歩1分
- 京都地下鉄東西線/二条駅 徒歩1分
京都府京都市中京区西ノ京永本町
- 総階数
- 4階建
- 築年数
- 18年6ヶ月
- 建物構造
- ALC
バス・トイレ別フローリング保証人不要間取り図
階数
間取り
専有面積
賃料
管理費等
敷金
礼金
特徴
お気に入り
詳細
3階
1K
20.28㎡
8.6万円
7,000円
- 敷
- 不要
- 礼
- 86,000円
バス・トイレ別
フローリング
保証人不要
詳細を見る ほかの部屋を検索中…ほかの部屋は見つかりませんでしたマンション・アパート五条駅より徒歩1分 10階 築18年10ヶ月の賃貸物件
- 地下鉄烏丸線/五条駅 徒歩1分
- 地下鉄烏丸線/四条駅 徒歩10分
- JR東海道本線/京都駅 徒歩17分
京都府京都市下京区万寿寺町
- 総階数
- 15階建
- 築年数
- 18年10ヶ月
- 建物構造
- 鉄筋コン
バス・トイレ別フローリングオートロック間取り図
階数
間取り
専有面積
賃料
管理費等
敷金
礼金
特徴
お気に入り
詳細
10階
1K
28.38㎡
8.65万円
11,000円
- 敷
- 不要
- 礼
- 86,500円
バス・トイレ別
フローリング
オートロック
詳細を見る マンション・アパート五条駅より徒歩1分 10階 築18年10ヶ月の賃貸物件
- 京都市営烏丸線/五条駅 徒歩1分
- 京都市営烏丸線/四条駅 徒歩10分
京都府京都市下京区五条通間之町西入万寿寺町
- 総階数
- 15階建
- 築年数
- 18年10ヶ月
- 建物構造
- RC
バス・トイレ別フローリングオートロック間取り図
階数
間取り
専有面積
賃料
管理費等
敷金
礼金
特徴
お気に入り
詳細
10階
1K
28.38㎡
8.65万円
11,000円
- 敷
- 不要
- 礼
- 86,500円
バス・トイレ別
フローリング
オートロック
詳細を見る マンション・アパートスクエアコート長尾C 1階 築21年9ヶ月の賃貸物件
- JR片町線(学研都市線)/長尾駅 徒歩3分
- JR片町線(学研都市線)/藤阪駅 徒歩20分
大阪府枚方市長尾元町5丁目
- 総階数
- 2階建
- 築年数
- 21年9ヶ月
- 建物構造
- 軽量鉄骨
バス・トイレ別駐車場あり南向き間取り図
階数
間取り
専有面積
賃料
管理費等
敷金
礼金
特徴
お気に入り
詳細
1階
2LDK
57.25㎡
8.7万円
4,000円
- 敷
- 不要
- 礼
- 100,000円
バス・トイレ別
駐車場あり
南向き
詳細を見る ほかの部屋を検索中…ほかの部屋は見つかりませんでしたマンション・アパートcasaα烏丸 3階 築16年10ヶ月の賃貸物件
- 京都市営烏丸線/十条駅 徒歩1分
- JR東海道・山陽本線/京都駅 徒歩15分
京都府京都市南区東九条河辺町
- 総階数
- 6階建
- 築年数
- 16年10ヶ月
- 建物構造
- RC
バス・トイレ別フローリングオートロック間取り図
階数
間取り
専有面積
賃料
管理費等
敷金
礼金
特徴
お気に入り
詳細
3階
1DK
39.58㎡
8.8万円
7,000円
- 敷
- 88,000円
- 礼
- 88,000円
バス・トイレ別
フローリング
オートロック
詳細を見る ほかの部屋を検索中…ほかの部屋は見つかりませんでしたマンション・アパート墨染駅より徒歩1分 4階 新築の賃貸物件
- 京阪本線/墨染駅 徒歩1分
- JR奈良線/JR藤森駅 徒歩10分
京都府京都市伏見区墨染町
- 総階数
- 4階建
- 築年数
- 新築
- 建物構造
- RC
バス・トイレ別フローリングオートロック間取り図
階数
間取り
専有面積
賃料
管理費等
敷金
礼金
特徴
お気に入り
詳細
4階
1LDK
37.83㎡
8.8万円
7,000円
- 敷
- 88,000円
- 礼
- 176,000円
バス・トイレ別
フローリング
オートロック
詳細を見る マンション・アパート香珠マンション 4階 築41年6ヶ月の賃貸物件
- 近鉄京都線/伏見駅 徒歩2分
- 京阪本線/丹波橋駅 徒歩12分
京都府京都市伏見区奈良屋町
- 総階数
- 4階建
- 築年数
- 41年6ヶ月
- 建物構造
- RC
バス・トイレ別フローリング南向き間取り図
階数
間取り
専有面積
賃料
管理費等
敷金
礼金
特徴
お気に入り
詳細
4階
2LDK
63.25㎡
8.9万円
7,000円
- 敷
- 89,000円
- 礼
- 89,000円
バス・トイレ別
フローリング
南向き
詳細を見る ほかの部屋を検索中…ほかの部屋は見つかりませんでしたマンション・アパート墨染駅より徒歩1分 4階 新築の賃貸物件
- 京阪本線/墨染駅 徒歩1分
- JR奈良線/JR藤森駅 徒歩10分
京都府京都市伏見区墨染町
- 総階数
- 4階建
- 築年数
- 新築
- 建物構造
- RC
バス・トイレ別フローリングオートロック間取り図
階数
間取り
専有面積
賃料
管理費等
敷金
礼金
特徴
お気に入り
詳細
4階
1LDK
37.83㎡
8.9万円
7,000円
- 敷
- 89,000円
- 礼
- 178,000円
バス・トイレ別
フローリング
オートロック
詳細を見る マンション・アパート三条駅より徒歩2分 3階 築18年9ヶ月の賃貸物件
- 京阪本線/三条駅 徒歩2分
- 地下鉄東西線/東山駅 徒歩4分
- 地下鉄東西線/京都市役所前駅 徒歩8分
京都府京都市東山区七軒町
- 総階数
- 7階建
- 築年数
- 18年9ヶ月
- 建物構造
- 鉄筋コン
バス・トイレ別フローリングオートロック間取り図
階数
間取り
専有面積
賃料
管理費等
敷金
礼金
特徴
お気に入り
詳細
3階
1DK
33.59㎡
8.9万円
11,000円
- 敷
- 不要
- 礼
- 89,000円
バス・トイレ別
フローリング
オートロック
詳細を見る マンション・アパートグランソルY&D 2階 築15年7ヶ月の賃貸物件
- JR片町線(学研都市線)/JR三山木駅 徒歩1分
- 近鉄京都線/三山木駅 徒歩2分
京都府京田辺市三山木中央1丁目
- 総階数
- 5階建
- 築年数
- 15年7ヶ月
- 建物構造
- RC
バス・トイレ別フローリングオートロック間取り図
階数
間取り
専有面積
賃料
管理費等
敷金
礼金
特徴
お気に入り
詳細
2階
2LDK
66.0㎡
9万円
7,000円
- 敷
- 不要
- 礼
- 200,000円
バス・トイレ別
フローリング
オートロック
詳細を見る ほかの部屋を検索中…ほかの部屋は見つかりませんでしたマンション・アパートときわぎ 9階 築10年1ヶ月の賃貸物件
- 京都地下鉄東西線/東野駅 徒歩1分
- JR東海道・山陽本線/山科駅 徒歩13分
京都府京都市山科区東野片下リ町
- 総階数
- 9階建
- 築年数
- 10年1ヶ月
- 建物構造
- RC
バス・トイレ別駐車場ありフローリング間取り図
階数
間取り
専有面積
賃料
管理費等
敷金
礼金
特徴
お気に入り
詳細
9階
1DK
35.06㎡
9万円
11,000円
- 敷
- 不要
- 礼
- 100,000円
バス・トイレ別
駐車場あり
フローリング
詳細を見る ほかの部屋を検索中…ほかの部屋は見つかりませんでした


この店舗からのコメント
かんたんお部屋探しの京都ライフ「出町柳店」です。左京区を中心に周辺エリアの賃貸物件を長年にわたりご紹介しております。どのエリアも熟知しておりますので、学生様、ファミリー様のお部屋探しもお任せ下さい。