株式会社京都ライフ 北山店の詳細情報
| アクセス | 京都市烏丸線/北山 徒歩3分 | ||||
|---|---|---|---|---|---|
| 住所 | 京都府京都市北区上賀茂岩ケ垣内町98番地2 | ||||
| 営業時間 | 9:30~19:00 | ||||
| 定休日 | 年末年始、盆 | ||||
| 電話番号 | 075-708-1711 | ||||
株式会社京都ライフ 北山店の周辺地図
店舗の特徴
駅のそば(歩3分以内)、年中無休、引越し業者の紹介可、法人の契約取扱い、賃貸管理業務、リフォーム対応、24時間管理
ニフティ不動産に掲載中の物件情報
| 1R~1LDK | 2K~2LDK | 3K~3LDK | 4K~4LDK | 5K~ | |
|---|---|---|---|---|---|
| 賃貸 | 10,115件 | 2,781件 | 1,100件 | 215件 | 95件 |
| 新築マンション | - | - | - | - | - |
| 中古マンション | - | - | - | - | - |
| 新築戸建 | - | - | - | - | - |
| 中古戸建 | - | - | - | - | - |
| ~50㎡ | 50~80㎡ | 80~100㎡ | 100~130㎡ | 130㎡~ | |
| 土地 | - | - | - | - | - |
不動産会社情報の精度向上にご協力をお願いいたします。不動産会社情報に誤りがある場合はこちらよりご連絡ください。
株式会社京都ライフ 北山店の物件一覧
並び替え
マンション・アパート木幡駅より徒歩4分 2階 築47年4ヶ月の賃貸物件
- 京阪宇治線/木幡駅 徒歩4分
- JR奈良線/木幡駅 徒歩8分
京都府宇治市木幡内畑
- 総階数
- 7階建
- 築年数
- 47年4ヶ月
- 建物構造
- RC
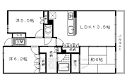
バス・トイレ別フローリングコンロ2口以上間取り図
階数
間取り
専有面積
賃料
管理費等
敷金
礼金
特徴
お気に入り
詳細
2階
2LDK
60.98㎡
7.5万円
4,000円
- 敷
- 75,000円
- 礼
- 75,000円
バス・トイレ別
フローリング
コンロ2口以上
詳細を見る マンション・アパート長岡天神駅より徒歩8分 1階 築3年4ヶ月の賃貸物件
- 阪急京都本線/長岡天神駅 徒歩8分
- JR東海道・山陽本線/長岡京駅 徒歩17分
京都府長岡京市天神1丁目
- 総階数
- 3階建
- 築年数
- 3年4ヶ月
- 建物構造
- ALC
バス・トイレ別ペット相談フローリング間取り図
階数
間取り
専有面積
賃料
管理費等
敷金
礼金
特徴
お気に入り
詳細
1階
1LDK
31.4㎡
7.5万円
5,000円
- 敷
- 75,000円
- 礼
- 75,000円
バス・トイレ別
ペット相談
フローリング
詳細を見る マンション・アパートガーデンハイツ花園 2階 築34年8ヶ月の賃貸物件
- 叡山電鉄鞍馬線/八幡前駅 徒歩7分
- 京都市営烏丸線/国際会館駅 徒歩22分
京都府京都市左京区岩倉花園町
- 総階数
- 2階建
- 築年数
- 34年8ヶ月
- 建物構造
- 軽量鉄骨
バス・トイレ別駐車場ありフローリング間取り図
階数
間取り
専有面積
賃料
管理費等
敷金
礼金
特徴
お気に入り
詳細
2階
2LDK
54.25㎡
7.5万円
不要
- 敷
- 不要
- 礼
- 80,000円
バス・トイレ別
駐車場あり
フローリング
詳細を見る ほかの部屋を検索中…ほかの部屋は見つかりませんでしたマンション・アパートレオパレスブランカ 1階 築26年5ヶ月の賃貸物件
- 京阪電鉄鴨東線/出町柳駅 徒歩7分
- 叡山電鉄/出町柳駅 徒歩7分
- 京都市営地下鉄烏丸線/今出川駅 徒歩12分
京都府京都市上京区今出川通河原町西入1筋目上る三芳町
- 総階数
- 2階建
- 築年数
- 26年5ヶ月
- 建物構造
- 木造
バス・トイレ別フローリング新着間取り図
階数
間取り
専有面積
賃料
管理費等
敷金
礼金
特徴
お気に入り
詳細
1階
1R
21.2㎡
7.5万円
5,000円
- 敷
- 不要
- 礼
- 75,000円
バス・トイレ別
フローリング
新着
詳細を見る ほかの部屋を検索中…ほかの部屋は見つかりませんでした一戸建て北山駅より徒歩7分 築24年10ヶ月の賃貸物件
- 京都市営地下鉄烏丸線/北山駅 徒歩7分
- 京都市営地下鉄烏丸線/松ヶ崎駅 徒歩18分
- 京都市営地下鉄烏丸線/北大路駅 徒歩19分
京都府京都市北区上賀茂榊田町
- 総階数
- 2階建
- 築年数
- 24年10ヶ月
- 建物構造
- 木造
駐車場あり角部屋駐輪場あり間取り図
階数
間取り
専有面積
賃料
管理費等
敷金
礼金
特徴
お気に入り
詳細
-
1R
35.0㎡
7.5万円
不要
- 敷
- 75,000円
- 礼
- 75,000円
駐車場あり
角部屋
駐輪場あり
詳細を見る マンション・アパートカーサスカイ1 1階 築13年3ヶ月の賃貸物件
- 京都地下鉄東西線/小野駅 徒歩10分
- 京都地下鉄東西線/椥辻駅 徒歩24分
京都府京都市山科区勧修寺御所内町
- 総階数
- 2階建
- 築年数
- 13年3ヶ月
- 建物構造
- 木造
バス・トイレ別駐車場ありペット相談間取り図
階数
間取り
専有面積
賃料
管理費等
敷金
礼金
特徴
お気に入り
詳細
1階
1LDK
45.02㎡
7.5万円
4,100円
- 敷
- 不要
- 礼
- 75,000円
バス・トイレ別
駐車場あり
ペット相談
詳細を見る ほかの部屋を検索中…ほかの部屋は見つかりませんでしたマンション・アパート京都市役所前駅より徒歩7分 4階 築9年3ヶ月の賃貸物件
- 京都地下鉄東西線/京都市役所前駅 徒歩7分
- 京都市営烏丸線/烏丸御池駅 徒歩10分
京都府京都市中京区富小路通六角上る朝倉町
- 総階数
- 5階建
- 築年数
- 9年3ヶ月
- 建物構造
- 鉄骨造
バス・トイレ別ペット相談角部屋間取り図
階数
間取り
専有面積
賃料
管理費等
敷金
礼金
特徴
お気に入り
詳細
4階
1K
22.31㎡
7.5万円
9,000円
- 敷
- 75,000円
- 礼
- 150,000円
バス・トイレ別
ペット相談
角部屋
詳細を見る マンション・アパートプレサンス京都洛南 2階 築7年2ヶ月の賃貸物件
- JR東海道・山陽本線/西大路駅 徒歩7分
- 阪急京都本線/西院駅 徒歩24分
京都府京都市下京区七条御所ノ内中町
- 総階数
- 8階建
- 築年数
- 7年2ヶ月
- 建物構造
- RC
バス・トイレ別フローリングオートロック間取り図
階数
間取り
専有面積
賃料
管理費等
敷金
礼金
特徴
お気に入り
詳細
2階
1K
28.05㎡
7.5万円
7,000円
- 敷
- 不要
- 礼
- 75,000円
バス・トイレ別
フローリング
オートロック
詳細を見る ほかの部屋を検索中…ほかの部屋は見つかりませんでしたマンション・アパートセジュールルーチェ 2階 築9年10ヶ月の賃貸物件
- JR湖西線/堅田駅 徒歩7分
- JR湖西線/小野駅 徒歩34分
滋賀県大津市本堅田6丁目
- 総階数
- 3階建
- 築年数
- 9年10ヶ月
- 建物構造
- 軽量鉄骨
バス・トイレ別駐車場ありフローリング間取り図
階数
間取り
専有面積
賃料
管理費等
敷金
礼金
特徴
お気に入り
詳細
2階
1LDK
42.93㎡
7.5万円
6,000円
- 敷
- 不要
- 礼
- 80,000円
バス・トイレ別
駐車場あり
フローリング
詳細を見る ほかの部屋を検索中…ほかの部屋は見つかりませんでしたマンション・アパートセジュール扇田A 2階 築23年の賃貸物件
- 阪急嵐山線/松尾大社駅 徒歩8分
- 阪急嵐山線/上桂駅 徒歩15分
京都府京都市西京区松室扇田町
- 総階数
- 2階建
- 築年数
- 23年
- 建物構造
- 軽量鉄骨
バス・トイレ別駐車場ありフローリング間取り図
階数
間取り
専有面積
賃料
管理費等
敷金
礼金
特徴
お気に入り
詳細
2階
2LDK
53.76㎡
7.5万円
4,000円
- 敷
- 不要
- 礼
- 不要
バス・トイレ別
駐車場あり
フローリング
詳細を見る ほかの部屋を検索中…ほかの部屋は見つかりませんでしたマンション・アパート京都市役所前駅より徒歩7分 4階 築9年3ヶ月の賃貸物件
- 地下鉄東西線/京都市役所前駅 徒歩7分
- 地下鉄烏丸線/烏丸御池駅 徒歩10分
- 阪急京都線/京都河原町駅 徒歩11分
京都府京都市中京区朝倉町
- 総階数
- 5階建
- 築年数
- 9年3ヶ月
- 建物構造
- 鉄骨
バス・トイレ別ペット相談角部屋間取り図
階数
間取り
専有面積
賃料
管理費等
敷金
礼金
特徴
お気に入り
詳細
4階
1K
22.31㎡
7.5万円
9,000円
- 敷
- 75,000円
- 礼
- 150,000円
バス・トイレ別
ペット相談
角部屋
詳細を見る マンション・アパートプレサンス THE KYOTO 東福寺 WEST 4階 築4年4ヶ月の賃貸物件
- 京都市営烏丸線/九条駅 徒歩7分
- JR東海道・山陽本線/京都駅 徒歩14分
京都府京都市南区東九条宇賀辺町
- 総階数
- 7階建
- 築年数
- 4年4ヶ月
- 建物構造
- RC
バス・トイレ別フローリング新着間取り図
階数
間取り
専有面積
賃料
管理費等
敷金
礼金
特徴
お気に入り
詳細
4階
1K
25.65㎡
7.505万円
8,100円
- 敷
- 不要
- 礼
- 100,000円
バス・トイレ別
フローリング
新着
詳細を見る ほかの部屋を検索中…ほかの部屋は見つかりませんでしたマンション・アパート九条駅より徒歩7分 3階 築4年4ヶ月の賃貸物件
- 地下鉄烏丸線/九条駅 徒歩7分
- JR東海道本線/京都駅 徒歩14分
- 地下鉄烏丸線/京都駅 徒歩14分
京都府京都市南区東九条宇賀辺町
- 総階数
- 7階建
- 築年数
- 4年4ヶ月
- 建物構造
- 鉄筋コン
バス・トイレ別フローリングオートロック間取り図
階数
間取り
専有面積
賃料
管理費等
敷金
礼金
特徴
お気に入り
詳細
3階
1K
25.65㎡
7.51万円
7,950円
- 敷
- 不要
- 礼
- 100,000円
バス・トイレ別
フローリング
オートロック
詳細を見る マンション・アパート九条駅より徒歩7分 4階 築4年4ヶ月の賃貸物件
- 地下鉄烏丸線/九条駅 徒歩7分
- JR東海道本線/京都駅 徒歩14分
- 地下鉄烏丸線/京都駅 徒歩14分
京都府京都市南区東九条宇賀辺町
- 総階数
- 7階建
- 築年数
- 4年4ヶ月
- 建物構造
- 鉄筋コン
バス・トイレ別フローリング新着間取り図
階数
間取り
専有面積
賃料
管理費等
敷金
礼金
特徴
お気に入り
詳細
4階
1K
25.65㎡
7.51万円
8,100円
- 敷
- 不要
- 礼
- 100,000円
バス・トイレ別
フローリング
新着
詳細を見る マンション・アパート五条駅より徒歩7分 4階 築14年3ヶ月の賃貸物件
- 京都市営烏丸線/五条駅 徒歩7分
- 京都市営烏丸線/四条駅 徒歩13分
京都府京都市下京区東中筋通松原下る天使突抜1丁目
- 総階数
- 5階建
- 築年数
- 14年3ヶ月
- 建物構造
- RC
バス・トイレ別フローリングオートロック間取り図
階数
間取り
専有面積
賃料
管理費等
敷金
礼金
特徴
お気に入り
詳細
4階
1K
22.05㎡
7.518万円
9,590円
- 敷
- 不要
- 礼
- 100,000円
バス・トイレ別
フローリング
オートロック
詳細を見る マンション・アパートベラジオ京都西大路2 2階 築8年の賃貸物件
- JR東海道・山陽本線/西大路駅 徒歩8分
- 阪急京都本線/西京極駅 徒歩23分
京都府京都市下京区七条御所ノ内北町
- 総階数
- 9階建
- 築年数
- 8年
- 建物構造
- RC
バス・トイレ別ペット相談フローリング間取り図
階数
間取り
専有面積
賃料
管理費等
敷金
礼金
特徴
お気に入り
詳細
2階
1DK
30.49㎡
7.546万円
8,540円
- 敷
- 不要
- 礼
- 84,000円
バス・トイレ別
ペット相談
フローリング
詳細を見る ほかの部屋を検索中…ほかの部屋は見つかりませんでしたマンション・アパート西大路駅より徒歩8分 2階 築8年の賃貸物件
- JR東海道本線/西大路駅 徒歩8分
- 阪急京都線/西京極駅 徒歩23分
- 阪急京都線/西院駅 徒歩25分
京都府京都市下京区七条御所ノ内北町
- 総階数
- 9階建
- 築年数
- 8年
- 建物構造
- 鉄筋コン
バス・トイレ別駐車場ありペット相談間取り図
階数
間取り
専有面積
賃料
管理費等
敷金
礼金
特徴
お気に入り
詳細
2階
1DK
30.49㎡
7.55万円
8,540円
- 敷
- 不要
- 礼
- 84,000円
バス・トイレ別
駐車場あり
ペット相談
詳細を見る マンション・アパートエステムプラザ京都烏丸五条 5階 築18年2ヶ月の賃貸物件
- 京都市営烏丸線/五条駅 徒歩7分
- JR東海道・山陽本線/京都駅 徒歩15分
京都府京都市下京区中金仏町
- 総階数
- 11階建
- 築年数
- 18年2ヶ月
- 建物構造
- RC
バス・トイレ別フローリングオートロック間取り図
階数
間取り
専有面積
賃料
管理費等
敷金
礼金
特徴
お気に入り
詳細
5階
1K
20.51㎡
7.55万円
11,000円
- 敷
- 不要
- 礼
- 75,500円
バス・トイレ別
フローリング
オートロック
詳細を見る ほかの部屋を検索中…ほかの部屋は見つかりませんでしたマンション・アパートベラジオ京都西大路2 9階 築8年の賃貸物件
- JR東海道・山陽本線/西大路駅 徒歩8分
- 阪急京都本線/西京極駅 徒歩23分
京都府京都市下京区七条御所ノ内北町
- 総階数
- 9階建
- 築年数
- 8年
- 建物構造
- RC
バス・トイレ別ペット相談フローリング間取り図
階数
間取り
専有面積
賃料
管理費等
敷金
礼金
特徴
お気に入り
詳細
9階
1DK
29.67㎡
7.57万円
8,300円
- 敷
- 不要
- 礼
- 84,000円
バス・トイレ別
ペット相談
フローリング
詳細を見る ほかの部屋を検索中…ほかの部屋は見つかりませんでしたマンション・アパート大宮駅より徒歩6分 2階 築15年2ヶ月の賃貸物件
- 阪急京都本線/大宮駅 徒歩6分
- JR山陰本線/二条駅 徒歩11分
京都府京都市中京区黒門通三条下る下一文字町
- 総階数
- 3階建
- 築年数
- 15年2ヶ月
- 建物構造
- RC
バス・トイレ別フローリングオートロック間取り図
階数
間取り
専有面積
賃料
管理費等
敷金
礼金
特徴
お気に入り
詳細
2階
1DK
32.32㎡
7.6万円
5,000円
- 敷
- 76,000円
- 礼
- 76,000円
バス・トイレ別
フローリング
オートロック
詳細を見る マンション・アパートレオパレス利右衛門 2階 築16年3ヶ月の賃貸物件
- JR山陰本線/八木駅 徒歩7分
- JR山陰本線/千代川駅 徒歩35分
京都府南丹市八木町八木
- 総階数
- 2階建
- 築年数
- 16年3ヶ月
- 建物構造
- 木造
バス・トイレ別駐車場ありフローリング間取り図
階数
間取り
専有面積
賃料
管理費等
敷金
礼金
特徴
お気に入り
詳細
2階
1K
23.18㎡
7.6万円
7,000円
- 敷
- 不要
- 礼
- 76,000円
バス・トイレ別
駐車場あり
フローリング
詳細を見る ほかの部屋を検索中…ほかの部屋は見つかりませんでしたマンション・アパートレオネクストミューズ 3階 築10年5ヶ月の賃貸物件
- 京都地下鉄東西線/小野駅 徒歩7分
- 京都地下鉄東西線/椥辻駅 徒歩14分
京都府京都市山科区勧修寺東北出町
- 総階数
- 3階建
- 築年数
- 10年5ヶ月
- 建物構造
- 鉄骨造
バス・トイレ別フローリングコンロ2口以上間取り図
階数
間取り
専有面積
賃料
管理費等
敷金
礼金
特徴
お気に入り
詳細
3階
1K
26.08㎡
7.6万円
7,000円
- 敷
- 不要
- 礼
- 76,000円
バス・トイレ別
フローリング
コンロ2口以上
詳細を見る ほかの部屋を検索中…ほかの部屋は見つかりませんでしたマンション・アパート京都市役所前駅より徒歩7分 4階 築9年3ヶ月の賃貸物件
- 京都地下鉄東西線/京都市役所前駅 徒歩7分
- 京都市営烏丸線/烏丸御池駅 徒歩10分
京都府京都市中京区富小路通六角上る朝倉町
- 総階数
- 5階建
- 築年数
- 9年3ヶ月
- 建物構造
- 鉄骨造
バス・トイレ別ペット相談角部屋間取り図
階数
間取り
専有面積
賃料
管理費等
敷金
礼金
特徴
お気に入り
詳細
4階
1K
23.44㎡
7.6万円
9,000円
- 敷
- 76,000円
- 礼
- 152,000円
バス・トイレ別
ペット相談
角部屋
詳細を見る マンション・アパートジュネスハイカムール 2階 築29年4ヶ月の賃貸物件
- JR東海道・山陽本線/桂川駅 徒歩9分
- 阪急京都本線/洛西口駅 徒歩17分
京都府京都市南区久世中久世町3丁目
- 総階数
- 2階建
- 築年数
- 29年4ヶ月
- 建物構造
- 軽量鉄骨
バス・トイレ別駐車場ありフローリング間取り図
階数
間取り
専有面積
賃料
管理費等
敷金
礼金
特徴
お気に入り
詳細
2階
2LDK
50.12㎡
7.6万円
6,500円
- 敷
- 不要
- 礼
- 76,000円
バス・トイレ別
駐車場あり
フローリング
詳細を見る ほかの部屋を検索中…ほかの部屋は見つかりませんでしたマンション・アパート比叡山坂本駅より徒歩8分 2階 築3年の賃貸物件
- JR湖西線/比叡山坂本駅 徒歩8分
- 京阪石山坂本線/坂本比叡山口駅 徒歩14分
滋賀県大津市坂本7丁目
- 総階数
- 2階建
- 築年数
- 3年
- 建物構造
- 軽量鉄骨
バス・トイレ別駐車場ありペット相談間取り図
階数
間取り
専有面積
賃料
管理費等
敷金
礼金
特徴
お気に入り
詳細
2階
1LDK
40.27㎡
7.6万円
9,000円
- 敷
- 50,000円
- 礼
- 150,000円
バス・トイレ別
駐車場あり
ペット相談
詳細を見る マンション・アパート墨染駅より徒歩8分 2階 築9年8ヶ月の賃貸物件
- 京阪本線/墨染駅 徒歩8分
- JR奈良線/JR藤森駅 徒歩8分
京都府京都市伏見区深草大亀谷内膳町
- 総階数
- 2階建
- 築年数
- 9年8ヶ月
- 建物構造
- 木造
バス・トイレ別駐車場ありフローリング間取り図
階数
間取り
専有面積
賃料
管理費等
敷金
礼金
特徴
お気に入り
詳細
2階
1LDK
40.09㎡
7.6万円
3,500円
- 敷
- 不要
- 礼
- 76,000円
バス・トイレ別
駐車場あり
フローリング
詳細を見る マンション・アパート山科駅より徒歩7分 1階 新築の賃貸物件
- JR東海道・山陽本線/山科駅 徒歩7分
- 京阪京津線/京阪山科駅 徒歩8分
京都府京都市山科区安朱馬場ノ東町
- 総階数
- 2階建
- 築年数
- 新築
- 建物構造
- 木造
バス・トイレ別駐車場ありペット相談間取り図
階数
間取り
専有面積
賃料
管理費等
敷金
礼金
特徴
お気に入り
詳細
1階
1K
27.66㎡
7.6万円
5,800円
- 敷
- 不要
- 礼
- 76,000円
バス・トイレ別
駐車場あり
ペット相談
詳細を見る マンション・アパート山科駅より徒歩9分 1階 新築の賃貸物件
- JR東海道・山陽本線/山科駅 徒歩9分
- 京都地下鉄東西線/山科駅 徒歩9分
京都府京都市山科区御陵鳥ノ向町
- 総階数
- 3階建
- 築年数
- 新築
- 建物構造
- 木造
バス・トイレ別駐車場ありフローリング間取り図
階数
間取り
専有面積
賃料
管理費等
敷金
礼金
特徴
お気に入り
詳細
1階
1K
28.87㎡
7.65万円
4,600円
- 敷
- 不要
- 礼
- 76,500円
バス・トイレ別
駐車場あり
フローリング
詳細を見る マンション・アパート山科駅より徒歩9分 2階 新築の賃貸物件
- JR東海道・山陽本線/山科駅 徒歩9分
- 京都地下鉄東西線/山科駅 徒歩9分
京都府京都市山科区御陵鳥ノ向町
- 総階数
- 3階建
- 築年数
- 新築
- 建物構造
- 木造
バス・トイレ別駐車場ありフローリング間取り図
階数
間取り
専有面積
賃料
管理費等
敷金
礼金
特徴
お気に入り
詳細
2階
1K
27.02㎡
7.65万円
4,600円
- 敷
- 不要
- 礼
- 76,500円
バス・トイレ別
駐車場あり
フローリング
詳細を見る マンション・アパート山科駅より徒歩9分 3階 新築の賃貸物件
- JR東海道・山陽本線/山科駅 徒歩9分
- 京都地下鉄東西線/山科駅 徒歩9分
京都府京都市山科区御陵鳥ノ向町
- 総階数
- 3階建
- 築年数
- 新築
- 建物構造
- 木造
バス・トイレ別駐車場ありフローリング間取り図
階数
間取り
専有面積
賃料
管理費等
敷金
礼金
特徴
お気に入り
詳細
3階
1K
27.02㎡
7.65万円
4,600円
- 敷
- 不要
- 礼
- 76,500円
バス・トイレ別
駐車場あり
フローリング
詳細を見る マンション・アパートレオパレス常盤 2階 築19年1ヶ月の賃貸物件
- 京都市営地下鉄烏丸線/今出川駅 徒歩7分
- 京阪電鉄鴨東線/出町柳駅 徒歩22分
- 京都市営地下鉄烏丸線/丸太町駅 徒歩19分
京都府京都市上京区武者小路通新町西入西無車小路町
- 総階数
- 2階建
- 築年数
- 19年1ヶ月
- 建物構造
- 軽量鉄骨造
バス・トイレ別駐輪場あり浴室乾燥機間取り図
階数
間取り
専有面積
賃料
管理費等
敷金
礼金
特徴
お気に入り
詳細
2階
1K
19.87㎡
7.7万円
7,000円
- 敷
- 不要
- 礼
- 77,000円
バス・トイレ別
駐輪場あり
浴室乾燥機
詳細を見る ほかの部屋を検索中…ほかの部屋は見つかりませんでしたマンション・アパートレオパレス利右衛門 2階 築16年3ヶ月の賃貸物件
- JR山陰本線/八木駅 徒歩7分
- JR山陰本線/千代川駅 徒歩35分
京都府南丹市八木町八木
- 総階数
- 2階建
- 築年数
- 16年3ヶ月
- 建物構造
- 木造
バス・トイレ別駐車場ありフローリング間取り図
階数
間取り
専有面積
賃料
管理費等
敷金
礼金
特徴
お気に入り
詳細
2階
1K
23.18㎡
7.7万円
7,000円
- 敷
- 不要
- 礼
- 77,000円
バス・トイレ別
駐車場あり
フローリング
詳細を見る ほかの部屋を検索中…ほかの部屋は見つかりませんでしたマンション・アパートハーモニーテラス淀新町II 1階 新築の賃貸物件
- 京阪本線/淀駅 徒歩7分
- 京阪本線/石清水八幡宮駅 徒歩43分
京都府京都市伏見区淀新町
- 総階数
- 2階建
- 築年数
- 新築
- 建物構造
- 木造
バス・トイレ別フローリングオートロック間取り図
階数
間取り
専有面積
賃料
管理費等
敷金
礼金
特徴
お気に入り
詳細
1階
1R
30.03㎡
7.7万円
4,000円
- 敷
- 不要
- 礼
- 不要
バス・トイレ別
フローリング
オートロック
詳細を見る ほかの部屋を検索中…ほかの部屋は見つかりませんでしたマンション・アパートサニーハイツ 3階 築46年7ヶ月の賃貸物件
- 阪急京都本線/京都河原町駅 徒歩7分
- 京阪本線/祇園四条駅 徒歩10分
京都府京都市下京区幸竹町
- 総階数
- 3階建
- 築年数
- 46年7ヶ月
- 建物構造
- ALC
バス・トイレ別駐輪場あり間取り図
階数
間取り
専有面積
賃料
管理費等
敷金
礼金
特徴
お気に入り
詳細
3階
1DK
34.58㎡
7.7万円
3,000円
- 敷
- 不要
- 礼
- 77,000円
バス・トイレ別
駐輪場あり
詳細を見る ほかの部屋を検索中…ほかの部屋は見つかりませんでしたマンション・アパート林マンション 2階 築49年1ヶ月の賃貸物件
- JR東海道・山陽本線/山科駅 徒歩7分
- 京阪京津線/京阪山科駅 徒歩7分
京都府京都市山科区御陵田山
- 総階数
- 3階建
- 築年数
- 49年1ヶ月
- 建物構造
- RC
バス・トイレ別駐車場ありフローリング間取り図
階数
間取り
専有面積
賃料
管理費等
敷金
礼金
特徴
お気に入り
詳細
2階
2DK
47.65㎡
7.7万円
不要
- 敷
- 不要
- 礼
- 不要
バス・トイレ別
駐車場あり
フローリング
詳細を見る ほかの部屋を検索中…ほかの部屋は見つかりませんでしたマンション・アパートレオパレス常盤 2階 築19年1ヶ月の賃貸物件
- 京都市営烏丸線/今出川駅 徒歩7分
- 京阪本線/出町柳駅 徒歩22分
京都府京都市上京区新町通武者小路下る西無車小路町
- 総階数
- 2階建
- 築年数
- 19年1ヶ月
- 建物構造
- 軽量鉄骨
バス・トイレ別浴室乾燥機間取り図
階数
間取り
専有面積
賃料
管理費等
敷金
礼金
特徴
お気に入り
詳細
2階
1K
19.87㎡
7.7万円
7,000円
- 敷
- 不要
- 礼
- 77,000円
バス・トイレ別
浴室乾燥機
詳細を見る ほかの部屋を検索中…ほかの部屋は見つかりませんでしたマンション・アパート深草サニーハイツ 6階 築46年の賃貸物件
- 京都市営烏丸線/竹田駅 徒歩8分
- 近鉄京都線/竹田駅 徒歩8分
京都府京都市伏見区竹田七瀬川町
- 総階数
- 7階建
- 築年数
- 46年
- 建物構造
- RC
バス・トイレ別フローリング南向き間取り図
階数
間取り
専有面積
賃料
管理費等
敷金
礼金
特徴
お気に入り
詳細
6階
3DK
52.92㎡
7.7万円
不要
- 敷
- 77,000円
- 礼
- 50,000円
バス・トイレ別
フローリング
南向き
詳細を見る ほかの部屋を検索中…ほかの部屋は見つかりませんでしたマンション・アパート今出川駅より徒歩7分 2階 築19年1ヶ月の賃貸物件
- 地下鉄烏丸線/今出川駅 徒歩7分
- 京阪鴨東線/出町柳駅 徒歩22分
- 地下鉄烏丸線/丸太町駅 徒歩19分
京都府京都市上京区西無車小路町
- 総階数
- 2階建
- 築年数
- 19年1ヶ月
- 建物構造
- 軽量鉄骨
バス・トイレ別浴室乾燥機間取り図
階数
間取り
専有面積
賃料
管理費等
敷金
礼金
特徴
お気に入り
詳細
2階
1K
19.87㎡
7.7万円
7,000円
- 敷
- 不要
- 礼
- 77,000円
バス・トイレ別
浴室乾燥機
詳細を見る マンション・アパート長岡京駅より徒歩7分 3階 築35年9ヶ月の賃貸物件
- JR東海道・山陽本線/長岡京駅 徒歩7分
- 阪急京都本線/長岡天神駅 徒歩10分
京都府長岡京市神足3丁目
- 総階数
- 5階建
- 築年数
- 35年9ヶ月
- 建物構造
- RC
バス・トイレ別駐車場ありフローリング間取り図
階数
間取り
専有面積
賃料
管理費等
敷金
礼金
特徴
お気に入り
詳細
3階
1LDK
45.0㎡
7.7万円
3,000円
- 敷
- 300,000円
- 礼
- 不要
バス・トイレ別
駐車場あり
フローリング
詳細を見る マンション・アパート山科駅より徒歩7分 1階 新築の賃貸物件
- JR東海道・山陽本線/山科駅 徒歩7分
- 京阪京津線/京阪山科駅 徒歩8分
京都府京都市山科区安朱馬場ノ東町
- 総階数
- 2階建
- 築年数
- 新築
- 建物構造
- 木造
バス・トイレ別駐車場ありペット相談間取り図
階数
間取り
専有面積
賃料
管理費等
敷金
礼金
特徴
お気に入り
詳細
1階
1K
27.66㎡
7.7万円
5,800円
- 敷
- 不要
- 礼
- 77,000円
バス・トイレ別
駐車場あり
ペット相談
詳細を見る


この店舗からのコメント
創業40年以上の京都ライフは、年間仲介件数1万9千件以上、2020年度の賃貸仲介ランキングは全国15位!(※全国賃貸住宅新聞調べ)信頼の実績と豊富な物件で、お部屋探しをトータルサポートいたします!