株式会社京都ライフ 北山店の詳細情報
| アクセス | 京都市烏丸線/北山 徒歩3分 | ||||
|---|---|---|---|---|---|
| 住所 | 京都府京都市北区上賀茂岩ケ垣内町98−2 | ||||
| 営業時間 | 9:30~19:00 | ||||
| 定休日 | 年中無休(盆・正月を除く) | ||||
| 電話番号 | 075-708-1711 | ||||
株式会社京都ライフ 北山店の周辺地図
店舗の特徴
駅のそば(歩3分以内)、年中無休、保証人不要の相談可、引越し業者の紹介可、法人の契約取扱い、賃貸管理業務、リフォーム対応、24時間管理
ニフティ不動産に掲載中の物件情報
| 1R~1LDK | 2K~2LDK | 3K~3LDK | 4K~4LDK | 5K~ | |
|---|---|---|---|---|---|
| 賃貸 | 10,146件 | 2,590件 | 1,002件 | 211件 | 81件 |
| 新築マンション | - | - | - | - | - |
| 中古マンション | - | - | - | - | - |
| 新築戸建 | - | - | - | - | - |
| 中古戸建 | - | - | - | - | - |
| ~50㎡ | 50~80㎡ | 80~100㎡ | 100~130㎡ | 130㎡~ | |
| 土地 | - | - | - | - | - |
不動産会社情報の精度向上にご協力をお願いいたします。不動産会社情報に誤りがある場合はこちらよりご連絡ください。
株式会社京都ライフ 北山店の物件一覧
並び替え
マンション・アパートラトランス 1階 新築の賃貸物件
- 京都地下鉄東西線/御陵駅 徒歩6分
- 京阪京津線/京阪山科駅 徒歩22分
京都府京都市山科区日ノ岡ホッパラ町
- 総階数
- 2階建
- 築年数
- 新築
- 建物構造
- 鉄骨造
バス・トイレ別駐車場ありフローリング間取り図
階数
間取り
専有面積
賃料
管理費等
敷金
礼金
特徴
お気に入り
詳細
1階
1LDK
40.68㎡
7.9万円
5,000円
- 敷
- 不要
- 礼
- 158,000円
バス・トイレ別
駐車場あり
フローリング
詳細を見る ほかの部屋を検索中…ほかの部屋は見つかりませんでした一戸建て太秦駅より徒歩3分 築58年3ヶ月の賃貸物件
- JR山陰本線/太秦駅 徒歩3分
- 京福電気鉄道北野線/常盤駅 徒歩6分
京都府京都市右京区太秦青木ケ原町
- 総階数
- 2階建
- 築年数
- 58年3ヶ月
- 建物構造
- 木造
駐車場あり南向き間取り図
階数
間取り
専有面積
賃料
管理費等
敷金
礼金
特徴
お気に入り
詳細
-
3K
53.82㎡
8万円
不要
- 敷
- 80,000円
- 礼
- 80,000円
駐車場あり
南向き
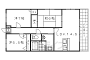
詳細を見る マンション・アパートエステートピア65 2階 築32年9ヶ月の賃貸物件
- 叡山電鉄叡山本線/一乗寺駅 徒歩3分
- 叡山電鉄叡山本線/修学院駅 徒歩9分
京都府京都市左京区一乗寺里ノ西町
- 総階数
- 2階建
- 築年数
- 32年9ヶ月
- 建物構造
- 木造
バス・トイレ別駐車場ありフローリング間取り図
階数
間取り
専有面積
賃料
管理費等
敷金
礼金
特徴
お気に入り
詳細
2階
3DK
51.51㎡
8万円
3,000円
- 敷
- 80,000円
- 礼
- 80,000円
バス・トイレ別
駐車場あり
フローリング
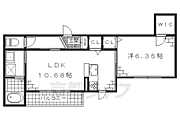
詳細を見る ほかの部屋を検索中…ほかの部屋は見つかりませんでしたマンション・アパート稲荷駅より徒歩3分 1階 築13年8ヶ月の賃貸物件
- JR奈良線/稲荷駅 徒歩3分
- 京阪本線/龍谷大前深草駅 徒歩5分
京都府京都市伏見区深草藪之内町
- 総階数
- 1階建
- 築年数
- 13年8ヶ月
- 建物構造
- 木造
バス・トイレ別フローリングオートロック間取り図
階数
間取り
専有面積
賃料
管理費等
敷金
礼金
特徴
お気に入り
詳細
1階
1LDK
31.45㎡
8万円
2,000円
- 敷
- 80,000円
- 礼
- 80,000円
バス・トイレ別
フローリング
オートロック
詳細を見る マンション・アパートエルマージュ安朱 1階 築2年1ヶ月の賃貸物件
- JR東海道・山陽本線/山科駅 徒歩3分
- 京阪京津線/京阪山科駅 徒歩3分
京都府京都市山科区安朱馬場ノ西町
- 総階数
- 3階建
- 築年数
- 2年1ヶ月
- 建物構造
- 木造
バス・トイレ別オートロック追い炊き機能間取り図
階数
間取り
専有面積
賃料
管理費等
敷金
礼金
特徴
お気に入り
詳細
1階
1K
29.81㎡
8万円
3,000円
- 敷
- 不要
- 礼
- 100,000円
バス・トイレ別
オートロック
追い炊き機能
詳細を見る ほかの部屋を検索中…ほかの部屋は見つかりませんでしたマンション・アパートプレサンスTHE KYOTO 流雅 6階 築6年1ヶ月の賃貸物件
- 京都市営烏丸線/十条駅 徒歩4分
- JR東海道・山陽本線/京都駅 徒歩17分
京都府京都市南区東九条西河辺町
- 総階数
- 7階建
- 築年数
- 6年1ヶ月
- 建物構造
- RC
バス・トイレ別フローリングオートロック間取り図
階数
間取り
専有面積
賃料
管理費等
敷金
礼金
特徴
お気に入り
詳細
6階
1K
24.19㎡
8.05万円
11,000円
- 敷
- 不要
- 礼
- 80,500円
バス・トイレ別
フローリング
オートロック
詳細を見る ほかの部屋を検索中…ほかの部屋は見つかりませんでしたマンション・アパート烏丸御池駅より徒歩5分 4階 築22年7ヶ月の賃貸物件
- 地下鉄烏丸線/烏丸御池駅 徒歩5分
- 阪急京都線/烏丸駅 徒歩10分
- 地下鉄烏丸線/四条駅 徒歩10分
京都府京都市中京区町頭町
- 総階数
- 11階建
- 築年数
- 22年7ヶ月
- 建物構造
- 鉄筋コン
バス・トイレ別駐車場ありフローリング間取り図
階数
間取り
専有面積
賃料
管理費等
敷金
礼金
特徴
お気に入り
詳細
4階
1K
25.11㎡
8.1万円
11,000円
- 敷
- 不要
- 礼
- 81,000円
バス・トイレ別
駐車場あり
フローリング
詳細を見る マンション・アパート淀駅より徒歩3分 2階 築3年6ヶ月の賃貸物件
- 京阪本線/淀駅 徒歩3分
- 阪急京都本線/西山天王山駅 徒歩40分
京都府京都市伏見区淀本町
- 総階数
- 3階建
- 築年数
- 3年6ヶ月
- 建物構造
- 木造
バス・トイレ別フローリングオートロック間取り図
階数
間取り
専有面積
賃料
管理費等
敷金
礼金
特徴
お気に入り
詳細
2階
1LDK
41.28㎡
8.1万円
7,000円
- 敷
- 不要
- 礼
- 81,000円
バス・トイレ別
フローリング
オートロック
詳細を見る マンション・アパートラトランス 2階 新築の賃貸物件
- 京都地下鉄東西線/御陵駅 徒歩6分
- 京阪京津線/京阪山科駅 徒歩22分
京都府京都市山科区日ノ岡ホッパラ町
- 総階数
- 2階建
- 築年数
- 新築
- 建物構造
- 鉄骨造
バス・トイレ別駐車場ありフローリング間取り図
階数
間取り
専有面積
賃料
管理費等
敷金
礼金
特徴
お気に入り
詳細
2階
1LDK
40.68㎡
8.1万円
5,000円
- 敷
- 不要
- 礼
- 162,000円
バス・トイレ別
駐車場あり
フローリング
詳細を見る ほかの部屋を検索中…ほかの部屋は見つかりませんでしたマンション・アパートセラヴィ鞍馬口 3階 築15年の賃貸物件
- 京都市営烏丸線/鞍馬口駅 徒歩3分
- 京都市営烏丸線/北大路駅 徒歩9分
京都府京都市北区小山下総町
- 総階数
- 3階建
- 築年数
- 15年
- 建物構造
- RC
バス・トイレ別フローリングオートロック間取り図
階数
間取り
専有面積
賃料
管理費等
敷金
礼金
特徴
お気に入り
詳細
3階
1DK
34.3㎡
8.2万円
6,000円
- 敷
- 50,000円
- 礼
- 150,000円
バス・トイレ別
フローリング
オートロック
詳細を見る ほかの部屋を検索中…ほかの部屋は見つかりませんでしたマンション・アパート宇治駅より徒歩4分 2階 築3年3ヶ月の賃貸物件
- JR奈良線/宇治駅 徒歩4分
- 京阪宇治線/宇治駅 徒歩10分
京都府宇治市宇治壱番
- 総階数
- 2階建
- 築年数
- 3年3ヶ月
- 建物構造
- 鉄骨造
バス・トイレ別フローリング追い炊き機能間取り図
階数
間取り
専有面積
賃料
管理費等
敷金
礼金
特徴
お気に入り
詳細
2階
1LDK
46.38㎡
8.2万円
6,000円
- 敷
- 50,000円
- 礼
- 41,000円
バス・トイレ別
フローリング
追い炊き機能
詳細を見る マンション・アパート松尾大社駅より徒歩4分 2階 築3年2ヶ月の賃貸物件
- 阪急嵐山線/松尾大社駅 徒歩4分
- 阪急嵐山線/上桂駅 徒歩18分
京都府京都市西京区嵐山宮ノ前町
- 総階数
- 2階建
- 築年数
- 3年2ヶ月
- 建物構造
- 木造
バス・トイレ別駐車場ありフローリング間取り図
階数
間取り
専有面積
賃料
管理費等
敷金
礼金
特徴
お気に入り
詳細
2階
1LDK
49.06㎡
8.2万円
4,600円
- 敷
- 不要
- 礼
- 100,000円
バス・トイレ別
駐車場あり
フローリング
詳細を見る マンション・アパートラトランス 1階 新築の賃貸物件
- 京都地下鉄東西線/御陵駅 徒歩6分
- 京阪京津線/京阪山科駅 徒歩22分
京都府京都市山科区日ノ岡ホッパラ町
- 総階数
- 2階建
- 築年数
- 新築
- 建物構造
- 鉄骨造
バス・トイレ別駐車場ありフローリング間取り図
階数
間取り
専有面積
賃料
管理費等
敷金
礼金
特徴
お気に入り
詳細
1階
1LDK
41.69㎡
8.2万円
5,000円
- 敷
- 不要
- 礼
- 164,000円
バス・トイレ別
駐車場あり
フローリング
詳細を見る ほかの部屋を検索中…ほかの部屋は見つかりませんでしたマンション・アパートオーヴォ今津 2階 築11年3ヶ月の賃貸物件
- JR山陰本線/千代川駅 徒歩3分
- JR山陰本線/並河駅 徒歩33分
京都府亀岡市千代川町今津2丁目
- 総階数
- 3階建
- 築年数
- 11年3ヶ月
- 建物構造
- 軽量鉄骨
バス・トイレ別駐車場ありフローリング間取り図
階数
間取り
専有面積
賃料
管理費等
敷金
礼金
特徴
お気に入り
詳細
2階
2LDK
54.09㎡
8.2万円
6,000円
- 敷
- 30,000円
- 礼
- 120,000円
バス・トイレ別
駐車場あり
フローリング
詳細を見る ほかの部屋を検索中…ほかの部屋は見つかりませんでしたマンション・アパート十条駅より徒歩3分 1階 築1年11ヶ月の賃貸物件
- 京都市営烏丸線/十条駅 徒歩3分
- 京都市営烏丸線/九条駅 徒歩13分
京都府京都市南区東九条南河辺町
- 総階数
- 11階建
- 築年数
- 1年11ヶ月
- 建物構造
- RC
バス・トイレ別フローリングオートロック間取り図
階数
間取り
専有面積
賃料
管理費等
敷金
礼金
特徴
お気に入り
詳細
1階
1DK
25.74㎡
8.213万円
7,870円
- 敷
- 不要
- 礼
- 90,000円
バス・トイレ別
フローリング
オートロック
詳細を見る マンション・アパート十条駅より徒歩3分 1階 築1年11ヶ月の賃貸物件
- 地下鉄烏丸線/十条駅 徒歩3分
- 地下鉄烏丸線/九条駅 徒歩13分
- 地下鉄烏丸線/京都駅 徒歩20分
京都府京都市南区東九条南河辺町
- 総階数
- 11階建
- 築年数
- 1年11ヶ月
- 建物構造
- 鉄筋コン
バス・トイレ別フローリングオートロック間取り図
階数
間取り
専有面積
賃料
管理費等
敷金
礼金
特徴
お気に入り
詳細
1階
1DK
25.74㎡
8.22万円
7,870円
- 敷
- 不要
- 礼
- 90,000円
バス・トイレ別
フローリング
オートロック
詳細を見る マンション・アパート梅小路京都西駅より徒歩3分 2階 築40年6ヶ月の賃貸物件
- JR山陰本線/梅小路京都西駅 徒歩3分
- JR山陰本線/丹波口駅 徒歩12分
京都府京都市下京区夷馬場町
- 総階数
- 7階建
- 築年数
- 40年6ヶ月
- 建物構造
- RC
バス・トイレ別駐車場ありフローリング間取り図
階数
間取り
専有面積
賃料
管理費等
敷金
礼金
特徴
お気に入り
詳細
2階
1DK
35.0㎡
8.25万円
8,500円
- 敷
- 100,000円
- 礼
- 不要
バス・トイレ別
駐車場あり
フローリング
詳細を見る マンション・アパート清水五条駅より徒歩3分 9階 築22年6ヶ月の賃貸物件
- 京阪本線/清水五条駅 徒歩3分
- 京都市営烏丸線/五条駅 徒歩7分
京都府京都市下京区御影堂町
- 総階数
- 11階建
- 築年数
- 22年6ヶ月
- 建物構造
- RC
バス・トイレ別フローリングオートロック間取り図
階数
間取り
専有面積
賃料
管理費等
敷金
礼金
特徴
お気に入り
詳細
9階
1DK
29.65㎡
8.3万円
9,000円
- 敷
- 100,000円
- 礼
- 83,000円
バス・トイレ別
フローリング
オートロック
詳細を見る 伏見駅より徒歩3分 築66年2ヶ月の賃貸物件
- 近鉄京都線/伏見駅 徒歩3分
- 京阪本線/墨染駅 徒歩14分
京都府京都市伏見区深草善導寺町
- 総階数
- 2階建
- 築年数
- 66年2ヶ月
- 建物構造
- 木造
フローリング南向き間取り図
階数
間取り
専有面積
賃料
管理費等
敷金
礼金
特徴
お気に入り
詳細
-
4K
63.59㎡
8.3万円
不要
- 敷
- 100,000円
- 礼
- 50,000円
フローリング
南向き
詳細を見る 一戸建て伏見駅より徒歩3分 1階 築66年2ヶ月の賃貸物件
- 近鉄京都線/伏見駅 徒歩3分
- 京阪本線/墨染駅 徒歩14分
- 近鉄京都線/竹田駅 徒歩15分
京都府京都市伏見区深草善導寺町
- 総階数
- 2階建
- 築年数
- 66年2ヶ月
- 建物構造
- 木造
駐車場ありフローリング南向き間取り図
階数
間取り
専有面積
賃料
管理費等
敷金
礼金
特徴
お気に入り
詳細
1階
4K
63.59㎡
8.3万円
不要
- 敷
- 100,000円
- 礼
- 50,000円
駐車場あり
フローリング
南向き
詳細を見る マンション・アパートラトランス 2階 新築の賃貸物件
- 京都地下鉄東西線/御陵駅 徒歩6分
- 京阪京津線/京阪山科駅 徒歩22分
京都府京都市山科区日ノ岡ホッパラ町
- 総階数
- 2階建
- 築年数
- 新築
- 建物構造
- 鉄骨造
バス・トイレ別駐車場ありフローリング間取り図
階数
間取り
専有面積
賃料
管理費等
敷金
礼金
特徴
お気に入り
詳細
2階
1LDK
41.69㎡
8.4万円
5,000円
- 敷
- 不要
- 礼
- 168,000円
バス・トイレ別
駐車場あり
フローリング
詳細を見る ほかの部屋を検索中…ほかの部屋は見つかりませんでしたマンション・アパートブーブーヴィラ二条 2階 築4年の賃貸物件
- JR山陰本線/二条駅 徒歩4分
- 阪急京都本線/大宮駅 徒歩14分
京都府京都市中京区西ノ京職司町
- 総階数
- 4階建
- 築年数
- 4年
- 建物構造
- RC
バス・トイレ別ペット相談フローリング間取り図
階数
間取り
専有面積
賃料
管理費等
敷金
礼金
特徴
お気に入り
詳細
2階
1R
24.32㎡
8.4万円
不要
- 敷
- 不要
- 礼
- 84,000円
バス・トイレ別
ペット相談
フローリング
詳細を見る ほかの部屋を検索中…ほかの部屋は見つかりませんでしたマンション・アパートエスリード四条河原町 10階 築26年の賃貸物件
- 阪急京都本線/京都河原町駅 徒歩2分
- 京都市営烏丸線/四条駅 徒歩13分
京都府京都市下京区順風町
- 総階数
- 14階建
- 築年数
- 26年
- 建物構造
- SRC
バス・トイレ別フローリングオートロック間取り図
階数
間取り
専有面積
賃料
管理費等
敷金
礼金
特徴
お気に入り
詳細
10階
1DK
25.44㎡
8.45万円
11,000円
- 敷
- 不要
- 礼
- 84,500円
バス・トイレ別
フローリング
オートロック
詳細を見る ほかの部屋を検索中…ほかの部屋は見つかりませんでしたマンション・アパート竹田駅より徒歩3分 4階 築33年7ヶ月の賃貸物件
- 近鉄京都線/竹田駅 徒歩3分
- 京都市営烏丸線/竹田駅 徒歩3分
京都府京都市伏見区竹田桶ノ井町
- 総階数
- 7階建
- 築年数
- 33年7ヶ月
- 建物構造
- RC
バス・トイレ別駐車場ありフローリング間取り図
階数
間取り
専有面積
賃料
管理費等
敷金
礼金
特徴
お気に入り
詳細
4階
2LDK
50.27㎡
8.5万円
9,500円
- 敷
- 不要
- 礼
- 150,000円
バス・トイレ別
駐車場あり
フローリング
詳細を見る マンション・アパート丸太町駅より徒歩3分 3階 築56年の賃貸物件
- 地下鉄烏丸線/丸太町駅 徒歩3分
- 地下鉄烏丸線/烏丸御池駅 徒歩10分
- 地下鉄東西線/京都市役所前駅 徒歩14分
京都府京都市中京区楠町
- 総階数
- 6階建
- 築年数
- 56年
- 建物構造
- 鉄筋コン
バス・トイレ別フローリング南向き間取り図
階数
間取り
専有面積
賃料
管理費等
敷金
礼金
特徴
お気に入り
詳細
3階
2DK
36.5㎡
8.5万円
5,000円
- 敷
- 50,000円
- 礼
- 100,000円
バス・トイレ別
フローリング
南向き
詳細を見る マンション・アパート四条駅より徒歩5分 3階 築31年1ヶ月の賃貸物件
- 地下鉄烏丸線/四条駅 徒歩5分
- 地下鉄烏丸線/烏丸御池駅 徒歩12分
- 阪急京都線/京都河原町駅 徒歩9分
京都府京都市中京区菊屋町
- 総階数
- 7階建
- 築年数
- 31年1ヶ月
- 建物構造
- 鉄筋コン
バス・トイレ別フローリング新着間取り図
階数
間取り
専有面積
賃料
管理費等
敷金
礼金
特徴
お気に入り
詳細
3階
2DK
42.23㎡
8.5万円
10,000円
- 敷
- 100,000円
- 礼
- 100,000円
バス・トイレ別
フローリング
新着
詳細を見る マンション・アパート石田駅より徒歩3分 1階 築13年6ヶ月の賃貸物件
- 京都地下鉄東西線/石田駅 徒歩3分
- 京都地下鉄東西線/醍醐駅 徒歩11分
京都府京都市伏見区石田大受町
- 総階数
- 3階建
- 築年数
- 13年6ヶ月
- 建物構造
- 軽量鉄骨
バス・トイレ別駐車場ありフローリング間取り図
階数
間取り
専有面積
賃料
管理費等
敷金
礼金
特徴
お気に入り
詳細
1階
1LDK
44.63㎡
8.5万円
8,000円
- 敷
- 不要
- 礼
- 85,000円
バス・トイレ別
駐車場あり
フローリング
詳細を見る マンション・アパート丸太町駅より徒歩3分 3階 築56年の賃貸物件
- 京都市営烏丸線/丸太町駅 徒歩3分
- 京都市営烏丸線/烏丸御池駅 徒歩10分
京都府京都市中京区夷川通間之町西入楠町
- 総階数
- 6階建
- 築年数
- 56年
- 建物構造
- RC
バス・トイレ別フローリング南向き間取り図
階数
間取り
専有面積
賃料
管理費等
敷金
礼金
特徴
お気に入り
詳細
3階
2DK
36.5㎡
8.5万円
5,000円
- 敷
- 50,000円
- 礼
- 100,000円
バス・トイレ別
フローリング
南向き
詳細を見る マンション・アパート十条駅より徒歩3分 3階 築13年1ヶ月の賃貸物件
- 京都市営烏丸線/十条駅 徒歩3分
- JR東海道・山陽本線/京都駅 徒歩14分
京都府京都市南区東九条石田町
- 総階数
- 3階建
- 築年数
- 13年1ヶ月
- 建物構造
- RC
バス・トイレ別フローリングオートロック間取り図
階数
間取り
専有面積
賃料
管理費等
敷金
礼金
特徴
お気に入り
詳細
3階
1LDK
40.17㎡
8.5万円
5,400円
- 敷
- 80,000円
- 礼
- 160,000円
バス・トイレ別
フローリング
オートロック
詳細を見る マンション・アパートYAMASHO23 4階 築16年1ヶ月の賃貸物件
- JR東海道・山陽本線/京都駅 徒歩4分
- 京都市営烏丸線/五条駅 徒歩12分
京都府京都市下京区夷之町
- 総階数
- 5階建
- 築年数
- 16年1ヶ月
- 建物構造
- RC
バス・トイレ別フローリングオートロック間取り図
階数
間取り
専有面積
賃料
管理費等
敷金
礼金
特徴
お気に入り
詳細
4階
1K
31.0㎡
8.6万円
12,000円
- 敷
- 不要
- 礼
- 150,000円
バス・トイレ別
フローリング
オートロック
詳細を見る ほかの部屋を検索中…ほかの部屋は見つかりませんでしたマンション・アパート五条駅より徒歩3分 5階 築21年の賃貸物件
- 京都市営烏丸線/五条駅 徒歩3分
- 京都市営烏丸線/四条駅 徒歩9分
京都府京都市下京区五条烏丸町
- 総階数
- 8階建
- 築年数
- 21年
- 建物構造
- SRC
バス・トイレ別オートロックコンロ2口以上間取り図
階数
間取り
専有面積
賃料
管理費等
敷金
礼金
特徴
お気に入り
詳細
5階
1K
27.8㎡
8.65万円
11,000円
- 敷
- 不要
- 礼
- 86,500円
バス・トイレ別
オートロック
コンロ2口以上
詳細を見る マンション・アパートエクレーヌ御池 8階 築39年8ヶ月の賃貸物件
- 地下鉄烏丸線/烏丸御池駅 徒歩4分
- 地下鉄東西線/京都市役所前駅 徒歩7分
- 地下鉄烏丸線/四条駅 徒歩14分
京都府京都市中京区丸木材木町
- 総階数
- 11階建
- 築年数
- 39年8ヶ月
- 建物構造
- 鉄骨鉄筋
駐車場ありオートロック角部屋間取り図
階数
間取り
専有面積
賃料
管理費等
敷金
礼金
特徴
お気に入り
詳細
8階
1R
24.11㎡
8.8万円
不要
- 敷
- 176,000円
- 礼
- 不要
駐車場あり
オートロック
角部屋
詳細を見る ほかの部屋を検索中…ほかの部屋は見つかりませんでしたマンション・アパートJR藤森駅より徒歩3分 1階 築8年6ヶ月の賃貸物件
- JR奈良線/JR藤森駅 徒歩3分
- 京阪本線/墨染駅 徒歩11分
京都府京都市伏見区深草大亀谷大山町
- 総階数
- 2階建
- 築年数
- 8年6ヶ月
- 建物構造
- 軽量鉄骨
バス・トイレ別駐車場ありフローリング間取り図
階数
間取り
専有面積
賃料
管理費等
敷金
礼金
特徴
お気に入り
詳細
1階
1LDK
43.0㎡
8.8万円
5,000円
- 敷
- 88,000円
- 礼
- 88,000円
バス・トイレ別
駐車場あり
フローリング
詳細を見る マンション・アパートアリヴィオ清涼A 1階 築17年1ヶ月の賃貸物件
- JR東海道・山陽本線/向日町駅 徒歩9分
- 阪急京都本線/東向日駅 徒歩14分
京都府京都市南区久世殿城町
- 総階数
- 2階建
- 築年数
- 17年1ヶ月
- 建物構造
- 軽量鉄骨
バス・トイレ別駐車場ありフローリング間取り図
階数
間取り
専有面積
賃料
管理費等
敷金
礼金
特徴
お気に入り
詳細
1階
1LDK
47.69㎡
8.8万円
6,000円
- 敷
- 88,000円
- 礼
- 176,000円
バス・トイレ別
駐車場あり
フローリング
詳細を見る ほかの部屋を検索中…ほかの部屋は見つかりませんでしたマンション・アパートボンエルフ嵯峨 3階 築36年9ヶ月の賃貸物件
- JR山陰本線/嵯峨嵐山駅 徒歩3分
- 阪急嵐山線/嵐山駅 徒歩19分
京都府京都市右京区嵯峨天龍寺今堀町
- 総階数
- 3階建
- 築年数
- 36年9ヶ月
- 建物構造
- RC
バス・トイレ別駐車場ありフローリング間取り図
階数
間取り
専有面積
賃料
管理費等
敷金
礼金
特徴
お気に入り
詳細
3階
3LDK
67.8㎡
8.8万円
8,000円
- 敷
- 不要
- 礼
- 100,000円
バス・トイレ別
駐車場あり
フローリング
詳細を見る ほかの部屋を検索中…ほかの部屋は見つかりませんでしたマンション・アパートシェノン城南 2階 築4年11ヶ月の賃貸物件
- 京都市営烏丸線/竹田駅 徒歩3分
- 近鉄京都線/竹田駅 徒歩3分
京都府京都市伏見区竹田真幡木町
- 総階数
- 3階建
- 築年数
- 4年11ヶ月
- 建物構造
- 鉄骨造
バス・トイレ別駐車場ありペット相談間取り図
階数
間取り
専有面積
賃料
管理費等
敷金
礼金
特徴
お気に入り
詳細
2階
1LDK
36.77㎡
8.9万円
8,000円
- 敷
- 不要
- 礼
- 200,000円
バス・トイレ別
駐車場あり
ペット相談
詳細を見る ほかの部屋を検索中…ほかの部屋は見つかりませんでしたマンション・アパートサンフラワーA 3階 築12年の賃貸物件
- 阪急京都本線/東向日駅 徒歩3分
- JR東海道・山陽本線/向日町駅 徒歩10分
京都府向日市寺戸町二枚田
- 総階数
- 3階建
- 築年数
- 12年
- 建物構造
- 軽量鉄骨
バス・トイレ別フローリング新着間取り図
階数
間取り
専有面積
賃料
管理費等
敷金
礼金
特徴
お気に入り
詳細
3階
1LDK
39.76㎡
9万円
8,000円
- 敷
- 不要
- 礼
- 150,000円
バス・トイレ別
フローリング
新着
詳細を見る ほかの部屋を検索中…ほかの部屋は見つかりませんでしたマンション・アパート伏見駅より徒歩3分 10階 築54年の賃貸物件
- 近鉄京都線/伏見駅 徒歩3分
- 京阪本線/墨染駅 徒歩7分
京都府京都市伏見区深草出羽屋敷町
- 総階数
- 11階建
- 築年数
- 54年
- 建物構造
- SRC
バス・トイレ別フローリング追い炊き機能間取り図
階数
間取り
専有面積
賃料
管理費等
敷金
礼金
特徴
お気に入り
詳細
10階
3LDK
66.66㎡
9万円
10,000円
- 敷
- 180,000円
- 礼
- 90,000円
バス・トイレ別
フローリング
追い炊き機能
詳細を見る マンション・アパート伏見駅より徒歩3分 10階 築54年の賃貸物件
- 近鉄京都線/伏見駅 徒歩3分
- 京阪本線/墨染駅 徒歩7分
京都府京都市伏見区深草出羽屋敷町
- 総階数
- 11階建
- 築年数
- 54年
- 建物構造
- SRC
バス・トイレ別フローリング駐輪場あり間取り図
階数
間取り
専有面積
賃料
管理費等
敷金
礼金
特徴
お気に入り
詳細
10階
3LDK
72.72㎡
9万円
10,000円
- 敷
- 180,000円
- 礼
- 90,000円
バス・トイレ別
フローリング
駐輪場あり
詳細を見る マンション・アパート石田駅より徒歩5分 3階 築41年11ヶ月の賃貸物件
- 京都地下鉄東西線/石田駅 徒歩5分
- 京都地下鉄東西線/六地蔵駅 徒歩11分
京都府京都市伏見区石田森西
- 総階数
- 6階建
- 築年数
- 41年11ヶ月
- 建物構造
- RC
バス・トイレ別駐車場ありフローリング間取り図
階数
間取り
専有面積
賃料
管理費等
敷金
礼金
特徴
お気に入り
詳細
3階
3LDK
60.5㎡
9万円
10,000円
- 敷
- 不要
- 礼
- 90,000円
バス・トイレ別
駐車場あり
フローリング
詳細を見る


この店舗からのコメント
地下鉄烏丸線「北山」から徒歩1分。キッズスペースも備えた明るく綺麗な店内で、ゆっくりとお部屋探ししていただけます。活気あふれるスタッフが皆様のご来店をお待ちしています。