株式会社京都ライフ 四条烏丸店の詳細情報
| アクセス | 阪急電鉄京都線/烏丸 徒歩6分 | ||||
|---|---|---|---|---|---|
| 住所 | 京都府京都市下京区四条通新町東入月鉾町47-15 | ||||
| 営業時間 | 9:30~19:00 | ||||
| 定休日 | 年中無休(盆正月を除く) | ||||
| 電話番号 | 075-256-5115 | ||||
株式会社京都ライフ 四条烏丸店の周辺地図
店舗の特徴
19時以降も営業、駅のそば(歩3分以内)、年中無休、女性スタッフ対応、保証人不要の相談可、引越し業者の紹介可、法人の契約取扱い、賃貸管理業務
ニフティ不動産に掲載中の物件情報
| 1R~1LDK | 2K~2LDK | 3K~3LDK | 4K~4LDK | 5K~ | |
|---|---|---|---|---|---|
| 賃貸 | 12,029件 | 2,778件 | 1,071件 | 173件 | 70件 |
| 新築マンション | - | - | - | - | - |
| 中古マンション | - | - | - | - | - |
| 新築戸建 | - | - | - | - | - |
| 中古戸建 | - | - | - | - | - |
| ~50㎡ | 50~80㎡ | 80~100㎡ | 100~130㎡ | 130㎡~ | |
| 土地 | - | - | - | - | - |
不動産会社情報の精度向上にご協力をお願いいたします。不動産会社情報に誤りがある場合はこちらよりご連絡ください。
株式会社京都ライフ 四条烏丸店の物件一覧
並び替え
マンション・アパートタワード四条 6階 築21年2ヶ月の賃貸物件
- 阪急電鉄京都線/大宮駅 徒歩1分
- 京都市営地下鉄烏丸線/四条駅 徒歩13分
- 京都市営地下鉄東西線/二条駅 徒歩10分
京都府京都市下京区黒門通四条下る下り松町
- 総階数
- 7階建
- 築年数
- 21年2ヶ月
- 建物構造
- RC
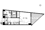
バス・トイレ別フローリングオートロック間取り図
階数
間取り
専有面積
賃料
管理費等
敷金
礼金
特徴
お気に入り
詳細
6階
1K
26.56㎡
6.5万円
5,000円
- 敷
- 不要
- 礼
- 65,000円
バス・トイレ別
フローリング
オートロック
詳細を見る ほかの部屋を検索中…ほかの部屋は見つかりませんでしたマンション・アパート椥辻駅より徒歩1分 4階 築48年1ヶ月の賃貸物件
- 地下鉄東西線/椥辻駅 徒歩1分
- 地下鉄東西線/東野駅 徒歩13分
- JR東海道本線/山科駅 徒歩25分
京都府京都市山科区椥辻中在家町
- 総階数
- 6階建
- 築年数
- 48年1ヶ月
- 建物構造
- 鉄筋コン
バス・トイレ別南向き駐輪場あり間取り図
階数
間取り
専有面積
賃料
管理費等
敷金
礼金
特徴
お気に入り
詳細
4階
1LDK
51.84㎡
6.5万円
6,000円
- 敷
- 100,000円
- 礼
- 100,000円
バス・トイレ別
南向き
駐輪場あり
詳細を見る マンション・アパート大宮駅より徒歩1分 6階 築21年2ヶ月の賃貸物件
- 阪急京都線/大宮駅 徒歩1分
- 地下鉄烏丸線/四条駅 徒歩13分
- 地下鉄東西線/二条駅 徒歩10分
京都府京都市下京区下り松町
- 総階数
- 7階建
- 築年数
- 21年2ヶ月
- 建物構造
- 鉄筋コン
バス・トイレ別フローリングオートロック間取り図
階数
間取り
専有面積
賃料
管理費等
敷金
礼金
特徴
お気に入り
詳細
6階
1K
26.56㎡
6.5万円
5,000円
- 敷
- 不要
- 礼
- 65,000円
バス・トイレ別
フローリング
オートロック
詳細を見る マンション・アパート一乗寺駅より徒歩1分 4階 築18年8ヶ月の賃貸物件
- 叡山電鉄叡山本線/一乗寺駅 徒歩1分
- 京阪鴨東線/出町柳駅 徒歩27分
- 叡山電鉄叡山本線/茶山・京都芸術大学駅 徒歩10分
京都府京都市左京区一乗寺里ノ前町
- 総階数
- 5階建
- 築年数
- 18年8ヶ月
- 建物構造
- 鉄骨
バス・トイレ別駐車場ありフローリング間取り図
階数
間取り
専有面積
賃料
管理費等
敷金
礼金
特徴
お気に入り
詳細
4階
1K
28.35㎡
6.5万円
6,000円
- 敷
- 不要
- 礼
- 不要
バス・トイレ別
駐車場あり
フローリング
詳細を見る マンション・アパート北野白梅町駅より徒歩3分 2階 築12年8ヶ月の賃貸物件
- 京福電鉄北野線/北野白梅町駅 徒歩3分
- JR山陰本線/円町駅 徒歩15分
- 地下鉄東西線/西大路御池駅 徒歩25分
京都府京都市北区北野西白梅町
- 総階数
- 3階建
- 築年数
- 12年8ヶ月
- 建物構造
- 鉄骨
バス・トイレ別フローリング新着間取り図
階数
間取り
専有面積
賃料
管理費等
敷金
礼金
特徴
お気に入り
詳細
2階
1K
24.84㎡
6.5万円
5,000円
- 敷
- 不要
- 礼
- 70,000円
バス・トイレ別
フローリング
新着
詳細を見る マンション・アパート森の雫 8階 築16年8ヶ月の賃貸物件
- JR東海道本線/石山駅 徒歩2分
- 京阪石山坂本線/京阪石山駅 徒歩1分
- 京阪石山坂本線/唐橋前駅 徒歩12分
滋賀県大津市粟津町
- 総階数
- 8階建
- 築年数
- 16年8ヶ月
- 建物構造
- 鉄筋コン
バス・トイレ別フローリングオートロック間取り図
階数
間取り
専有面積
賃料
管理費等
敷金
礼金
特徴
お気に入り
詳細
8階
1LDK
36.36㎡
6.5万円
6,500円
- 敷
- 65,000円
- 礼
- 65,000円
バス・トイレ別
フローリング
オートロック
詳細を見る ほかの部屋を検索中…ほかの部屋は見つかりませんでしたマンション・アパート瀬田駅より徒歩1分 3階 築20年8ヶ月の賃貸物件
- JR東海道本線/瀬田駅 徒歩1分
- JR東海道本線/石山駅 徒歩34分
- 京阪石山坂本線/京阪石山駅 徒歩35分
滋賀県大津市大萱1
- 総階数
- 10階建
- 築年数
- 20年8ヶ月
- 建物構造
- 鉄筋コン
バス・トイレ別フローリングオートロック間取り図
階数
間取り
専有面積
賃料
管理費等
敷金
礼金
特徴
お気に入り
詳細
3階
1DK
30.45㎡
6.5万円
6,000円
- 敷
- 65,000円
- 礼
- 65,000円
バス・トイレ別
フローリング
オートロック
詳細を見る マンション・アパート伏見桃山駅より徒歩1分 2階 築21年7ヶ月の賃貸物件
- 京阪本線/伏見桃山駅 徒歩1分
- 近鉄京都線/桃山御陵前駅 徒歩1分
- 京阪本線/丹波橋駅 徒歩8分
京都府京都市伏見区京町4
- 総階数
- 4階建
- 築年数
- 21年7ヶ月
- 建物構造
- 鉄筋コン
バス・トイレ別フローリングオートロック間取り図
階数
間取り
専有面積
賃料
管理費等
敷金
礼金
特徴
お気に入り
詳細
2階
1K
27.49㎡
6.5万円
5,000円
- 敷
- 不要
- 礼
- 140,000円
バス・トイレ別
フローリング
オートロック
詳細を見る マンション・アパートグランドプレア 2階 築21年7ヶ月の賃貸物件
- 京阪電鉄本線/清水五条駅 徒歩1分
- 京阪電鉄本線/祇園四条駅 徒歩10分
- 京阪電鉄本線/七条駅 徒歩12分
京都府京都市東山区新宮川筋五条上る2丁目山田町
- 総階数
- 6階建
- 築年数
- 21年7ヶ月
- 建物構造
- RC
バス・トイレ別フローリング新着間取り図
階数
間取り
専有面積
賃料
管理費等
敷金
礼金
特徴
お気に入り
詳細
2階
1K
25.8㎡
6.5万円
6,500円
- 敷
- 65,000円
- 礼
- 130,000円
バス・トイレ別
フローリング
新着
詳細を見る ほかの部屋を検索中…ほかの部屋は見つかりませんでしたマンション・アパートEXCEED桂 3階 築17年8ヶ月の賃貸物件
- 阪急京都線/桂駅 徒歩1分
- JR東海道本線/桂川駅 徒歩30分
- 阪急嵐山線/上桂駅 徒歩24分
京都府京都市西京区桂野里町
- 総階数
- 6階建
- 築年数
- 17年8ヶ月
- 建物構造
- 鉄筋コン
バス・トイレ別フローリング新着間取り図
階数
間取り
専有面積
賃料
管理費等
敷金
礼金
特徴
お気に入り
詳細
3階
1K
22.74㎡
6.5万円
6,000円
- 敷
- 不要
- 礼
- 130,000円
バス・トイレ別
フローリング
新着
詳細を見る ほかの部屋を検索中…ほかの部屋は見つかりませんでしたマンション・アパート柳風館 2階 築38年8ヶ月の賃貸物件
- 京都市営烏丸線/丸太町駅 徒歩1分
- 京都市営烏丸線/烏丸御池駅 徒歩10分
京都府京都市中京区車屋町通丸太町下ル砂金町
- 総階数
- 4階建
- 築年数
- 38年8ヶ月
- 建物構造
- ALC
バス・トイレ別フローリング駐輪場あり間取り図
階数
間取り
専有面積
賃料
管理費等
敷金
礼金
特徴
お気に入り
詳細
2階
1LDK
35.0㎡
6.5万円
不要
- 敷
- 不要
- 礼
- 32,500円
バス・トイレ別
フローリング
駐輪場あり
詳細を見る ほかの部屋を検索中…ほかの部屋は見つかりませんでしたマンション・アパート大宮駅より徒歩1分 6階 築21年2ヶ月の賃貸物件
- 阪急京都本線/大宮駅 徒歩1分
- 京都市営烏丸線/四条駅 徒歩13分
京都府京都市下京区綾小路通大宮東入下り松町
- 総階数
- 7階建
- 築年数
- 21年2ヶ月
- 建物構造
- RC
バス・トイレ別フローリングオートロック間取り図
階数
間取り
専有面積
賃料
管理費等
敷金
礼金
特徴
お気に入り
詳細
6階
1K
26.56㎡
6.5万円
5,000円
- 敷
- 不要
- 礼
- 65,000円
バス・トイレ別
フローリング
オートロック
詳細を見る マンション・アパート伏見駅より徒歩1分 3階 築35年9ヶ月の賃貸物件
- 近鉄京都線/伏見駅 徒歩1分
- 京阪本線/墨染駅 徒歩13分
- 京阪本線/丹波橋駅 徒歩14分
京都府京都市伏見区深草善導寺町
- 総階数
- 4階建
- 築年数
- 35年9ヶ月
- 建物構造
- 鉄骨
バス・トイレ別フローリング南向き間取り図
階数
間取り
専有面積
賃料
管理費等
敷金
礼金
特徴
お気に入り
詳細
3階
2DK
39.87㎡
6.5万円
3,000円
- 敷
- 100,000円
- 礼
- 不要
バス・トイレ別
フローリング
南向き
詳細を見る マンション・アパート花園駅より徒歩1分 3階 築54年1ヶ月の賃貸物件
- JR山陰本線/花園駅 徒歩1分
- 京都地下鉄東西線/太秦天神川駅 徒歩15分
京都府京都市右京区花園伊町
- 総階数
- 4階建
- 築年数
- 54年1ヶ月
- 建物構造
- RC
バス・トイレ別ペット相談フローリング間取り図
階数
間取り
専有面積
賃料
管理費等
敷金
礼金
特徴
お気に入り
詳細
3階
1LDK
27.0㎡
6.5万円
3,000円
- 敷
- 不要
- 礼
- 不要
バス・トイレ別
ペット相談
フローリング
詳細を見る マンション・アパートグランドプレア 2階 築21年7ヶ月の賃貸物件
- 京阪本線/清水五条駅 徒歩1分
- 京阪本線/祇園四条駅 徒歩10分
- 京阪本線/七条駅 徒歩12分
京都府京都市東山区山田町
- 総階数
- 6階建
- 築年数
- 21年7ヶ月
- 建物構造
- 鉄筋コン
バス・トイレ別フローリングオートロック間取り図
階数
間取り
専有面積
賃料
管理費等
敷金
礼金
特徴
お気に入り
詳細
2階
1K
25.8㎡
6.5万円
6,500円
- 敷
- 65,000円
- 礼
- 130,000円
バス・トイレ別
フローリング
オートロック
詳細を見る ほかの部屋を検索中…ほかの部屋は見つかりませんでしたマンション・アパート三条駅より徒歩1分 1階 築21年5ヶ月の賃貸物件
- 京阪本線/三条駅 徒歩1分
- 地下鉄東西線/京都市役所前駅 徒歩3分
- 京阪鴨東線/神宮丸太町駅 徒歩10分
京都府京都市左京区新丸太町
- 総階数
- 7階建
- 築年数
- 21年5ヶ月
- 建物構造
- 鉄筋コン
バス・トイレ別フローリングオートロック間取り図
階数
間取り
専有面積
賃料
管理費等
敷金
礼金
特徴
お気に入り
詳細
1階
1K
27.94㎡
6.54万円
11,660円
- 敷
- 不要
- 礼
- 80,000円
バス・トイレ別
フローリング
オートロック
詳細を見る マンション・アパートElle21 2階 築22年8ヶ月の賃貸物件
- JR東海道本線/山科駅 徒歩3分
- 京阪京津線/京阪山科駅 徒歩2分
- 地下鉄東西線/山科駅 徒歩2分
京都府京都市山科区安朱南屋敷町
- 総階数
- 5階建
- 築年数
- 22年8ヶ月
- 建物構造
- 鉄骨
バス・トイレ別フローリングオートロック間取り図
階数
間取り
専有面積
賃料
管理費等
敷金
礼金
特徴
お気に入り
詳細
2階
1K
20.45㎡
6.55万円
11,000円
- 敷
- 不要
- 礼
- 65,500円
バス・トイレ別
フローリング
オートロック
詳細を見る ほかの部屋を検索中…ほかの部屋は見つかりませんでしたマンション・アパート大宮駅より徒歩1分 4階 築23年9ヶ月の賃貸物件
- 阪急京都本線/大宮駅 徒歩1分
- 京都市営烏丸線/四条駅 徒歩11分
京都府京都市下京区黒門通四条上る立中町
- 総階数
- 10階建
- 築年数
- 23年9ヶ月
- 建物構造
- RC
バス・トイレ別フローリングオートロック間取り図
階数
間取り
専有面積
賃料
管理費等
敷金
礼金
特徴
お気に入り
詳細
4階
1K
27.14㎡
6.6万円
不要
- 敷
- 30,000円
- 礼
- 80,000円
バス・トイレ別
フローリング
オートロック
詳細を見る マンション・アパート大宮駅より徒歩1分 6階 築23年9ヶ月の賃貸物件
- 阪急京都線/大宮駅 徒歩1分
- 地下鉄烏丸線/四条駅 徒歩11分
- 阪急京都線/烏丸駅 徒歩11分
京都府京都市下京区立中町
- 総階数
- 10階建
- 築年数
- 23年9ヶ月
- 建物構造
- 鉄筋コン
バス・トイレ別フローリングオートロック間取り図
階数
間取り
専有面積
賃料
管理費等
敷金
礼金
特徴
お気に入り
詳細
6階
1K
27.14㎡
6.6万円
7,000円
- 敷
- 30,000円
- 礼
- 80,000円
バス・トイレ別
フローリング
オートロック
詳細を見る マンション・アパート大宮駅より徒歩1分 6階 築23年9ヶ月の賃貸物件
- 阪急京都本線/大宮駅 徒歩1分
- 京都市営烏丸線/四条駅 徒歩11分
京都府京都市下京区黒門通四条上る立中町
- 総階数
- 10階建
- 築年数
- 23年9ヶ月
- 建物構造
- RC
バス・トイレ別フローリングオートロック間取り図
階数
間取り
専有面積
賃料
管理費等
敷金
礼金
特徴
お気に入り
詳細
6階
1K
27.14㎡
6.6万円
7,000円
- 敷
- 30,000円
- 礼
- 80,000円
バス・トイレ別
フローリング
オートロック
詳細を見る マンション・アパートヴィアーレ四条大宮 4階 築23年9ヶ月の賃貸物件
- 阪急電鉄京都線/大宮駅 徒歩1分
- 京都市営地下鉄烏丸線/四条駅 徒歩11分
- 阪急電鉄京都線/烏丸駅 徒歩11分
京都府京都市下京区四条通猪熊西入立中町
- 総階数
- 10階建
- 築年数
- 23年9ヶ月
- 建物構造
- RC
バス・トイレ別フローリングオートロック間取り図
階数
間取り
専有面積
賃料
管理費等
敷金
礼金
特徴
お気に入り
詳細
4階
1K
27.14㎡
6.6万円
不要
- 敷
- 30,000円
- 礼
- 80,000円
バス・トイレ別
フローリング
オートロック
詳細を見る ほかの部屋を検索中…ほかの部屋は見つかりませんでしたマンション・アパートカザリベ城陽駅前 2階 築9年4ヶ月の賃貸物件
- JR奈良線/城陽駅 徒歩2分
- 近鉄京都線/寺田駅 徒歩11分
- 近鉄京都線/久津川駅 徒歩16分
京都府城陽市寺田水度坂
- 総階数
- 3階建
- 築年数
- 9年4ヶ月
- 建物構造
- 木造
バス・トイレ別駐車場ありフローリング間取り図
階数
間取り
専有面積
賃料
管理費等
敷金
礼金
特徴
お気に入り
詳細
2階
1LDK
41.23㎡
6.6万円
3,500円
- 敷
- 不要
- 礼
- 90,000円
バス・トイレ別
駐車場あり
フローリング
詳細を見る ほかの部屋を検索中…ほかの部屋は見つかりませんでしたマンション・アパートcasaα烏丸 6階 築16年5ヶ月の賃貸物件
- 京都市営烏丸線/十条駅 徒歩1分
- JR東海道・山陽本線/京都駅 徒歩15分
京都府京都市南区東九条河辺町
- 総階数
- 6階建
- 築年数
- 16年5ヶ月
- 建物構造
- RC
バス・トイレ別フローリングオートロック間取り図
階数
間取り
専有面積
賃料
管理費等
敷金
礼金
特徴
お気に入り
詳細
6階
1K
28.72㎡
6.6万円
7,000円
- 敷
- 66,000円
- 礼
- 66,000円
バス・トイレ別
フローリング
オートロック
詳細を見る ほかの部屋を検索中…ほかの部屋は見つかりませんでしたマンション・アパート浄雲壱番館 1階 築11年6ヶ月の賃貸物件
- 叡山電鉄鞍馬線/市原駅 徒歩2分
- 叡山電鉄鞍馬線/二軒茶屋駅 徒歩19分
- 叡山電鉄鞍馬線/岩倉駅 徒歩52分
京都府京都市左京区静市市原町
- 総階数
- 2階建
- 築年数
- 11年6ヶ月
- 建物構造
- 木造
バス・トイレ別駐車場ありペット相談間取り図
階数
間取り
専有面積
賃料
管理費等
敷金
礼金
特徴
お気に入り
詳細
1階
1LDK
40.65㎡
6.6万円
4,600円
- 敷
- 不要
- 礼
- 66,000円
バス・トイレ別
駐車場あり
ペット相談
詳細を見る ほかの部屋を検索中…ほかの部屋は見つかりませんでしたマンション・アパートヴィアーレ四条大宮 6階 築23年9ヶ月の賃貸物件
- 阪急電鉄京都線/大宮駅 徒歩1分
- 京都市営地下鉄烏丸線/四条駅 徒歩11分
- 阪急電鉄京都線/烏丸駅 徒歩11分
京都府京都市下京区四条通猪熊西入立中町
- 総階数
- 10階建
- 築年数
- 23年9ヶ月
- 建物構造
- RC
バス・トイレ別フローリングオートロック間取り図
階数
間取り
専有面積
賃料
管理費等
敷金
礼金
特徴
お気に入り
詳細
6階
1K
27.14㎡
6.6万円
7,000円
- 敷
- 30,000円
- 礼
- 80,000円
バス・トイレ別
フローリング
オートロック
詳細を見る ほかの部屋を検索中…ほかの部屋は見つかりませんでしたマンション・アパート桂川駅より徒歩1分 2階 築20年2ヶ月の賃貸物件
- JR東海道本線/桂川駅 徒歩1分
- 阪急京都線/東向日駅 徒歩20分
- JR東海道本線/向日町駅 徒歩15分
京都府京都市南区久世上久世町
- 総階数
- 2階建
- 築年数
- 20年2ヶ月
- 建物構造
- 軽量鉄骨
バス・トイレ別駐車場あり保証人不要間取り図
階数
間取り
専有面積
賃料
管理費等
敷金
礼金
特徴
お気に入り
詳細
2階
1K
19.87㎡
6.6万円
7,000円
- 敷
- 不要
- 礼
- 66,000円
バス・トイレ別
駐車場あり
保証人不要
詳細を見る マンション・アパート大宮駅より徒歩1分 4階 築23年9ヶ月の賃貸物件
- 阪急京都線/大宮駅 徒歩1分
- 地下鉄烏丸線/四条駅 徒歩11分
- 阪急京都線/烏丸駅 徒歩11分
京都府京都市下京区立中町
- 総階数
- 10階建
- 築年数
- 23年9ヶ月
- 建物構造
- 鉄筋コン
バス・トイレ別フローリングオートロック間取り図
階数
間取り
専有面積
賃料
管理費等
敷金
礼金
特徴
お気に入り
詳細
4階
1K
27.14㎡
6.6万円
不要
- 敷
- 30,000円
- 礼
- 80,000円
バス・トイレ別
フローリング
オートロック
詳細を見る マンション・アパート北野白梅町駅より徒歩3分 3階 築12年8ヶ月の賃貸物件
- 京福電鉄北野線/北野白梅町駅 徒歩3分
- JR山陰本線/円町駅 徒歩15分
- 地下鉄東西線/西大路御池駅 徒歩25分
京都府京都市北区北野西白梅町
- 総階数
- 3階建
- 築年数
- 12年8ヶ月
- 建物構造
- 鉄骨
バス・トイレ別フローリング新着間取り図
階数
間取り
専有面積
賃料
管理費等
敷金
礼金
特徴
お気に入り
詳細
3階
1K
24.84㎡
6.6万円
5,000円
- 敷
- 不要
- 礼
- 70,000円
バス・トイレ別
フローリング
新着
詳細を見る マンション・アパートエスリード四条河原町 10階 築25年8ヶ月の賃貸物件
- 阪急京都本線/京都河原町駅 徒歩2分
- 京都市営烏丸線/四条駅 徒歩13分
京都府京都市下京区河原町通四条下る順風町
- 総階数
- 14階建
- 築年数
- 25年8ヶ月
- 建物構造
- SRC
フローリングオートロック駐輪場あり間取り図
階数
間取り
専有面積
賃料
管理費等
敷金
礼金
特徴
お気に入り
詳細
10階
1K
17.68㎡
6.7万円
11,000円
- 敷
- 不要
- 礼
- 67,000円
フローリング
オートロック
駐輪場あり
詳細を見る ほかの部屋を検索中…ほかの部屋は見つかりませんでしたマンション・アパートレオパレス西ノ京円町 1階 築18年の賃貸物件
- JR山陰本線/円町駅 徒歩1分
- 京都地下鉄東西線/二条駅 徒歩15分
京都府京都市中京区西ノ京南円町
- 総階数
- 4階建
- 築年数
- 18年
- 建物構造
- ALC
バス・トイレ別フローリング保証人不要間取り図
階数
間取り
専有面積
賃料
管理費等
敷金
礼金
特徴
お気に入り
詳細
1階
1K
19.87㎡
6.7万円
7,000円
- 敷
- 不要
- 礼
- 67,000円
バス・トイレ別
フローリング
保証人不要
詳細を見る ほかの部屋を検索中…ほかの部屋は見つかりませんでしたマンション・アパートJR藤森駅より徒歩1分 1階 築31年9ヶ月の賃貸物件
- JR奈良線/JR藤森駅 徒歩1分
- 京阪本線/墨染駅 徒歩11分
- 京阪本線/藤森駅 徒歩17分
京都府京都市伏見区深草大亀谷東寺町
- 総階数
- 2階建
- 築年数
- 31年9ヶ月
- 建物構造
- 鉄骨
バス・トイレ別駐車場ありフローリング間取り図
階数
間取り
専有面積
賃料
管理費等
敷金
礼金
特徴
お気に入り
詳細
1階
2DK
40.57㎡
6.7万円
4,000円
- 敷
- 不要
- 礼
- 不要
バス・トイレ別
駐車場あり
フローリング
詳細を見る マンション・アパート清水五条駅より徒歩1分 6階 築21年7ヶ月の賃貸物件
- 京阪本線/清水五条駅 徒歩1分
- 京阪本線/祇園四条駅 徒歩10分
京都府京都市東山区柿町通新宮川町東入山田町
- 総階数
- 6階建
- 築年数
- 21年7ヶ月
- 建物構造
- RC
バス・トイレ別駐車場ありフローリング間取り図
階数
間取り
専有面積
賃料
管理費等
敷金
礼金
特徴
お気に入り
詳細
6階
1K
25.8㎡
6.7万円
6,500円
- 敷
- 67,000円
- 礼
- 134,000円
バス・トイレ別
駐車場あり
フローリング
詳細を見る マンション・アパートエスリード四条河原町 10階 築25年8ヶ月の賃貸物件
- 阪急京都線/京都河原町駅 徒歩2分
- 地下鉄烏丸線/四条駅 徒歩13分
- 京阪本線/祇園四条駅 徒歩8分
京都府京都市下京区順風町
- 総階数
- 14階建
- 築年数
- 25年8ヶ月
- 建物構造
- 鉄骨鉄筋
フローリングオートロック駐輪場あり間取り図
階数
間取り
専有面積
賃料
管理費等
敷金
礼金
特徴
お気に入り
詳細
10階
1K
17.68㎡
6.7万円
11,000円
- 敷
- 不要
- 礼
- 67,000円
フローリング
オートロック
駐輪場あり
詳細を見る ほかの部屋を検索中…ほかの部屋は見つかりませんでしたマンション・アパート烏丸御池駅より徒歩1分 8階 築22年7ヶ月の賃貸物件
- 京都市営烏丸線/烏丸御池駅 徒歩1分
- 京都市営烏丸線/四条駅 徒歩8分
京都府京都市中京区両替町通姉小路上る龍池町
- 総階数
- 9階建
- 築年数
- 22年7ヶ月
- 建物構造
- RC
バス・トイレ別フローリングオートロック間取り図
階数
間取り
専有面積
賃料
管理費等
敷金
礼金
特徴
お気に入り
詳細
8階
1K
18.94㎡
6.7万円
12,000円
- 敷
- 不要
- 礼
- 67,000円
バス・トイレ別
フローリング
オートロック
詳細を見る マンション・アパートグランドプレア 6階 築21年7ヶ月の賃貸物件
- 京阪電鉄本線/清水五条駅 徒歩1分
- 京阪電鉄本線/祇園四条駅 徒歩10分
- 京阪電鉄本線/七条駅 徒歩12分
京都府京都市東山区新宮川筋五条上る2丁目山田町
- 総階数
- 6階建
- 築年数
- 21年7ヶ月
- 建物構造
- RC
バス・トイレ別フローリングオートロック間取り図
階数
間取り
専有面積
賃料
管理費等
敷金
礼金
特徴
お気に入り
詳細
6階
1K
25.8㎡
6.7万円
6,500円
- 敷
- 67,000円
- 礼
- 134,000円
バス・トイレ別
フローリング
オートロック
詳細を見る ほかの部屋を検索中…ほかの部屋は見つかりませんでしたマンション・アパートグランドプレア 6階 築21年7ヶ月の賃貸物件
- 京阪本線/清水五条駅 徒歩1分
- 京阪本線/祇園四条駅 徒歩10分
- 京阪本線/七条駅 徒歩12分
京都府京都市東山区山田町
- 総階数
- 6階建
- 築年数
- 21年7ヶ月
- 建物構造
- 鉄筋コン
バス・トイレ別フローリングオートロック間取り図
階数
間取り
専有面積
賃料
管理費等
敷金
礼金
特徴
お気に入り
詳細
6階
1K
25.8㎡
6.7万円
6,500円
- 敷
- 67,000円
- 礼
- 134,000円
バス・トイレ別
フローリング
オートロック
詳細を見る ほかの部屋を検索中…ほかの部屋は見つかりませんでしたマンション・アパート浄雲壱番館 2階 築11年6ヶ月の賃貸物件
- 叡山電鉄鞍馬線/市原駅 徒歩2分
- 叡山電鉄鞍馬線/二軒茶屋駅 徒歩19分
- 叡山電鉄鞍馬線/岩倉駅 徒歩52分
京都府京都市左京区静市市原町
- 総階数
- 2階建
- 築年数
- 11年6ヶ月
- 建物構造
- 木造
バス・トイレ別駐車場ありペット相談間取り図
階数
間取り
専有面積
賃料
管理費等
敷金
礼金
特徴
お気に入り
詳細
2階
1LDK
40.65㎡
6.8万円
4,600円
- 敷
- 不要
- 礼
- 68,000円
バス・トイレ別
駐車場あり
ペット相談
詳細を見る ほかの部屋を検索中…ほかの部屋は見つかりませんでしたマンション・アパート神宮丸太町駅より徒歩1分 3階 築21年10ヶ月の賃貸物件
- 京阪鴨東線/神宮丸太町駅 徒歩1分
- 地下鉄烏丸線/丸太町駅 徒歩14分
- 京阪本線/三条駅 徒歩13分
京都府京都市上京区南町
- 総階数
- 5階建
- 築年数
- 21年10ヶ月
- 建物構造
- 鉄筋コン
バス・トイレ別フローリング新着間取り図
階数
間取り
専有面積
賃料
管理費等
敷金
礼金
特徴
お気に入り
詳細
3階
1K
26.55㎡
6.8万円
6,000円
- 敷
- 50,000円
- 礼
- 100,000円
バス・トイレ別
フローリング
新着
詳細を見る マンション・アパート京都市役所前駅より徒歩1分 7階 築30年7ヶ月の賃貸物件
- 京都市営地下鉄東西線/京都市役所前駅 徒歩1分
- 京都市営地下鉄烏丸線/烏丸御池駅 徒歩9分
- 京阪電鉄本線/三条駅 徒歩10分
京都府京都市中京区御幸町通御池上る亀屋町
- 総階数
- 7階建
- 築年数
- 30年7ヶ月
- 建物構造
- ALC
バス・トイレ別フローリングオートロック間取り図
階数
間取り
専有面積
賃料
管理費等
敷金
礼金
特徴
お気に入り
詳細
7階
1K
24.0㎡
6.8万円
6,000円
- 敷
- 100,000円
- 礼
- 不要
バス・トイレ別
フローリング
オートロック
詳細を見る マンション・アパート京都市役所前駅より徒歩1分 7階 築30年7ヶ月の賃貸物件
- 地下鉄東西線/京都市役所前駅 徒歩1分
- 地下鉄烏丸線/烏丸御池駅 徒歩9分
- 京阪本線/三条駅 徒歩10分
京都府京都市中京区亀屋町
- 総階数
- 7階建
- 築年数
- 30年7ヶ月
- 建物構造
- 鉄骨
バス・トイレ別フローリングオートロック間取り図
階数
間取り
専有面積
賃料
管理費等
敷金
礼金
特徴
お気に入り
詳細
7階
1K
24.0㎡
6.8万円
6,000円
- 敷
- 100,000円
- 礼
- 不要
バス・トイレ別
フローリング
オートロック
詳細を見る


この店舗からのコメント
京都に生まれて四十年かんたんお部屋探しでおなじみの京都ライフ「四条烏丸店」。