株式会社京都ライフ 山科店の詳細情報
| アクセス | 湖西線/山科 徒歩6分 | ||||
|---|---|---|---|---|---|
| 住所 | 京都府京都市山科区竹鼻竹ノ街道町11 | ||||
| 営業時間 | 9:30~19:00 | ||||
| 定休日 | 夏期休暇 8月13日〜8月16日 年末年始休暇 12月27日〜1月4日 | ||||
| 電話番号 | 075-595-7677 | ||||
株式会社京都ライフ 山科店の周辺地図
店舗の特徴
19時以降も営業、駅のそば(歩3分以内)、年中無休、女性スタッフ対応、保証人不要の相談可、引越し業者の紹介可、法人の契約取扱い、賃貸管理業務
ニフティ不動産に掲載中の物件情報
| 1R~1LDK | 2K~2LDK | 3K~3LDK | 4K~4LDK | 5K~ | |
|---|---|---|---|---|---|
| 賃貸 | 9,517件 | 2,671件 | 1,088件 | 211件 | 89件 |
| 新築マンション | - | - | - | - | - |
| 中古マンション | - | - | - | - | - |
| 新築戸建 | - | - | - | - | - |
| 中古戸建 | - | - | - | - | - |
| ~50㎡ | 50~80㎡ | 80~100㎡ | 100~130㎡ | 130㎡~ | |
| 土地 | - | - | - | - | - |
不動産会社情報の精度向上にご協力をお願いいたします。不動産会社情報に誤りがある場合はこちらよりご連絡ください。
株式会社京都ライフ 山科店の物件一覧
並び替え
マンション・アパートMARUTO京田辺 4階 築16年7ヶ月の賃貸物件
- 近鉄京都線/三山木駅 徒歩5分
- JR片町線(学研都市線)/JR三山木駅 徒歩6分
京都府京田辺市三山木中央3丁目
- 総階数
- 4階建
- 築年数
- 16年7ヶ月
- 建物構造
- 鉄骨造
コンロ2口以上駐輪場あり浴室乾燥機間取り図
階数
間取り
専有面積
賃料
管理費等
敷金
礼金
特徴
お気に入り
詳細
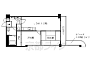
4階
1K
26.08㎡
7.5万円
7,000円
- 敷
- 不要
- 礼
- 不要
コンロ2口以上
駐輪場あり
浴室乾燥機
詳細を見る ほかの部屋を検索中…ほかの部屋は見つかりませんでしたマンション・アパートアランコート 3階 築16年4ヶ月の賃貸物件
- 京都市営烏丸線/十条駅 徒歩6分
- JR東海道・山陽本線/京都駅 徒歩15分
京都府京都市南区東九条東札辻町
- 総階数
- 3階建
- 築年数
- 16年4ヶ月
- 建物構造
- 軽量鉄骨
バス・トイレ別駐車場ありフローリング間取り図
階数
間取り
専有面積
賃料
管理費等
敷金
礼金
特徴
お気に入り
詳細
3階
1K
35.21㎡
7.5万円
8,000円
- 敷
- 不要
- 礼
- 75,000円
バス・トイレ別
駐車場あり
フローリング
詳細を見る ほかの部屋を検索中…ほかの部屋は見つかりませんでしたマンション・アパートモデラート 1階 築13年10ヶ月の賃貸物件
- JR片町線(学研都市線)/長尾駅 徒歩8分
- JR片町線(学研都市線)/藤阪駅 徒歩20分
大阪府枚方市長尾元町4丁目
- 総階数
- 2階建
- 築年数
- 13年10ヶ月
- 建物構造
- 軽量鉄骨
バス・トイレ別駐車場ありフローリング間取り図
階数
間取り
専有面積
賃料
管理費等
敷金
礼金
特徴
お気に入り
詳細
1階
1LDK
45.42㎡
7.5万円
5,000円
- 敷
- 不要
- 礼
- 100,000円
バス・トイレ別
駐車場あり
フローリング
詳細を見る ほかの部屋を検索中…ほかの部屋は見つかりませんでしたマンション・アパート下狛駅より徒歩5分 1階 築7年5ヶ月の賃貸物件
- JR片町線(学研都市線)/下狛駅 徒歩5分
- 近鉄京都線/狛田駅 徒歩8分
京都府相楽郡精華町大字下狛小字中垣内
- 総階数
- 2階建
- 築年数
- 7年5ヶ月
- 建物構造
- 軽量鉄骨
バス・トイレ別フローリングオートロック間取り図
階数
間取り
専有面積
賃料
管理費等
敷金
礼金
特徴
お気に入り
詳細
1階
2LDK
61.0㎡
7.6万円
6,000円
- 敷
- 20,000円
- 礼
- 114,000円
バス・トイレ別
フローリング
オートロック
詳細を見る マンション・アパート大宮駅より徒歩6分 2階 築15年1ヶ月の賃貸物件
- 阪急京都線/大宮駅 徒歩6分
- JR山陰本線/二条駅 徒歩11分
- 地下鉄東西線/二条城前駅 徒歩6分
京都府京都市中京区下一文字町
- 総階数
- 3階建
- 築年数
- 15年1ヶ月
- 建物構造
- 鉄筋コン
バス・トイレ別フローリングオートロック間取り図
階数
間取り
専有面積
賃料
管理費等
敷金
礼金
特徴
お気に入り
詳細
2階
1DK
32.32㎡
7.6万円
5,000円
- 敷
- 76,000円
- 礼
- 76,000円
バス・トイレ別
フローリング
オートロック
詳細を見る マンション・アパートミルメゾンT 3階 築18年7ヶ月の賃貸物件
- 京都市営烏丸線/北山駅 徒歩6分
- 京都市営烏丸線/北大路駅 徒歩19分
京都府京都市北区上賀茂土門町
- 総階数
- 3階建
- 築年数
- 18年7ヶ月
- 建物構造
- ALC
バス・トイレ別駐車場ありオートロック間取り図
階数
間取り
専有面積
賃料
管理費等
敷金
礼金
特徴
お気に入り
詳細
3階
1LDK
38.59㎡
7.6万円
3,500円
- 敷
- 不要
- 礼
- 76,000円
バス・トイレ別
駐車場あり
オートロック
詳細を見る ほかの部屋を検索中…ほかの部屋は見つかりませんでしたマンション・アパートMARUTO京田辺 4階 築16年7ヶ月の賃貸物件
- 近鉄京都線/三山木駅 徒歩5分
- JR片町線(学研都市線)/JR三山木駅 徒歩6分
京都府京田辺市三山木中央3丁目
- 総階数
- 4階建
- 築年数
- 16年7ヶ月
- 建物構造
- 鉄骨造
コンロ2口以上角部屋駐輪場あり間取り図
階数
間取り
専有面積
賃料
管理費等
敷金
礼金
特徴
お気に入り
詳細
4階
1K
26.08㎡
7.6万円
7,000円
- 敷
- 不要
- 礼
- 不要
コンロ2口以上
角部屋
駐輪場あり
詳細を見る ほかの部屋を検索中…ほかの部屋は見つかりませんでしたマンション・アパート大宮駅より徒歩6分 2階 築15年1ヶ月の賃貸物件
- 阪急京都本線/大宮駅 徒歩6分
- JR山陰本線/二条駅 徒歩11分
京都府京都市中京区新シ町通六角上る下一文字町
- 総階数
- 3階建
- 築年数
- 15年1ヶ月
- 建物構造
- RC
バス・トイレ別フローリングオートロック間取り図
階数
間取り
専有面積
賃料
管理費等
敷金
礼金
特徴
お気に入り
詳細
2階
1DK
32.32㎡
7.6万円
5,000円
- 敷
- 76,000円
- 礼
- 76,000円
バス・トイレ別
フローリング
オートロック
詳細を見る マンション・アパート桂駅より徒歩6分 1階 築27年2ヶ月の賃貸物件
- 阪急京都本線/桂駅 徒歩6分
- JR東海道・山陽本線/桂川駅 徒歩33分
京都府京都市西京区桂芝ノ下町
- 総階数
- 3階建
- 築年数
- 27年2ヶ月
- 建物構造
- 軽量鉄骨
バス・トイレ別駐車場ありフローリング間取り図
階数
間取り
専有面積
賃料
管理費等
敷金
礼金
特徴
お気に入り
詳細
1階
2DK
51.0㎡
7.6万円
4,000円
- 敷
- 不要
- 礼
- 100,000円
バス・トイレ別
駐車場あり
フローリング
詳細を見る マンション・アパート大宮駅より徒歩6分 2階 築38年6ヶ月の賃貸物件
- 阪急京都線/大宮駅 徒歩6分
- JR山陰本線/二条駅 徒歩10分
- 地下鉄東西線/二条駅 徒歩12分
京都府京都市中京区三条大宮町
- 総階数
- 4階建
- 築年数
- 38年6ヶ月
- 建物構造
- 鉄筋コン
バス・トイレ別駐車場ありペット相談間取り図
階数
間取り
専有面積
賃料
管理費等
敷金
礼金
特徴
お気に入り
詳細
2階
1LDK
34.0㎡
7.6万円
6,000円
- 敷
- 不要
- 礼
- 不要
バス・トイレ別
駐車場あり
ペット相談
詳細を見る マンション・アパートリンツ御池 4階 築20年1ヶ月の賃貸物件
- 京都市営烏丸線/烏丸御池駅 徒歩6分
- 京都地下鉄東西線/二条城前駅 徒歩5分
京都府京都市中京区小川通御池下る壺屋町
- 総階数
- 8階建
- 築年数
- 20年1ヶ月
- 建物構造
- RC
バス・トイレ別フローリングオートロック間取り図
階数
間取り
専有面積
賃料
管理費等
敷金
礼金
特徴
お気に入り
詳細
4階
1R
35.76㎡
7.6万円
8,000円
- 敷
- 38,000円
- 礼
- 76,000円
バス・トイレ別
フローリング
オートロック
詳細を見る ほかの部屋を検索中…ほかの部屋は見つかりませんでしたマンション・アパートコクーン三条大宮 2階 築38年6ヶ月の賃貸物件
- 阪急京都本線/大宮駅 徒歩6分
- JR山陰本線/二条駅 徒歩10分
京都府京都市中京区大宮通六角上る三条大宮町
- 総階数
- 4階建
- 築年数
- 38年6ヶ月
- 建物構造
- RC
バス・トイレ別ペット相談フローリング間取り図
階数
間取り
専有面積
賃料
管理費等
敷金
礼金
特徴
お気に入り
詳細
2階
1LDK
34.0㎡
7.6万円
6,000円
- 敷
- 不要
- 礼
- 不要
バス・トイレ別
ペット相談
フローリング
詳細を見る ほかの部屋を検索中…ほかの部屋は見つかりませんでしたマンション・アパート烏丸御池駅より徒歩6分 4階 築20年1ヶ月の賃貸物件
- 地下鉄烏丸線/烏丸御池駅 徒歩6分
- 地下鉄東西線/二条城前駅 徒歩5分
- 地下鉄烏丸線/四条駅 徒歩15分
京都府京都市中京区壺屋町
- 総階数
- 8階建
- 築年数
- 20年1ヶ月
- 建物構造
- 鉄筋コン
バス・トイレ別駐車場ありフローリング間取り図
階数
間取り
専有面積
賃料
管理費等
敷金
礼金
特徴
お気に入り
詳細
4階
1R
35.76㎡
7.6万円
8,000円
- 敷
- 38,000円
- 礼
- 76,000円
バス・トイレ別
駐車場あり
フローリング
詳細を見る マンション・アパート京都駅より徒歩9分 2階 築10年1ヶ月の賃貸物件
- JR東海道・山陽本線/京都駅 徒歩9分
- 近鉄京都線/東寺駅 徒歩7分
京都府京都市南区西九条藤ノ木町
- 総階数
- 7階建
- 築年数
- 10年1ヶ月
- 建物構造
- RC
バス・トイレ別ペット相談フローリング間取り図
階数
間取り
専有面積
賃料
管理費等
敷金
礼金
特徴
お気に入り
詳細
2階
1DK
25.84㎡
7.65万円
13,800円
- 敷
- 不要
- 礼
- 不要
バス・トイレ別
ペット相談
フローリング
詳細を見る マンション・アパートプレサンス京都洛南 1階 築7年1ヶ月の賃貸物件
- JR東海道・山陽本線/西大路駅 徒歩7分
- 阪急京都本線/西院駅 徒歩24分
京都府京都市下京区七条御所ノ内中町
- 総階数
- 8階建
- 築年数
- 7年1ヶ月
- 建物構造
- RC
バス・トイレ別フローリングオートロック間取り図
階数
間取り
専有面積
賃料
管理費等
敷金
礼金
特徴
お気に入り
詳細
1階
1K
24.26㎡
7.7万円
11,000円
- 敷
- 不要
- 礼
- 77,000円
バス・トイレ別
フローリング
オートロック
詳細を見る ほかの部屋を検索中…ほかの部屋は見つかりませんでしたマンション・アパート四宮駅より徒歩6分 1階 新築の賃貸物件
- 京阪京津線/四宮駅 徒歩6分
- 京阪京津線/追分駅 徒歩13分
滋賀県大津市横木1丁目
- 総階数
- 3階建
- 築年数
- 新築
- 建物構造
- 木造
バス・トイレ別駐車場ありペット相談間取り図
階数
間取り
専有面積
賃料
管理費等
敷金
礼金
特徴
お気に入り
詳細
1階
1LDK
35.01㎡
7.7万円
5,000円
- 敷
- 不要
- 礼
- 不要
バス・トイレ別
駐車場あり
ペット相談
詳細を見る マンション・アパートリリィオーク 1階 築11年10ヶ月の賃貸物件
- JR湖西線/堅田駅 徒歩6分
- JR湖西線/小野駅 徒歩28分
滋賀県大津市本堅田6丁目
- 総階数
- 2階建
- 築年数
- 11年10ヶ月
- 建物構造
- 軽量鉄骨
バス・トイレ別駐車場ありフローリング間取り図
階数
間取り
専有面積
賃料
管理費等
敷金
礼金
特徴
お気に入り
詳細
1階
1LDK
52.1㎡
7.7万円
5,000円
- 敷
- 不要
- 礼
- 100,000円
バス・トイレ別
駐車場あり
フローリング
詳細を見る ほかの部屋を検索中…ほかの部屋は見つかりませんでしたマンション・アパート清水五条駅より徒歩6分 5階 新築の賃貸物件
- 京阪本線/清水五条駅 徒歩6分
- 阪急京都本線/京都河原町駅 徒歩15分
京都府京都市東山区大和大路通松原下る山崎町
- 総階数
- 5階建
- 築年数
- 新築
- 建物構造
- RC
バス・トイレ別ペット相談フローリング間取り図
階数
間取り
専有面積
賃料
管理費等
敷金
礼金
特徴
お気に入り
詳細
5階
1R
20.23㎡
7.7万円
18,000円
- 敷
- 不要
- 礼
- 不要
バス・トイレ別
ペット相談
フローリング
詳細を見る マンション・アパートハイカムール深草 1階 築31年8ヶ月の賃貸物件
- 京阪電鉄本線/龍谷大前深草駅 徒歩6分
- 京阪電鉄本線/藤森駅 徒歩7分
- JR奈良線/稲荷駅 徒歩10分
京都府京都市伏見区深草綿森町
- 総階数
- 2階建
- 築年数
- 31年8ヶ月
- 建物構造
- 軽量鉄骨造
バス・トイレ別駐車場ありコンロ2口以上間取り図
階数
間取り
専有面積
賃料
管理費等
敷金
礼金
特徴
お気に入り
詳細
1階
2LDK
50.4㎡
7.7万円
3,000円
- 敷
- 不要
- 礼
- 不要
バス・トイレ別
駐車場あり
コンロ2口以上
詳細を見る ほかの部屋を検索中…ほかの部屋は見つかりませんでしたマンション・アパート西大路ハイツ502 4階 築49年の賃貸物件
- JR東海道・山陽本線/西大路駅 徒歩6分
- JR山陰本線/梅小路京都西駅 徒歩21分
京都府京都市南区吉祥院西ノ庄東屋敷町
- 総階数
- 5階建
- 築年数
- 49年
- 建物構造
- RC
バス・トイレ別フローリング保証人不要間取り図
階数
間取り
専有面積
賃料
管理費等
敷金
礼金
特徴
お気に入り
詳細
4階
2LDK
47.97㎡
7.8万円
7,000円
- 敷
- 78,000円
- 礼
- 78,000円
バス・トイレ別
フローリング
保証人不要
詳細を見る ほかの部屋を検索中…ほかの部屋は見つかりませんでしたマンション・アパート烏丸御池駅より徒歩6分 6階 築20年1ヶ月の賃貸物件
- 地下鉄烏丸線/烏丸御池駅 徒歩6分
- 地下鉄東西線/二条城前駅 徒歩5分
- 地下鉄烏丸線/四条駅 徒歩15分
京都府京都市中京区壺屋町
- 総階数
- 8階建
- 築年数
- 20年1ヶ月
- 建物構造
- 鉄筋コン
バス・トイレ別駐車場ありフローリング間取り図
階数
間取り
専有面積
賃料
管理費等
敷金
礼金
特徴
お気に入り
詳細
6階
1R
35.76㎡
7.8万円
8,000円
- 敷
- 39,000円
- 礼
- 78,000円
バス・トイレ別
駐車場あり
フローリング
詳細を見る マンション・アパートリンツ御池 6階 築20年1ヶ月の賃貸物件
- 京都市営烏丸線/烏丸御池駅 徒歩6分
- 京都地下鉄東西線/二条城前駅 徒歩5分
京都府京都市中京区小川通御池下る壺屋町
- 総階数
- 8階建
- 築年数
- 20年1ヶ月
- 建物構造
- RC
バス・トイレ別フローリングオートロック間取り図
階数
間取り
専有面積
賃料
管理費等
敷金
礼金
特徴
お気に入り
詳細
6階
1R
35.76㎡
7.8万円
8,000円
- 敷
- 39,000円
- 礼
- 78,000円
バス・トイレ別
フローリング
オートロック
詳細を見る ほかの部屋を検索中…ほかの部屋は見つかりませんでしたマンション・アパート黄檗駅より徒歩7分 7階 築35年1ヶ月の賃貸物件
- JR奈良線/黄檗駅 徒歩7分
- 京阪宇治線/黄檗駅 徒歩10分
京都府宇治市五ケ庄平野
- 総階数
- 7階建
- 築年数
- 35年1ヶ月
- 建物構造
- RC
バス・トイレ別フローリング新着間取り図
階数
間取り
専有面積
賃料
管理費等
敷金
礼金
特徴
お気に入り
詳細
7階
2LDK
57.34㎡
7.8万円
不要
- 敷
- 156,000円
- 礼
- 78,000円
バス・トイレ別
フローリング
新着
詳細を見る マンション・アパートアゼリア桂川 2階 築25年8ヶ月の賃貸物件
- 阪急嵐山線/上桂駅 徒歩6分
- 阪急京都本線/桂駅 徒歩23分
京都府京都市西京区上桂前川町
- 総階数
- 2階建
- 築年数
- 25年8ヶ月
- 建物構造
- 鉄骨造
バス・トイレ別駐車場ありフローリング間取り図
階数
間取り
専有面積
賃料
管理費等
敷金
礼金
特徴
お気に入り
詳細
2階
2LDK
55.2㎡
7.8万円
4,000円
- 敷
- 不要
- 礼
- 不要
バス・トイレ別
駐車場あり
フローリング
詳細を見る ほかの部屋を検索中…ほかの部屋は見つかりませんでしたマンション・アパートグランハイツ西ノ京 4階 築42年11ヶ月の賃貸物件
- JR山陰本線/円町駅 徒歩6分
- 京都地下鉄東西線/西大路御池駅 徒歩12分
京都府京都市中京区西ノ京南両町
- 総階数
- 4階建
- 築年数
- 42年11ヶ月
- 建物構造
- RC
バス・トイレ別ペット相談フローリング間取り図
階数
間取り
専有面積
賃料
管理費等
敷金
礼金
特徴
お気に入り
詳細
4階
2LDK
45.0㎡
7.8万円
5,000円
- 敷
- 78,000円
- 礼
- 78,000円
バス・トイレ別
ペット相談
フローリング
詳細を見る ほかの部屋を検索中…ほかの部屋は見つかりませんでしたマンション・アパート四宮駅より徒歩6分 3階 新築の賃貸物件
- 京阪京津線/四宮駅 徒歩6分
- 京阪京津線/追分駅 徒歩13分
滋賀県大津市横木1丁目
- 総階数
- 3階建
- 築年数
- 新築
- 建物構造
- 木造
バス・トイレ別駐車場ありペット相談間取り図
階数
間取り
専有面積
賃料
管理費等
敷金
礼金
特徴
お気に入り
詳細
3階
1LDK
36.14㎡
7.9万円
5,000円
- 敷
- 不要
- 礼
- 不要
バス・トイレ別
駐車場あり
ペット相談
詳細を見る マンション・アパートアーバンフラッツ四条西洞院 5階 築18年の賃貸物件
- 京都市営烏丸線/四条駅 徒歩6分
- 阪急京都本線/大宮駅 徒歩7分
京都府京都市下京区妙伝寺町
- 総階数
- 12階建
- 築年数
- 18年
- 建物構造
- RC
バス・トイレ別駐車場ありフローリング間取り図
階数
間取り
専有面積
賃料
管理費等
敷金
礼金
特徴
お気に入り
詳細
5階
1K
26.24㎡
7.9万円
7,000円
- 敷
- 不要
- 礼
- 不要
バス・トイレ別
駐車場あり
フローリング
詳細を見る ほかの部屋を検索中…ほかの部屋は見つかりませんでした一戸建て宇治駅より徒歩6分 築40年8ヶ月の賃貸物件
- JR奈良線/宇治駅 徒歩6分
- 京阪宇治線/宇治駅 徒歩10分
京都府宇治市宇治妙楽
- 総階数
- 2階建
- 築年数
- 40年8ヶ月
- 建物構造
- 木造
バス・トイレ別追い炊き機能南向き間取り図
階数
間取り
専有面積
賃料
管理費等
敷金
礼金
特徴
お気に入り
詳細
-
3DK
64.0㎡
7.9万円
不要
- 敷
- 不要
- 礼
- 150,000円
バス・トイレ別
追い炊き機能
南向き
詳細を見る マンション・アパート今出川駅より徒歩8分 2階 築22年11ヶ月の賃貸物件
- 地下鉄烏丸線/今出川駅 徒歩8分
- 地下鉄烏丸線/北大路駅 徒歩17分
- 地下鉄烏丸線/鞍馬口駅 徒歩9分
京都府京都市上京区古木町
- 総階数
- 5階建
- 築年数
- 22年11ヶ月
- 建物構造
- 鉄筋コン
バス・トイレ別駐車場ありオートロック間取り図
階数
間取り
専有面積
賃料
管理費等
敷金
礼金
特徴
お気に入り
詳細
2階
1K
25.55㎡
7.9万円
11,000円
- 敷
- 不要
- 礼
- 79,000円
バス・トイレ別
駐車場あり
オートロック
詳細を見る マンション・アパート近鉄丹波橋駅より徒歩6分 1階 築31年の賃貸物件
- 近鉄京都線/近鉄丹波橋駅 徒歩6分
- 京阪本線/丹波橋駅 徒歩7分
京都府京都市伏見区桃山毛利長門西町
- 総階数
- 2階建
- 築年数
- 31年
- 建物構造
- 軽量鉄骨
バス・トイレ別フローリングコンロ2口以上間取り図
階数
間取り
専有面積
賃料
管理費等
敷金
礼金
特徴
お気に入り
詳細
1階
2LDK
42.33㎡
7.9万円
3,000円
- 敷
- 不要
- 礼
- 不要
バス・トイレ別
フローリング
コンロ2口以上
詳細を見る 一戸建てくいな橋駅より徒歩6分 築37年の賃貸物件
- 京都市営烏丸線/くいな橋駅 徒歩6分
- 近鉄京都線/竹田駅 徒歩10分
京都府京都市伏見区竹田久保町
- 総階数
- 3階建
- 築年数
- 37年
- 建物構造
- 木造
バス・トイレ別駐車場ありペット相談間取り図
階数
間取り
専有面積
賃料
管理費等
敷金
礼金
特徴
お気に入り
詳細
-
4DK
65.52㎡
7.9万円
不要
- 敷
- 150,000円
- 礼
- 150,000円
バス・トイレ別
駐車場あり
ペット相談
詳細を見る マンション・アパートリンツ御池 7階 築20年1ヶ月の賃貸物件
- 京都市営烏丸線/烏丸御池駅 徒歩6分
- 京都地下鉄東西線/二条城前駅 徒歩5分
京都府京都市中京区小川通御池下る壺屋町
- 総階数
- 8階建
- 築年数
- 20年1ヶ月
- 建物構造
- RC
バス・トイレ別フローリングオートロック間取り図
階数
間取り
専有面積
賃料
管理費等
敷金
礼金
特徴
お気に入り
詳細
7階
1R
35.76㎡
7.9万円
8,000円
- 敷
- 39,500円
- 礼
- 79,000円
バス・トイレ別
フローリング
オートロック
詳細を見る ほかの部屋を検索中…ほかの部屋は見つかりませんでしたマンション・アパート烏丸御池駅より徒歩6分 7階 築20年1ヶ月の賃貸物件
- 地下鉄烏丸線/烏丸御池駅 徒歩6分
- 地下鉄東西線/二条城前駅 徒歩5分
- 地下鉄烏丸線/四条駅 徒歩15分
京都府京都市中京区壺屋町
- 総階数
- 8階建
- 築年数
- 20年1ヶ月
- 建物構造
- 鉄筋コン
バス・トイレ別駐車場ありフローリング間取り図
階数
間取り
専有面積
賃料
管理費等
敷金
礼金
特徴
お気に入り
詳細
7階
1R
35.76㎡
7.9万円
8,000円
- 敷
- 39,500円
- 礼
- 79,000円
バス・トイレ別
駐車場あり
フローリング
詳細を見る マンション・アパート四条駅より徒歩6分 3階 新築の賃貸物件
- 京都市営烏丸線/四条駅 徒歩6分
- 阪急京都本線/烏丸駅 徒歩6分
京都府京都市中京区富小路通錦小路下る西大文字町
- 総階数
- 6階建
- 築年数
- 新築
- 建物構造
- RC
バス・トイレ別フローリングオートロック間取り図
階数
間取り
専有面積
賃料
管理費等
敷金
礼金
特徴
お気に入り
詳細
3階
1K
24.65㎡
8万円
10,000円
- 敷
- 80,000円
- 礼
- 160,000円
バス・トイレ別
フローリング
オートロック
詳細を見る マンション・アパートLaFiteKARASUMA 4階 築5年7ヶ月の賃貸物件
- 京都市営烏丸線/五条駅 徒歩8分
- 京都市営烏丸線/四条駅 徒歩11分
京都府京都市下京区富永町
- 総階数
- 5階建
- 築年数
- 5年7ヶ月
- 建物構造
- RC
バス・トイレ別フローリングオートロック間取り図
階数
間取り
専有面積
賃料
管理費等
敷金
礼金
特徴
お気に入り
詳細
4階
1K
28.68㎡
8万円
7,000円
- 敷
- 80,000円
- 礼
- 80,000円
バス・トイレ別
フローリング
オートロック
詳細を見る ほかの部屋を検索中…ほかの部屋は見つかりませんでしたマンション・アパートクリザンテーム山本3 1階 新築の賃貸物件
- 京福電気鉄道北野線/北野白梅町駅 徒歩6分
- JR山陰本線/円町駅 徒歩18分
京都府京都市北区等持院東町
- 総階数
- 2階建
- 築年数
- 新築
- 建物構造
- 木造
バス・トイレ別駐車場あり追い炊き機能間取り図
階数
間取り
専有面積
賃料
管理費等
敷金
礼金
特徴
お気に入り
詳細
1階
1K
35.91㎡
8万円
5,200円
- 敷
- 不要
- 礼
- 80,000円
バス・トイレ別
駐車場あり
追い炊き機能
詳細を見る ほかの部屋を検索中…ほかの部屋は見つかりませんでしたマンション・アパート西京極駅より徒歩11分 6階 築1年4ヶ月の賃貸物件
- 阪急京都本線/西京極駅 徒歩11分
- 阪急嵐山線/上桂駅 徒歩22分
京都府京都市右京区西京極新明町
- 総階数
- 7階建
- 築年数
- 1年4ヶ月
- 建物構造
- RC
バス・トイレ別駐車場ありフローリング間取り図
階数
間取り
専有面積
賃料
管理費等
敷金
礼金
特徴
お気に入り
詳細
6階
1DK
25.04㎡
8万円
8,000円
- 敷
- 不要
- 礼
- 不要
バス・トイレ別
駐車場あり
フローリング
詳細を見る マンション・アパートブルック御池 1階 築21年11ヶ月の賃貸物件
- 京都市営烏丸線/烏丸御池駅 徒歩6分
- 京都市営烏丸線/丸太町駅 徒歩13分
京都府京都市中京区小川通押小路下る下古城町
- 総階数
- 8階建
- 築年数
- 21年11ヶ月
- 建物構造
- 鉄骨造
バス・トイレ別フローリング追い炊き機能間取り図
階数
間取り
専有面積
賃料
管理費等
敷金
礼金
特徴
お気に入り
詳細
1階
1DK
40.0㎡
8万円
9,900円
- 敷
- 不要
- 礼
- 80,000円
バス・トイレ別
フローリング
追い炊き機能
詳細を見る ほかの部屋を検索中…ほかの部屋は見つかりませんでしたマンション・アパートリンツ御池 8階 築20年1ヶ月の賃貸物件
- 京都市営烏丸線/烏丸御池駅 徒歩6分
- 京都地下鉄東西線/二条城前駅 徒歩5分
京都府京都市中京区小川通御池下る壺屋町
- 総階数
- 8階建
- 築年数
- 20年1ヶ月
- 建物構造
- RC
バス・トイレ別フローリングオートロック間取り図
階数
間取り
専有面積
賃料
管理費等
敷金
礼金
特徴
お気に入り
詳細
8階
1R
35.76㎡
8万円
8,000円
- 敷
- 40,000円
- 礼
- 80,000円
バス・トイレ別
フローリング
オートロック
詳細を見る ほかの部屋を検索中…ほかの部屋は見つかりませんでしたマンション・アパート烏丸御池駅より徒歩6分 8階 築20年1ヶ月の賃貸物件
- 地下鉄烏丸線/烏丸御池駅 徒歩6分
- 地下鉄東西線/二条城前駅 徒歩5分
- 地下鉄烏丸線/四条駅 徒歩15分
京都府京都市中京区壺屋町
- 総階数
- 8階建
- 築年数
- 20年1ヶ月
- 建物構造
- 鉄筋コン
バス・トイレ別駐車場ありフローリング間取り図
階数
間取り
専有面積
賃料
管理費等
敷金
礼金
特徴
お気に入り
詳細
8階
1R
35.76㎡
8万円
8,000円
- 敷
- 40,000円
- 礼
- 80,000円
バス・トイレ別
駐車場あり
フローリング
詳細を見る


この店舗からのコメント
京都一筋40余年!京都橘大学・京都薬科大学・社会人様は勿論、豊富な物件データと信頼・実績の京都ライフ山科店にて満足度120%をお約束致します。来客用ガレージ完備。お気軽にお問い合わせください!!