株式会社京都ライフ 山科店の詳細情報
| アクセス | 湖西線/山科 徒歩6分 | ||||
|---|---|---|---|---|---|
| 住所 | 京都府京都市山科区竹鼻竹ノ街道町11 スタービル1階 | ||||
| 営業時間 | 9:30~19:00 | ||||
| 定休日 | 盆・正月 | ||||
| 電話番号 | 075-595-7677 | ||||
株式会社京都ライフ 山科店の周辺地図
店舗の特徴
19時以降も営業、駅のそば(歩3分以内)、女性スタッフ対応、保証人不要の相談可、引越し業者の紹介可、法人の契約取扱い
ニフティ不動産に掲載中の物件情報
| 1R~1LDK | 2K~2LDK | 3K~3LDK | 4K~4LDK | 5K~ | |
|---|---|---|---|---|---|
| 賃貸 | 9,293件 | 2,310件 | 849件 | 162件 | 69件 |
| 新築マンション | - | - | - | - | - |
| 中古マンション | - | - | - | - | - |
| 新築戸建 | - | - | - | - | - |
| 中古戸建 | - | - | - | - | - |
| ~50㎡ | 50~80㎡ | 80~100㎡ | 100~130㎡ | 130㎡~ | |
| 土地 | - | - | - | - | - |
不動産会社情報の精度向上にご協力をお願いいたします。不動産会社情報に誤りがある場合はこちらよりご連絡ください。
株式会社京都ライフ 山科店の物件一覧
並び替え
マンション・アパート二条駅より徒歩3分 5階 築17年11ヶ月の賃貸物件
- JR山陰本線/二条駅 徒歩3分
- 地下鉄東西線/西大路御池駅 徒歩19分
- 阪急京都線/大宮駅 徒歩18分
京都府京都市中京区西ノ京小堀町
- 総階数
- 10階建
- 築年数
- 17年11ヶ月
- 建物構造
- 鉄骨
バス・トイレ別駐車場ありフローリング間取り図
階数
間取り
専有面積
賃料
管理費等
敷金
礼金
特徴
お気に入り
詳細
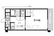
5階
1K
24.82㎡
5.8万円
7,000円
- 敷
- 70,000円
- 礼
- 60,000円
バス・トイレ別
駐車場あり
フローリング
詳細を見る マンション・アパート南滋賀駅より徒歩3分 2階 築18年8ヶ月の賃貸物件
- 京阪石山坂本線/南滋賀駅 徒歩3分
- 京阪石山坂本線/滋賀里駅 徒歩8分
滋賀県大津市見世1丁目
- 総階数
- 2階建
- 築年数
- 18年8ヶ月
- 建物構造
- 軽量鉄骨
バス・トイレ別駐車場ありフローリング間取り図
階数
間取り
専有面積
賃料
管理費等
敷金
礼金
特徴
お気に入り
詳細
2階
1LDK
50.71㎡
5.8万円
5,000円
- 敷
- 不要
- 礼
- 50,000円
バス・トイレ別
駐車場あり
フローリング
詳細を見る マンション・アパート伏見稲荷駅より徒歩2分 2階 築37年10ヶ月の賃貸物件
- 京阪本線/伏見稲荷駅 徒歩2分
- JR奈良線/稲荷駅 徒歩5分
京都府京都市伏見区深草秡川町
- 総階数
- 5階建
- 築年数
- 37年10ヶ月
- 建物構造
- RC
バス・トイレ別駐車場あり駐輪場あり間取り図
階数
間取り
専有面積
賃料
管理費等
敷金
礼金
特徴
お気に入り
詳細
2階
2DK
33.19㎡
5.8万円
5,000円
- 敷
- 不要
- 礼
- 100,000円
バス・トイレ別
駐車場あり
駐輪場あり
詳細を見る マンション・アパート伏見稲荷駅より徒歩2分 1階 築37年10ヶ月の賃貸物件
- 京阪本線/伏見稲荷駅 徒歩2分
- JR奈良線/稲荷駅 徒歩5分
京都府京都市伏見区深草秡川町
- 総階数
- 5階建
- 築年数
- 37年10ヶ月
- 建物構造
- RC
バス・トイレ別駐車場あり駐輪場あり間取り図
階数
間取り
専有面積
賃料
管理費等
敷金
礼金
特徴
お気に入り
詳細
1階
2DK
33.19㎡
5.8万円
5,000円
- 敷
- 不要
- 礼
- 100,000円
バス・トイレ別
駐車場あり
駐輪場あり
詳細を見る マンション・アパートレオパレス大徳A 2階 築20年11ヶ月の賃貸物件
- 近鉄京都線/山田川駅 徒歩5分
- JR片町線/西木津駅 徒歩13分
- 近鉄京都線/高の原駅 徒歩25分
京都府木津川市相楽大徳
- 総階数
- 2階建
- 築年数
- 20年11ヶ月
- 建物構造
- 鉄骨
バス・トイレ別駐車場ありフローリング間取り図
階数
間取り
専有面積
賃料
管理費等
敷金
礼金
特徴
お気に入り
詳細
2階
1K
19.87㎡
5.8万円
7,000円
- 敷
- 不要
- 礼
- 58,000円
バス・トイレ別
駐車場あり
フローリング
詳細を見る ほかの部屋を検索中…ほかの部屋は見つかりませんでしたマンション・アパート長岡天神駅より徒歩3分 2階 築34年7ヶ月の賃貸物件
- 阪急京都線/長岡天神駅 徒歩3分
- JR東海道本線/長岡京駅 徒歩12分
- 阪急京都線/西山天王山駅 徒歩24分
京都府長岡京市開田1
- 総階数
- 3階建
- 築年数
- 34年7ヶ月
- 建物構造
- 鉄骨
バス・トイレ別駐車場ありフローリング間取り図
階数
間取り
専有面積
賃料
管理費等
敷金
礼金
特徴
お気に入り
詳細
2階
1K
28.3㎡
5.8万円
2,000円
- 敷
- 不要
- 礼
- 100,000円
バス・トイレ別
駐車場あり
フローリング
詳細を見る マンション・アパート七条駅より徒歩3分 2階 築20年3ヶ月の賃貸物件
- 京阪電鉄本線/七条駅 徒歩3分
- JR東海道本線/京都駅 徒歩13分
- 京都市営地下鉄烏丸線/京都駅 徒歩13分
京都府京都市東山区本町新5丁目
- 総階数
- 4階建
- 築年数
- 20年3ヶ月
- 建物構造
- RC
バス・トイレ別フローリングオートロック間取り図
階数
間取り
専有面積
賃料
管理費等
敷金
礼金
特徴
お気に入り
詳細
2階
1K
25.5㎡
5.9万円
7,000円
- 敷
- 不要
- 礼
- 100,000円
バス・トイレ別
フローリング
オートロック
詳細を見る マンション・アパートドミール小野 2階 築34年10ヶ月の賃貸物件
- 京都地下鉄東西線/小野駅 徒歩3分
- 京都地下鉄東西線/椥辻駅 徒歩16分
京都府京都市山科区勧修寺縄手町
- 総階数
- 4階建
- 築年数
- 34年10ヶ月
- 建物構造
- RC
バス・トイレ別フローリングオートロック間取り図
階数
間取り
専有面積
賃料
管理費等
敷金
礼金
特徴
お気に入り
詳細
2階
2LDK
45.36㎡
5.9万円
5,000円
- 敷
- 不要
- 礼
- 59,000円
バス・トイレ別
フローリング
オートロック
詳細を見る ほかの部屋を検索中…ほかの部屋は見つかりませんでしたマンション・アパート大宮駅より徒歩4分 5階 築19年7ヶ月の賃貸物件
- 阪急京都線/大宮駅 徒歩4分
- 地下鉄烏丸線/四条駅 徒歩15分
- JR山陰本線/二条駅 徒歩15分
京都府京都市下京区坊門町
- 総階数
- 5階建
- 築年数
- 19年7ヶ月
- 建物構造
- 鉄筋コン
バス・トイレ別ペット相談フローリング間取り図
階数
間取り
専有面積
賃料
管理費等
敷金
礼金
特徴
お気に入り
詳細
5階
1K
23.9㎡
5.9万円
5,000円
- 敷
- 不要
- 礼
- 不要
バス・トイレ別
ペット相談
フローリング
詳細を見る マンション・アパートCQレジデンス京都東山三条 4階 築19年11ヶ月の賃貸物件
- 京阪本線/三条駅 徒歩3分
- 京都地下鉄東西線/東山駅 徒歩2分
京都府京都市東山区三条通大橋東4丁目七軒町
- 総階数
- 7階建
- 築年数
- 19年11ヶ月
- 建物構造
- RC
バス・トイレ別フローリングオートロック間取り図
階数
間取り
専有面積
賃料
管理費等
敷金
礼金
特徴
お気に入り
詳細
4階
1K
22.9㎡
5.9万円
6,000円
- 敷
- 不要
- 礼
- 59,000円
バス・トイレ別
フローリング
オートロック
詳細を見る ほかの部屋を検索中…ほかの部屋は見つかりませんでしたマンション・アパート三条駅より徒歩3分 4階 築19年11ヶ月の賃貸物件
- 京阪電鉄本線/三条駅 徒歩3分
- 京都市営地下鉄東西線/東山駅 徒歩2分
- 京都市営地下鉄東西線/京都市役所前駅 徒歩10分
京都府京都市東山区七軒町
- 総階数
- 7階建
- 築年数
- 19年11ヶ月
- 建物構造
- RC
バス・トイレ別フローリング新着間取り図
階数
間取り
専有面積
賃料
管理費等
敷金
礼金
特徴
お気に入り
詳細
4階
1K
22.9㎡
5.9万円
6,000円
- 敷
- 不要
- 礼
- 59,000円
バス・トイレ別
フローリング
新着
詳細を見る マンション・アパートViscaria光樹 6階 築18年11ヶ月の賃貸物件
- 地下鉄烏丸線/烏丸御池駅 徒歩3分
- 地下鉄東西線/二条城前駅 徒歩8分
- 地下鉄烏丸線/丸太町駅 徒歩9分
京都府京都市中京区下妙覚寺町
- 総階数
- 10階建
- 築年数
- 18年11ヶ月
- 建物構造
- 鉄骨
バス・トイレ別フローリング新着間取り図
階数
間取り
専有面積
賃料
管理費等
敷金
礼金
特徴
お気に入り
詳細
6階
1K
27.08㎡
5.95万円
6,000円
- 敷
- 70,000円
- 礼
- 60,000円
バス・トイレ別
フローリング
新着
詳細を見る ほかの部屋を検索中…ほかの部屋は見つかりませんでしたマンション・アパート北山駅より徒歩3分 1階 築22年11ヶ月の賃貸物件
- 地下鉄烏丸線/北山駅 徒歩3分
- 地下鉄烏丸線/松ケ崎駅 徒歩14分
- 地下鉄烏丸線/北大路駅 徒歩17分
京都府京都市北区上賀茂岩ケ垣内町
- 総階数
- 3階建
- 築年数
- 22年11ヶ月
- 建物構造
- 鉄筋コン
バス・トイレ別フローリングオートロック間取り図
階数
間取り
専有面積
賃料
管理費等
敷金
礼金
特徴
お気に入り
詳細
1階
1K
24.04㎡
5.95万円
6,000円
- 敷
- 70,000円
- 礼
- 60,000円
バス・トイレ別
フローリング
オートロック
詳細を見る マンション・アパート西山天王山駅より徒歩3分 2階 築9年2ヶ月の賃貸物件
- 阪急京都線/西山天王山駅 徒歩3分
- JR東海道本線/長岡京駅 徒歩22分
- 阪急京都線/長岡天神駅 徒歩17分
京都府長岡京市友岡西畑
- 総階数
- 2階建
- 築年数
- 9年2ヶ月
- 建物構造
- 木造
バス・トイレ別駐車場ありフローリング間取り図
階数
間取り
専有面積
賃料
管理費等
敷金
礼金
特徴
お気に入り
詳細
2階
1K
26.72㎡
5.95万円
4,600円
- 敷
- 不要
- 礼
- 80,000円
バス・トイレ別
駐車場あり
フローリング
詳細を見る マンション・アパート烏丸御池駅より徒歩3分 7階 築24年の賃貸物件
- 地下鉄烏丸線/烏丸御池駅 徒歩3分
- 阪急京都線/烏丸駅 徒歩13分
- 地下鉄烏丸線/丸太町駅 徒歩4分
京都府京都市中京区秋野々町
- 総階数
- 11階建
- 築年数
- 24年
- 建物構造
- 鉄骨鉄筋
バス・トイレ別フローリングオートロック間取り図
階数
間取り
専有面積
賃料
管理費等
敷金
礼金
特徴
お気に入り
詳細
7階
1K
26.05㎡
6万円
10,000円
- 敷
- 44,000円
- 礼
- 60,000円
バス・トイレ別
フローリング
オートロック
詳細を見る マンション・アパート北大路駅より徒歩3分 2階 築59年8ヶ月の賃貸物件
- 地下鉄烏丸線/北大路駅 徒歩3分
- 地下鉄烏丸線/北山駅 徒歩17分
- 地下鉄烏丸線/鞍馬口駅 徒歩17分
京都府京都市北区小山初音町
- 総階数
- 4階建
- 築年数
- 59年8ヶ月
- 建物構造
- 鉄筋コン
バス・トイレ別フローリング南向き間取り図
階数
間取り
専有面積
賃料
管理費等
敷金
礼金
特徴
お気に入り
詳細
2階
2K
28.0㎡
6万円
3,000円
- 敷
- 60,000円
- 礼
- 60,000円
バス・トイレ別
フローリング
南向き
詳細を見る マンション・アパート大宮駅より徒歩4分 5階 築27年の賃貸物件
- 阪急京都線/大宮駅 徒歩4分
- 地下鉄烏丸線/四条駅 徒歩10分
- 地下鉄東西線/二条城前駅 徒歩12分
京都府京都市下京区四条堀川町
- 総階数
- 11階建
- 築年数
- 27年
- 建物構造
- 鉄骨鉄筋
バス・トイレ別駐車場ありフローリング間取り図
階数
間取り
専有面積
賃料
管理費等
敷金
礼金
特徴
お気に入り
詳細
5階
1K
26.43㎡
6万円
6,000円
- 敷
- 不要
- 礼
- 60,000円
バス・トイレ別
駐車場あり
フローリング
詳細を見る マンション・アパートレオパレス大徳A 2階 築16年5ヶ月の賃貸物件
- 近鉄京都線/山田川駅 徒歩6分
- 近鉄京都線/木津川台駅 徒歩13分
- JR片町線/西木津駅 徒歩13分
京都府木津川市相楽大徳
- 総階数
- 2階建
- 築年数
- 16年5ヶ月
- 建物構造
- 鉄骨
バス・トイレ別フローリングコンロ2口以上間取り図
階数
間取り
専有面積
賃料
管理費等
敷金
礼金
特徴
お気に入り
詳細
2階
1K
22.35㎡
6万円
7,000円
- 敷
- 不要
- 礼
- 60,000円
バス・トイレ別
フローリング
コンロ2口以上
詳細を見る ほかの部屋を検索中…ほかの部屋は見つかりませんでしたマンション・アパート山科ハイツ 6階 築51年1ヶ月の賃貸物件
- 京都市営地下鉄東西線/東野駅 徒歩3分
- JR東海道本線/山科駅 徒歩17分
- 京阪電鉄京津線/京阪山科駅 徒歩17分
京都府京都市山科区東野門口町
- 総階数
- 7階建
- 築年数
- 51年1ヶ月
- 建物構造
- RC
バス・トイレ別駐輪場あり間取り図
階数
間取り
専有面積
賃料
管理費等
敷金
礼金
特徴
お気に入り
詳細
6階
2DK
40.5㎡
6万円
5,000円
- 敷
- 60,000円
- 礼
- 60,000円
バス・トイレ別
駐輪場あり
詳細を見る ほかの部屋を検索中…ほかの部屋は見つかりませんでしたマンション・アパートSJS浜大津 1階 築45年の賃貸物件
- 京阪石山坂本線/三井寺駅 徒歩3分
- 京阪京津線/びわ湖浜大津駅 徒歩6分
滋賀県大津市長等3丁目
- 総階数
- 3階建
- 築年数
- 45年
- 建物構造
- 鉄骨造
バス・トイレ別フローリング保証人不要間取り図
階数
間取り
専有面積
賃料
管理費等
敷金
礼金
特徴
お気に入り
詳細
1階
1DK
32.63㎡
6万円
5,500円
- 敷
- 不要
- 礼
- 不要
バス・トイレ別
フローリング
保証人不要
詳細を見る ほかの部屋を検索中…ほかの部屋は見つかりませんでしたマンション・アパートフレーヴァー藤森 3階 築23年11ヶ月の賃貸物件
- 近鉄京都線/伏見駅 徒歩3分
- 京阪本線/墨染駅 徒歩9分
京都府京都市伏見区深草柴田屋敷町
- 総階数
- 5階建
- 築年数
- 23年11ヶ月
- 建物構造
- RC
バス・トイレ別フローリングオートロック間取り図
階数
間取り
専有面積
賃料
管理費等
敷金
礼金
特徴
お気に入り
詳細
3階
1K
29.6㎡
6万円
6,000円
- 敷
- 不要
- 礼
- 不要
バス・トイレ別
フローリング
オートロック
詳細を見る ほかの部屋を検索中…ほかの部屋は見つかりませんでしたマンション・アパート修学院駅より徒歩4分 2階 築6年6ヶ月の賃貸物件
- 叡山電鉄叡山本線/修学院駅 徒歩4分
- 地下鉄烏丸線/松ケ崎駅 徒歩17分
- 叡山電鉄叡山本線/一乗寺駅 徒歩10分
京都府京都市左京区山端川原町
- 総階数
- 3階建
- 築年数
- 6年6ヶ月
- 建物構造
- 鉄骨
バス・トイレ別フローリングオートロック間取り図
階数
間取り
専有面積
賃料
管理費等
敷金
礼金
特徴
お気に入り
詳細
2階
1R
22.04㎡
6万円
5,000円
- 敷
- 不要
- 礼
- 120,000円
バス・トイレ別
フローリング
オートロック
詳細を見る マンション・アパート京都市役所前駅より徒歩3分 4階 築24年11ヶ月の賃貸物件
- 地下鉄東西線/京都市役所前駅 徒歩3分
- 地下鉄烏丸線/烏丸御池駅 徒歩10分
- 京阪鴨東線/神宮丸太町駅 徒歩14分
京都府京都市中京区山本町
- 総階数
- 7階建
- 築年数
- 24年11ヶ月
- 建物構造
- 鉄筋コン
バス・トイレ別フローリングオートロック間取り図
階数
間取り
専有面積
賃料
管理費等
敷金
礼金
特徴
お気に入り
詳細
4階
1K
24.09㎡
6万円
6,500円
- 敷
- 不要
- 礼
- 60,000円
バス・トイレ別
フローリング
オートロック
詳細を見る マンション・アパート鞍馬口駅より徒歩4分 1階 築15年10ヶ月の賃貸物件
- 地下鉄烏丸線/鞍馬口駅 徒歩4分
- 京阪鴨東線/出町柳駅 徒歩27分
京都府京都市北区小山中溝町
- 総階数
- 2階建
- 築年数
- 15年10ヶ月
- 建物構造
- 木造
バス・トイレ別フローリング新着間取り図
階数
間取り
専有面積
賃料
管理費等
敷金
礼金
特徴
お気に入り
詳細
1階
1K
26.92㎡
6万円
4,000円
- 敷
- 不要
- 礼
- 96,000円
バス・トイレ別
フローリング
新着
詳細を見る マンション・アパート茶山・京都芸術大学駅より徒歩3分 7階 築20年7ヶ月の賃貸物件
- 叡山電鉄叡山本線/茶山・京都芸術大学駅 徒歩3分
- 京阪鴨東線/出町柳駅 徒歩20分
- 叡山電鉄叡山本線/元田中駅 徒歩9分
京都府京都市左京区田中東高原町
- 総階数
- 7階建
- 築年数
- 20年7ヶ月
- 建物構造
- 鉄筋コン
バス・トイレ別駐車場ありペット相談間取り図
階数
間取り
専有面積
賃料
管理費等
敷金
礼金
特徴
お気に入り
詳細
7階
1K
25.8㎡
6万円
8,000円
- 敷
- 60,000円
- 礼
- 不要
バス・トイレ別
駐車場あり
ペット相談
詳細を見る マンション・アパート太秦天神川駅より徒歩3分 2階 築35年の賃貸物件
- 地下鉄東西線/太秦天神川駅 徒歩3分
- 阪急京都線/西院駅 徒歩22分
- 地下鉄東西線/西大路御池駅 徒歩18分
京都府京都市右京区山ノ内西八反田町
- 総階数
- 5階建
- 築年数
- 35年
- 建物構造
- 鉄骨
フローリング間取り図
階数
間取り
専有面積
賃料
管理費等
敷金
礼金
特徴
お気に入り
詳細
2階
1LDK
43.74㎡
6万円
6,000円
- 敷
- 不要
- 礼
- 不要
フローリング
詳細を見る マンション・アパート桂駅より徒歩3分 2階 築17年1ヶ月の賃貸物件
- 阪急京都線/桂駅 徒歩3分
- JR東海道本線/桂川駅 徒歩34分
- 阪急京都線/洛西口駅 徒歩27分
京都府京都市西京区桂南巽町
- 総階数
- 2階建
- 築年数
- 17年1ヶ月
- 建物構造
- 木造
バス・トイレ別駐車場あり南向き間取り図
階数
間取り
専有面積
賃料
管理費等
敷金
礼金
特徴
お気に入り
詳細
2階
1K
29.4㎡
6万円
3,000円
- 敷
- 不要
- 礼
- 80,000円
バス・トイレ別
駐車場あり
南向き
詳細を見る マンション・アパート七条駅より徒歩3分 3階 築36年9ヶ月の賃貸物件
- 京阪本線/七条駅 徒歩3分
- JR東海道・山陽本線/京都駅 徒歩10分
京都府京都市東山区本町6丁目
- 総階数
- 4階建
- 築年数
- 36年9ヶ月
- 建物構造
- RC
フローリングオートロック角部屋間取り図
階数
間取り
専有面積
賃料
管理費等
敷金
礼金
特徴
お気に入り
詳細
3階
1DK
35.0㎡
6万円
6,000円
- 敷
- 不要
- 礼
- 100,000円
フローリング
オートロック
角部屋
詳細を見る マンション・アパートメゾン・スパイラル5A 5階 築19年1ヶ月の賃貸物件
- 京阪本線/藤森駅 徒歩3分
- 京阪本線/龍谷大前深草駅 徒歩15分
京都府京都市伏見区深草直違橋5丁目
- 総階数
- 7階建
- 築年数
- 19年1ヶ月
- 建物構造
- RC
バス・トイレ別フローリングオートロック間取り図
階数
間取り
専有面積
賃料
管理費等
敷金
礼金
特徴
お気に入り
詳細
5階
1K
28.18㎡
6万円
6,500円
- 敷
- 不要
- 礼
- 170,000円
バス・トイレ別
フローリング
オートロック
詳細を見る ほかの部屋を検索中…ほかの部屋は見つかりませんでしたマンション・アパート修学院駅より徒歩4分 3階 築6年6ヶ月の賃貸物件
- 叡山電鉄叡山本線/修学院駅 徒歩4分
- 地下鉄烏丸線/松ケ崎駅 徒歩17分
- 叡山電鉄叡山本線/一乗寺駅 徒歩10分
京都府京都市左京区山端川原町
- 総階数
- 3階建
- 築年数
- 6年6ヶ月
- 建物構造
- 鉄骨
バス・トイレ別フローリングオートロック間取り図
階数
間取り
専有面積
賃料
管理費等
敷金
礼金
特徴
お気に入り
詳細
3階
1R
20.8㎡
6万円
5,000円
- 敷
- 不要
- 礼
- 120,000円
バス・トイレ別
フローリング
オートロック
詳細を見る マンション・アパート伏見桃山駅より徒歩3分 2階 築21年5ヶ月の賃貸物件
- 京阪本線/伏見桃山駅 徒歩3分
- 近鉄京都線/桃山御陵前駅 徒歩4分
京都府京都市伏見区京町大黒町
- 総階数
- 3階建
- 築年数
- 21年5ヶ月
- 建物構造
- RC
バス・トイレ別フローリング新着間取り図
階数
間取り
専有面積
賃料
管理費等
敷金
礼金
特徴
お気に入り
詳細
2階
1K
30.86㎡
6万円
6,000円
- 敷
- 50,000円
- 礼
- 100,000円
バス・トイレ別
フローリング
新着
詳細を見る マンション・アパート坂本比叡山口駅より徒歩3分 1階 新築の賃貸物件
- 京阪石山坂本線/坂本比叡山口駅 徒歩3分
- JR湖西線/比叡山坂本駅 徒歩8分
滋賀県大津市坂本3丁目
- 総階数
- 2階建
- 築年数
- 新築
- 建物構造
- 鉄骨造
バス・トイレ別駐車場ありフローリング間取り図
階数
間取り
専有面積
賃料
管理費等
敷金
礼金
特徴
お気に入り
詳細
1階
1LDK
43.02㎡
6万円
5,000円
- 敷
- 不要
- 礼
- 60,000円
バス・トイレ別
駐車場あり
フローリング
詳細を見る マンション・アパートViscaria光樹 10階 築18年11ヶ月の賃貸物件
- 地下鉄烏丸線/烏丸御池駅 徒歩3分
- 地下鉄東西線/二条城前駅 徒歩8分
- 地下鉄烏丸線/丸太町駅 徒歩9分
京都府京都市中京区下妙覚寺町
- 総階数
- 10階建
- 築年数
- 18年11ヶ月
- 建物構造
- 鉄骨
バス・トイレ別フローリングオートロック間取り図
階数
間取り
専有面積
賃料
管理費等
敷金
礼金
特徴
お気に入り
詳細
10階
1K
27.08㎡
6.05万円
6,000円
- 敷
- 70,000円
- 礼
- 60,000円
バス・トイレ別
フローリング
オートロック
詳細を見る ほかの部屋を検索中…ほかの部屋は見つかりませんでしたマンション・アパートふくながマンション 2階 築27年10ヶ月の賃貸物件
- 叡山電鉄叡山本線/元田中駅 徒歩3分
- 京阪鴨東線/出町柳駅 徒歩10分
- 叡山電鉄叡山本線/茶山・京都芸術大学駅 徒歩8分
京都府京都市左京区田中里ノ前町
- 総階数
- 3階建
- 築年数
- 27年10ヶ月
- 建物構造
- 鉄筋コン
バス・トイレ別オートロック駐輪場あり間取り図
階数
間取り
専有面積
賃料
管理費等
敷金
礼金
特徴
お気に入り
詳細
2階
1K
20.47㎡
6.1万円
6,500円
- 敷
- 120,000円
- 礼
- 120,000円
バス・トイレ別
オートロック
駐輪場あり
詳細を見る ほかの部屋を検索中…ほかの部屋は見つかりませんでしたマンション・アパートレオパレスコンフォート大津京 4階 築17年4ヶ月の賃貸物件
- JR湖西線/大津京駅 徒歩3分
- 京阪石山坂本線/京阪大津京駅 徒歩3分
滋賀県大津市皇子が丘2丁目
- 総階数
- 4階建
- 築年数
- 17年4ヶ月
- 建物構造
- 鉄骨造
バス・トイレ別フローリングコンロ2口以上間取り図
階数
間取り
専有面積
賃料
管理費等
敷金
礼金
特徴
お気に入り
詳細
4階
1K
20.81㎡
6.1万円
7,000円
- 敷
- 不要
- 礼
- 61,000円
バス・トイレ別
フローリング
コンロ2口以上
詳細を見る ほかの部屋を検索中…ほかの部屋は見つかりませんでしたマンション・アパート西京極駅より徒歩3分 2階 築24年2ヶ月の賃貸物件
- 阪急京都線/西京極駅 徒歩3分
- 阪急京都線/西院駅 徒歩24分
- JR東海道本線/西大路駅 徒歩28分
京都府京都市右京区西京極堤外町
- 総階数
- 5階建
- 築年数
- 24年2ヶ月
- 建物構造
- 鉄筋コン
バス・トイレ別駐車場ありフローリング間取り図
階数
間取り
専有面積
賃料
管理費等
敷金
礼金
特徴
お気に入り
詳細
2階
1DK
28.58㎡
6.1万円
7,000円
- 敷
- 不要
- 礼
- 不要
バス・トイレ別
駐車場あり
フローリング
詳細を見る マンション・アパート修学院駅より徒歩4分 3階 築6年6ヶ月の賃貸物件
- 叡山電鉄叡山本線/修学院駅 徒歩4分
- 地下鉄烏丸線/松ケ崎駅 徒歩17分
- 叡山電鉄叡山本線/一乗寺駅 徒歩10分
京都府京都市左京区山端川原町
- 総階数
- 3階建
- 築年数
- 6年6ヶ月
- 建物構造
- 鉄骨
バス・トイレ別フローリングオートロック間取り図
階数
間取り
専有面積
賃料
管理費等
敷金
礼金
特徴
お気に入り
詳細
3階
1R
21.31㎡
6.1万円
5,000円
- 敷
- 不要
- 礼
- 122,000円
バス・トイレ別
フローリング
オートロック
詳細を見る マンション・アパート大宮駅より徒歩4分 8階 築27年の賃貸物件
- 阪急京都線/大宮駅 徒歩4分
- 地下鉄烏丸線/四条駅 徒歩10分
- 地下鉄東西線/二条城前駅 徒歩12分
京都府京都市下京区四条堀川町
- 総階数
- 11階建
- 築年数
- 27年
- 建物構造
- 鉄骨鉄筋
バス・トイレ別駐車場ありフローリング間取り図
階数
間取り
専有面積
賃料
管理費等
敷金
礼金
特徴
お気に入り
詳細
8階
1K
25.77㎡
6.1万円
6,000円
- 敷
- 不要
- 礼
- 61,000円
バス・トイレ別
駐車場あり
フローリング
詳細を見る マンション・アパートパークス京都東 1階 築8年の賃貸物件
- 京阪京津線/四宮駅 徒歩3分
- JR東海道・山陽本線/山科駅 徒歩11分
京都府京都市山科区四ノ宮大将軍町
- 総階数
- 4階建
- 築年数
- 8年
- 建物構造
- RC
バス・トイレ別フローリングオートロック間取り図
階数
間取り
専有面積
賃料
管理費等
敷金
礼金
特徴
お気に入り
詳細
1階
1K
26.67㎡
6.1万円
3,000円
- 敷
- 不要
- 礼
- 61,000円
バス・トイレ別
フローリング
オートロック
詳細を見る ほかの部屋を検索中…ほかの部屋は見つかりませんでしたマンション・アパートふくながマンション 2階 築27年10ヶ月の賃貸物件
- 叡山電鉄叡山本線/元田中駅 徒歩3分
- 京阪鴨東線/出町柳駅 徒歩10分
- 叡山電鉄叡山本線/茶山・京都芸術大学駅 徒歩8分
京都府京都市左京区田中里ノ前町
- 総階数
- 3階建
- 築年数
- 27年10ヶ月
- 建物構造
- 鉄筋コン
バス・トイレ別オートロック駐輪場あり間取り図
階数
間取り
専有面積
賃料
管理費等
敷金
礼金
特徴
お気に入り
詳細
2階
1K
20.47㎡
6.15万円
6,500円
- 敷
- 120,000円
- 礼
- 120,000円
バス・トイレ別
オートロック
駐輪場あり
詳細を見る ほかの部屋を検索中…ほかの部屋は見つかりませんでした


この店舗からのコメント
京都一筋40年!京都橘大学・京都薬科大学・社会人様は勿論、豊富な物件データと信頼・実績の京都ライフ山科店にて満足度120%をお約束致します。来客用ガレージ完備。お気軽にお問い合わせください!!