株式会社ホームプランの詳細情報
| アクセス | 片町線/忍ヶ丘 徒歩5分 | ||||
|---|---|---|---|---|---|
| 住所 | 大阪府四條畷市岡山東2丁目2-20 | ||||
| 営業時間 | 10:00~19:00、土日祝 10:00〜18:00 | ||||
| 定休日 | 水曜日 第1・第3火曜日 年末年始 | ||||
| 電話番号 | 072-863-0606 | ||||
株式会社ホームプランの周辺地図
店舗の特徴
駅のそば(歩3分以内)、保証人不要の相談可、提携ローン会社あり、引越し業者の紹介可、法人の契約取扱い、土地買取、中古マンション買取り、中古一戸建て買取り、リフォーム対応
ニフティ不動産に掲載中の物件情報
| 1R~1LDK | 2K~2LDK | 3K~3LDK | 4K~4LDK | 5K~ | |
|---|---|---|---|---|---|
| 賃貸 | 9件 | 8件 | 3件 | - | - |
| 新築マンション | - | - | - | - | - |
| 中古マンション | - | - | - | - | - |
| 新築戸建 | - | 1件 | - | 2件 | - |
| 中古戸建 | - | 2件 | 2件 | 3件 | - |
| ~50㎡ | 50~80㎡ | 80~100㎡ | 100~130㎡ | 130㎡~ | |
| 土地 | - | 4件 | - | 1件 | - |
不動産会社情報の精度向上にご協力をお願いいたします。不動産会社情報に誤りがある場合はこちらよりご連絡ください。
株式会社ホームプランの物件一覧
並び替え
20件中1〜20件を表示
マンション・アパートエクセレント忍ヶ丘 5階 築31年9ヶ月の賃貸物件
- JR片町線(学研都市線)/忍ケ丘駅 徒歩2分
- JR片町線(学研都市線)/寝屋川公園駅 徒歩21分
大阪府四條畷市岡山東1丁目6-10
- 総階数
- 7階建
- 築年数
- 31年9ヶ月
- 建物構造
- 鉄骨造
フローリングオートロック駐輪場あり間取り図
階数
間取り
専有面積
賃料
管理費等
敷金
礼金
特徴
お気に入り
詳細
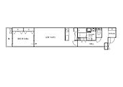
5階
1K
18.0㎡
2.9万円
8,000円
- 敷
- 不要
- 礼
- 33,000円
フローリング
オートロック
駐輪場あり
詳細を見る ほかの部屋を検索中…ほかの部屋は見つかりませんでしたマンション・アパート忍ケ丘駅より徒歩6分 2階 築27年1ヶ月の賃貸物件
- JR片町線(学研都市線)/忍ケ丘駅 徒歩6分
- JR片町線(学研都市線)/寝屋川公園駅 徒歩18分
大阪府四條畷市岡山東3丁目2-16
- 総階数
- 2階建
- 築年数
- 27年1ヶ月
- 建物構造
- 軽量鉄骨
バス・トイレ別フローリング保証人不要間取り図
階数
間取り
専有面積
賃料
管理費等
敷金
礼金
特徴
お気に入り
詳細
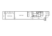
2階
1K
20.46㎡
3.8万円
2,000円
- 敷
- 不要
- 礼
- 1.0ヶ月
バス・トイレ別
フローリング
保証人不要
詳細を見る マンション・アパート忍ヶ丘グリーンハイツ 2階 築44年8ヶ月の賃貸物件
- JR片町線(学研都市線)/忍ケ丘駅 徒歩3分
- JR片町線(学研都市線)/寝屋川公園駅 徒歩20分
大阪府四條畷市岡山2丁目1-31
- 総階数
- 3階建
- 築年数
- 44年8ヶ月
- 建物構造
- 鉄骨造
バス・トイレ別駐車場あり南向き間取り図
階数
間取り
専有面積
賃料
管理費等
敷金
礼金
特徴
お気に入り
詳細
2階
2DK
40.0㎡
5.4万円
5,000円
- 敷
- 不要
- 礼
- 1.0ヶ月
バス・トイレ別
駐車場あり
南向き
詳細を見る ほかの部屋を検索中…ほかの部屋は見つかりませんでしたマンション・アパートハヤシハイツ 3階 築37年の賃貸物件
- JR片町線(学研都市線)/忍ケ丘駅 徒歩4分
大阪府四條畷市岡山東2丁目
- 総階数
- 3階建
- 築年数
- 37年
- 建物構造
- 鉄骨造
バス・トイレ別フローリング駐輪場あり間取り図
階数
間取り
専有面積
賃料
管理費等
敷金
礼金
特徴
お気に入り
詳細
3階
2DK
45.0㎡
5.8万円
不要
- 敷
- 不要
- 礼
- 不要
バス・トイレ別
フローリング
駐輪場あり
詳細を見る ほかの部屋を検索中…ほかの部屋は見つかりませんでしたマンション・アパートクリエオーレ岡山 2階 築3年の賃貸物件
- JR片町線(学研都市線)/忍ケ丘駅 徒歩5分
- JR片町線(学研都市線)/寝屋川公園駅 徒歩16分
大阪府四條畷市岡山4丁目4-21
- 総階数
- 3階建
- 築年数
- 3年
- 建物構造
- 木造
バス・トイレ別フローリングオートロック間取り図
階数
間取り
専有面積
賃料
管理費等
敷金
礼金
特徴
お気に入り
詳細
2階
1LDK
32.15㎡
6.4万円
10,000円
- 敷
- 不要
- 礼
- 不要
バス・トイレ別
フローリング
オートロック
詳細を見る ほかの部屋を検索中…ほかの部屋は見つかりませんでしたマンション・アパートサンリット レジデンス 4階 築17年7ヶ月の賃貸物件
- JR片町線(学研都市線)/忍ケ丘駅 徒歩5分
- JR片町線(学研都市線)/四条畷駅 徒歩27分
大阪府四條畷市岡山1丁目25-6
- 総階数
- 4階建
- 築年数
- 17年7ヶ月
- 建物構造
- 鉄骨造
バス・トイレ別オートロック追い炊き機能間取り図
階数
間取り
専有面積
賃料
管理費等
敷金
礼金
特徴
お気に入り
詳細
4階
1K
33.05㎡
5.7万円
4,100円
- 敷
- 不要
- 礼
- 1.0ヶ月
バス・トイレ別
オートロック
追い炊き機能
詳細を見る ほかの部屋を検索中…ほかの部屋は見つかりませんでしたマンション・アパートエミネンスムラカワ2 1階 築15年1ヶ月の賃貸物件
- JR片町線(学研都市線)/忍ケ丘駅 徒歩5分
- JR片町線(学研都市線)/寝屋川公園駅 徒歩20分
大阪府四條畷市岡山2丁目6-15
- 総階数
- 2階建
- 築年数
- 15年1ヶ月
- 建物構造
- 木造
バス・トイレ別フローリング追い炊き機能間取り図
階数
間取り
専有面積
賃料
管理費等
敷金
礼金
特徴
お気に入り
詳細
1階
1LDK
36.79㎡
6.05万円
2,300円
- 敷
- 不要
- 礼
- 1.0ヶ月
バス・トイレ別
フローリング
追い炊き機能
詳細を見る ほかの部屋を検索中…ほかの部屋は見つかりませんでしたマンション・アパート忍ケ丘駅より徒歩8分 2階 築26年1ヶ月の賃貸物件
- JR片町線(学研都市線)/忍ケ丘駅 徒歩8分
- JR片町線(学研都市線)/寝屋川公園駅 徒歩18分
大阪府四條畷市岡山東3丁目5-26
- 総階数
- 2階建
- 築年数
- 26年1ヶ月
- 建物構造
- 軽量鉄骨
バス・トイレ別駐車場ありフローリング間取り図
階数
間取り
専有面積
賃料
管理費等
敷金
礼金
特徴
お気に入り
詳細
2階
2LDK
52.66㎡
6.6万円
3,000円
- 敷
- 不要
- 礼
- 不要
バス・トイレ別
駐車場あり
フローリング
詳細を見る マンション・アパートイリスコート忍ヶ丘II 2階 築1年1ヶ月の賃貸物件
- JR片町線(学研都市線)/忍ケ丘駅 徒歩5分
- JR片町線(学研都市線)/寝屋川公園駅 徒歩16分
大阪府四條畷市岡山3丁目
- 総階数
- 3階建
- 築年数
- 1年1ヶ月
- 建物構造
- その他
バス・トイレ別コンロ2口以上角部屋間取り図
階数
間取り
専有面積
賃料
管理費等
敷金
礼金
特徴
お気に入り
詳細
2階
1LDK
30.12㎡
6.8万円
7,000円
- 敷
- 不要
- 礼
- 68,000円
バス・トイレ別
コンロ2口以上
角部屋
詳細を見る ほかの部屋を検索中…ほかの部屋は見つかりませんでした一戸建て忍ケ丘駅より徒歩8分 築47年7ヶ月の賃貸物件
- JR片町線(学研都市線)/忍ケ丘駅 徒歩8分
- JR片町線(学研都市線)/寝屋川公園駅 徒歩14分
大阪府寝屋川市高倉1丁目11-18
- 総階数
- 2階建
- 築年数
- 47年7ヶ月
- 建物構造
- 木造
バス・トイレ別ペット相談間取り図
階数
間取り
専有面積
賃料
管理費等
敷金
礼金
特徴
お気に入り
詳細
-
3DK
51.44㎡
5.2万円
不要
- 敷
- 不要
- 礼
- 1.0ヶ月
バス・トイレ別
ペット相談
詳細を見る マンション・アパート忍ケ丘駅より徒歩7分 2階 築13年1ヶ月の賃貸物件
- JR片町線(学研都市線)/忍ケ丘駅 徒歩7分
- JR片町線(学研都市線)/寝屋川公園駅 徒歩16分
大阪府四條畷市岡山東3丁目5-23
- 総階数
- 2階建
- 築年数
- 13年1ヶ月
- 建物構造
- 木造
バス・トイレ別駐車場ありフローリング間取り図
階数
間取り
専有面積
賃料
管理費等
敷金
礼金
特徴
お気に入り
詳細
2階
1LDK
45.07㎡
6.5万円
2,800円
- 敷
- 不要
- 礼
- 100,000円
バス・トイレ別
駐車場あり
フローリング
詳細を見る マンション・アパート四条畷駅より徒歩8分 1階 築1年7ヶ月の賃貸物件
- JR片町線(学研都市線)/四条畷駅 徒歩8分
- JR片町線(学研都市線)/忍ケ丘駅 徒歩22分
大阪府四條畷市南野1丁目15-36
- 総階数
- 3階建
- 築年数
- 1年7ヶ月
- 建物構造
- 木造
バス・トイレ別フローリング追い炊き機能間取り図
階数
間取り
専有面積
賃料
管理費等
敷金
礼金
特徴
お気に入り
詳細
1階
1LDK
34.6㎡
6.9万円
5,500円
- 敷
- 不要
- 礼
- 1.0ヶ月
バス・トイレ別
フローリング
追い炊き機能
詳細を見る マンション・アパートアンソレイエ忍ケ丘 2階 築15年1ヶ月の賃貸物件
- JR片町線(学研都市線)/忍ケ丘駅 徒歩8分
- JR片町線(学研都市線)/寝屋川公園駅 徒歩26分
大阪府四條畷市大字清瀧48-1
- 総階数
- 2階建
- 築年数
- 15年1ヶ月
- 建物構造
- 木造
バス・トイレ別フローリング新着間取り図
階数
間取り
専有面積
賃料
管理費等
敷金
礼金
特徴
お気に入り
詳細
2階
2LDK
51.14㎡
7.05万円
4,100円
- 敷
- 不要
- 礼
- 110,000円
バス・トイレ別
フローリング
新着
詳細を見る ほかの部屋を検索中…ほかの部屋は見つかりませんでしたマンション・アパート忍ケ丘駅より徒歩8分 5階 築25年1ヶ月の賃貸物件
- JR片町線(学研都市線)/忍ケ丘駅 徒歩8分
- JR片町線(学研都市線)/寝屋川公園駅 徒歩25分
大阪府四條畷市岡山2丁目19-16
- 総階数
- 7階建
- 築年数
- 25年1ヶ月
- 建物構造
- RC
バス・トイレ別フローリングオートロック間取り図
階数
間取り
専有面積
賃料
管理費等
敷金
礼金
特徴
お気に入り
詳細
5階
2SLDK
67.16㎡
9万円
10,000円
- 敷
- 不要
- 礼
- 150,000円
バス・トイレ別
フローリング
オートロック
詳細を見る 忍ケ丘駅より徒歩9分 築44年11ヶ月の賃貸物件
- JR片町線(学研都市線)/忍ケ丘駅 徒歩9分
- JR片町線(学研都市線)/四条畷駅 徒歩20分
大阪府四條畷市中野本町12-35
- 総階数
- 2階建
- 築年数
- 44年11ヶ月
- 建物構造
- 木造
バス・トイレ別ペット相談フローリング間取り図
階数
間取り
専有面積
賃料
管理費等
敷金
礼金
特徴
お気に入り
詳細
-
3DK
54.04㎡
5.5万円
5,000円
- 敷
- 不要
- 礼
- 不要
バス・トイレ別
ペット相談
フローリング
詳細を見る マンション・アパートメモリー近藤 3階 築35年1ヶ月の賃貸物件
- JR片町線(学研都市線)/忍ケ丘駅 徒歩11分
- JR片町線(学研都市線)/寝屋川公園駅 徒歩20分
大阪府四條畷市岡山5丁目4-7
- 総階数
- 3階建
- 築年数
- 35年1ヶ月
- 建物構造
- 鉄骨造
バス・トイレ別駐車場あり保証人不要間取り図
階数
間取り
専有面積
賃料
管理費等
敷金
礼金
特徴
お気に入り
詳細
3階
2DK
48.47㎡
4.5万円
4,400円
- 敷
- 2.0ヶ月
- 礼
- 45,000円
バス・トイレ別
駐車場あり
保証人不要
詳細を見る ほかの部屋を検索中…ほかの部屋は見つかりませんでしたマンション・アパートクレメント岡山 3階 築15年2ヶ月の賃貸物件
- JR片町線(学研都市線)/忍ケ丘駅 徒歩13分
- JR片町線(学研都市線)/寝屋川公園駅 徒歩23分
大阪府四條畷市岡山5丁目18-15
- 総階数
- 3階建
- 築年数
- 15年2ヶ月
- 建物構造
- RC
バス・トイレ別駐車場ありフローリング間取り図
階数
間取り
専有面積
賃料
管理費等
敷金
礼金
特徴
お気に入り
詳細
3階
1K
29.5㎡
5.7万円
3,500円
- 敷
- 不要
- 礼
- 80,000円
バス・トイレ別
駐車場あり
フローリング
詳細を見る ほかの部屋を検索中…ほかの部屋は見つかりませんでしたマンション・アパートグッデイ古都里 1階 築25年6ヶ月の賃貸物件
- JR片町線(学研都市線)/忍ケ丘駅 徒歩13分
- JR片町線(学研都市線)/四条畷駅 徒歩27分
大阪府四條畷市清滝中町10-26
- 総階数
- 2階建
- 築年数
- 25年6ヶ月
- 建物構造
- 軽量鉄骨
バス・トイレ別駐車場ありフローリング間取り図
階数
間取り
専有面積
賃料
管理費等
敷金
礼金
特徴
お気に入り
詳細
1階
2LDK
52.84㎡
6.1万円
4,000円
- 敷
- 不要
- 礼
- 1.0ヶ月
バス・トイレ別
駐車場あり
フローリング
詳細を見る ほかの部屋を検索中…ほかの部屋は見つかりませんでしたマンション・アパート忍ケ丘駅より徒歩16分 1階 築20年10ヶ月の賃貸物件
- JR片町線(学研都市線)/忍ケ丘駅 徒歩16分
- JR片町線(学研都市線)/四条畷駅 徒歩23分
大阪府四條畷市西中野1丁目8-74
- 総階数
- 2階建
- 築年数
- 20年10ヶ月
- 建物構造
- 木造
バス・トイレ別駐車場ありフローリング間取り図
階数
間取り
専有面積
賃料
管理費等
敷金
礼金
特徴
お気に入り
詳細
1階
2LDK
54.75㎡
6.55万円
3,300円
- 敷
- 不要
- 礼
- 不要
バス・トイレ別
駐車場あり
フローリング
詳細を見る 四条畷駅より徒歩21分 築52年1ヶ月の賃貸物件
- JR片町線(学研都市線)/四条畷駅 徒歩21分
- JR片町線(学研都市線)/忍ケ丘駅 徒歩28分
大阪府四條畷市北出町
- 総階数
- 2階建
- 築年数
- 52年1ヶ月
- 建物構造
- 木造
バス・トイレ別ペット相談間取り図
階数
間取り
専有面積
賃料
管理費等
敷金
礼金
特徴
お気に入り
詳細
-
3DK
42.72㎡
3.8万円
不要
- 敷
- 不要
- 礼
- 50,000円
バス・トイレ別
ペット相談
詳細を見る
20件中1〜20件を表示


この店舗からのコメント
お客様のニーズに応え、ひとりひとりのライフスタイルに合ったお家を提供することが、私どもの仕事と考えております。JR学研都市線沿線の物件情報ならお任せください。ご来店をお待ち致しております。