株式会社京都ライフ 京田辺店の詳細情報
| アクセス | 片町線/京田辺 徒歩5分 | ||||
|---|---|---|---|---|---|
| 住所 | 京都府京田辺市田辺中央1丁目7-11 | ||||
| 営業時間 | 9:30~19:00 | ||||
| 定休日 | 4/21〜9/20迄の毎週水曜定休日、盆、年末年始 | ||||
| 電話番号 | 0774-68-5300 | ||||
株式会社京都ライフ 京田辺店の周辺地図
店舗の特徴
駅のそば(歩3分以内)、女性スタッフ対応、引越し業者の紹介可、法人の契約取扱い、賃貸管理業務
ニフティ不動産に掲載中の物件情報
| 1R~1LDK | 2K~2LDK | 3K~3LDK | 4K~4LDK | 5K~ | |
|---|---|---|---|---|---|
| 賃貸 | 9,499件 | 2,491件 | 954件 | 161件 | 69件 |
| 新築マンション | - | - | - | - | - |
| 中古マンション | - | - | - | - | - |
| 新築戸建 | - | - | - | - | - |
| 中古戸建 | - | - | - | - | - |
| ~50㎡ | 50~80㎡ | 80~100㎡ | 100~130㎡ | 130㎡~ | |
| 土地 | - | - | - | - | - |
不動産会社情報の精度向上にご協力をお願いいたします。不動産会社情報に誤りがある場合はこちらよりご連絡ください。
株式会社京都ライフ 京田辺店の物件一覧
並び替え
マンション・アパート竹田駅より徒歩2分 2階 築31年9ヶ月の賃貸物件
- 地下鉄烏丸線/竹田駅 徒歩2分
- 近鉄京都線/竹田駅 徒歩2分
- 地下鉄烏丸線/くいな橋駅 徒歩12分
京都府京都市伏見区竹田西桶ノ井町
- 総階数
- 2階建
- 築年数
- 31年9ヶ月
- 建物構造
- 軽量鉄骨
バス・トイレ別フローリング保証人不要間取り図
階数
間取り
専有面積
賃料
管理費等
敷金
礼金
特徴
お気に入り
詳細
2階
1K
22.77㎡
5.2万円
5,000円
- 敷
- 不要
- 礼
- 52,000円
バス・トイレ別
フローリング
保証人不要
詳細を見る マンション・アパート山科駅より徒歩3分 3階 築25年10ヶ月の賃貸物件
- JR東海道本線/山科駅 徒歩3分
- 地下鉄東西線/東野駅 徒歩13分
- 地下鉄東西線/山科駅 徒歩2分
京都府京都市山科区安朱南屋敷町
- 総階数
- 6階建
- 築年数
- 25年10ヶ月
- 建物構造
- 鉄筋コン
バス・トイレ別フローリングオートロック間取り図
階数
間取り
専有面積
賃料
管理費等
敷金
礼金
特徴
お気に入り
詳細
3階
1K
19.02㎡
5.2万円
6,000円
- 敷
- 50,000円
- 礼
- 100,000円
バス・トイレ別
フローリング
オートロック
詳細を見る マンション・アパートメゾン・ドゥ・シュウ 1階 築17年6ヶ月の賃貸物件
- 阪急嵐山線/上桂駅 徒歩3分
- 阪急京都線/桂駅 徒歩18分
- 阪急嵐山線/松尾大社駅 徒歩22分
京都府京都市西京区上桂宮ノ後町
- 総階数
- 2階建
- 築年数
- 17年6ヶ月
- 建物構造
- 鉄筋コン
バス・トイレ別駐車場ありフローリング間取り図
階数
間取り
専有面積
賃料
管理費等
敷金
礼金
特徴
お気に入り
詳細
1階
1K
29.48㎡
5.2万円
5,000円
- 敷
- 50,000円
- 礼
- 50,000円
バス・トイレ別
駐車場あり
フローリング
詳細を見る ほかの部屋を検索中…ほかの部屋は見つかりませんでしたマンション・アパート伏見桃山駅より徒歩2分 3階 築35年4ヶ月の賃貸物件
- 京阪本線/伏見桃山駅 徒歩2分
- 近鉄京都線/桃山御陵前駅 徒歩3分
- 近鉄京都線/近鉄丹波橋駅 徒歩8分
京都府京都市伏見区魚屋町
- 総階数
- 5階建
- 築年数
- 35年4ヶ月
- 建物構造
- 鉄骨
バス・トイレ別フローリング南向き間取り図
階数
間取り
専有面積
賃料
管理費等
敷金
礼金
特徴
お気に入り
詳細
3階
1K
20.45㎡
5.2万円
5,000円
- 敷
- 50,000円
- 礼
- 50,000円
バス・トイレ別
フローリング
南向き
詳細を見る マンション・アパート清水五条駅より徒歩2分 5階 築5年8ヶ月の賃貸物件
- 京阪本線/清水五条駅 徒歩2分
- 京阪本線/七条駅 徒歩9分
- JR東海道本線/京都駅 徒歩22分
京都府京都市東山区鞘町1
- 総階数
- 6階建
- 築年数
- 5年8ヶ月
- 建物構造
- 鉄骨
ペット相談フローリングオートロック間取り図
階数
間取り
専有面積
賃料
管理費等
敷金
礼金
特徴
お気に入り
詳細
5階
1R
14.79㎡
5.2万円
5,000円
- 敷
- 不要
- 礼
- 120,000円
ペット相談
フローリング
オートロック
詳細を見る マンション・アパート三山木駅より徒歩2分 5階 築13年9ヶ月の賃貸物件
- 近鉄京都線/三山木駅 徒歩2分
- JR片町線(学研都市線)/JR三山木駅 徒歩1分
京都府京田辺市三山木中央8丁目
- 総階数
- 8階建
- 築年数
- 13年9ヶ月
- 建物構造
- 鉄骨造
バス・トイレ別駐車場ありフローリング間取り図
階数
間取り
専有面積
賃料
管理費等
敷金
礼金
特徴
お気に入り
詳細
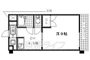
5階
1K
25.42㎡
5.3万円
5,000円
- 敷
- 50,000円
- 礼
- 50,000円
バス・トイレ別
駐車場あり
フローリング
詳細を見る マンション・アパートリファイン椥辻 2階 築17年2ヶ月の賃貸物件
- 地下鉄東西線/椥辻駅 徒歩3分
- 地下鉄東西線/東野駅 徒歩13分
- 地下鉄東西線/小野駅 徒歩17分
京都府京都市山科区椥辻池尻町
- 総階数
- 3階建
- 築年数
- 17年2ヶ月
- 建物構造
- 鉄骨
バス・トイレ別フローリングオートロック間取り図
階数
間取り
専有面積
賃料
管理費等
敷金
礼金
特徴
お気に入り
詳細
2階
1K
26.75㎡
5.3万円
5,000円
- 敷
- 不要
- 礼
- 53,000円
バス・トイレ別
フローリング
オートロック
詳細を見る ほかの部屋を検索中…ほかの部屋は見つかりませんでしたマンション・アパートリファイン椥辻 1階 築17年2ヶ月の賃貸物件
- 地下鉄東西線/椥辻駅 徒歩3分
- 地下鉄東西線/東野駅 徒歩13分
- 地下鉄東西線/小野駅 徒歩17分
京都府京都市山科区椥辻池尻町
- 総階数
- 3階建
- 築年数
- 17年2ヶ月
- 建物構造
- 鉄骨
バス・トイレ別フローリングオートロック間取り図
階数
間取り
専有面積
賃料
管理費等
敷金
礼金
特徴
お気に入り
詳細
1階
1K
26.75㎡
5.3万円
5,000円
- 敷
- 不要
- 礼
- 53,000円
バス・トイレ別
フローリング
オートロック
詳細を見る ほかの部屋を検索中…ほかの部屋は見つかりませんでしたマンション・アパート唐橋前駅より徒歩2分 1階 築16年3ヶ月の賃貸物件
- 京阪石山坂本線/唐橋前駅 徒歩2分
- JR東海道本線/石山駅 徒歩9分
- 京阪石山坂本線/京阪石山駅 徒歩9分
滋賀県大津市唐橋町
- 総階数
- 2階建
- 築年数
- 16年3ヶ月
- 建物構造
- 木造
バス・トイレ別フローリング保証人不要間取り図
階数
間取り
専有面積
賃料
管理費等
敷金
礼金
特徴
お気に入り
詳細
1階
1K
19.87㎡
5.3万円
7,000円
- 敷
- 不要
- 礼
- 53,000円
バス・トイレ別
フローリング
保証人不要
詳細を見る マンション・アパートブレアコート北山 2階 築27年10ヶ月の賃貸物件
- 地下鉄烏丸線/北山駅 徒歩4分
- 地下鉄烏丸線/松ケ崎駅 徒歩8分
- 地下鉄烏丸線/北大路駅 徒歩24分
京都府京都市左京区下鴨北芝町
- 総階数
- 2階建
- 築年数
- 27年10ヶ月
- 建物構造
- 鉄骨
駐車場ありフローリングオートロック間取り図
階数
間取り
専有面積
賃料
管理費等
敷金
礼金
特徴
お気に入り
詳細
2階
1K
22.62㎡
5.3万円
5,000円
- 敷
- 不要
- 礼
- 不要
駐車場あり
フローリング
オートロック
詳細を見る ほかの部屋を検索中…ほかの部屋は見つかりませんでしたマンション・アパートカーサフォンテA 1階 築21年6ヶ月の賃貸物件
- 京阪本線/枚方公園駅 徒歩2分
- 京阪本線/枚方市駅 徒歩13分
大阪府枚方市枚方元町
- 総階数
- 2階建
- 築年数
- 21年6ヶ月
- 建物構造
- 軽量鉄骨
バス・トイレ別保証人不要角部屋間取り図
階数
間取り
専有面積
賃料
管理費等
敷金
礼金
特徴
お気に入り
詳細
1階
1K
27.08㎡
5.3万円
3,000円
- 敷
- 不要
- 礼
- 不要
バス・トイレ別
保証人不要
角部屋
詳細を見る ほかの部屋を検索中…ほかの部屋は見つかりませんでしたマンション・アパート足立ハイツ太秦 4階 築47年7ヶ月の賃貸物件
- 地下鉄東西線/太秦天神川駅 徒歩2分
- JR山陰本線/花園駅 徒歩12分
- 京福電鉄嵐山本線/蚕ノ社駅 徒歩1分
京都府京都市右京区太秦森ケ前町
- 総階数
- 4階建
- 築年数
- 47年7ヶ月
- 建物構造
- 鉄筋コン
バス・トイレ別ペット相談フローリング間取り図
階数
間取り
専有面積
賃料
管理費等
敷金
礼金
特徴
お気に入り
詳細
4階
2DK
39.76㎡
5.4万円
3,000円
- 敷
- 150,000円
- 礼
- 不要
バス・トイレ別
ペット相談
フローリング
詳細を見る ほかの部屋を検索中…ほかの部屋は見つかりませんでしたマンション・アパート棚倉駅より徒歩9分 2階 築25年10ヶ月の賃貸物件
- JR奈良線/棚倉駅 徒歩9分
- JR奈良線/上狛駅 徒歩34分
京都府木津川市山城町平尾不知田
- 総階数
- 2階建
- 築年数
- 25年10ヶ月
- 建物構造
- 鉄骨造
バス・トイレ別駐車場ありフローリング間取り図
階数
間取り
専有面積
賃料
管理費等
敷金
礼金
特徴
お気に入り
詳細
2階
2LDK
52.2㎡
5.4万円
3,000円
- 敷
- 54,000円
- 礼
- 不要
バス・トイレ別
駐車場あり
フローリング
詳細を見る マンション・アパート円町駅より徒歩3分 4階 築35年9ヶ月の賃貸物件
- JR山陰本線/円町駅 徒歩3分
- 地下鉄東西線/西大路御池駅 徒歩10分
- 地下鉄東西線/二条駅 徒歩18分
京都府京都市中京区西ノ京中御門西町
- 総階数
- 4階建
- 築年数
- 35年9ヶ月
- 建物構造
- 鉄骨
バス・トイレ別フローリング駐輪場あり間取り図
階数
間取り
専有面積
賃料
管理費等
敷金
礼金
特徴
お気に入り
詳細
4階
1DK
26.46㎡
5.4万円
4,000円
- 敷
- 不要
- 礼
- 不要
バス・トイレ別
フローリング
駐輪場あり
詳細を見る マンション・アパート東山駅より徒歩3分 2階 築29年11ヶ月の賃貸物件
- 地下鉄東西線/東山駅 徒歩3分
- 京阪本線/三条駅 徒歩12分
- 地下鉄東西線/三条京阪駅 徒歩9分
京都府京都市東山区西町
- 総階数
- 4階建
- 築年数
- 29年11ヶ月
- 建物構造
- 鉄骨
バス・トイレ別フローリングオートロック間取り図
階数
間取り
専有面積
賃料
管理費等
敷金
礼金
特徴
お気に入り
詳細
2階
1K
22.68㎡
5.4万円
5,000円
- 敷
- 50,000円
- 礼
- 50,000円
バス・トイレ別
フローリング
オートロック
詳細を見る マンション・アパート近鉄丹波橋駅より徒歩2分 2階 築28年3ヶ月の賃貸物件
- 近鉄京都線/近鉄丹波橋駅 徒歩2分
- 京阪本線/丹波橋駅 徒歩2分
- 近鉄京都線/桃山御陵前駅 徒歩6分
京都府京都市伏見区桃山羽柴長吉西町
- 総階数
- 2階建
- 築年数
- 28年3ヶ月
- 建物構造
- 木造
バス・トイレ別フローリングオートロック間取り図
階数
間取り
専有面積
賃料
管理費等
敷金
礼金
特徴
お気に入り
詳細
2階
1K
25.56㎡
5.4万円
4,000円
- 敷
- 不要
- 礼
- 不要
バス・トイレ別
フローリング
オートロック
詳細を見る マンション・アパート国際会館駅より徒歩3分 1階 築15年8ヶ月の賃貸物件
- 地下鉄烏丸線/国際会館駅 徒歩3分
- 叡山電鉄鞍馬線/岩倉駅 徒歩15分
- 叡山電鉄叡山本線/宝ケ池駅 徒歩12分
京都府京都市左京区岩倉中大鷺町
- 総階数
- 2階建
- 築年数
- 15年8ヶ月
- 建物構造
- 木造
バス・トイレ別フローリングコンロ2口以上間取り図
階数
間取り
専有面積
賃料
管理費等
敷金
礼金
特徴
お気に入り
詳細
1階
1K
20.28㎡
5.4万円
7,000円
- 敷
- 不要
- 礼
- 54,000円
バス・トイレ別
フローリング
コンロ2口以上
詳細を見る マンション・アパート三山木駅より徒歩2分 5階 築13年9ヶ月の賃貸物件
- 近鉄京都線/三山木駅 徒歩2分
- JR片町線(学研都市線)/JR三山木駅 徒歩1分
京都府京田辺市三山木中央8丁目
- 総階数
- 8階建
- 築年数
- 13年9ヶ月
- 建物構造
- 鉄骨造
バス・トイレ別駐車場ありフローリング間取り図
階数
間取り
専有面積
賃料
管理費等
敷金
礼金
特徴
お気に入り
詳細
5階
1K
26.19㎡
5.4万円
5,000円
- 敷
- 50,000円
- 礼
- 50,000円
バス・トイレ別
駐車場あり
フローリング
詳細を見る マンション・アパート清水五条駅より徒歩2分 2階 築5年8ヶ月の賃貸物件
- 京阪本線/清水五条駅 徒歩2分
- 京阪本線/七条駅 徒歩9分
- JR東海道本線/京都駅 徒歩22分
京都府京都市東山区鞘町1
- 総階数
- 6階建
- 築年数
- 5年8ヶ月
- 建物構造
- 鉄骨
ペット相談フローリングオートロック間取り図
階数
間取り
専有面積
賃料
管理費等
敷金
礼金
特徴
お気に入り
詳細
2階
1R
14.79㎡
5.4万円
6,000円
- 敷
- 不要
- 礼
- 130,000円
ペット相談
フローリング
オートロック
詳細を見る マンション・アパートピースフル京都 5階 築37年4ヶ月の賃貸物件
- JR東海道本線/京都駅 徒歩2分
- 地下鉄烏丸線/京都駅 徒歩2分
- 近鉄京都線/京都駅 徒歩2分
京都府京都市下京区東塩小路町
- 総階数
- 5階建
- 築年数
- 37年4ヶ月
- 建物構造
- 鉄骨
バス・トイレ別フローリングオートロック間取り図
階数
間取り
専有面積
賃料
管理費等
敷金
礼金
特徴
お気に入り
詳細
5階
1K
21.13㎡
5.4万円
6,000円
- 敷
- 不要
- 礼
- 54,000円
バス・トイレ別
フローリング
オートロック
詳細を見る ほかの部屋を検索中…ほかの部屋は見つかりませんでしたマンション・アパート烏丸御池駅より徒歩3分 6階 築25年2ヶ月の賃貸物件
- 地下鉄烏丸線/烏丸御池駅 徒歩3分
- 地下鉄烏丸線/丸太町駅 徒歩7分
- 地下鉄東西線/二条城前駅 徒歩12分
京都府京都市中京区御池之町
- 総階数
- 10階建
- 築年数
- 25年2ヶ月
- 建物構造
- 鉄筋コン
バス・トイレ別フローリングオートロック間取り図
階数
間取り
専有面積
賃料
管理費等
敷金
礼金
特徴
お気に入り
詳細
6階
1K
18.9㎡
5.49万円
11,000円
- 敷
- 不要
- 礼
- 54,900円
バス・トイレ別
フローリング
オートロック
詳細を見る マンション・アパート小野駅より徒歩3分 4階 築10年9ヶ月の賃貸物件
- 地下鉄東西線/小野駅 徒歩3分
- 地下鉄東西線/醍醐駅 徒歩12分
- 地下鉄東西線/椥辻駅 徒歩18分
京都府京都市山科区勧修寺東出町
- 総階数
- 5階建
- 築年数
- 10年9ヶ月
- 建物構造
- 鉄骨
バス・トイレ別フローリングオートロック間取り図
階数
間取り
専有面積
賃料
管理費等
敷金
礼金
特徴
お気に入り
詳細
4階
1K
24.09㎡
5.5万円
6,000円
- 敷
- 不要
- 礼
- 55,000円
バス・トイレ別
フローリング
オートロック
詳細を見る マンション・アパートクラマグチフラット 3階 築38年11ヶ月の賃貸物件
- 地下鉄烏丸線/鞍馬口駅 徒歩2分
- 地下鉄烏丸線/今出川駅 徒歩10分
- 地下鉄烏丸線/北大路駅 徒歩10分
京都府京都市北区小山下総町
- 総階数
- 3階建
- 築年数
- 38年11ヶ月
- 建物構造
- 鉄筋コン
バス・トイレ別新着オートロック間取り図
階数
間取り
専有面積
賃料
管理費等
敷金
礼金
特徴
お気に入り
詳細
3階
1K
17.0㎡
5.5万円
4,000円
- 敷
- 不要
- 礼
- 55,000円
バス・トイレ別
新着
オートロック
詳細を見る ほかの部屋を検索中…ほかの部屋は見つかりませんでしたマンション・アパートヴァン四条大宮 9階 築28年11ヶ月の賃貸物件
- 阪急京都線/大宮駅 徒歩2分
- 地下鉄烏丸線/四条駅 徒歩10分
- JR山陰本線/二条駅 徒歩15分
京都府京都市下京区唐津屋町
- 総階数
- 9階建
- 築年数
- 28年11ヶ月
- 建物構造
- 鉄筋コン
バス・トイレ別ペット相談フローリング間取り図
階数
間取り
専有面積
賃料
管理費等
敷金
礼金
特徴
お気に入り
詳細
9階
1K
21.9㎡
5.5万円
6,000円
- 敷
- 不要
- 礼
- 不要
バス・トイレ別
ペット相談
フローリング
詳細を見る ほかの部屋を検索中…ほかの部屋は見つかりませんでしたマンション・アパート小野駅より徒歩3分 1階 築10年9ヶ月の賃貸物件
- 地下鉄東西線/小野駅 徒歩3分
- 地下鉄東西線/醍醐駅 徒歩12分
- 地下鉄東西線/椥辻駅 徒歩18分
京都府京都市山科区勧修寺東出町
- 総階数
- 5階建
- 築年数
- 10年9ヶ月
- 建物構造
- 鉄骨
バス・トイレ別フローリングオートロック間取り図
階数
間取り
専有面積
賃料
管理費等
敷金
礼金
特徴
お気に入り
詳細
1階
1K
27.54㎡
5.5万円
6,000円
- 敷
- 不要
- 礼
- 55,000円
バス・トイレ別
フローリング
オートロック
詳細を見る マンション・アパート並河駅より徒歩2分 2階 築27年6ヶ月の賃貸物件
- JR山陰本線/並河駅 徒歩2分
- JR山陰本線/千代川駅 徒歩30分
- JR山陰本線/亀岡駅 徒歩43分
京都府亀岡市大井町並河2
- 総階数
- 4階建
- 築年数
- 27年6ヶ月
- 建物構造
- 鉄骨
バス・トイレ別フローリング駐輪場あり間取り図
階数
間取り
専有面積
賃料
管理費等
敷金
礼金
特徴
お気に入り
詳細
2階
1LDK
34.23㎡
5.5万円
4,000円
- 敷
- 50,000円
- 礼
- 50,000円
バス・トイレ別
フローリング
駐輪場あり
詳細を見る マンション・アパート松ケ崎駅より徒歩2分 3階 築29年3ヶ月の賃貸物件
- 地下鉄烏丸線/松ケ崎駅 徒歩2分
- 叡山電鉄叡山本線/修学院駅 徒歩14分
- 地下鉄烏丸線/北山駅 徒歩14分
京都府京都市左京区松ケ崎海尻町
- 総階数
- 3階建
- 築年数
- 29年3ヶ月
- 建物構造
- 鉄骨
バス・トイレ別フローリング新着間取り図
階数
間取り
専有面積
賃料
管理費等
敷金
礼金
特徴
お気に入り
詳細
3階
1K
24.0㎡
5.5万円
4,000円
- 敷
- 不要
- 礼
- 55,000円
バス・トイレ別
フローリング
新着
詳細を見る マンション・アパートバインオークMETS 4階 築29年1ヶ月の賃貸物件
- 地下鉄東西線/京都市役所前駅 徒歩4分
- 地下鉄烏丸線/烏丸御池駅 徒歩11分
- 京阪本線/三条駅 徒歩10分
京都府京都市中京区上本能寺前町
- 総階数
- 7階建
- 築年数
- 29年1ヶ月
- 建物構造
- 鉄骨
オートロック保証人不要駐輪場あり間取り図
階数
間取り
専有面積
賃料
管理費等
敷金
礼金
特徴
お気に入り
詳細
4階
1K
17.8㎡
5.5万円
9,500円
- 敷
- 不要
- 礼
- 55,000円
オートロック
保証人不要
駐輪場あり
詳細を見る ほかの部屋を検索中…ほかの部屋は見つかりませんでしたマンション・アパート鞍馬口駅より徒歩2分 3階 築24年2ヶ月の賃貸物件
- 地下鉄烏丸線/鞍馬口駅 徒歩2分
- 地下鉄烏丸線/今出川駅 徒歩11分
- 京阪鴨東線/出町柳駅 徒歩26分
京都府京都市上京区内構町
- 総階数
- 5階建
- 築年数
- 24年2ヶ月
- 建物構造
- 鉄筋コン
バス・トイレ別フローリングオートロック間取り図
階数
間取り
専有面積
賃料
管理費等
敷金
礼金
特徴
お気に入り
詳細
3階
1K
21.06㎡
5.5万円
9,000円
- 敷
- 不要
- 礼
- 55,000円
バス・トイレ別
フローリング
オートロック
詳細を見る マンション・アパート長岡天神駅より徒歩2分 1階 築32年4ヶ月の賃貸物件
- 阪急京都線/長岡天神駅 徒歩2分
- JR東海道本線/長岡京駅 徒歩9分
- 阪急京都線/西山天王山駅 徒歩23分
京都府長岡京市開田3
- 総階数
- 2階建
- 築年数
- 32年4ヶ月
- 建物構造
- 鉄骨
フローリング駐輪場ありインターネット対応間取り図
階数
間取り
専有面積
賃料
管理費等
敷金
礼金
特徴
お気に入り
詳細
1階
1K
19.39㎡
5.5万円
不要
- 敷
- 55,000円
- 礼
- 165,000円
フローリング
駐輪場あり
インターネット対応
詳細を見る マンション・アパート三山木駅より徒歩2分 4階 築13年9ヶ月の賃貸物件
- 近鉄京都線/三山木駅 徒歩2分
- JR片町線(学研都市線)/JR三山木駅 徒歩1分
京都府京田辺市三山木中央8丁目
- 総階数
- 8階建
- 築年数
- 13年9ヶ月
- 建物構造
- 鉄骨造
バス・トイレ別駐車場ありフローリング間取り図
階数
間取り
専有面積
賃料
管理費等
敷金
礼金
特徴
お気に入り
詳細
4階
1K
26.19㎡
5.5万円
5,000円
- 敷
- 50,000円
- 礼
- 50,000円
バス・トイレ別
駐車場あり
フローリング
詳細を見る マンション・アパート岩倉駅より徒歩2分 1階 築35年9ヶ月の賃貸物件
- 叡山電鉄鞍馬線/岩倉駅 徒歩2分
- 地下鉄烏丸線/国際会館駅 徒歩15分
- 叡山電鉄鞍馬線/八幡前駅 徒歩15分
京都府京都市左京区岩倉忠在地町
- 総階数
- 3階建
- 築年数
- 35年9ヶ月
- 建物構造
- 鉄骨
バス・トイレ別フローリングオートロック間取り図
階数
間取り
専有面積
賃料
管理費等
敷金
礼金
特徴
お気に入り
詳細
1階
1DK
34.74㎡
5.5万円
5,000円
- 敷
- 30,000円
- 礼
- 80,000円
バス・トイレ別
フローリング
オートロック
詳細を見る マンション・アパート烏丸御池駅より徒歩2分 5階 築36年9ヶ月の賃貸物件
- 地下鉄烏丸線/烏丸御池駅 徒歩2分
- 地下鉄烏丸線/四条駅 徒歩7分
- 阪急京都線/烏丸駅 徒歩7分
京都府京都市中京区梅忠町
- 総階数
- 11階建
- 築年数
- 36年9ヶ月
- 建物構造
- 鉄筋コン
バス・トイレ別駐車場ありフローリング間取り図
階数
間取り
専有面積
賃料
管理費等
敷金
礼金
特徴
お気に入り
詳細
5階
1R
23.37㎡
5.5万円
8,000円
- 敷
- 165,000円
- 礼
- 不要
バス・トイレ別
駐車場あり
フローリング
詳細を見る マンション・アパート島ノ関駅より徒歩2分 4階 築17年5ヶ月の賃貸物件
- 京阪石山坂本線/島ノ関駅 徒歩2分
- 京阪京津線/びわ湖浜大津駅 徒歩8分
- 京阪石山坂本線/びわ湖浜大津駅 徒歩8分
滋賀県大津市島の関
- 総階数
- 11階建
- 築年数
- 17年5ヶ月
- 建物構造
- 鉄筋コン
バス・トイレ別フローリングオートロック間取り図
階数
間取り
専有面積
賃料
管理費等
敷金
礼金
特徴
お気に入り
詳細
4階
1K
26.23㎡
5.5万円
6,000円
- 敷
- 50,000円
- 礼
- 50,000円
バス・トイレ別
フローリング
オートロック
詳細を見る マンション・アパート竹田駅より徒歩3分 5階 築21年9ヶ月の賃貸物件
- 近鉄京都線/竹田駅 徒歩3分
- 地下鉄烏丸線/くいな橋駅 徒歩11分
- 京阪本線/藤森駅 徒歩14分
京都府京都市伏見区竹田桶ノ井町
- 総階数
- 5階建
- 築年数
- 21年9ヶ月
- 建物構造
- 鉄筋コン
バス・トイレ別フローリングオートロック間取り図
階数
間取り
専有面積
賃料
管理費等
敷金
礼金
特徴
お気に入り
詳細
5階
1K
22.55㎡
5.5万円
7,000円
- 敷
- 70,000円
- 礼
- 60,000円
バス・トイレ別
フローリング
オートロック
詳細を見る マンション・アパート丹波口駅より徒歩3分 3階 築24年10ヶ月の賃貸物件
- JR山陰本線/丹波口駅 徒歩3分
- JR山陰本線/梅小路京都西駅 徒歩13分
- 阪急京都線/西院駅 徒歩20分
京都府京都市下京区中堂寺南町
- 総階数
- 8階建
- 築年数
- 24年10ヶ月
- 建物構造
- 鉄骨鉄筋
バス・トイレ別フローリングオートロック間取り図
階数
間取り
専有面積
賃料
管理費等
敷金
礼金
特徴
お気に入り
詳細
3階
1K
23.22㎡
5.5万円
6,000円
- 敷
- 不要
- 礼
- 不要
バス・トイレ別
フローリング
オートロック
詳細を見る マンション・アパート桃山南口駅より徒歩3分 2階 築16年3ヶ月の賃貸物件
- 京阪宇治線/桃山南口駅 徒歩3分
- 京阪宇治線/六地蔵駅 徒歩13分
- JR奈良線/六地蔵駅 徒歩17分
京都府京都市伏見区桃山町丹後
- 総階数
- 2階建
- 築年数
- 16年3ヶ月
- 建物構造
- 軽量鉄骨
バス・トイレ別フローリングコンロ2口以上間取り図
階数
間取り
専有面積
賃料
管理費等
敷金
礼金
特徴
お気に入り
詳細
2階
1K
20.17㎡
5.5万円
5,000円
- 敷
- 不要
- 礼
- 55,000円
バス・トイレ別
フローリング
コンロ2口以上
詳細を見る マンション・アパート島ノ関駅より徒歩2分 9階 築17年5ヶ月の賃貸物件
- 京阪石山坂本線/島ノ関駅 徒歩2分
- 京阪京津線/びわ湖浜大津駅 徒歩8分
- 京阪石山坂本線/びわ湖浜大津駅 徒歩8分
滋賀県大津市島の関
- 総階数
- 11階建
- 築年数
- 17年5ヶ月
- 建物構造
- 鉄筋コン
バス・トイレ別フローリングオートロック間取り図
階数
間取り
専有面積
賃料
管理費等
敷金
礼金
特徴
お気に入り
詳細
9階
1K
25.96㎡
5.5万円
6,000円
- 敷
- 50,000円
- 礼
- 50,000円
バス・トイレ別
フローリング
オートロック
詳細を見る マンション・アパート長岡天神駅より徒歩2分 1階 築32年4ヶ月の賃貸物件
- 阪急京都線/長岡天神駅 徒歩2分
- JR東海道本線/長岡京駅 徒歩9分
- 阪急京都線/西山天王山駅 徒歩23分
京都府長岡京市開田3
- 総階数
- 2階建
- 築年数
- 32年4ヶ月
- 建物構造
- 鉄骨
バス・トイレ別フローリング南向き間取り図
階数
間取り
専有面積
賃料
管理費等
敷金
礼金
特徴
お気に入り
詳細
1階
1K
22.17㎡
5.5万円
3,000円
- 敷
- 55,000円
- 礼
- 110,000円
バス・トイレ別
フローリング
南向き
詳細を見る マンション・アパート四条駅より徒歩3分 4階 築40年1ヶ月の賃貸物件
- 地下鉄烏丸線/四条駅 徒歩3分
- 阪急京都線/烏丸駅 徒歩3分
- 阪急京都線/京都河原町駅 徒歩8分
京都府京都市下京区神明町
- 総階数
- 8階建
- 築年数
- 40年1ヶ月
- 建物構造
- 鉄筋コン
駐車場ありフローリングオートロック間取り図
階数
間取り
専有面積
賃料
管理費等
敷金
礼金
特徴
お気に入り
詳細
4階
1K
20.4㎡
5.5万円
4,500円
- 敷
- 55,000円
- 礼
- 不要
駐車場あり
フローリング
オートロック
詳細を見る


この店舗からのコメント
お部屋探しは当店にお任せください。経験豊富なスタッフがお客様のお部屋探しをお手伝いいたします。