シャーメゾンショップ ウインズリンク株式会社 西院店の詳細情報
| アクセス | 阪急電鉄京都線/西院 徒歩3分 | ||||
|---|---|---|---|---|---|
| 住所 | 京都府京都市右京区西院巽町41 | ||||
| 営業時間 | 9:30~19:00 | ||||
| 定休日 | なし(盆休み8/13〜8/16・年末年始12/27〜1/4) | ||||
| 電話番号 | 075-315-9988 | ||||
シャーメゾンショップ ウインズリンク株式会社 西院店の周辺地図
店舗の特徴
駅のそば(歩3分以内)、年中無休、女性スタッフ対応、保証人不要の相談可、引越し業者の紹介可、法人の契約取扱い、賃貸管理業務、リフォーム対応
ニフティ不動産に掲載中の物件情報
| 1R~1LDK | 2K~2LDK | 3K~3LDK | 4K~4LDK | 5K~ | |
|---|---|---|---|---|---|
| 賃貸 | 4,322件 | 990件 | 368件 | 47件 | 21件 |
| 新築マンション | - | - | - | - | - |
| 中古マンション | - | - | - | - | - |
| 新築戸建 | - | - | - | - | - |
| 中古戸建 | - | - | - | - | - |
| ~50㎡ | 50~80㎡ | 80~100㎡ | 100~130㎡ | 130㎡~ | |
| 土地 | - | - | - | - | - |
不動産会社情報の精度向上にご協力をお願いいたします。不動産会社情報に誤りがある場合はこちらよりご連絡ください。
シャーメゾンショップ ウインズリンク株式会社 西院店の物件一覧
並び替え
マンション・アパート大宮駅より徒歩4分 4階 築13年9ヶ月の賃貸物件
- 阪急京都線/大宮駅 徒歩4分
- 地下鉄烏丸線/四条駅 徒歩14分
- 阪急京都線/烏丸駅 徒歩14分
京都府京都市下京区西田町
- 総階数
- 4階建
- 築年数
- 13年9ヶ月
- 建物構造
- 鉄筋コン
バス・トイレ別フローリング角部屋間取り図
階数
間取り
専有面積
賃料
管理費等
敷金
礼金
特徴
お気に入り
詳細
4階
1K
20.08㎡
5.8万円
4,000円
- 敷
- 不要
- 礼
- 不要
バス・トイレ別
フローリング
角部屋
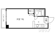
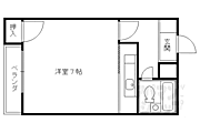
詳細を見る マンション・アパート西院駅より徒歩3分 9階 築33年10ヶ月の賃貸物件
- 阪急京都本線/西院駅 徒歩3分
- 京都地下鉄東西線/西大路御池駅 徒歩13分
京都府京都市右京区西院三蔵町
- 総階数
- 11階建
- 築年数
- 33年10ヶ月
- 建物構造
- SRC
バス・トイレ別フローリングオートロック間取り図
階数
間取り
専有面積
賃料
管理費等
敷金
礼金
特徴
お気に入り
詳細
9階
1K
29.11㎡
5.9万円
6,500円
- 敷
- 不要
- 礼
- 不要
バス・トイレ別
フローリング
オートロック
詳細を見る マンション・アパートレオパレス千石 1階 築25年10ヶ月の賃貸物件
- 京都地下鉄東西線/太秦天神川駅 徒歩7分
- JR山陰本線/太秦駅 徒歩22分
京都府京都市右京区太秦下角田町
- 総階数
- 2階建
- 築年数
- 25年10ヶ月
- 建物構造
- 木造
バス・トイレ別保証人不要コンロ2口以上間取り図
階数
間取り
専有面積
賃料
管理費等
敷金
礼金
特徴
お気に入り
詳細
1階
1K
19.87㎡
5.9万円
5,000円
- 敷
- 不要
- 礼
- 59,000円
バス・トイレ別
保証人不要
コンロ2口以上
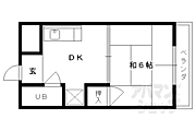
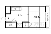
詳細を見る ほかの部屋を検索中…ほかの部屋は見つかりませんでしたマンション・アパート四条駅より徒歩6分 2階 築33年10ヶ月の賃貸物件
- 地下鉄烏丸線/四条駅 徒歩6分
- 阪急京都線/烏丸駅 徒歩6分
- 地下鉄東西線/烏丸御池駅 徒歩10分
京都府京都市下京区西前町
- 総階数
- 2階建
- 築年数
- 33年10ヶ月
- 建物構造
- 木造
新着駐輪場ありインターネット対応間取り図
階数
間取り
専有面積
賃料
管理費等
敷金
礼金
特徴
お気に入り
詳細
2階
1K
18.21㎡
5.9万円
5,000円
- 敷
- 不要
- 礼
- 118,000円
新着
駐輪場あり
インターネット対応
詳細を見る マンション・アパート西大路駅より徒歩3分 2階 築16年10ヶ月の賃貸物件
- JR東海道・山陽本線/西大路駅 徒歩3分
- 阪急京都本線/西京極駅 徒歩34分
京都府京都市南区唐橋大宮尻町
- 総階数
- 5階建
- 築年数
- 16年10ヶ月
- 建物構造
- 鉄骨造
バス・トイレ別フローリングオートロック間取り図
階数
間取り
専有面積
賃料
管理費等
敷金
礼金
特徴
お気に入り
詳細
2階
1R
30.96㎡
5.9万円
5,800円
- 敷
- 不要
- 礼
- 59,000円
バス・トイレ別
フローリング
オートロック
詳細を見る マンション・アパート四条駅より徒歩6分 2階 築33年10ヶ月の賃貸物件
- 京都市営烏丸線/四条駅 徒歩6分
- 阪急京都本線/烏丸駅 徒歩6分
京都府京都市下京区仏光寺通高倉西入西前町
- 総階数
- 2階建
- 築年数
- 33年10ヶ月
- 建物構造
- 木造
駐輪場あり間取り図
階数
間取り
専有面積
賃料
管理費等
敷金
礼金
特徴
お気に入り
詳細
2階
1K
18.21㎡
5.9万円
5,000円
- 敷
- 不要
- 礼
- 118,000円
駐輪場あり
詳細を見る マンション・アパートアブレスト四条大宮 3階 築28年10ヶ月の賃貸物件
- 阪急京都線/大宮駅 徒歩3分
- 地下鉄烏丸線/四条駅 徒歩11分
- 阪急京都線/烏丸駅 徒歩12分
京都府京都市下京区丸屋町
- 総階数
- 5階建
- 築年数
- 28年10ヶ月
- 建物構造
- 鉄筋コン
バス・トイレ別フローリングオートロック間取り図
階数
間取り
専有面積
賃料
管理費等
敷金
礼金
特徴
お気に入り
詳細
3階
1K
24.0㎡
5.9万円
5,000円
- 敷
- 不要
- 礼
- 不要
バス・トイレ別
フローリング
オートロック
詳細を見る ほかの部屋を検索中…ほかの部屋は見つかりませんでしたマンション・アパートアブレスト四条大宮 3階 築28年10ヶ月の賃貸物件
- 阪急京都本線/大宮駅 徒歩3分
- 京都市営烏丸線/四条駅 徒歩11分
京都府京都市下京区綾小路通猪熊西入ル丸屋町
- 総階数
- 5階建
- 築年数
- 28年10ヶ月
- 建物構造
- RC
バス・トイレ別フローリングオートロック間取り図
階数
間取り
専有面積
賃料
管理費等
敷金
礼金
特徴
お気に入り
詳細
3階
1K
24.0㎡
5.9万円
5,000円
- 敷
- 不要
- 礼
- 不要
バス・トイレ別
フローリング
オートロック
詳細を見る ほかの部屋を検索中…ほかの部屋は見つかりませんでしたマンション・アパートエミネンス西京極 1階 築20年10ヶ月の賃貸物件
- 阪急京都本線/西京極駅 徒歩3分
- 阪急京都本線/西院駅 徒歩20分
京都府京都市右京区西京極畔勝町
- 総階数
- 2階建
- 築年数
- 20年10ヶ月
- 建物構造
- 軽量鉄骨
バス・トイレ別フローリング保証人不要間取り図
階数
間取り
専有面積
賃料
管理費等
敷金
礼金
特徴
お気に入り
詳細
1階
1K
25.0㎡
5.9万円
6,000円
- 敷
- 不要
- 礼
- 59,000円
バス・トイレ別
フローリング
保証人不要
詳細を見る ほかの部屋を検索中…ほかの部屋は見つかりませんでしたマンション・アパートビスカリア光樹 8階 築18年10ヶ月の賃貸物件
- 地下鉄東西線/烏丸御池駅 徒歩4分
- 地下鉄東西線/二条城前駅 徒歩9分
- 地下鉄烏丸線/烏丸御池駅 徒歩4分
京都府京都市中京区下妙覚寺町
- 総階数
- 10階建
- 築年数
- 18年10ヶ月
- 建物構造
- 鉄骨
バス・トイレ別フローリングオートロック間取り図
階数
間取り
専有面積
賃料
管理費等
敷金
礼金
特徴
お気に入り
詳細
8階
1K
27.88㎡
5.95万円
6,000円
- 敷
- 70,000円
- 礼
- 60,000円
バス・トイレ別
フローリング
オートロック
詳細を見る ほかの部屋を検索中…ほかの部屋は見つかりませんでしたマンション・アパートグランドパレス御池衣棚 8階 築18年10ヶ月の賃貸物件
- 京都地下鉄東西線/烏丸御池駅 徒歩4分
- 京都地下鉄東西線/二条城前駅 徒歩9分
京都府京都市中京区衣棚通御池上る下妙覚寺町
- 総階数
- 10階建
- 築年数
- 18年10ヶ月
- 建物構造
- 鉄骨造
バス・トイレ別フローリングオートロック間取り図
階数
間取り
専有面積
賃料
管理費等
敷金
礼金
特徴
お気に入り
詳細
8階
1K
27.88㎡
5.95万円
6,000円
- 敷
- 70,000円
- 礼
- 60,000円
バス・トイレ別
フローリング
オートロック
詳細を見る ほかの部屋を検索中…ほかの部屋は見つかりませんでしたマンション・アパート烏丸御池駅より徒歩4分 3階 築33年10ヶ月の賃貸物件
- 京都市営烏丸線/烏丸御池駅 徒歩4分
- 京都市営烏丸線/丸太町駅 徒歩8分
京都府京都市中京区押小路通高倉西入左京町
- 総階数
- 6階建
- 築年数
- 33年10ヶ月
- 建物構造
- 鉄骨造
ペット相談フローリング保証人不要間取り図
階数
間取り
専有面積
賃料
管理費等
敷金
礼金
特徴
お気に入り
詳細
3階
1K
16.42㎡
6万円
5,000円
- 敷
- 不要
- 礼
- 60,000円
ペット相談
フローリング
保証人不要
詳細を見る マンション・アパート四条駅より徒歩3分 1階 築25年8ヶ月の賃貸物件
- 京都市営烏丸線/四条駅 徒歩3分
- 阪急京都本線/烏丸駅 徒歩3分
京都府京都市下京区綾小路通東洞院東入神明町
- 総階数
- 5階建
- 築年数
- 25年8ヶ月
- 建物構造
- 鉄骨造
バス・トイレ別フローリングオートロック間取り図
階数
間取り
専有面積
賃料
管理費等
敷金
礼金
特徴
お気に入り
詳細
1階
1K
27.7㎡
6万円
5,500円
- 敷
- 不要
- 礼
- 120,000円
バス・トイレ別
フローリング
オートロック
詳細を見る マンション・アパート四条駅より徒歩3分 1階 築25年8ヶ月の賃貸物件
- 地下鉄烏丸線/四条駅 徒歩3分
- 阪急京都線/烏丸駅 徒歩3分
- 阪急京都線/京都河原町駅 徒歩7分
京都府京都市下京区神明町
- 総階数
- 5階建
- 築年数
- 25年8ヶ月
- 建物構造
- 鉄骨
バス・トイレ別フローリングオートロック間取り図
階数
間取り
専有面積
賃料
管理費等
敷金
礼金
特徴
お気に入り
詳細
1階
1K
27.7㎡
6万円
5,500円
- 敷
- 不要
- 礼
- 120,000円
バス・トイレ別
フローリング
オートロック
詳細を見る マンション・アパート四条駅より徒歩3分 2階 築26年7ヶ月の賃貸物件
- 京都市営烏丸線/四条駅 徒歩3分
- 阪急京都本線/烏丸駅 徒歩5分
京都府京都市中京区天神山町
- 総階数
- 5階建
- 築年数
- 26年7ヶ月
- 建物構造
- 鉄骨造
バス・トイレ別フローリングオートロック間取り図
階数
間取り
専有面積
賃料
管理費等
敷金
礼金
特徴
お気に入り
詳細
2階
1K
25.8㎡
6万円
5,000円
- 敷
- 不要
- 礼
- 不要
バス・トイレ別
フローリング
オートロック
詳細を見る マンション・アパートビスカリア光樹 10階 築18年10ヶ月の賃貸物件
- 地下鉄東西線/烏丸御池駅 徒歩4分
- 地下鉄東西線/二条城前駅 徒歩9分
- 地下鉄烏丸線/烏丸御池駅 徒歩4分
京都府京都市中京区下妙覚寺町
- 総階数
- 10階建
- 築年数
- 18年10ヶ月
- 建物構造
- 鉄骨
バス・トイレ別フローリングオートロック間取り図
階数
間取り
専有面積
賃料
管理費等
敷金
礼金
特徴
お気に入り
詳細
10階
1K
27.08㎡
6.05万円
6,000円
- 敷
- 70,000円
- 礼
- 60,000円
バス・トイレ別
フローリング
オートロック
詳細を見る ほかの部屋を検索中…ほかの部屋は見つかりませんでしたマンション・アパートグランドパレス御池衣棚 10階 築18年10ヶ月の賃貸物件
- 京都地下鉄東西線/烏丸御池駅 徒歩4分
- 京都地下鉄東西線/二条城前駅 徒歩9分
京都府京都市中京区衣棚通御池上る下妙覚寺町
- 総階数
- 10階建
- 築年数
- 18年10ヶ月
- 建物構造
- 鉄骨造
バス・トイレ別フローリングオートロック間取り図
階数
間取り
専有面積
賃料
管理費等
敷金
礼金
特徴
お気に入り
詳細
10階
1K
27.08㎡
6.05万円
6,000円
- 敷
- 70,000円
- 礼
- 60,000円
バス・トイレ別
フローリング
オートロック
詳細を見る ほかの部屋を検索中…ほかの部屋は見つかりませんでしたマンション・アパート京都河原町駅より徒歩3分 5階 築29年10ヶ月の賃貸物件
- 阪急京都本線/京都河原町駅 徒歩3分
- 京都市営烏丸線/四条駅 徒歩10分
京都府京都市中京区麩屋町通蛸薬師下る梅屋町
- 総階数
- 5階建
- 築年数
- 29年10ヶ月
- 建物構造
- 鉄骨造
バス・トイレ別フローリングオートロック間取り図
階数
間取り
専有面積
賃料
管理費等
敷金
礼金
特徴
お気に入り
詳細
5階
1K
27.5㎡
6.1万円
4,000円
- 敷
- 61,000円
- 礼
- 61,000円
バス・トイレ別
フローリング
オートロック
詳細を見る マンション・アパートグロリアス桂 3階 築20年11ヶ月の賃貸物件
- 阪急京都本線/桂駅 徒歩4分
- JR東海道・山陽本線/桂川駅 徒歩35分
京都府京都市西京区桂木ノ下町
- 総階数
- 3階建
- 築年数
- 20年11ヶ月
- 建物構造
- RC
バス・トイレ別フローリングオートロック間取り図
階数
間取り
専有面積
賃料
管理費等
敷金
礼金
特徴
お気に入り
詳細
3階
1K
28.12㎡
6.1万円
5,000円
- 敷
- 100,000円
- 礼
- 100,000円
バス・トイレ別
フローリング
オートロック
詳細を見る ほかの部屋を検索中…ほかの部屋は見つかりませんでしたマンション・アパート大宮駅より徒歩5分 4階 築12年10ヶ月の賃貸物件
- 阪急京都本線/大宮駅 徒歩5分
- 京都市営烏丸線/四条駅 徒歩14分
京都府京都市下京区五坊大宮町
- 総階数
- 5階建
- 築年数
- 12年10ヶ月
- 建物構造
- RC
バス・トイレ別フローリングオートロック間取り図
階数
間取り
専有面積
賃料
管理費等
敷金
礼金
特徴
お気に入り
詳細
4階
1K
22.39㎡
6.1万円
6,000円
- 敷
- 不要
- 礼
- 61,000円
バス・トイレ別
フローリング
オートロック
詳細を見る マンション・アパート西院駅より徒歩3分 1階 築17年11ヶ月の賃貸物件
- 阪急京都本線/西院駅 徒歩3分
- 阪急京都本線/大宮駅 徒歩19分
京都府京都市中京区壬生土居ノ内町
- 総階数
- 3階建
- 築年数
- 17年11ヶ月
- 建物構造
- RC
バス・トイレ別駐車場ありフローリング間取り図
階数
間取り
専有面積
賃料
管理費等
敷金
礼金
特徴
お気に入り
詳細
1階
1K
25.2㎡
6.1万円
6,100円
- 敷
- 不要
- 礼
- 不要
バス・トイレ別
駐車場あり
フローリング
詳細を見る マンション・アパート京都河原町駅より徒歩3分 5階 築29年10ヶ月の賃貸物件
- 阪急京都線/京都河原町駅 徒歩3分
- 地下鉄烏丸線/四条駅 徒歩10分
- 阪急京都線/烏丸駅 徒歩9分
京都府京都市中京区梅屋町
- 総階数
- 5階建
- 築年数
- 29年10ヶ月
- 建物構造
- 鉄骨
バス・トイレ別フローリングオートロック間取り図
階数
間取り
専有面積
賃料
管理費等
敷金
礼金
特徴
お気に入り
詳細
5階
1K
27.5㎡
6.1万円
4,000円
- 敷
- 61,000円
- 礼
- 61,000円
バス・トイレ別
フローリング
オートロック
詳細を見る マンション・アパート円町駅より徒歩4分 3階 築23年10ヶ月の賃貸物件
- JR山陰本線/円町駅 徒歩4分
- 京都地下鉄東西線/西大路御池駅 徒歩8分
京都府京都市中京区西ノ京中御門東町
- 総階数
- 5階建
- 築年数
- 23年10ヶ月
- 建物構造
- ALC
バス・トイレ別フローリングオートロック間取り図
階数
間取り
専有面積
賃料
管理費等
敷金
礼金
特徴
お気に入り
詳細
3階
1DK
27.0㎡
6.2万円
5,900円
- 敷
- 62,000円
- 礼
- 不要
バス・トイレ別
フローリング
オートロック
詳細を見る マンション・アパートGrange京都円町 2階 築6年10ヶ月の賃貸物件
- JR山陰本線/円町駅 徒歩3分
- 京都地下鉄東西線/西大路御池駅 徒歩9分
京都府京都市中京区西ノ京中御門東町
- 総階数
- 3階建
- 築年数
- 6年10ヶ月
- 建物構造
- RC
バス・トイレ別フローリングオートロック間取り図
階数
間取り
専有面積
賃料
管理費等
敷金
礼金
特徴
お気に入り
詳細
2階
1K
24.89㎡
6.2万円
6,000円
- 敷
- 50,000円
- 礼
- 100,000円
バス・トイレ別
フローリング
オートロック
詳細を見る ほかの部屋を検索中…ほかの部屋は見つかりませんでしたマンション・アパートサンロイヤル五条 3階 築20年10ヶ月の賃貸物件
- 京都市営烏丸線/五条駅 徒歩3分
- 京都市営烏丸線/四条駅 徒歩7分
京都府京都市下京区万寿寺通高倉西入万寿寺中之町
- 総階数
- 7階建
- 築年数
- 20年10ヶ月
- 建物構造
- RC
バス・トイレ別フローリングオートロック間取り図
階数
間取り
専有面積
賃料
管理費等
敷金
礼金
特徴
お気に入り
詳細
3階
1K
21.99㎡
6.2万円
6,000円
- 敷
- 不要
- 礼
- 62,000円
バス・トイレ別
フローリング
オートロック
詳細を見る ほかの部屋を検索中…ほかの部屋は見つかりませんでしたマンション・アパート上桂駅より徒歩4分 1階 築35年5ヶ月の賃貸物件
- 阪急嵐山線/上桂駅 徒歩4分
- 阪急京都本線/桂駅 徒歩18分
京都府京都市西京区上桂宮ノ後町
- 総階数
- 2階建
- 築年数
- 35年5ヶ月
- 建物構造
- 軽量鉄骨
バス・トイレ別駐車場あり南向き間取り図
階数
間取り
専有面積
賃料
管理費等
敷金
礼金
特徴
お気に入り
詳細
1階
2DK
40.15㎡
6.2万円
4,000円
- 敷
- 不要
- 礼
- 不要
バス・トイレ別
駐車場あり
南向き
詳細を見る マンション・アパート烏丸御池駅より徒歩3分 8階 築24年1ヶ月の賃貸物件
- 京都市営烏丸線/烏丸御池駅 徒歩3分
- 京都市営烏丸線/丸太町駅 徒歩9分
京都府京都市中京区御池通室町西入西横町
- 総階数
- 11階建
- 築年数
- 24年1ヶ月
- 建物構造
- SRC
バス・トイレ別フローリングオートロック間取り図
階数
間取り
専有面積
賃料
管理費等
敷金
礼金
特徴
お気に入り
詳細
8階
1K
26.96㎡
6.2万円
10,000円
- 敷
- 不要
- 礼
- 62,000円
バス・トイレ別
フローリング
オートロック
詳細を見る マンション・アパート烏丸御池駅より徒歩3分 8階 築24年1ヶ月の賃貸物件
- 地下鉄烏丸線/烏丸御池駅 徒歩3分
- 地下鉄烏丸線/丸太町駅 徒歩9分
- 阪急京都線/烏丸駅 徒歩12分
京都府京都市中京区西横町
- 総階数
- 11階建
- 築年数
- 24年1ヶ月
- 建物構造
- 鉄骨鉄筋
バス・トイレ別フローリングオートロック間取り図
階数
間取り
専有面積
賃料
管理費等
敷金
礼金
特徴
お気に入り
詳細
8階
1K
26.96㎡
6.2万円
10,000円
- 敷
- 不要
- 礼
- 62,000円
バス・トイレ別
フローリング
オートロック
詳細を見る マンション・アパートクーネルハイツ桂 2階 築17年の賃貸物件
- 阪急京都本線/桂駅 徒歩3分
- 阪急嵐山線/上桂駅 徒歩19分
京都府京都市西京区桂南巽町
- 総階数
- 2階建
- 築年数
- 17年
- 建物構造
- 木造
バス・トイレ別駐車場ありフローリング間取り図
階数
間取り
専有面積
賃料
管理費等
敷金
礼金
特徴
お気に入り
詳細
2階
1K
28.22㎡
6.2万円
3,000円
- 敷
- 不要
- 礼
- 80,000円
バス・トイレ別
駐車場あり
フローリング
詳細を見る ほかの部屋を検索中…ほかの部屋は見つかりませんでしたマンション・アパート五条駅より徒歩3分 3階 築20年10ヶ月の賃貸物件
- 地下鉄烏丸線/五条駅 徒歩3分
- 地下鉄烏丸線/四条駅 徒歩7分
- 阪急京都線/烏丸駅 徒歩7分
京都府京都市下京区万寿寺中之町
- 総階数
- 7階建
- 築年数
- 20年10ヶ月
- 建物構造
- 鉄筋コン
バス・トイレ別フローリングオートロック間取り図
階数
間取り
専有面積
賃料
管理費等
敷金
礼金
特徴
お気に入り
詳細
3階
1K
21.99㎡
6.2万円
6,000円
- 敷
- 不要
- 礼
- 62,000円
バス・トイレ別
フローリング
オートロック
詳細を見る マンション・アパート烏丸御池駅より徒歩4分 3階 築24年11ヶ月の賃貸物件
- 地下鉄烏丸線/烏丸御池駅 徒歩4分
- 地下鉄東西線/二条城前駅 徒歩7分
- 阪急京都線/烏丸駅 徒歩13分
京都府京都市中京区西横町
- 総階数
- 11階建
- 築年数
- 24年11ヶ月
- 建物構造
- 鉄骨鉄筋
バス・トイレ別フローリングオートロック間取り図
階数
間取り
専有面積
賃料
管理費等
敷金
礼金
特徴
お気に入り
詳細
3階
1K
27.0㎡
6.2万円
6,500円
- 敷
- 62,000円
- 礼
- 62,000円
バス・トイレ別
フローリング
オートロック
詳細を見る マンション・アパート烏丸御池駅より徒歩4分 3階 築24年11ヶ月の賃貸物件
- 京都市営烏丸線/烏丸御池駅 徒歩4分
- 京都地下鉄東西線/二条城前駅 徒歩7分
京都府京都市中京区御池通室町西入西横町
- 総階数
- 11階建
- 築年数
- 24年11ヶ月
- 建物構造
- SRC
バス・トイレ別フローリングオートロック間取り図
階数
間取り
専有面積
賃料
管理費等
敷金
礼金
特徴
お気に入り
詳細
3階
1K
27.0㎡
6.2万円
6,500円
- 敷
- 62,000円
- 礼
- 62,000円
バス・トイレ別
フローリング
オートロック
詳細を見る マンション・アパート大宮駅より徒歩3分 2階 築18年3ヶ月の賃貸物件
- 阪急京都線/大宮駅 徒歩3分
- 地下鉄烏丸線/四条駅 徒歩14分
- 地下鉄東西線/二条城前駅 徒歩15分
京都府京都市下京区塩屋町
- 総階数
- 3階建
- 築年数
- 18年3ヶ月
- 建物構造
- 鉄骨
バス・トイレ別フローリングオートロック間取り図
階数
間取り
専有面積
賃料
管理費等
敷金
礼金
特徴
お気に入り
詳細
2階
1K
21.57㎡
6.3万円
8,600円
- 敷
- 不要
- 礼
- 63,000円
バス・トイレ別
フローリング
オートロック
詳細を見る マンション・アパート五条駅より徒歩3分 7階 築18年6ヶ月の賃貸物件
- 地下鉄烏丸線/五条駅 徒歩3分
- 地下鉄烏丸線/四条駅 徒歩10分
- 阪急京都線/烏丸駅 徒歩10分
京都府京都市下京区塩竈町
- 総階数
- 11階建
- 築年数
- 18年6ヶ月
- 建物構造
- 鉄筋コン
バス・トイレ別フローリングオートロック間取り図
階数
間取り
専有面積
賃料
管理費等
敷金
礼金
特徴
お気に入り
詳細
7階
1K
22.3㎡
6.3万円
8,000円
- 敷
- 不要
- 礼
- 63,000円
バス・トイレ別
フローリング
オートロック
詳細を見る マンション・アパート大宮駅より徒歩3分 2階 築18年3ヶ月の賃貸物件
- 阪急京都本線/大宮駅 徒歩3分
- 京都市営烏丸線/四条駅 徒歩14分
京都府京都市下京区黒門通綾小路下る塩屋町
- 総階数
- 3階建
- 築年数
- 18年3ヶ月
- 建物構造
- 鉄骨造
バス・トイレ別フローリングオートロック間取り図
階数
間取り
専有面積
賃料
管理費等
敷金
礼金
特徴
お気に入り
詳細
2階
1K
21.57㎡
6.3万円
8,600円
- 敷
- 不要
- 礼
- 63,000円
バス・トイレ別
フローリング
オートロック
詳細を見る マンション・アパート五条・高倉ヴィブレ2 7階 築18年6ヶ月の賃貸物件
- 京都市営烏丸線/五条駅 徒歩3分
- 京都市営烏丸線/四条駅 徒歩10分
京都府京都市下京区五条通堺町西入ル塩竈町
- 総階数
- 11階建
- 築年数
- 18年6ヶ月
- 建物構造
- RC
バス・トイレ別フローリングオートロック間取り図
階数
間取り
専有面積
賃料
管理費等
敷金
礼金
特徴
お気に入り
詳細
7階
1K
22.3㎡
6.3万円
8,000円
- 敷
- 不要
- 礼
- 63,000円
バス・トイレ別
フローリング
オートロック
詳細を見る ほかの部屋を検索中…ほかの部屋は見つかりませんでしたマンション・アパート西院駅より徒歩5分 5階 築38年10ヶ月の賃貸物件
- 阪急京都本線/西院駅 徒歩5分
- 京都地下鉄東西線/西大路御池駅 徒歩10分
京都府京都市中京区壬生淵田町
- 総階数
- 6階建
- 築年数
- 38年10ヶ月
- 建物構造
- RC
バス・トイレ別駐車場ありペット相談間取り図
階数
間取り
専有面積
賃料
管理費等
敷金
礼金
特徴
お気に入り
詳細
5階
1DK
30.42㎡
6.35万円
8,000円
- 敷
- 不要
- 礼
- 63,500円
バス・トイレ別
駐車場あり
ペット相談
詳細を見る マンション・アパート大宮駅より徒歩3分 3階 築18年3ヶ月の賃貸物件
- 阪急京都本線/大宮駅 徒歩3分
- 京都市営烏丸線/四条駅 徒歩14分
京都府京都市下京区黒門通綾小路下る塩屋町
- 総階数
- 3階建
- 築年数
- 18年3ヶ月
- 建物構造
- 鉄骨造
バス・トイレ別フローリングオートロック間取り図
階数
間取り
専有面積
賃料
管理費等
敷金
礼金
特徴
お気に入り
詳細
3階
1K
21.57㎡
6.4万円
8,600円
- 敷
- 不要
- 礼
- 64,000円
バス・トイレ別
フローリング
オートロック
詳細を見る マンション・アパート大宮駅より徒歩3分 3階 築18年3ヶ月の賃貸物件
- 阪急京都線/大宮駅 徒歩3分
- 地下鉄烏丸線/四条駅 徒歩14分
- 地下鉄東西線/二条城前駅 徒歩15分
京都府京都市下京区塩屋町
- 総階数
- 3階建
- 築年数
- 18年3ヶ月
- 建物構造
- 鉄骨
バス・トイレ別フローリングオートロック間取り図
階数
間取り
専有面積
賃料
管理費等
敷金
礼金
特徴
お気に入り
詳細
3階
1K
21.57㎡
6.4万円
8,600円
- 敷
- 不要
- 礼
- 64,000円
バス・トイレ別
フローリング
オートロック
詳細を見る マンション・アパート四条駅より徒歩3分 6階 築23年10ヶ月の賃貸物件
- 地下鉄烏丸線/四条駅 徒歩3分
- 地下鉄烏丸線/五条駅 徒歩8分
- 阪急京都線/烏丸駅 徒歩6分
京都府京都市下京区骨屋町
- 総階数
- 9階建
- 築年数
- 23年10ヶ月
- 建物構造
- 鉄筋コン
バス・トイレ別フローリングオートロック間取り図
階数
間取り
専有面積
賃料
管理費等
敷金
礼金
特徴
お気に入り
詳細
6階
1K
27.3㎡
6.45万円
9,500円
- 敷
- 不要
- 礼
- 64,500円
バス・トイレ別
フローリング
オートロック
詳細を見る


この店舗からのコメント
右京区・中京区を中心に市内全域ご対応可能。シャーメゾンSHOPであり他社様では取り扱えない物件も多数あり、ご厚意にして頂いている家主様も多く様々なご相談が可能。お部屋探しは当店へお気軽にご相談下さい。