大和ハウス工業(株)中部支社 名古屋住宅事業部 リブネス課の詳細情報
| アクセス | 名古屋臨海高速鉄道/ささしまライブ 徒歩6分 | ||||
|---|---|---|---|---|---|
| 住所 | 愛知県名古屋市中村区平池町4-60-9 | ||||
| 営業時間 | 9:00~18:00 | ||||
| 定休日 | 火曜日・水曜日・祝日 | ||||
| 電話番号 | 012000-1536 | ||||
大和ハウス工業(株)中部支社 名古屋住宅事業部 リブネス課の周辺地図
ニフティ不動産に掲載中の物件情報
| 1R~1LDK | 2K~2LDK | 3K~3LDK | 4K~4LDK | 5K~ | |
|---|---|---|---|---|---|
| 賃貸 | - | - | - | - | - |
| 新築マンション | - | - | - | - | - |
| 中古マンション | - | - | 2件 | 2件 | - |
| 新築戸建 | - | - | - | - | - |
| 中古戸建 | 1件 | 1件 | 5件 | 5件 | 3件 |
| ~50㎡ | 50~80㎡ | 80~100㎡ | 100~130㎡ | 130㎡~ | |
| 土地 | - | - | - | - | 9件 |
不動産会社情報の精度向上にご協力をお願いいたします。不動産会社情報に誤りがある場合はこちらよりご連絡ください。
大和ハウス工業(株)中部支社 名古屋住宅事業部 リブネス課の物件一覧
並び替え
16件中1〜16件を表示
中古一戸建て愛知県日進市赤池町
所在地愛知県日進市赤池町
交通地下鉄鶴舞線/平針駅 徒歩6分
築浅の大和ハウス工業施工物件(令和5年12月建築)
太陽光発電システム搭載価格
間取り
建物面積
土地面積
築年月
階建
お気に入り
詳細
6180万円
3LDK
114.94m²
162.87m²
2年
-
詳細を見る 中古一戸建て愛知県名古屋市千種区春岡
所在地愛知県名古屋市千種区春岡
交通地下鉄東山線/池下駅 徒歩8分
■大和ハウス工業施工物件
■歯科医院併用住宅価格
間取り
建物面積
土地面積
築年月
階建
お気に入り
詳細
1億4800万円
6LDK
399.15m²
234.71m²
20年9ヶ月
-
詳細を見る 中古一戸建て愛知県安城市桜井町
所在地愛知県安城市桜井町
交通名鉄西尾線/桜井駅 徒歩8分
◇桜西公園・桜西ちびっこ広場は毎日通える徒歩4分の近さ◇
価格
間取り
建物面積
土地面積
築年月
階建
お気に入り
詳細
3920万円
3LDK
108.06m²
141.48m²
6年8ヶ月
-
詳細を見る 中古一戸建て愛知県名古屋市西区笠取町
所在地愛知県名古屋市西区笠取町
交通地下鉄鶴舞線/庄内通駅 徒歩9分
毎日のお買物に便利なイオンタウン名西は徒歩10分!屋上ガーデン付きの住宅
価格
間取り
建物面積
土地面積
築年月
階建
お気に入り
詳細
3300万円
3LDK
78.5m²
75.72m²
11年7ヶ月
-
詳細を見る 中古一戸建て愛知県名古屋市天白区野並
所在地愛知県名古屋市天白区野並
交通地下鉄桜通線/野並駅 徒歩9分
2022年10月建築、3階建の築浅物件です。収納スペースが充実しています
価格
間取り
建物面積
土地面積
築年月
階建
お気に入り
詳細
3980万円
2LDK
112.8m²
90.0m²
3年2ヶ月
-
詳細を見る 中古一戸建て愛知県名古屋市西区枇杷島
所在地愛知県名古屋市西区枇杷島
交通名鉄名古屋本線/東枇杷島駅 徒歩10分
■大和ハウス工業施工、二世帯住宅仕様
■長期優良住宅認定対象物件価格
間取り
建物面積
土地面積
築年月
階建
お気に入り
詳細
6980万円
5LLDDKK
192.05m²
256.67m²
5年1ヶ月
-
詳細を見る 中古一戸建て奈良県天理市庵治町
所在地奈良県天理市庵治町
交通近鉄橿原線/結崎駅 徒歩10分
価格
間取り
建物面積
土地面積
築年月
階建
お気に入り
詳細
700万円
4DK
54.74m²
143.68m²
52年3ヶ月
2階建
詳細を見る 中古一戸建て愛知県名古屋市中川区馬手町
所在地愛知県名古屋市中川区馬手町
交通あおなみ線/南荒子駅 徒歩10分
駐車場2台並列可能。カーポート有
価格
間取り
建物面積
土地面積
築年月
階建
お気に入り
詳細
3280万円
4LDK+S(納戸)
139.41m²
116.82m²
24年5ヶ月
-
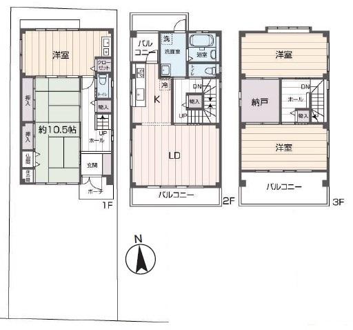
詳細を見る 中古一戸建て愛知県名古屋市西区枇杷島3丁目
所在地愛知県名古屋市西区枇杷島3丁目
交通名鉄名古屋本線/東枇杷島駅 徒歩10分
価格
間取り
建物面積
土地面積
築年月
階建
お気に入り
詳細
6,980万円
-
192.05m²
256.67m²
5年1ヶ月
3階建
詳細を見る 中古一戸建て愛知県一宮市大和町毛受
所在地愛知県一宮市大和町毛受
交通名鉄尾西線/観音寺駅 徒歩12分
大和ハウス工業施工物件!大和西小学校まで徒歩10分(約750m)
価格
間取り
建物面積
土地面積
築年月
階建
お気に入り
詳細
3390万円
3LDK
116.13m²
157.52m²
16年4ヶ月
-
詳細を見る 中古一戸建て愛知県名古屋市昭和区田面町
所在地愛知県名古屋市昭和区田面町
交通地下鉄鶴舞線/川名駅 徒歩16分
広々としたLDKでゆったりとくつろげる空間です。
価格
間取り
建物面積
土地面積
築年月
階建
お気に入り
詳細
4480万円
4LDK
115.09m²
126.88m²
22年10ヶ月
-
詳細を見る 中古一戸建て愛知県春日井市岩成台
所在地愛知県春日井市岩成台
交通JR中央本線/高蔵寺駅 徒歩34分
大和ハウス工業施工物件!岩成中学校まで徒歩3分(約230m)
価格
間取り
建物面積
土地面積
築年月
階建
お気に入り
詳細
2680万円
3LDK
151.89m²
305.59m²
26年
-
詳細を見る 中古一戸建て愛知県日進市岩崎町
所在地愛知県日進市岩崎町
交通地下鉄鶴舞線/赤池駅 徒歩33分
木質感あふれる室内は居心地の良い空間となっております
価格
間取り
建物面積
土地面積
築年月
階建
お気に入り
詳細
2980万円
3LDK+S(納戸)
110.13m²
132.0m²
18年1ヶ月
-
詳細を見る 中古一戸建て愛知県日進市岩崎台
所在地愛知県日進市岩崎台
交通地下鉄東山線/本郷駅 徒歩46分
1階に和室、書斎あり。全部屋8帖以上で収納量も豊富に取れております。
価格
間取り
建物面積
土地面積
築年月
階建
お気に入り
詳細
4280万円
4LDK+S(納戸)
150.82m²
238.87m²
30年
-
詳細を見る 中古一戸建て愛知県豊田市西中山町
所在地愛知県豊田市西中山町
交通名鉄三河線/猿投駅 徒歩70分
6LDKの中古戸建住宅。カーポート設置済みです。お気軽にお問合せください。
価格
間取り
建物面積
土地面積
築年月
階建
お気に入り
詳細
1480万円
6LDK
162.83m²
231.42m²
38年4ヶ月
-
詳細を見る 中古一戸建て愛知県日進市岩崎台1丁目
所在地愛知県日進市岩崎台1丁目
価格
間取り
建物面積
土地面積
築年月
階建
お気に入り
詳細
4,280万円
4LDK
150.82m²
238.87m²
30年
2階建
詳細を見る
16件中1〜16件を表示

