土地笠舞3(金沢駅) 1914万円の詳細情報
1914万円
月々のローン返済額を試算笠舞交差点からすぐの交通アクセスのよい立地。片町スクランブルまで徒歩圏内。
物件概要
| 物件名 | 笠舞3(金沢駅) 1914万円 | ||||
|---|---|---|---|---|---|
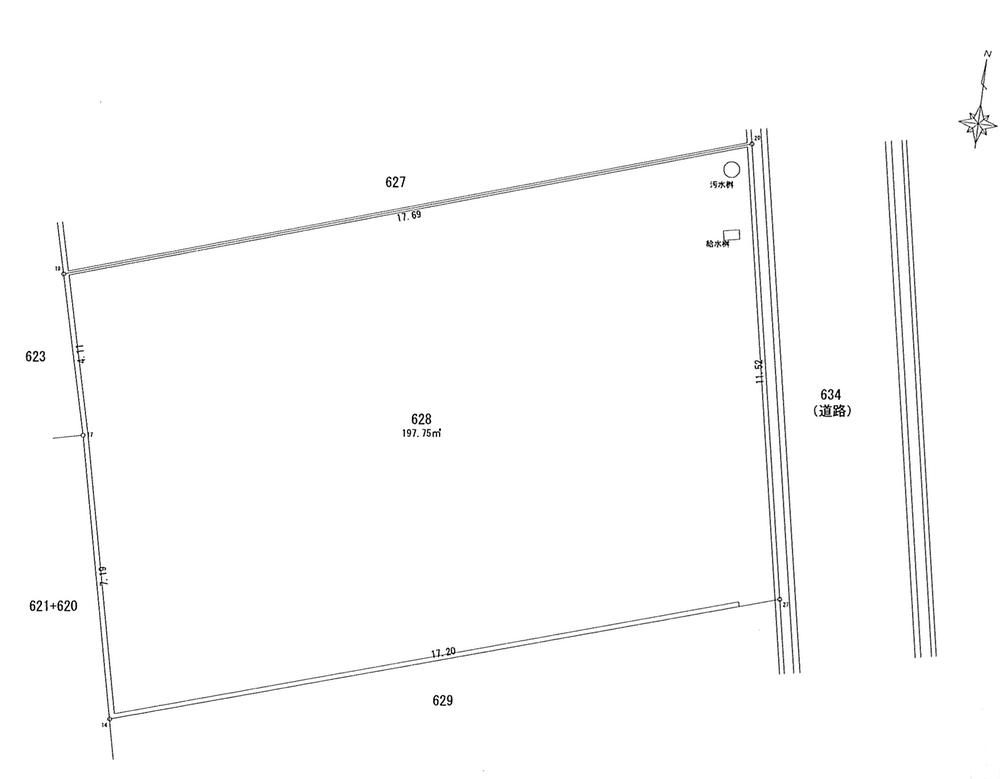
| 所在地 | 石川県金沢市笠舞3 | ||||
| 交通 |
IRいしかわ鉄道「金沢」歩50分 | ||||
| 最多価格帯 | - | 販売区画数/総区画数 | 1区画/- | ||
| 土地権利 | 所有権 | 造成工事完了予定年月 | - | ||
| 取引態様 | 仲介 | 引渡し | 相談 | ||
| 地目 | 宅地 | 用途地域 | 準住居 | ||
| 建ぺい率・容積率 | 60%・200% | 私道負担・道路 | 無、北東3.7m幅(接道幅11.5m) | ||
| セットバック | 要1.5㎡ | ||||
| その他費用 | - | ||||
| 建築条件 | 建築条件付建築条件付き土地とは、一定期間内(一般的には3ヶ月以上)に特定の建設会社と建築請負契約を結ぶことを条件にしている宅地のことです。建物の内容は、土地購入者の自由意思により決定可能で、土地売買契約後、建築請負会社と購入した土地に建設する建物について協議することになります。期間内に建築請負契約が成立しなければ売買契約は白紙となり、支払済みの金銭はすべて返却されます。 | ||||
| 販売スケジュール | - | ||||
| イベント情報 | - | ||||
| その他制限事項 | セットバック:要1.5㎡、景観法による規制有 | ||||
| 備考 | 担当者:上濃 千秋、設備:公営水道、本下水 | ||||
| 取引条件有効期限 | - | ||||
情報公開日:2025/11/14 次回更新予定日:情報提供より8日以内
この物件の地図・周辺環境
このアイコンは物件のおおよその位置を表しており、実際の場所と異なる場合がございます。詳しくは不動産会社に直接ご確認ください。
※地図上に表示される物件の位置は付近住所に所在することを表すものであり、実際の物件所在地とは異なる場合がございます。
※地図の更新タイミングの関係で、物件情報が実際のものとは異なる場合や最新情報に更新されていない場合がございます。
※以下の南西諸島及び離島においては、表示される物件の位置が実際のものとは数百メートル程度ずれる場合がございます。
東京都:硫黄島・青ヶ島、沖縄県: 北大東島・南大東島・多良間島・水納島・与那国島・宮古諸島・石垣島・竹富島
取り扱い不動産会社
- 住所
- 石川県金沢市三口新町3-3-18
- 電話番号
- 0800-2221221
- 営業時間
- 営業時間:8:30-17:30 / 定休日:水・盆・正月
- 免許番号
- 石川県知事(10)第001966号
- 会社概要
- <仲介>
石川県知事(10)第001966号
飛鳥住宅(株)
〒920-0944 石川県金沢市三口新町3-3-18
金沢駅の口コミ
自然環境
3.0
金沢駅前に限って言えば、商業施設が多いので自然はないです。大きな駅なので人も多いです。自然に囲まれた環境がよければ駅から離れた方がいいです。ただ、少し歩けば中央公園や兼六園が近くにあります。
治安・安全
3.0
金沢全体について言えることですが、治安について不安を感じることはなかったです。周辺も決して明るくはないですが、夜間に出歩く人も特にいませんでした。
住宅ローンシミュレーション
住宅ローン設定
物件価格
返済期間
頭金
ボーナス払(年1回)
※
※物件価格の80%以下でお借入れの場合
※50歳以下で一般団信をご選択の場合
※住宅ローン金利優遇割適用後の変動金利(全期間引き下げプラン)
※実際のお借入日の金利により変動します。
※審査の結果によっては保証付金利プランとなる場合があり、この場合は上記とは異なる金利となります。
※別途借入金額の2.20%(税込)の事務手数料が発生します。
ボーナス払 | 35年間返済 | 30年間返済 | 25年間返済 | 20年間返済 | 15年間返済 | 10年間返済 |
|---|---|---|---|---|---|---|
0万円 | -円/月 | -円/月 | -円/月 | -円/月 | -円/月 | -円/月 |
5万円 | -円/月 | -円/月 | -円/月 | -円/月 | -円/月 | -円/月 |
10万円 | -円/月 | -円/月 | -円/月 | -円/月 | -円/月 | -円/月 |
15万円 | -円/月 | -円/月 | -円/月 | -円/月 | -円/月 | -円/月 |
20万円 | -円/月 | -円/月 | -円/月 | -円/月 | -円/月 | -円/月 |
25万円 | -円/月 | -円/月 | -円/月 | -円/月 | -円/月 | -円/月 |
30万円 | -円/月 | -円/月 | -円/月 | -円/月 | -円/月 | -円/月 |
ボーナス払 | 35年間返済 | 30年間返済 | 25年間返済 | 20年間返済 | 15年間返済 | 10年間返済 |
|---|---|---|---|---|---|---|
0万円 | -円/月 | -円/月 | -円/月 | -円/月 | -円/月 | -円/月 |
5万円 | -円/月 | -円/月 | -円/月 | -円/月 | -円/月 | -円/月 |
10万円 | -円/月 | -円/月 | -円/月 | -円/月 | -円/月 | -円/月 |
15万円 | -円/月 | -円/月 | -円/月 | -円/月 | -円/月 | -円/月 |
20万円 | -円/月 | -円/月 | -円/月 | -円/月 | -円/月 | -円/月 |
25万円 | -円/月 | -円/月 | -円/月 | -円/月 | -円/月 | -円/月 |
30万円 | -円/月 | -円/月 | -円/月 | -円/月 | -円/月 | -円/月 |
- ・金利は、今後35年間変動しない仮定のもと元利均等返済方式で計算しております。
- ・実際の金利は、各金融機関のホームページをご参照ください。
- ・ローン契約の際には、手数料や印紙税などの諸費用が別途かかります。
- ・ボーナス支払総額が総支払額の50%を超えている場合、上記の表では「ローン不可」となります。
- ・シミュレーションを利用し、それが原因で利用者が受けたいかなる損害についても当社は一切責任を負いません。あらかじめご了承ください。


