森本駅(石川県)近くの土地・売地・宅地・分譲地
森本駅の土地・売地・宅地・分譲地をさまざまな条件から検索
並び替え
&
32件(1〜32件を表示)
土地・売地 石川県金沢市疋田町
土地・売地 石川県金沢市福久町ヲ
森本駅 歩14分 (IR石川)
石川県金沢市福久町ヲ土地面積440.05m²建ぺい率60%容積率200%NEW土地・売地 石川県金沢市南森本町ワ
森本駅 バス4分 歩3分 (IR石川)
石川県金沢市南森本町ワ土地面積226.3m²建ぺい率70%容積率200%土地・売地 石川県金沢市百坂町
土地・売地 石川県金沢市南森本町
土地・売地 石川県金沢市横枕町ロ
森本駅 歩17分 (IR石川)
石川県金沢市横枕町ロ土地面積165.07m²建ぺい率60%容積率200%土地・売地 石川県金沢市堅田町
森本駅 歩13分 (IR石川)
割出駅 (浅野川線)
東金沢駅 (IR石川)
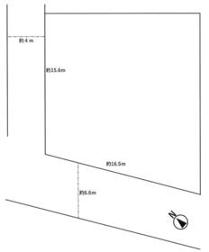
石川県金沢市堅田町土地面積325.34㎡(98.41坪)(登記)建ぺい率60%容積率200%【建築条件なし】山側環状線へのアクセス良好◆整形地
土地・売地 石川県金沢市塚崎町
土地・売地 石川県金沢市不動寺町
土地・売地 石川県金沢市不動寺町ロ
森本駅 歩28分 (IR石川)
石川県金沢市不動寺町ロ土地面積609.86m²建ぺい率60%容積率200%土地・売地 石川県金沢市塚崎町
森本駅 歩12分 (IR石川)
東金沢駅 (IR石川)
石川県金沢市塚崎町土地面積150.52㎡(45.53坪)(登記)建ぺい率60%容積率160%【建築条件なし】角地◆更地渡し◆山側環状線へのアクセス良好
土地・売地 石川県金沢市才田町
森本駅 歩39分 (IR石川)
金沢駅 バス54分 歩2分 (北陸新幹線など)
北鉄金沢駅 バス54分 歩2分 (浅野川線)
石川県金沢市才田町土地面積508.78㎡(153.90坪)(登記)建ぺい率60%容積率200%土地・売地 石川県金沢市今町
土地・売地 石川県金沢市南森本町
土地・売地 石川県金沢市福久町
土地・売地 石川県金沢市観法寺町
土地・売地 石川県金沢市神谷内町
森本駅 歩23分 (IR石川)
東金沢駅 歩26分 (IR石川)
石川県金沢市神谷内町土地面積150.03㎡〜150.98㎡(登記)建ぺい率60%容積率200%◆大型分譲地で綺麗な街並み◆コンビニ徒歩8分
自由設計で叶える理想の暮らし土地・売地 石川県金沢市吉原町
森本駅 歩7分 (IR石川)
石川県金沢市吉原町土地面積173㎡(登記)建ぺい率60%容積率200%現況渡し 三角形の土地 条件なし
土地・売地 石川県金沢市大場町東
森本駅 歩26分 (IR石川)
石川県金沢市大場町東土地面積497.17m²建ぺい率60%容積率200%土地・売地 石川県金沢市今町
森本駅 バス6分 歩11分 (IR石川)
石川県金沢市今町土地面積816㎡(246.83坪)建ぺい率60%容積率200%\用途幅広い、240坪以上の土地/
土地・売地 石川県金沢市弥勒町タ
森本駅 歩6分 (IR石川)
石川県金沢市弥勒町タ土地面積825.0m²建ぺい率-%容積率-%土地・売地 石川県金沢市疋田町
森本駅 歩24分 (IR石川)
東金沢駅 バス5分 歩5分 (IR石川)
割出駅 歩40分 (浅野川線)
石川県金沢市疋田町土地面積204.69㎡(61.91坪)(登記)建ぺい率60%容積率200%【建築条件なし】◆東金沢駅までのアクセス良好◆周辺環境良好
土地・売地 石川県金沢市木越
森本駅 バス5分 歩6分 (IR石川)
石川県金沢市木越土地面積258.11㎡(78.07坪)(実測)建ぺい率50%容積率80%閑静な住宅街、木越バス停徒歩圏内、バイパスアクセス良好
土地・売地 石川県金沢市堅田町
森本駅 歩11分 (IR石川)
石川県金沢市堅田町土地面積180.93㎡(登記)建ぺい率60%容積率200%静かな情宅地
土地・売地 石川県金沢市南森本町ツ
森本駅 歩21分 (IR石川)
石川県金沢市南森本町ツ土地面積289.21m²建ぺい率60%容積率200%土地・売地 石川県金沢市南森本町ル
森本駅 歩17分 (IR石川)
石川県金沢市南森本町ル土地面積152.71m²建ぺい率60%容積率200%土地・売地 石川県金沢市大場町東
森本駅 歩17分 (IR石川)
石川県金沢市大場町東土地面積177.6m²建ぺい率60%容積率200%土地・売地 石川県金沢市弥勒町ワ
森本駅 歩2分 (IR石川)
石川県金沢市弥勒町ワ土地面積165.33m²建ぺい率60%容積率200%土地・売地 石川県金沢市法光寺町
森本駅 歩21分 (IR石川)
石川県金沢市法光寺町土地面積130.33㎡(登記)建ぺい率60%容積率200%土地・売地 石川県金沢市木越1丁目
森本駅 バス5分 歩6分 (IR石川)
石川県金沢市木越1丁目土地面積258.11m²建ぺい率50%容積率80%土地・売地 石川県金沢市百坂町ロ
森本駅 歩9分 (IR石川)
石川県金沢市百坂町ロ土地面積487.0m²建ぺい率60%容積率200%
32件(1〜32件を表示)
金沢市近隣の市区町村から土地を探す
金沢市の町域から土地を探す
森本駅の口コミ
自然環境
4.0
休みの日に近くの山や公園、海にも出やすい場所なのでアウトドアが好きなファミリーには非常に住みやすい場所かと思います。
掲載パートナー一覧
ニフティ不動産の森本駅の物件情報は、物件一括検索参加パートナーが提供しています。ニフティ株式会社は物件の内容について一切の責任を負いません。
おうち時間を豊かにするヒント
屋根葺き替えの費用相場は80〜250万円|坪数・屋根材別の内訳と工法の選び方を解説
屋根葺き替えの見積もりを取ってみると、金額に大きな差があり、戸惑う方も多いのではないでしょうか。実際、屋根葺き替え費用の相場は80万〜250万円と幅があり、条件によって金額が大きく変わります。 費用は、使用する屋根材の種類や家の坪数、下地の状態などによって決まるため、相場を知らないまま見積もりを取ると適正価格の判断がしにくくなりがちです。
戌の日は何をする?安産祈願をしない人の割合やカレンダー、当日の流れを紹介
「戌の日には具体的に何をすればいい?」 「安産祈願の当日の流れや、服装のマナーが知りたい」 などの疑問を持つ人もいるでしょう。
【2026年最新】外壁塗装で助成金はもらえる?条件・申請方法・金額相場を解説
外壁塗装の見積もりを見て「少しでも費用を抑えられないか」と、助成金について調べている方も多いのではないでしょうか。 外壁塗装の助成金は、自治体ごとに条件や申請手順が細かく定められており、正しく進めないと受給できないケースもあります。
かわいい苗字295選!ふわふわ・ゆめかわ系から和風・古風な苗字まで
「かわいい苗字って、具体的にどんなものがあるの?」 「小説の登場人物にかわいい苗字を付けたいが、ぴったりのものが見つからない…」 数多くの苗字が存在する中で、自分のイメージに合うものを見つけるのは、なかなか大変ですよね。


















































