土地・ネット見学予約機能 板橋区三園1丁目 建築条件付き売地 全1区画の詳細情報
5880万円
月々のローン返済額を試算【駅近】都営三田線『西高島平』駅徒歩4分の好立地!都心へアクセス良好!
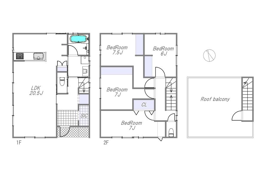
間取り・区画図(2枚)
周辺環境・アクセス(6枚)
その他(20枚)
物件概要
| 物件名 | ・ネット見学予約機能 板橋区三園1丁目 建築条件付き売地 全1区画 | ||||
|---|---|---|---|---|---|
| 所在地 | 東京都板橋区三園1 | ||||
| 交通 |
都営三田線「西高島平」歩4分 都営三田線「新高島平」歩16分 東武東上線「成増」歩25分 | ||||
| 最多価格帯 | - | 販売区画数/総区画数 | 1区画/- | ||
| 土地権利 | 所有権 | 造成工事完了予定年月 | - | ||
| 取引態様 | 仲介 | 引渡し | 相談 | ||
| 地目 | 宅地 | 用途地域 | 1種中高 | ||
| 建ぺい率・容積率 | 建ぺい率:60%、容積率:200% | 私道負担・道路 | - | ||
| セットバック | - | ||||
| その他費用 | - | ||||
| 建築条件 | 建築条件付建築条件付き土地とは、一定期間内(一般的には3ヶ月以上)に特定の建設会社と建築請負契約を結ぶことを条件にしている宅地のことです。建物の内容は、土地購入者の自由意思により決定可能で、土地売買契約後、建築請負会社と購入した土地に建設する建物について協議することになります。期間内に建築請負契約が成立しなければ売買契約は白紙となり、支払済みの金銭はすべて返却されます。 | ||||
| 販売スケジュール | - | ||||
| イベント情報 |
現地案内会(事前に必ず予約してください) 日程/公開中 時間/10:00~19:00 ▲CHIC POINT▲ 【未公開物件、大幅値引き可能物件など情報満載なホームページ】 ポータルサイトには掲載できない物件や提示できない大幅値引き可能物件など、様々な物件情報を弊社では取り揃えております。 都内だけを見ても多数の不動産会社がございますが、『他社様にはできないことを行う!』これがCHICの使命です。 気になる物件やご検討中の物件がございましたら、是非お問合せください。 【ファイナンシャルアドバイザーのご紹介】 自社のファイナンシャルプランナーではなく、第三者機関のファイナンシャルアドバイザーよりお客様目線のご提案を差し上げております。 弊社とは別の第三者機関からプランニングを行うことにより、公平な立場でご提案させて頂きます。 サービスは全て無料にてご案内しております。※要予約制 【経験豊富なスタッフがご対応します!】 弊社では100%『宅地建物取引士』を取得したスタッフがご対応させて頂きます。 不動産業界歴8年以上のベテランスタッフが手厚くサポートいたします。 物件についてはもちろん、購入時のお得な制度や税金関係なども含め、お気軽にご相談ください! 【重要な資金計画のご説明】 物件価格とは別にかかる諸経費や住宅ローンを借り入れした場合の支払額など、書面を作成しご説明します。 お客様に合わせた「借入額」や「借入先」をご提案しており、都市銀行・ネット銀行・信用金庫など幅広くご紹介が可能です。 資金計画や住宅ローンのご紹介について全て無料でご提案しておりますので、ご安心ください! その他、ご不明な点等ございましたらCHIC(シック)までお問合せ下さい。 | ||||
| その他制限事項 | 景観法による規制有、高度地区、準防火地域 | ||||
| 備考 | 担当者:村上 勇公、設備:公営水道、本下水、都市ガス | ||||
| 取引条件有効期限 | 2025年12月31日 | ||||
情報公開日:2025/12/01 次回更新予定日:情報提供より8日以内
取り扱い不動産会社
- 住所
- 東京都練馬区下石神井6-41-16 メゾン・ド・ヴェール102
- 電話番号
- 03-6913-3288
- 営業時間
- 営業時間:AM10:00~PM7:00 / 定休日:火曜日・水曜日
- 免許番号
- 東京都知事(1)第110033号
- 会社概要
- <仲介>
東京都知事(1)第110033号
(株)CHIC
〒177-0042 東京都練馬区下石神井6-41-16 メゾン・ド・ヴェール102
(株)エルク
西高島平駅の口コミ
自然環境
4.0
公園が多く、神社仏閣が多い地域のため、自然が豊か。東京23区内ですが、畑などもあり、不動の滝という小さい滝まであります。
お買い物・飲食
1.0
お店がありません。少し距離があります。大きなスーパーは二駅先まで行かないとありません。 駅前にも飲食店がないため不便です。
東京都近隣の都道府県から土地を探す
住宅ローンシミュレーション
住宅ローン設定
物件価格
返済期間
頭金
ボーナス払(年1回)
※
※物件価格の80%以下でお借入れの場合
※50歳以下で一般団信をご選択の場合
※住宅ローン金利優遇割適用後の変動金利(全期間引き下げプラン)
※実際のお借入日の金利により変動します。
※審査の結果によっては保証付金利プランとなる場合があり、この場合は上記とは異なる金利となります。
※別途借入金額の2.20%(税込)の事務手数料が発生します。
ボーナス払 | 35年間返済 | 30年間返済 | 25年間返済 | 20年間返済 | 15年間返済 | 10年間返済 |
|---|---|---|---|---|---|---|
0万円 | -円/月 | -円/月 | -円/月 | -円/月 | -円/月 | -円/月 |
5万円 | -円/月 | -円/月 | -円/月 | -円/月 | -円/月 | -円/月 |
10万円 | -円/月 | -円/月 | -円/月 | -円/月 | -円/月 | -円/月 |
15万円 | -円/月 | -円/月 | -円/月 | -円/月 | -円/月 | -円/月 |
20万円 | -円/月 | -円/月 | -円/月 | -円/月 | -円/月 | -円/月 |
25万円 | -円/月 | -円/月 | -円/月 | -円/月 | -円/月 | -円/月 |
30万円 | -円/月 | -円/月 | -円/月 | -円/月 | -円/月 | -円/月 |
ボーナス払 | 35年間返済 | 30年間返済 | 25年間返済 | 20年間返済 | 15年間返済 | 10年間返済 |
|---|---|---|---|---|---|---|
0万円 | -円/月 | -円/月 | -円/月 | -円/月 | -円/月 | -円/月 |
5万円 | -円/月 | -円/月 | -円/月 | -円/月 | -円/月 | -円/月 |
10万円 | -円/月 | -円/月 | -円/月 | -円/月 | -円/月 | -円/月 |
15万円 | -円/月 | -円/月 | -円/月 | -円/月 | -円/月 | -円/月 |
20万円 | -円/月 | -円/月 | -円/月 | -円/月 | -円/月 | -円/月 |
25万円 | -円/月 | -円/月 | -円/月 | -円/月 | -円/月 | -円/月 |
30万円 | -円/月 | -円/月 | -円/月 | -円/月 | -円/月 | -円/月 |
- ・金利は、今後35年間変動しない仮定のもと元利均等返済方式で計算しております。
- ・実際の金利は、各金融機関のホームページをご参照ください。
- ・ローン契約の際には、手数料や印紙税などの諸費用が別途かかります。
- ・ボーナス支払総額が総支払額の50%を超えている場合、上記の表では「ローン不可」となります。
- ・シミュレーションを利用し、それが原因で利用者が受けたいかなる損害についても当社は一切責任を負いません。あらかじめご了承ください。




















