土地コモンステージ田端【積水ハウス】の詳細情報
JR山手線田端駅徒歩9分山野線の内側に位置する閑静な住宅街です!
周辺環境・アクセス(8枚)
その他(20枚)

中学校
北区立田端中学校まで750m 徒歩10分。平成20年度に田端中学校と新町中学校が統合して新たに誕生した学校です。平成31年4月には、現在の地に8階建の新校舎が完成し、恵まれた環境の中で生徒が学んでいます。

公園
神明都電車庫跡公園まで510m 徒歩7分。区の管理する公園です。不忍通りの南側、勤労福祉会館と本駒込図書館に囲まれています。シンボルとして、都電6000形一両と、貨物車の乙1形の乙2号一両が展示されています。

その他
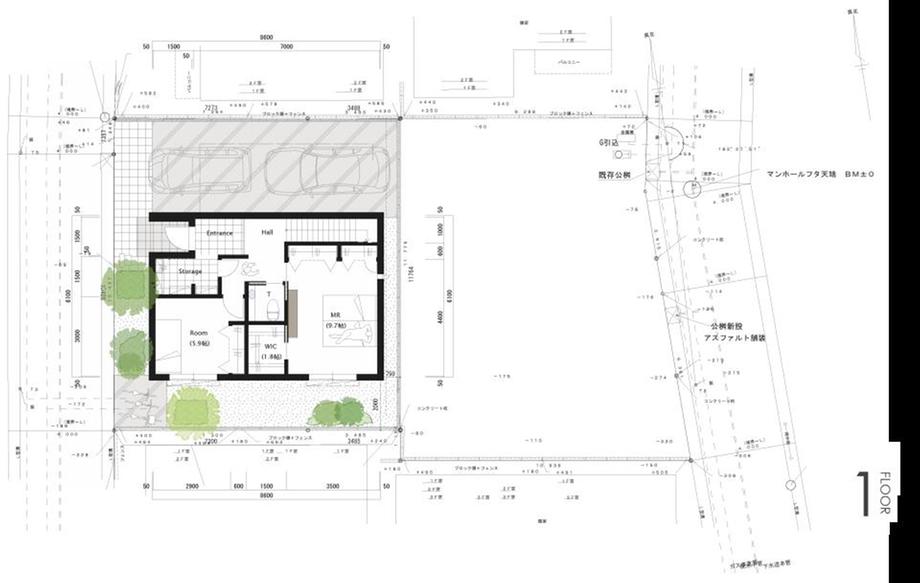
【No.1】 建物参考価格(No.1区画)9440万円(建物本体価格+消費税込)延床面積:164.08㎡ (49.63坪)■1F面積:50.21㎡■2F面積:64.46㎡■3F面積:49.41㎡
物件概要
| 物件名 | コモンステージ田端【積水ハウス】 | ||||
|---|---|---|---|---|---|
| 所在地 | 東京都北区田端2-5番7 | ||||
| 交通 |
JR山手線「田端」歩9分 JR山手線「西日暮里」歩15分 JR山手線「駒込」歩15分 | ||||
| 最多価格帯 | - | 販売区画数/総区画数 | 1区画/2区画 | ||
| 土地権利 | 所有権 | 造成工事完了予定年月 | 2025年6月(No.1) | ||
| 取引態様 | 土地売主 | 引渡し | - | ||
| 地目 | 宅地 | 用途地域 | 1種住居 | ||
| 建ぺい率・容積率 | 建ぺい率:60%/容積率:160% | 私道負担・道路 | 道路幅:4m、アスファルト舗装、私道負担なし | ||
| セットバック | - | ||||
| その他費用 | - | ||||
| 建築条件 | 建築条件付建築条件付き土地とは、一定期間内(一般的には3ヶ月以上)に特定の建設会社と建築請負契約を結ぶことを条件にしている宅地のことです。建物の内容は、土地購入者の自由意思により決定可能で、土地売買契約後、建築請負会社と購入した土地に建設する建物について協議することになります。期間内に建築請負契約が成立しなければ売買契約は白紙となり、支払済みの金銭はすべて返却されます。 | ||||
| 販売スケジュール | ※先着順受付中 | ||||
| イベント情報 |
現地案内会 ◇ご来場予約お待ちしております◇ 「どんな間取りが建てられるの?」 「一般土地と分譲地の違いは?」 「未公開土地とは?」お土地探しの悩みを、住まいの目線を含めてサポートします! (短時間・オンラインでのご相談も大歓迎です) ≪見学コース例≫ ■現地見学(約15分)・・・周辺環境・建物価格目安・計画等のご説明 ※現地を既にご見学いただいている場合、お近くのモデルハウスや展示場でも◎ ■マイホーム計画についてのご相談(約20分) ■建物の構造や保証に関するご相談(約20分) ■資金計画、税金、金利などお金に関するご相談(約20分) 相談内容や時間に関するご希望がありましたら備考欄にご記入ください。 お客様の希望する内容に沿ってご相談させていただきます。 | ||||
| その他制限事項 | - | ||||
| 備考 | 設備:電気:東京電力、ガス:都市ガス、水道::公営水道、汚水・雑排水・雨水:公共下水、開発許可番号:開発申請不要な土地のため無し、○掲載の徒歩分数は、1分あたり80mで計算し、1分未満は切り上げております。○坪表示は、1平方メートル=0.3025坪で換算し、小数点第三位以下は、切り捨てております。○本分譲地の土地売買契約は、契約締結後3ヶ月以内に売主である積水ハウス株式会社との間で建築工事請負契約が成立することを条件として効力を生じます。期限までに、建築工事請負契約が成立しなかったときは、土地売買契約の無効が確定し、受領済の手付金等は、全額無利息にてすみやかに返還いたします。 | ||||
| 取引条件有効期限 | 2025年10月30日 | ||||
情報公開日:2025/10/24 次回更新予定日:情報提供より8日以内
この物件の地図・周辺環境
このアイコンは物件のおおよその位置を表しており、実際の場所と異なる場合がございます。詳しくは不動産会社に直接ご確認ください。
※地図上に表示される物件の位置は付近住所に所在することを表すものであり、実際の物件所在地とは異なる場合がございます。
※地図の更新タイミングの関係で、物件情報が実際のものとは異なる場合や最新情報に更新されていない場合がございます。
※以下の南西諸島及び離島においては、表示される物件の位置が実際のものとは数百メートル程度ずれる場合がございます。
東京都:硫黄島・青ヶ島、沖縄県: 北大東島・南大東島・多良間島・水納島・与那国島・宮古諸島・石垣島・竹富島
取り扱い不動産会社
- 電話番号
- 0120-776-511
- 営業時間
- 営業時間:9:00~18:00 ※当会場では、購入のお申し込みは受け付けておりません。/定休日:火曜・水曜・祝日
- 会社概要
- <土地売主>
国土交通大臣(16)第000540号
(一社)不動産協会会員 (公社)首都圏不動産公正取引協議会加盟
積水ハウス(株)東京北支店
〒171-0021 東京都豊島区西池袋1-11-1 メトロポリタンプラザビル11階
田端駅の口コミ
お買い物・飲食
5.0
外食レストランが少なく、あってもラーメン屋や中華屋などの高カロリーなお店が多く、高頻度で行けるお店が少ない点が気になりました。
お買い物・飲食
3.0
飲食店は多くなく、駒込駅付近のアザレア通りまで行かないとありません。田端駅周辺はあまり栄えておらず、居酒屋は点在している感じです。
東京都近隣の都道府県から土地を探す
住宅ローンシミュレーション
住宅ローン設定
物件価格
返済期間
頭金
ボーナス払(年1回)
※
※物件価格の80%以下でお借入れの場合
※50歳以下で一般団信をご選択の場合
※住宅ローン金利優遇割適用後の変動金利(全期間引き下げプラン)
※実際のお借入日の金利により変動します。
※審査の結果によっては保証付金利プランとなる場合があり、この場合は上記とは異なる金利となります。
※別途借入金額の2.20%(税込)の事務手数料が発生します。
ボーナス払 | 35年間返済 | 30年間返済 | 25年間返済 | 20年間返済 | 15年間返済 | 10年間返済 |
|---|---|---|---|---|---|---|
0万円 | -円/月 | -円/月 | -円/月 | -円/月 | -円/月 | -円/月 |
5万円 | -円/月 | -円/月 | -円/月 | -円/月 | -円/月 | -円/月 |
10万円 | -円/月 | -円/月 | -円/月 | -円/月 | -円/月 | -円/月 |
15万円 | -円/月 | -円/月 | -円/月 | -円/月 | -円/月 | -円/月 |
20万円 | -円/月 | -円/月 | -円/月 | -円/月 | -円/月 | -円/月 |
25万円 | -円/月 | -円/月 | -円/月 | -円/月 | -円/月 | -円/月 |
30万円 | -円/月 | -円/月 | -円/月 | -円/月 | -円/月 | -円/月 |
ボーナス払 | 35年間返済 | 30年間返済 | 25年間返済 | 20年間返済 | 15年間返済 | 10年間返済 |
|---|---|---|---|---|---|---|
0万円 | -円/月 | -円/月 | -円/月 | -円/月 | -円/月 | -円/月 |
5万円 | -円/月 | -円/月 | -円/月 | -円/月 | -円/月 | -円/月 |
10万円 | -円/月 | -円/月 | -円/月 | -円/月 | -円/月 | -円/月 |
15万円 | -円/月 | -円/月 | -円/月 | -円/月 | -円/月 | -円/月 |
20万円 | -円/月 | -円/月 | -円/月 | -円/月 | -円/月 | -円/月 |
25万円 | -円/月 | -円/月 | -円/月 | -円/月 | -円/月 | -円/月 |
30万円 | -円/月 | -円/月 | -円/月 | -円/月 | -円/月 | -円/月 |
- ・金利は、今後35年間変動しない仮定のもと元利均等返済方式で計算しております。
- ・実際の金利は、各金融機関のホームページをご参照ください。
- ・ローン契約の際には、手数料や印紙税などの諸費用が別途かかります。
- ・ボーナス支払総額が総支払額の50%を超えている場合、上記の表では「ローン不可」となります。
- ・シミュレーションを利用し、それが原因で利用者が受けたいかなる損害についても当社は一切責任を負いません。あらかじめご了承ください。

















