土地上石神井南町(上石神井駅) 1億3400万円の詳細情報
1億3400万円
月々のローン返済額を試算急行停車駅上石神井駅歩6分 2世帯住宅等に適す 生活便利な立地
物件概要
| 物件名 | 上石神井南町(上石神井駅) 1億3400万円 | ||||
|---|---|---|---|---|---|
| 所在地 | 東京都練馬区上石神井南町 | ||||
| 交通 |
西武新宿線「上石神井」歩6分 | ||||
| 最多価格帯 | - | 販売区画数/総区画数 | 1区画/- | ||
| 土地権利 | 所有権 | 造成工事完了予定年月 | - | ||
| 取引態様 | 仲介 | 引渡し | 即引渡し可 | ||
| 地目 | 宅地 | 用途地域 | 1種低層 | ||
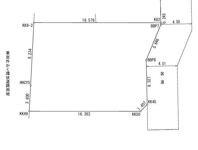
| 建ぺい率・容積率 | 50%・100% | 私道負担・道路 | 無、東4.5m幅(接道幅12.1m) | ||
| セットバック | - | ||||
| その他費用 | - | ||||
| 建築条件 | - | ||||
| 販売スケジュール | - | ||||
| イベント情報 |
現地案内会(事前に必ず予約してください) 日程/公開中 現地にてご説明いたします お問合せは03-3925-1210 | ||||
| その他制限事項 | 景観法による規制有、準防火地域 | ||||
| 備考 | 設備:公営水道、本下水、都市ガス | ||||
| 取引条件有効期限 | - | ||||
情報公開日:2025/12/01 次回更新予定日:情報提供より8日以内
取り扱い不動産会社
- 住所
- 東京都練馬区石神井台8-24-1
- 電話番号
- 03-3925-1210
- 営業時間
- 営業時間:10:00~19:00 / 定休日:水曜日、第2・4火曜日
- 免許番号
- 東京都知事(10)第048967号
- 会社概要
- <仲介>
東京都知事(10)第048967号
(公社)全日本不動産協会東京都本部会員 (公社)首都圏不動産公正取引協議会加盟
石泉住宅(株)
〒177-0045 東京都練馬区石神井台8-24-1
石泉住宅(株)
上石神井駅の口コミ
子育て・病院
4.0
幼稚園や学校などの教育施設もあり、図書館やクリニックも多く子育て・教育面では、良い環境なのではないでしょうか。パチンコ屋は、駅前にありますが風俗店はありませんので親御さんにとっては安心です。この周辺は、交通量もそれほど多くないので、まあまあの環境ではないでしょうか。
治安・安全
4.0
基本的に上石神井周辺は住宅街で治安はよい。駅前に交番もあり、夜中に出歩く場合もさほど恐怖を感じることはない
東京都近隣の都道府県から土地を探す
住宅ローンシミュレーション
住宅ローン設定
物件価格
返済期間
頭金
ボーナス払(年1回)
※
※物件価格の80%以下でお借入れの場合
※50歳以下で一般団信をご選択の場合
※住宅ローン金利優遇割適用後の変動金利(全期間引き下げプラン)
※実際のお借入日の金利により変動します。
※審査の結果によっては保証付金利プランとなる場合があり、この場合は上記とは異なる金利となります。
※別途借入金額の2.20%(税込)の事務手数料が発生します。
ボーナス払 | 35年間返済 | 30年間返済 | 25年間返済 | 20年間返済 | 15年間返済 | 10年間返済 |
|---|---|---|---|---|---|---|
0万円 | -円/月 | -円/月 | -円/月 | -円/月 | -円/月 | -円/月 |
5万円 | -円/月 | -円/月 | -円/月 | -円/月 | -円/月 | -円/月 |
10万円 | -円/月 | -円/月 | -円/月 | -円/月 | -円/月 | -円/月 |
15万円 | -円/月 | -円/月 | -円/月 | -円/月 | -円/月 | -円/月 |
20万円 | -円/月 | -円/月 | -円/月 | -円/月 | -円/月 | -円/月 |
25万円 | -円/月 | -円/月 | -円/月 | -円/月 | -円/月 | -円/月 |
30万円 | -円/月 | -円/月 | -円/月 | -円/月 | -円/月 | -円/月 |
ボーナス払 | 35年間返済 | 30年間返済 | 25年間返済 | 20年間返済 | 15年間返済 | 10年間返済 |
|---|---|---|---|---|---|---|
0万円 | -円/月 | -円/月 | -円/月 | -円/月 | -円/月 | -円/月 |
5万円 | -円/月 | -円/月 | -円/月 | -円/月 | -円/月 | -円/月 |
10万円 | -円/月 | -円/月 | -円/月 | -円/月 | -円/月 | -円/月 |
15万円 | -円/月 | -円/月 | -円/月 | -円/月 | -円/月 | -円/月 |
20万円 | -円/月 | -円/月 | -円/月 | -円/月 | -円/月 | -円/月 |
25万円 | -円/月 | -円/月 | -円/月 | -円/月 | -円/月 | -円/月 |
30万円 | -円/月 | -円/月 | -円/月 | -円/月 | -円/月 | -円/月 |
- ・金利は、今後35年間変動しない仮定のもと元利均等返済方式で計算しております。
- ・実際の金利は、各金融機関のホームページをご参照ください。
- ・ローン契約の際には、手数料や印紙税などの諸費用が別途かかります。
- ・ボーナス支払総額が総支払額の50%を超えている場合、上記の表では「ローン不可」となります。
- ・シミュレーションを利用し、それが原因で利用者が受けたいかなる損害についても当社は一切責任を負いません。あらかじめご了承ください。










