中古売戸建住宅兵庫県神戸市北区花山中尾台3丁目の中古売戸建住宅の詳細情報
物件概要
| 物件名 | 兵庫県神戸市北区花山中尾台3丁目の中古売戸建住宅 | ||||
|---|---|---|---|---|---|
| 所在地 | 兵庫県神戸市北区花山中尾台3丁目 | ||||
| 交通 |
神戸電鉄有馬線 「花山」駅 徒歩14分 神戸市営地下鉄北神線 「谷上」駅 徒歩33分 | ||||
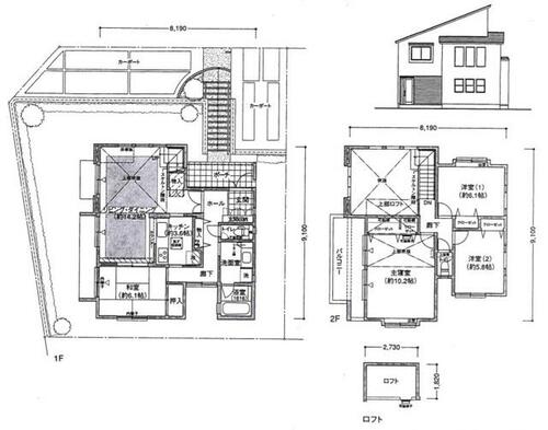
| 建物構造 | 木造/2階建 | 最多価格帯 | - | ||
| 販売戸数/総戸数 | -/- | 主要採光面 | 南西 | ||
| 引渡し | 相談 | 現況 | 居住中 | ||
| 管理 | - | 駐車場 | 有 (無料) | ||
| 地目 | - | 地勢 | - | ||
| 都市計画 | 市街化区域 | 用途地域 | 1種低層 | ||
| 建ぺい率 | 60.00% | 容積率 | 80.00% | ||
| 土地権利 | 所有権 | 国土法届出 | - | ||
| 私道負担・道路 | - | 接道状況 | - | ||
| セットバック | - | リフォーム | - | ||
| リノベーション | - | 取引態様 | 専任媒介 | ||
| 施工会社名 | 備考に記載 | 建築確認番号 | - | ||
| その他費用 | - | ||||
| その他制限事項 | - | ||||
| 備考 | 1/27日 商談中・施工会社:昭和工務店施工・■大きな吹抜けで開放的なリビング&2階10帖主寝室にロフト付 ■緑豊かな眺望&公園も隣接です ■角地&駐車2台&広いお庭 ■ 室内の大変綺麗にご使用されております。 | ||||
情報公開日:2026/04/03 次回更新予定日:情報更新日より14日以内
取り扱い不動産会社
- 住所
- 大阪府吹田市豊津町10-34井門江坂駅前ビル2階
- 電話番号
- 06-4861-6776
- 営業時間
- 09:00~19:00
- 定休日
- 年中無休
- 免許番号
- 大阪府知事免許(6)第47755号
- 所属団体
- (一社)大阪府宅地建物取引業協会、(公社)近畿地区不動産公正取引協議会
掲載期限まであと6日
花山駅の口コミ
お買い物・飲食
1.0
食事をするところも買い物をするところもない。コンビニが駅前にあるだけで日常の買い物には物足らないと思う
治安・安全
3.0
治安は良さそう。良い意味でも悪い意味でも田舎で悪いことができそうにない。 のどかで住宅しかないので騒音もない
兵庫県近隣の都道府県から中古一戸建てを探す
住宅ローンシミュレーション
住宅ローン設定
物件価格
返済期間
頭金
ボーナス払(年1回)
※
※物件価格の80%以下でお借入れの場合
※50歳以下で一般団信をご選択の場合
※住宅ローン金利優遇割適用後の変動金利(全期間引き下げプラン)
※実際のお借入日の金利により変動します。
※審査の結果によっては保証付金利プランとなる場合があり、この場合は上記とは異なる金利となります。
※別途借入金額の2.20%(税込)の事務手数料が発生します。
ボーナス払 | 35年間返済 | 30年間返済 | 25年間返済 | 20年間返済 | 15年間返済 | 10年間返済 |
|---|---|---|---|---|---|---|
0万円 | -円/月 | -円/月 | -円/月 | -円/月 | -円/月 | -円/月 |
5万円 | -円/月 | -円/月 | -円/月 | -円/月 | -円/月 | -円/月 |
10万円 | -円/月 | -円/月 | -円/月 | -円/月 | -円/月 | -円/月 |
15万円 | -円/月 | -円/月 | -円/月 | -円/月 | -円/月 | -円/月 |
20万円 | -円/月 | -円/月 | -円/月 | -円/月 | -円/月 | -円/月 |
25万円 | -円/月 | -円/月 | -円/月 | -円/月 | -円/月 | -円/月 |
30万円 | -円/月 | -円/月 | -円/月 | -円/月 | -円/月 | -円/月 |
ボーナス払 | 35年間返済 | 30年間返済 | 25年間返済 | 20年間返済 | 15年間返済 | 10年間返済 |
|---|---|---|---|---|---|---|
0万円 | -円/月 | -円/月 | -円/月 | -円/月 | -円/月 | -円/月 |
5万円 | -円/月 | -円/月 | -円/月 | -円/月 | -円/月 | -円/月 |
10万円 | -円/月 | -円/月 | -円/月 | -円/月 | -円/月 | -円/月 |
15万円 | -円/月 | -円/月 | -円/月 | -円/月 | -円/月 | -円/月 |
20万円 | -円/月 | -円/月 | -円/月 | -円/月 | -円/月 | -円/月 |
25万円 | -円/月 | -円/月 | -円/月 | -円/月 | -円/月 | -円/月 |
30万円 | -円/月 | -円/月 | -円/月 | -円/月 | -円/月 | -円/月 |
- ・金利は、今後35年間変動しない仮定のもと元利均等返済方式で計算しております。
- ・実際の金利は、各金融機関のホームページをご参照ください。
- ・ローン契約の際には、手数料や印紙税などの諸費用が別途かかります。
- ・ボーナス支払総額が総支払額の50%を超えている場合、上記の表では「ローン不可」となります。
- ・シミュレーションを利用し、それが原因で利用者が受けたいかなる損害についても当社は一切責任を負いません。あらかじめご了承ください。







