一戸建て白鷺2(鷺ノ宮駅) 6980万円の詳細情報
6980万円
月々のローン返済額を試算静けさと利便性が交差する白鷺の邸
物件概要
| 物件名 | 白鷺2(鷺ノ宮駅) 6980万円 | ||||
|---|---|---|---|---|---|
| 所在地 | 東京都中野区白鷺2 | ||||
| 交通 |
西武新宿線「鷺ノ宮」歩11分 JR中央線「阿佐ケ谷」歩21分 JR総武線「荻窪」バス15分白鷺一丁目歩3分 | ||||
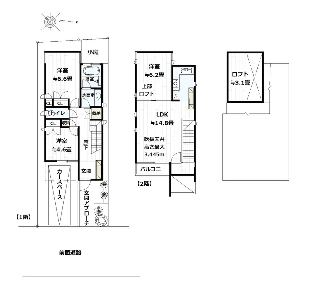
| 建物構造 | 木造2階建 | 最多価格帯 | - | ||
| 販売戸数/総戸数 | 1戸/- | 入居時期 | 相談 | ||
| 駐車場 | カースペース | 地目 | - | ||
| 用途地域 | 1種低層 | 建ぺい率・容積率 | 50%・150% | ||
| 土地権利 | 所有権 | 私道負担・道路 | 共有持分66.23㎡×(1/6)、東4m幅(接道幅5.5m) | ||
| セットバック | - | リフォーム |
2025年10月完了 水回り設備交換:浴室・トイレ 内装リフォーム:壁・床・全室 ※年月は一番古いリフォーム箇所を表します | ||
| 取引態様 | 売主 | 施工会社名 | - | ||
| 建築確認番号 | - | ||||
| その他費用 | - | ||||
| 販売スケジュール | - | ||||
| イベント情報 |
現地見学会 日程/公開中 時間/11:00~17:00 ・「水曜日以外の全ての曜日(土・日・祝日の対応が可能です。)」 ・「午前10:00~20:00まで」 ■お待合わせ方法 ・「希望指定」⇒OK! ・「現地集合」⇒OK! ■ご予約 ・「時間指定」⇒OK! ・「当日予約」⇒OK! ■ご依頼方法 ・日程にゆとりがある場合⇒「資料請求(無料)」や「見学予約(無料)」よりお問合せ下さい。 ・至急の場合⇒お電話でのお問合せで「最短対応!」 よろしけば、ついでに、どうぞ! 「どうせなら、まとめて複数の物件を見たい」 「一件だけじゃ物件の良し悪しが分からない」 そんなご意見に「お役に立ちます!」 物件ごとのニーズに対応した物件情報をご用意! 現地見学の途中ついでに「気になる物件情報」をピックアップしてもらい、即時に次の物件のカギを手配します! 「時間が無い」、「忙しい」。そんな方もご安心下さい。 物件情報は資料としての準備がございます。 お手すきの際に「Check」してもらって、後日のご予約でOK! | ||||
| その他制限事項 | - | ||||
| 備考 | 担当者:飯塚、設備:公営水道、本下水、都市ガス、駐車場:カースペース | ||||
| 取引条件有効期限 | - | ||||
情報公開日:2025/11/13 次回更新予定日:情報提供より8日以内
取り扱い不動産会社
- 電話番号
- 03-6661-1226
- 営業時間
- 営業時間:10:00~19:00 / 定休日:火曜日・水曜日
- 免許番号
- 東京都知事(3)第091079号
- 会社概要
- <売主>
東京都知事(3)第091079号
(公社)全日本不動産協会東京都本部会員 (公社)首都圏不動産公正取引協議会加盟
(株)ホームワークス
〒103-0007 東京都中央区日本橋浜町2-37-1 2階
(株)ホームワークス
鷺ノ宮駅の口コミ
お買い物・飲食
4.0
鷺宮駅の周辺はあまり栄えていない。気軽に外食できるような店が少ない。特に家族連れがいけるようなお店が少ないと思う。
治安・安全
2.0
やはり場所が場所なのでたまに変な人がいたりする。都内にしては治安がいい方なのでこれは仕方のないことかと
住宅ローンシミュレーション
住宅ローン設定
物件価格
返済期間
頭金
ボーナス払(年1回)
※
※物件価格の80%以下でお借入れの場合
※50歳以下で一般団信をご選択の場合
※住宅ローン金利優遇割適用後の変動金利(全期間引き下げプラン)
※実際のお借入日の金利により変動します。
※審査の結果によっては保証付金利プランとなる場合があり、この場合は上記とは異なる金利となります。
※別途借入金額の2.20%(税込)の事務手数料が発生します。
ボーナス払 | 35年間返済 | 30年間返済 | 25年間返済 | 20年間返済 | 15年間返済 | 10年間返済 |
|---|---|---|---|---|---|---|
0万円 | -円/月 | -円/月 | -円/月 | -円/月 | -円/月 | -円/月 |
5万円 | -円/月 | -円/月 | -円/月 | -円/月 | -円/月 | -円/月 |
10万円 | -円/月 | -円/月 | -円/月 | -円/月 | -円/月 | -円/月 |
15万円 | -円/月 | -円/月 | -円/月 | -円/月 | -円/月 | -円/月 |
20万円 | -円/月 | -円/月 | -円/月 | -円/月 | -円/月 | -円/月 |
25万円 | -円/月 | -円/月 | -円/月 | -円/月 | -円/月 | -円/月 |
30万円 | -円/月 | -円/月 | -円/月 | -円/月 | -円/月 | -円/月 |
ボーナス払 | 35年間返済 | 30年間返済 | 25年間返済 | 20年間返済 | 15年間返済 | 10年間返済 |
|---|---|---|---|---|---|---|
0万円 | -円/月 | -円/月 | -円/月 | -円/月 | -円/月 | -円/月 |
5万円 | -円/月 | -円/月 | -円/月 | -円/月 | -円/月 | -円/月 |
10万円 | -円/月 | -円/月 | -円/月 | -円/月 | -円/月 | -円/月 |
15万円 | -円/月 | -円/月 | -円/月 | -円/月 | -円/月 | -円/月 |
20万円 | -円/月 | -円/月 | -円/月 | -円/月 | -円/月 | -円/月 |
25万円 | -円/月 | -円/月 | -円/月 | -円/月 | -円/月 | -円/月 |
30万円 | -円/月 | -円/月 | -円/月 | -円/月 | -円/月 | -円/月 |
- ・金利は、今後35年間変動しない仮定のもと元利均等返済方式で計算しております。
- ・実際の金利は、各金融機関のホームページをご参照ください。
- ・ローン契約の際には、手数料や印紙税などの諸費用が別途かかります。
- ・ボーナス支払総額が総支払額の50%を超えている場合、上記の表では「ローン不可」となります。
- ・シミュレーションを利用し、それが原因で利用者が受けたいかなる損害についても当社は一切責任を負いません。あらかじめご了承ください。




















