一戸建て市川市大和田5丁目 新築 全5棟の詳細情報
5490万円~6590万円
月々のローン返済額を試算◆全7棟綺麗な分譲地!◆耐震等級3などの住宅性能評価取得した地震に強い家!
外観・室内・設備(17枚)
周辺環境・アクセス(9枚)
物件概要
| 物件名 | 市川市大和田5丁目 新築 全5棟 | ||||
|---|---|---|---|---|---|
| 所在地 | 千葉県市川市大和田5 | ||||
| 交通 |
JR総武線「本八幡」歩21分~21分 都営新宿線「本八幡」バス6分鶴指歩3分 京成本線「京成八幡」バス6分鶴指歩6分 | ||||
| 構造および階数 | 木造2階建て | 建ぺい率・容積率 | 建ぺい率60%、容積率100% | ||
| 完成予定日 | 2025年7月 | 入居可能予定日 | 相談 | ||
| 土地権利 | 所有権 | ||||
| 駐車場 | - | 国土法届出 | - | ||
| 地目 | 宅地 | 道路付け | 道路幅:4.5m~8m、南西 私道 4.5m 南東 公道 8m | ||
| 機構融資 | - | 取引態様 | 仲介 | ||
| 用途地域 | 1種低層 | ||||
| 施工会社 | - | ||||
| 建築確認番号 | 第HPA-25-03478-1号 | ||||
| 設備 | 駐車2台可 / 2沿線以上利用可 / LDK18畳以上 / スーパー 徒歩10分以内 / 市街地が近い / 南向き / システムキッチン / 浴室乾燥機 / 陽当り良好 / 全居室収納 / 南側道路面す / 閑静な住宅地 / 前道6m以上 / 整形地 / シャワー付洗面化粧台 / 対面式キッチン / トイレ2ヶ所 / 浴室1坪以上 / 2階建 / 南面バルコニー / オートバス / 温水洗浄便座 / 床下収納 / 浴室に窓 / TVモニタ付インターホン / 都市近郊 / 通風良好 / 全居室フローリング / 眺望良好 / 都市ガス / シューズインクローク / 全室2面採光 / 小学校 徒歩10分以内 / 平坦地 / 食器洗乾燥機 | ||||
| その他制限事項 | - | ||||
| 備考 | 担当者:代市 貴史、設備:公営水道、本下水、都市ガス、電気、建築確認番号:第HPA-25-03478-1号 | ||||
情報更新日:2025/10/24 次回更新予定日:情報提供より8日以内
販売概要
| 販売価格 | 5490万円~6590万円 お問い合わせはこちら | ||||
|---|---|---|---|---|---|
| 販売スケジュール | - | ||||
| 販売戸数/総戸数 | 4戸/5戸 | ||||
| 最多価格帯 | 5400万円台・5900万円台・6300万円台・6500万円台(各1戸) | ||||
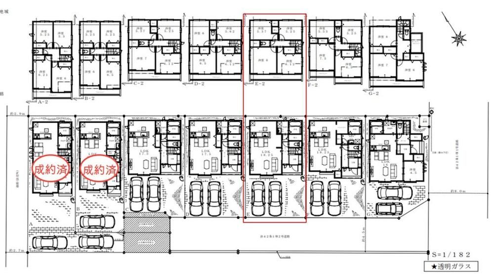
| 間取り | 4LDK | ||||
| 建物面積 | 97.29㎡~99.16㎡(29.43坪~29.99坪) | 土地面積 | 111.63㎡~113.18㎡(33.76坪~34.23坪) | ||
| その他施設費用、償却費 | - | ||||
| その他費用 | - | ||||
| 登録受付 | - | 抽選日 | - | ||
| モデルルーム情報 | 現地見学会(事前に必ず予約してください)日程/公開中時間/9:00~19:00◆所要時間◆おおよその所要時間や内容は、以下ご参考にしてみてください。・現地/物件見学(30分~)・ご希望条件のご相談(30分~)・資金計画のご相談(30分~)・土地・家の探し方のご相談(30分~)・会社の強みのご紹介(15分前後)◆ご案内方法◆弊社へご来社頂くか、お住い、最寄り駅へのお迎え、ご見学物件周辺等でのお待ち合わせなど、ご希望がございましたら、お申し付け下さい。ご見学ご希望物件以外にも、お客様の希望に合わせた物件などもご提案、ご案内致します。※完成前の建物については、完成物件、モデルハウス等もご覧いただけるよう手配致します。◆お車でご来社のお客様◆店舗横にお客様専用駐車場をご用意しております。※国道14号線沿いで大きな看板が目印です。千葉県市川市八幡1丁目4-24 ◆ご相談内容◆・どこの金融機関がオトクですか?・自己資金0ですけど、購入できますか?・諸経費ってどれくらいかかりますか?・月々の返済がどれくらいになるのか…?優和住宅のスタッフが親切丁寧に、ご理解いただけるようにご説明致します。納得して、気に入った不動産をご購入いただけるようにお手伝い致します。◆最後に◆不動産の購入は、人生に色々ある選択の中で非常に重要なものです。購入には様々な不安が付きまとうと思いますが、専門家に相談したほうが効率よくお目当ての物件を探せることもございます。人生の大きな決断のご協力をさせてください。些細なことでも構いませんので、ぜひお気軽にお問い合わせください。弊社一同、ご連絡お待ちしております。 | ||||
| 取引条件有効期限 | 2026年4月1日 | ||||
会社情報
| お問い合わせ先 |
(株)優和住宅 047-335-6000 上記の電話番号にお問合せください。(携帯・PHS 可) 【物件番号】78590038 | ||||
|---|---|---|---|---|---|
| 会社概要 |
(株)優和住宅[千葉県知事(8)第012106号] 千葉県市川市八幡1-4-24 【所属団体】 千葉県知事(8)第012106号(一社)千葉県宅地建物取引業協会会員 (公社)首都圏不動産公正取引協議会加盟 | ||||
この物件の地図・周辺環境
このアイコンは物件のおおよその位置を表しており、実際の場所と異なる場合がございます。詳しくは不動産会社に直接ご確認ください。
※地図上に表示される物件の位置は付近住所に所在することを表すものであり、実際の物件所在地とは異なる場合がございます。
※地図の更新タイミングの関係で、物件情報が実際のものとは異なる場合や最新情報に更新されていない場合がございます。
※以下の南西諸島及び離島においては、表示される物件の位置が実際のものとは数百メートル程度ずれる場合がございます。
東京都:硫黄島・青ヶ島、沖縄県: 北大東島・南大東島・多良間島・水納島・与那国島・宮古諸島・石垣島・竹富島
取り扱い不動産会社
- 電話番号
- 047-335-6000
- 受付
- 営業時間:9時~19時(火曜のみ16時まで) / 定休日:水曜日
- 物件番号
- 78590038
(株)ハウスプラザ本八幡店
飯田グループホールディングス ホームトレードセンター(株)松戸営業所
本八幡駅の口コミ
お買い物・飲食
5.0
OKストア、シャポー(駅ビル)、カスミ、ドンキなどが近く、買い物に便利です。マクドナルドなど、主要なチェーン店もだいたいあります。遅くまで営業しているお店が多いので共働き家庭でも特に困ることなくやっていけました。
子育て・病院
4.0
病院はたくさんあるので自分に合ったところを選べる。ただ、待機児童が多いとの情報があるので子連れの方は調べた方がいいかもしれない。
住宅ローンシミュレーション
住宅ローン設定
物件価格
返済期間
頭金
ボーナス払(年1回)
※
※物件価格の80%以下でお借入れの場合
※50歳以下で一般団信をご選択の場合
※住宅ローン金利優遇割適用後の変動金利(全期間引き下げプラン)
※実際のお借入日の金利により変動します。
※審査の結果によっては保証付金利プランとなる場合があり、この場合は上記とは異なる金利となります。
※別途借入金額の2.20%(税込)の事務手数料が発生します。
ボーナス払 | 35年間返済 | 30年間返済 | 25年間返済 | 20年間返済 | 15年間返済 | 10年間返済 |
|---|---|---|---|---|---|---|
0万円 | -円/月 | -円/月 | -円/月 | -円/月 | -円/月 | -円/月 |
5万円 | -円/月 | -円/月 | -円/月 | -円/月 | -円/月 | -円/月 |
10万円 | -円/月 | -円/月 | -円/月 | -円/月 | -円/月 | -円/月 |
15万円 | -円/月 | -円/月 | -円/月 | -円/月 | -円/月 | -円/月 |
20万円 | -円/月 | -円/月 | -円/月 | -円/月 | -円/月 | -円/月 |
25万円 | -円/月 | -円/月 | -円/月 | -円/月 | -円/月 | -円/月 |
30万円 | -円/月 | -円/月 | -円/月 | -円/月 | -円/月 | -円/月 |
ボーナス払 | 35年間返済 | 30年間返済 | 25年間返済 | 20年間返済 | 15年間返済 | 10年間返済 |
|---|---|---|---|---|---|---|
0万円 | -円/月 | -円/月 | -円/月 | -円/月 | -円/月 | -円/月 |
5万円 | -円/月 | -円/月 | -円/月 | -円/月 | -円/月 | -円/月 |
10万円 | -円/月 | -円/月 | -円/月 | -円/月 | -円/月 | -円/月 |
15万円 | -円/月 | -円/月 | -円/月 | -円/月 | -円/月 | -円/月 |
20万円 | -円/月 | -円/月 | -円/月 | -円/月 | -円/月 | -円/月 |
25万円 | -円/月 | -円/月 | -円/月 | -円/月 | -円/月 | -円/月 |
30万円 | -円/月 | -円/月 | -円/月 | -円/月 | -円/月 | -円/月 |
- ・金利は、今後35年間変動しない仮定のもと元利均等返済方式で計算しております。
- ・実際の金利は、各金融機関のホームページをご参照ください。
- ・ローン契約の際には、手数料や印紙税などの諸費用が別途かかります。
- ・ボーナス支払総額が総支払額の50%を超えている場合、上記の表では「ローン不可」となります。
- ・シミュレーションを利用し、それが原因で利用者が受けたいかなる損害についても当社は一切責任を負いません。あらかじめご了承ください。
※価格は物件の代金総額を表示しており、消費税が課税される場合は税込み価格です。 (1000円未満は切り上げ。)
※写真に写っている、またはパース(絵)や間取り図に描かれている家具や車などは、特にコメントがない場合、販売価格に含まれません。
※敷地権利が定期借地権のものは価格に権利金を含みます。
※建築条件付き土地価格には、建物価格は含まれません。
※物件情報は、原則として情報提供日の2日前に最終確認した情報です。
※完成予想図はいずれも外構、植栽、外観等実際のものとは多少異なることがあります。
※モデルルーム・モデルハウス・展示場・ショールームの画像の場合、今回販売の物件と異なる場合があります。
※CG合成の画像の場合、実際とは多少異なる場合があります。
※物件特徴:販売戸数が複数の物件は、全ての住戸に該当しない項目もあります。
※0800で始まる電話番号は通話料無料です。また、サービス検証のため当該番号の利用履歴を個人が特定できない範囲で取得しています。予めご了承ください。
※完成後1年以上を経過した未入居物件が掲載される場合があります。ご了承ください。
※新着:物件情報が「SUUMO」に掲載された日から1週間表示されます。
※価格更新:物件価格が変更された日から1週間表示されます。
※販売予定物件はすべて、販売開始するまで契約または予約の申込みはできません。
※購入の前には物件内容や契約条件についてご自身で十分な確認をしていただくようにお願いいたします。
※建築条件土地の情報内に掲載されている、建物プラン例は、土地購入者の設計プランの参考の一例であって、プランの採用可否は任意です。
※土地(建築条件なし)で「建物プラン例」が表記してある時、そのプラン例は特定の建築請負会社によるもので、当該建築請負会社以外で建てた場合、同様のものが同価格で建てられるとは限りません。また建築請負会社を特定するものではありません。
※建築条件付き土地とは、その土地に建築する建物の建築請負契約が、一定期間内に成立することを条件として売買される土地のことをいいます。建築請負契約成立に向けて設計プランを協議するため、土地購入者が自己の希望する建物の設計協議をするために必要な相当の期間の交渉期間が設定され、その期間内で希望を満たすプランが実現できたかどうかにより結論を出します。なお、この期間は概ね3ヶ月程度とされています。納得のいくプランが出来ず、建築請負契約が成立しない場合、土地売買契約は白紙に戻り、土地契約にかかった代金(土地代金、手付金など)は名目のいかんに関わらず、全て返却されます。

































