一戸建て柿木浜町(中書島駅) 5480万円の詳細情報
5480万円
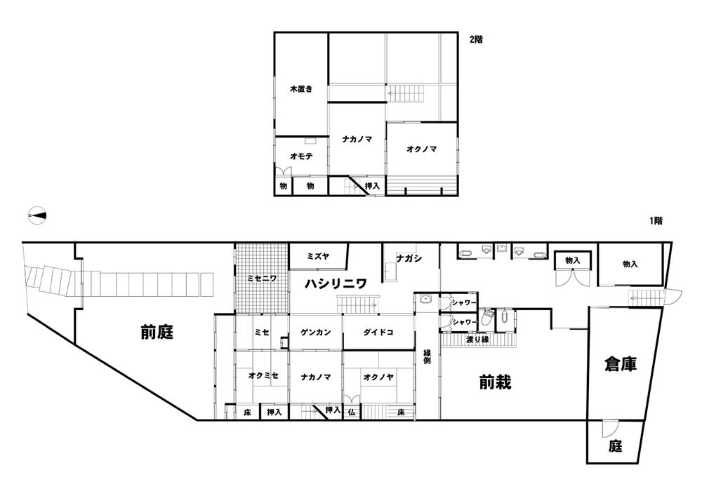
月々のローン返済額を試算■■明治45年の大型京町家!■■2008年に大規模リノベーション済!■■
物件概要
| 物件名 | 柿木浜町(中書島駅) 5480万円 | ||||
|---|---|---|---|---|---|
| 所在地 | 京都府京都市伏見区柿木浜町 | ||||
| 交通 |
京阪本線「中書島」歩8分 京阪宇治線「観月橋」歩8分 京阪本線「伏見桃山」歩9分 | ||||
| 建物構造 | 木造2階建 | 最多価格帯 | - | ||
| 販売戸数/総戸数 | 1戸/1戸 | 入居時期 | 相談 | ||
| 駐車場 | 無 | 地目 | - | ||
| 用途地域 | 1種住居 | 建ぺい率・容積率 | 60%・200% | ||
| 土地権利 | 所有権 | 私道負担・道路 | 無、北4.6m幅(接道幅2.8m) | ||
| セットバック | - | リフォーム |
2008年10月完了 水回り設備交換:キッチン・トイレ 内装リフォーム:壁・床 その他:お問合せください。 ※年月は一番古いリフォーム箇所を表します | ||
| 取引態様 | 仲介 | 施工会社名 | - | ||
| 建築確認番号 | - | ||||
| その他費用 | - | ||||
| 販売スケジュール | - | ||||
| イベント情報 | - | ||||
| その他制限事項 | 景観法による規制有、宅地造成工事規制区域、準防火地域、15m第2種高度地区、歴史遺産型美観地区、伏見南浜界わい景観整備地区、近景デザイン保全区域(32)、屋外広告物等に関する条例第11条第1項第6項に規定する鉄道等及びその隣接区域、歴史遺産型第2種地域、居住誘導区域、既成都市区域、宅地造成等工事規制区域、京町家条例に基づく指定地区 | ||||
| 備考 | 担当者:岡本 慎太郎、設備:公営水道、本下水、都市ガス、駐車場:無 | ||||
| 取引条件有効期限 | - | ||||
情報公開日:2025/12/13 次回更新予定日:情報提供より8日以内
取り扱い不動産会社
- 住所
- 京都府京都市伏見区深草キトロ町30-12
- 電話番号
- 075-645-3191
- 営業時間
- 営業時間:9:30~19:00 / 定休日:水曜日
- 免許番号
- 京都府知事(14)第004009号
- 会社概要
- <仲介>
京都府知事(14)第004009号
(公社)京都府宅地建物取引業協会会員 (公社)近畿地区不動産公正取引協議会加盟
(株)都ハウジング
〒612-0025 京都府京都市伏見区深草キトロ町30-12
中書島駅の口コミ
治安・安全
2.0
駅前商店街が少し変わった人が多い印象(当時)でした。そのため、夜道を一人で出歩くのは怖かったです。ただ、今は駅前も綺麗になり、改善されているかもしれません。
治安・安全
1.0
歩き煙草が多く、飲食店も多いのでお酒を飲んで歩いている人が多い。 商店街をマスク無しで大声で笑いながら歩く人もいる。 ガールズバーのキャッチもいる。
京都府近隣の都道府県から中古一戸建てを探す
住宅ローンシミュレーション
住宅ローン設定
物件価格
返済期間
頭金
ボーナス払(年1回)
※
※物件価格の80%以下でお借入れの場合
※50歳以下で一般団信をご選択の場合
※住宅ローン金利優遇割適用後の変動金利(全期間引き下げプラン)
※実際のお借入日の金利により変動します。
※審査の結果によっては保証付金利プランとなる場合があり、この場合は上記とは異なる金利となります。
※別途借入金額の2.20%(税込)の事務手数料が発生します。
ボーナス払 | 35年間返済 | 30年間返済 | 25年間返済 | 20年間返済 | 15年間返済 | 10年間返済 |
|---|---|---|---|---|---|---|
0万円 | -円/月 | -円/月 | -円/月 | -円/月 | -円/月 | -円/月 |
5万円 | -円/月 | -円/月 | -円/月 | -円/月 | -円/月 | -円/月 |
10万円 | -円/月 | -円/月 | -円/月 | -円/月 | -円/月 | -円/月 |
15万円 | -円/月 | -円/月 | -円/月 | -円/月 | -円/月 | -円/月 |
20万円 | -円/月 | -円/月 | -円/月 | -円/月 | -円/月 | -円/月 |
25万円 | -円/月 | -円/月 | -円/月 | -円/月 | -円/月 | -円/月 |
30万円 | -円/月 | -円/月 | -円/月 | -円/月 | -円/月 | -円/月 |
ボーナス払 | 35年間返済 | 30年間返済 | 25年間返済 | 20年間返済 | 15年間返済 | 10年間返済 |
|---|---|---|---|---|---|---|
0万円 | -円/月 | -円/月 | -円/月 | -円/月 | -円/月 | -円/月 |
5万円 | -円/月 | -円/月 | -円/月 | -円/月 | -円/月 | -円/月 |
10万円 | -円/月 | -円/月 | -円/月 | -円/月 | -円/月 | -円/月 |
15万円 | -円/月 | -円/月 | -円/月 | -円/月 | -円/月 | -円/月 |
20万円 | -円/月 | -円/月 | -円/月 | -円/月 | -円/月 | -円/月 |
25万円 | -円/月 | -円/月 | -円/月 | -円/月 | -円/月 | -円/月 |
30万円 | -円/月 | -円/月 | -円/月 | -円/月 | -円/月 | -円/月 |
- ・金利は、今後35年間変動しない仮定のもと元利均等返済方式で計算しております。
- ・実際の金利は、各金融機関のホームページをご参照ください。
- ・ローン契約の際には、手数料や印紙税などの諸費用が別途かかります。
- ・ボーナス支払総額が総支払額の50%を超えている場合、上記の表では「ローン不可」となります。
- ・シミュレーションを利用し、それが原因で利用者が受けたいかなる損害についても当社は一切責任を負いません。あらかじめご了承ください。





















