中古マンション鐘紡夙川台マンション 1階/7階 南向きの詳細情報
外観・室内・設備(4枚)
物件概要
| 物件名 | 鐘紡夙川台マンション 1階/7階 南向き | ||||
|---|---|---|---|---|---|
| 所在地 | 兵庫県西宮市樋之池町 | ||||
| 交通 |
阪急甲陽線 苦楽園口駅 徒歩13分 阪急神戸本線 夙川駅 徒歩19分 | ||||
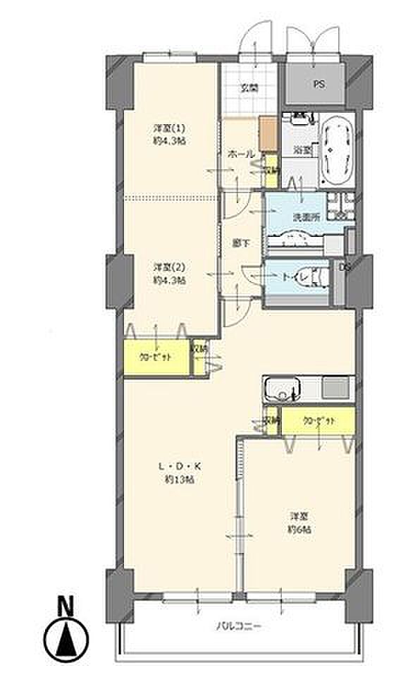
| 建物構造 | RC(鉄筋コンクリート) | 間取り詳細(帖) | リビングダイニングキッチン 13帖洋室 6帖洋室 4.3帖洋室 4.3帖 | ||
| 総戸数 | 77戸 | 事務所戸数 | - | ||
| 主要採光面 | 南 | 修繕積立金 | 14,297円 | ||
| 修繕積立基金 | - | バルコニー面積 | 5.5m2 | ||
| 土地権利 | 所有権 | 引渡し | 相談 | ||
| 現況 | 空家 | 管理 | 管理員:日勤、管理形態:全部委託、管理組合:有、管理会社:伊藤忠アーバンコミュニティ株式会社 | ||
| 駐車場 | - | 地目 | - | ||
| 地勢 | - | 都市計画 | 市街化区域 | ||
| 用途地域 | 第一種中高層住居専用地域 | 建ぺい率 | 60% | ||
| 容積率 | 200% | リフォーム |
実施年月(水回り):2020年03月 箇所:キッチン/浴室/トイレ/洗面所 実施年月(内装):2020年03月 箇所:床(フローリング等)/壁、天井(クロス、塗装等) | ||
| リノベーション | - | 取引態様 | 仲介 | ||
| 施工会社名 | - | ||||
| その他費用 | - | ||||
| オープンルーム情報 | - | ||||
| 備考 | ◆阪急甲陽園線「苦楽園口」駅 徒歩13分◆バルコニーが南向きで、1日を通して日差しが気持ちよく射し込みます◆スーパーが近く、お買い物にも便利です◆管理人が日勤している為、不審者やセールス訪問を監視・対応します◆備考・駐車場:有※確認要 月額10500円~14700円・駐輪場:月額300円・バイク置き場:月額700円・耐震診断済 ・2020年3月フルリノベーション済 ・2024年1月大規模修繕工事実施済◇◆神戸不動産リアルティ◆◇私たちは神戸・西宮・明石エリア密着の不動産売買専門会社です。ラジオ・TV CM「サンテレビボックス席」にてテレビCM、「kissFM kobe」にてラジオCMを放送中!物件の売却相談も承ります!圧倒的な広告量でより早く高く売ります! ラジオ・TV CM「サンテレビボックス席」にてテレビCM、「kissFM kobe」にてラジオCMを放送中! 地域に根ざした情報力とスピード感のある対応で、理想の住まい探しをサポート致します♪ | ||||
情報公開日:2025/10/19 有効期限:2025/12/21
設備・条件
| 位置 | 1階の物件、南向き | ||||
|---|---|---|---|---|---|
| キッチン | システムキッチン | ||||
| 設備・サービス | バルコニー、フローリング、下水、都市ガス、室内洗濯機置場、専用トイレ、専用バス、洗面所独立、エレベーター | ||||
| 物件規模 | 総戸数・総区画数30以上 | ||||
| その他 | 南面バルコニー、所有権、リフォーム・リノベーション済、鉄筋系、リフォーム物件、駐輪場あり、子育てに便利な施設が充実、クローゼット、バイク置き場あり | ||||
| 周辺環境 | コンビニ 400m以内、コンビニ 800m以内、公園 400m以内、小学校 800m以内、スーパー 800m以内、複数路線 | ||||
この物件の地図・周辺環境
このアイコンは物件のおおよその位置を表しており、実際の場所と異なる場合がございます。詳しくは不動産会社に直接ご確認ください。
取り扱い不動産会社
- 住所
- 兵庫県西宮市高松町1-12
- 電話番号
- 0798-61-3851
- 営業時間
- 09:00~20:00
- 定休日
- 水曜日
- 免許番号
- 兵庫県知事(03)第401433号
- 所属団体
- (公社)近畿圏不動産流通機構
神戸不動産リアルティ(株)西宮支店
電話で問い合わせる(無料)お急ぎの方はこちらから!
物件お問い合わせ専用ダイヤル
営業時間:09:00~20:00(定休日:水曜日) 携帯・PHS可
音声案内に従って以下の数字を入力
お問い合わせ番号:13298-1059
LIFULL HOME'S物件番号:B01813-001621
※お客様の電話番号は不動産会社に通知されません。
※光IP電話、及びIP電話からはご利用になれません。
※不動産会社の方からの上記電話番号によるお問合せはお断りしております。
掲載期限まであと6日
苦楽園口駅の口コミ
治安・安全
5.0
周辺地域の治安は大変良いです。お子さんでも安心して遊ばせられると思います。公園があるので、気分転換や家族で楽しめる地域が多い印象です。
子育て・病院
4.0
樋之池小学校が近くで校区で評判が良いと聞いています。また、病院関係も非常に多く点在しています。安心して住むには助かる環境です。
住宅ローンシミュレーション
住宅ローン設定
物件価格
返済期間
頭金
ボーナス払(年1回)
※
※物件価格の80%以下でお借入れの場合
※50歳以下で一般団信をご選択の場合
※住宅ローン金利優遇割適用後の変動金利(全期間引き下げプラン)
※実際のお借入日の金利により変動します。
※審査の結果によっては保証付金利プランとなる場合があり、この場合は上記とは異なる金利となります。
※別途借入金額の2.20%(税込)の事務手数料が発生します。
ボーナス払 | 35年間返済 | 30年間返済 | 25年間返済 | 20年間返済 | 15年間返済 | 10年間返済 |
|---|---|---|---|---|---|---|
0万円 | -円/月 | -円/月 | -円/月 | -円/月 | -円/月 | -円/月 |
5万円 | -円/月 | -円/月 | -円/月 | -円/月 | -円/月 | -円/月 |
10万円 | -円/月 | -円/月 | -円/月 | -円/月 | -円/月 | -円/月 |
15万円 | -円/月 | -円/月 | -円/月 | -円/月 | -円/月 | -円/月 |
20万円 | -円/月 | -円/月 | -円/月 | -円/月 | -円/月 | -円/月 |
25万円 | -円/月 | -円/月 | -円/月 | -円/月 | -円/月 | -円/月 |
30万円 | -円/月 | -円/月 | -円/月 | -円/月 | -円/月 | -円/月 |
ボーナス払 | 35年間返済 | 30年間返済 | 25年間返済 | 20年間返済 | 15年間返済 | 10年間返済 |
|---|---|---|---|---|---|---|
0万円 | -円/月 | -円/月 | -円/月 | -円/月 | -円/月 | -円/月 |
5万円 | -円/月 | -円/月 | -円/月 | -円/月 | -円/月 | -円/月 |
10万円 | -円/月 | -円/月 | -円/月 | -円/月 | -円/月 | -円/月 |
15万円 | -円/月 | -円/月 | -円/月 | -円/月 | -円/月 | -円/月 |
20万円 | -円/月 | -円/月 | -円/月 | -円/月 | -円/月 | -円/月 |
25万円 | -円/月 | -円/月 | -円/月 | -円/月 | -円/月 | -円/月 |
30万円 | -円/月 | -円/月 | -円/月 | -円/月 | -円/月 | -円/月 |
- ・金利は、今後35年間変動しない仮定のもと元利均等返済方式で計算しております。
- ・実際の金利は、各金融機関のホームページをご参照ください。
- ・ローン契約の際には、手数料や印紙税などの諸費用が別途かかります。
- ・ボーナス支払総額が総支払額の50%を超えている場合、上記の表では「ローン不可」となります。
- ・シミュレーションを利用し、それが原因で利用者が受けたいかなる損害についても当社は一切責任を負いません。あらかじめご了承ください。






























