マンション 「クリオ横浜高島町壱番館 7階」=リフォーム中=の詳細情報
7680万円
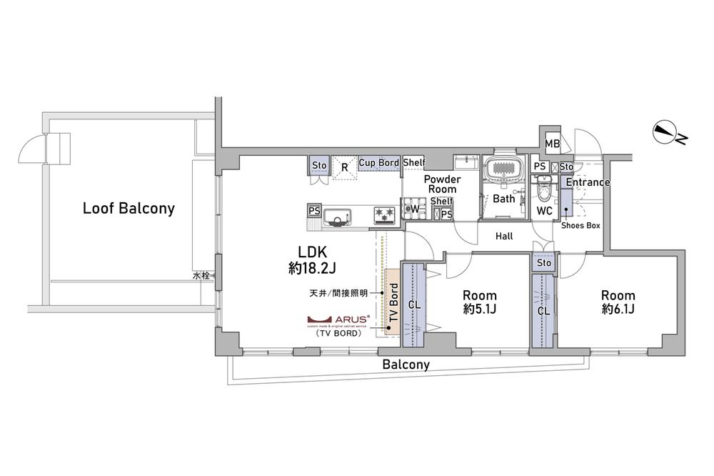
月々のローン返済額を試算7階 南東角住戸 【ルーフバルコニー付き】 眺望良好LDKゆとりの約18.2帖
その他(12枚)
物件概要
| 物件名 | 「クリオ横浜高島町壱番館 7階」=リフォーム中= | ||||
|---|---|---|---|---|---|
| 所在地 | 神奈川県横浜市西区戸部町5丁目 | ||||
| 交通 |
JR京浜東北線「桜木町」歩12分 ブルーライン「高島町」歩5分 京急本線「戸部」歩8分 | ||||
| 建物構造 | RC11階建 | 最多価格帯 | - | ||
| 販売戸数/総戸数 | 1戸/77戸 | 主要採光面 | 南東 | ||
| 修繕積立金 | 2万90円/月 | 修繕積立基金 | - | ||
| その他面積 | バルコニー面積:6.22㎡、ルーフバルコニー:21.87㎡(使用料220円/月) | 土地権利 | 所有権 | ||
| 入居時期 | 相談 | 管理 | 1万800円/月(委託(通勤)) | ||
| 駐車場 | - | 用途地域 | 商業、近隣商業 | ||
| リフォーム |
2025年10月完了予定 水回り設備交換:キッチン・浴室・トイレ 内装リフォーム:壁・床・全室 ※年月は一番古いリフォーム箇所を表します | 取引態様 | 販売提携(代理) | ||
| 施工会社名 | (株)熊谷組 | ||||
| その他費用 | - | ||||
| 販売スケジュール | - | ||||
| イベント情報 |
=不動産売却キャンペーン実施中= 横浜で20年以上の実績。地元企業ならではの販売力で、大切なご自宅の売却をサポートいたします。詳細はどうぞお気軽にお問合せください。 ※専任媒介契約の場合のみ ※弊社査定価格で売却された方が対象です ※査定・相談無料/秘密厳守。安心してご相談ください ■■住宅ローン無料相談会開催中!(要予約)■■ マイホーム購入の際大事となる“お金”のはなし。 ◆いくらまでの家なら自分は安全に買えるんだろう? ◆頭金0円でも家って買えるの? ◆車のローンがあるけど大丈夫? ◆住宅ローンの正しい選び方ってあるの? ◆そもそも今って買い時なの?・・・・などなど 様々な疑問に専門スタッフがお答えいたします。 これからマイホーム購入をお考えの方、まず最初のスタートとしてお気軽にご相談ください | ||||
| その他制限事項 | 景観法、都市緑地法 | ||||
| 備考 | - | ||||
| 取引条件有効期限 | - | ||||
情報公開日:2025/10/25 次回更新予定日:情報提供より8日以内
取り扱い不動産会社
- 住所
- 神奈川県横浜市中区太田町1-1 神奈川住空間ビル
- 電話番号
- 045-680-0081
- 営業時間
- 営業時間:9:30~19:30 / 定休日:火曜日・水曜日
- 免許番号
- 国土交通大臣(2)第009427号
- 会社概要
- <販売提携(代理)>
国土交通大臣(2)第009427号
(公社)全日本不動産協会神奈川県本部会員 (公社)首都圏不動産公正取引協議会加盟
東京住空間 横浜オフィス住空間不動産販売(株)
〒231-0011 神奈川県横浜市中区太田町1-1 神奈川住空間ビル
桜木町駅の口コミ
お買い物・飲食
2.0
当時は近くのスーパーは桜木町駅か野毛のスーパーが最寄でした。 しかし駅のスーパーは高く、品揃えもあまり良くなかった記憶があります。
お買い物・飲食
5.0
野毛や吉田町等の食べ物屋さん、コンビニ、スーパー等あり生活しやすかったです。 また桜木町が近いため、買い物もしやすかったです。
神奈川県近隣の都道府県から中古マンションを探す
住宅ローンシミュレーション
住宅ローン設定
物件価格
返済期間
頭金
ボーナス払(年1回)
※
※物件価格の80%以下でお借入れの場合
※50歳以下で一般団信をご選択の場合
※住宅ローン金利優遇割適用後の変動金利(全期間引き下げプラン)
※実際のお借入日の金利により変動します。
※審査の結果によっては保証付金利プランとなる場合があり、この場合は上記とは異なる金利となります。
※別途借入金額の2.20%(税込)の事務手数料が発生します。
ボーナス払 | 35年間返済 | 30年間返済 | 25年間返済 | 20年間返済 | 15年間返済 | 10年間返済 |
|---|---|---|---|---|---|---|
0万円 | -円/月 | -円/月 | -円/月 | -円/月 | -円/月 | -円/月 |
5万円 | -円/月 | -円/月 | -円/月 | -円/月 | -円/月 | -円/月 |
10万円 | -円/月 | -円/月 | -円/月 | -円/月 | -円/月 | -円/月 |
15万円 | -円/月 | -円/月 | -円/月 | -円/月 | -円/月 | -円/月 |
20万円 | -円/月 | -円/月 | -円/月 | -円/月 | -円/月 | -円/月 |
25万円 | -円/月 | -円/月 | -円/月 | -円/月 | -円/月 | -円/月 |
30万円 | -円/月 | -円/月 | -円/月 | -円/月 | -円/月 | -円/月 |
ボーナス払 | 35年間返済 | 30年間返済 | 25年間返済 | 20年間返済 | 15年間返済 | 10年間返済 |
|---|---|---|---|---|---|---|
0万円 | -円/月 | -円/月 | -円/月 | -円/月 | -円/月 | -円/月 |
5万円 | -円/月 | -円/月 | -円/月 | -円/月 | -円/月 | -円/月 |
10万円 | -円/月 | -円/月 | -円/月 | -円/月 | -円/月 | -円/月 |
15万円 | -円/月 | -円/月 | -円/月 | -円/月 | -円/月 | -円/月 |
20万円 | -円/月 | -円/月 | -円/月 | -円/月 | -円/月 | -円/月 |
25万円 | -円/月 | -円/月 | -円/月 | -円/月 | -円/月 | -円/月 |
30万円 | -円/月 | -円/月 | -円/月 | -円/月 | -円/月 | -円/月 |
- ・金利は、今後35年間変動しない仮定のもと元利均等返済方式で計算しております。
- ・実際の金利は、各金融機関のホームページをご参照ください。
- ・ローン契約の際には、手数料や印紙税などの諸費用が別途かかります。
- ・ボーナス支払総額が総支払額の50%を超えている場合、上記の表では「ローン不可」となります。
- ・シミュレーションを利用し、それが原因で利用者が受けたいかなる損害についても当社は一切責任を負いません。あらかじめご了承ください。













