中古売マンション東京都港区六本木3丁目の中古売マンションの詳細情報
掲載期限まであと12日
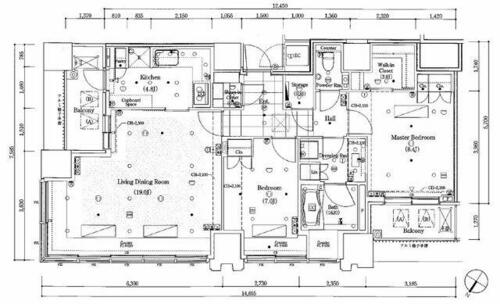
物件概要
| 物件名 | 東京都港区六本木3丁目の中古売マンション | ||||
|---|---|---|---|---|---|
| 所在地 | 東京都港区六本木3丁目 | ||||
| 交通 |
東京メトロ日比谷線 「六本木」駅 徒歩3分 都営大江戸線 「六本木」駅 徒歩3分 東京メトロ南北線 「六本木一丁目」駅 徒歩6分 | ||||
| 建物構造 | RC | 総戸数 | 611戸 | ||
| 主要採光面 | 北東 | 修繕積立金 | 38,430円 | ||
| バルコニー面積 | 9.01㎡ | 土地権利 | 所有権 | ||
| 入居時期 | 相談 | 現況 | 空 | ||
| 管理 | 管理員/管理人常駐 管理形態/全部委託 | 駐車場 | 有 90,000円/月 | ||
| 都市計画 | - | 用途地域 | 商業地域 | ||
| 建ぺい率 | - | 容積率 | - | ||
| リフォーム | 備考に記載 | リノベーション | - | ||
| 取引態様 | 媒介 | 施工会社名 | 備考に記載 | ||
| 建築確認番号 | 第UHEC建確20222号 変1号 変2号 | ||||
| その他費用 | - | ||||
| 備考 | ~資料請求・内見希望など、お気軽にお問い合わせください~【MEIKO GROUP】創業30年以上の堅実で安定した経営基盤をもつ「正直不動産会社」。都心のブランドエリアをはじめ、東京23区・首都圏など、資産性の高い中古・新築マンションをご紹介しています。売主様から直接お預かり物件が多数。ぜひお気軽にご相談ください!・施工会社:大成建設株式会社・管理形態/管理員の勤務形態:全部委託/常駐・ペット条件:小型犬可/猫可・☆30階住戸☆【港区六本木】地上39階建・総戸数611戸のタワーレジデンス・バイク置場:有(3,000円/月)・駐輪場:有・仲介手数料:売買代金の3.3%+66,000円・リフォーム実施:2025年1月水回り(キッチン/トイレ/洗面所/給湯器/・キッチン新規交換(ミーレ食洗器・電子コンベック付)・洗面化粧台新規交換・トイレ新規交換・給湯器(エコキュート)交換・浴室乾燥機交換)、2025年1月内装(床(フローリング等)/・フローリング交換(LDK・洋室)・床タイル交換(洗面室・トイレ)・天井カセット式エアコン交換(4台)) | ||||
情報公開日:2025/10/21 次回更新予定日:情報更新日より14日以内
この物件の地図・周辺環境
このアイコンは物件のおおよその位置を表しており、実際の場所と異なる場合がございます。詳しくは不動産会社に直接ご確認ください。
取り扱い不動産会社
- 住所
- 東京都渋谷区恵比寿4丁目17-3カゲオカビルディング
- 電話番号
- 0120-134-800
- 営業時間
- 10:30~20:00
- 定休日
- 火曜日・水曜日・年末年始・GW・夏季休暇
- 免許番号
- 東京都知事免許(1)第109182号
- 所属団体
- (公社)全日本不動産協会、(公社)首都圏不動産公正取引協議会
掲載期限まであと12日
六本木駅の口コミ
子育て・病院
3.0
そもそも港区は値段が高いです。 だからこそ、充実した医療サービスは得られる機会が多いと思います。そこはいい点です。
自然環境
2.0
六本木といっても広いですが、駅周辺でクラブやバーが多いあたりは外国人や酔っ払い、パリピがうるさいこともあります。また、大使館が多いあたりは治安は悪くないと思いますが、街宣車が来ることが。首都高沿いならば、空気が気になるでしょう。
東京都近隣の都道府県から中古マンションを探す
住宅ローンシミュレーション
住宅ローン設定
物件価格
返済期間
頭金
ボーナス払(年1回)
※
※物件価格の80%以下でお借入れの場合
※50歳以下で一般団信をご選択の場合
※住宅ローン金利優遇割適用後の変動金利(全期間引き下げプラン)
※実際のお借入日の金利により変動します。
※審査の結果によっては保証付金利プランとなる場合があり、この場合は上記とは異なる金利となります。
※別途借入金額の2.20%(税込)の事務手数料が発生します。
ボーナス払 | 35年間返済 | 30年間返済 | 25年間返済 | 20年間返済 | 15年間返済 | 10年間返済 |
|---|---|---|---|---|---|---|
0万円 | -円/月 | -円/月 | -円/月 | -円/月 | -円/月 | -円/月 |
5万円 | -円/月 | -円/月 | -円/月 | -円/月 | -円/月 | -円/月 |
10万円 | -円/月 | -円/月 | -円/月 | -円/月 | -円/月 | -円/月 |
15万円 | -円/月 | -円/月 | -円/月 | -円/月 | -円/月 | -円/月 |
20万円 | -円/月 | -円/月 | -円/月 | -円/月 | -円/月 | -円/月 |
25万円 | -円/月 | -円/月 | -円/月 | -円/月 | -円/月 | -円/月 |
30万円 | -円/月 | -円/月 | -円/月 | -円/月 | -円/月 | -円/月 |
ボーナス払 | 35年間返済 | 30年間返済 | 25年間返済 | 20年間返済 | 15年間返済 | 10年間返済 |
|---|---|---|---|---|---|---|
0万円 | -円/月 | -円/月 | -円/月 | -円/月 | -円/月 | -円/月 |
5万円 | -円/月 | -円/月 | -円/月 | -円/月 | -円/月 | -円/月 |
10万円 | -円/月 | -円/月 | -円/月 | -円/月 | -円/月 | -円/月 |
15万円 | -円/月 | -円/月 | -円/月 | -円/月 | -円/月 | -円/月 |
20万円 | -円/月 | -円/月 | -円/月 | -円/月 | -円/月 | -円/月 |
25万円 | -円/月 | -円/月 | -円/月 | -円/月 | -円/月 | -円/月 |
30万円 | -円/月 | -円/月 | -円/月 | -円/月 | -円/月 | -円/月 |
- ・金利は、今後35年間変動しない仮定のもと元利均等返済方式で計算しております。
- ・実際の金利は、各金融機関のホームページをご参照ください。
- ・ローン契約の際には、手数料や印紙税などの諸費用が別途かかります。
- ・ボーナス支払総額が総支払額の50%を超えている場合、上記の表では「ローン不可」となります。
- ・シミュレーションを利用し、それが原因で利用者が受けたいかなる損害についても当社は一切責任を負いません。あらかじめご了承ください。
















