新築マンションイノベイシア六番町/予告広告の詳細情報
未定(予告広告)
月々のローン返済額を試算
この広告は予告広告です。販売を開始するまでは、契約または予約(仮予約を含む)のお申込みには一切応じられませんのでご了承ください。
価格または販売方法が未定の場合は、新規分譲広告にて確定情報をお知らせします。
物件エントリー受付開始。JR「四ツ谷」駅徒歩4分。3駅6路線利用可能な都心の中枢、千代田区六番町。60m2台~119m2台の多彩なプラン。
物件概要
| 物件名 | イノベイシア六番町/予告広告 | ||||
|---|---|---|---|---|---|
| 所在地 | 東京都千代田区六番町5番18 他(地番) | ||||
| 交通 |
JR中央線「四ツ谷」駅 徒歩4分 東京メトロ丸ノ内線「四ツ谷」駅 徒歩5分 東京メトロ有楽町線「麹町」駅 徒歩8分 (2番出口)、徒歩5分(6番出口[6:00~23:00まで利用可]) | ||||
| 構造および階数 | 鉄筋コンクリート造・地上7階建 | 敷地面積 | 531.48㎡(建築確認対象面積) 531.86㎡(売買対象面積) | ||
| 完成時期 | 2027年8月下旬(予定) | 入居時期 | 2027年9月下旬(予定) | ||
| 土地権利 | - | ||||
| 駐車場 | - | ||||
| 分譲後の権利形態 | 土地:専有面積割合による所有権の共有、建物:区分所有権、建物共用部分:専有面積割合による所有権の共有 | ||||
| 管理形態 | 区分所有者全員による管理組合結成後、管理委託、管理人の勤務形態:巡回 | ||||
| 取引態様 | 株式会社オープンハウス・ディベロップメント(売主) | 用途地域 | 第一種住居地域 | ||
| 建築確認番号 | 第BVJ-OCH25-10-0327号(令和7年12月1日付) | ||||
| 共有施設 | ■駐車場:5台(月額使用料:40,000円~45,000円)■駐輪場:21台(月額使用料:400円~500円) | ||||
| 設備 | - | ||||
| 備考 | - | ||||
情報更新日:2026/02/18 次回更新予定日:随時
販売概要
| 販売価格 | 未定(予告広告) お問い合わせはこちら | ||||
|---|---|---|---|---|---|
| 販売スケジュール | 販売予定時期:2026年2月下旬 | ||||
| 販売戸数/総戸数 | 未定/16戸 | ||||
| 予定最多価格帯 | 未定 | ||||
| 管理費 | 未定 | ||||
| 修繕積立金 | 未定 | 修繕積立基金 | 未定 | ||
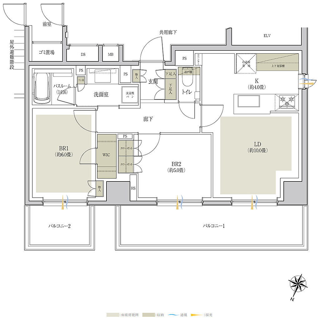
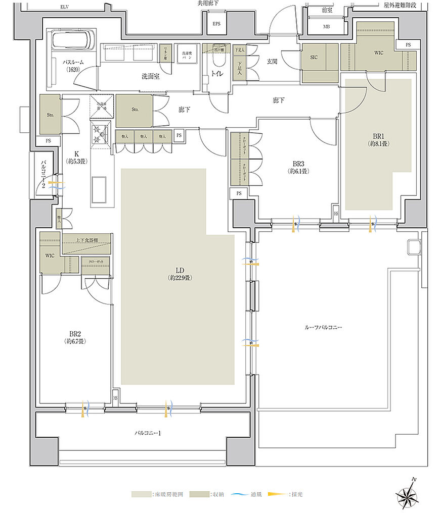
| 間取り | 1LDK+SR(納戸)~3LDK | ||||
| 専有面積 | 60.10㎡~119.31㎡ | バルコニー面積 | 4.25㎡~16.40㎡ | ||
| その他面積 | ルーフバルコニー面積/11.77㎡~24.61㎡ | ||||
| その他施設費用、償却費 | ■町内会費(月額):300円■インターネット使用料(月額):2,975円 | ||||
| その他費用 | 【保証金、敷金】:-、【その他費用】:ルーフバルコニー使用料(月額):未定、管理準備金:未定 | ||||
| 登録受付 | - | 抽選日 | - | ||
| 取引条件有効期限 | - | ||||
モデルルーム情報
| 営業時間 | 10:00~19:00 | 定休日 | 火・水曜定休 | ||
|---|---|---|---|---|---|
| 開催期間 | - | 登録受付 | - | ||
| 販売スケジュール | 販売予定時期:2026年2月下旬 | 抽選日 | - | ||
| モデルルーム所在地 | - | ||||
| お問い合わせ先 |
イノベイシア六番町 インフォメーションセンター 0037-619-50233(通話無料) お問合せ受付時間:営業時間/10:00~19:00、定休日/火・水曜定休 | ||||
会社情報
| 売主 | 株式会社オープンハウス・ディベロップメント | ||||
|---|---|---|---|---|---|
| お問い合わせ先 |
イノベイシア六番町 インフォメーションセンター 0037-619-50233(無料通話) 上記の電話番号にお問合せください。(携帯・PHS 可) ※光IP 電話、及びIP 電話からはご利用になれません 光IP電話、及びIP電話をご利用のお客様は以下へご連絡ください。 イノベイシア六番町 インフォメーションセンター TEL:0120-418-021 【物件番号】1600736-0000292 | ||||
| 管理会社 | 株式会社オープンハウス合人社コミュニティ | ||||
| 施工会社 | 株式会社ナカノフドー建設 東京本店 | ||||
| 販売会社 | 株式会社オープンハウス・ディベロップメント(売主) | ||||
| 情報提供元 |
株式会社オープンハウス・ディベロップメント[国土交通大臣(3)第8112号] 東京都渋谷区渋谷三丁目12番18号 【所属団体】 (公社)首都圏不動産公正取引協議会、(一社)不動産協会、(一社)全国住宅産業協会 | ||||
この物件の地図・周辺環境
このアイコンは物件のおおよその位置を表しており、実際の場所と異なる場合がございます。詳しくは不動産会社に直接ご確認ください。
取り扱い不動産会社
イノベイシア六番町 インフォメーションセンター
- 電話番号
- 0120-418-021
- 営業時間
- 10:00~19:00
- 定休日
- 火・水曜定休
- 物件番号
- 1600736-0000292
電話で問い合わせる(無料)お急ぎの方はこちらから!
物件お問い合わせ専用ダイヤル
受付:10:00~19:00(定休日:火・水曜定休) 携帯・PHS可
※携帯・PHS可。光IP電話、及びIP電話からはご利用になれません。
四ツ谷駅の口コミ
お買い物・飲食
2.0
四谷駅には大きなスーパーがない。アトレの成城石井や、プチマルエツなど小さいスーパーしかないので、大きなスーパーに行こうとすると四谷三丁目までいかないといけない。
お買い物・飲食
2.0
プチスーパーやコンビニはありますが周りに商店街が充実したエリアではないので、最寄りで済ますというよりは出先で買い物は済ませたほうがいいです。
住宅ローンシミュレーション
住宅ローン設定
物件価格
返済期間
頭金
ボーナス払(年1回)
※
※物件価格の80%以下でお借入れの場合
※50歳以下で一般団信をご選択の場合
※住宅ローン金利優遇割適用後の変動金利(全期間引き下げプラン)
※実際のお借入日の金利により変動します。
※審査の結果によっては保証付金利プランとなる場合があり、この場合は上記とは異なる金利となります。
※別途借入金額の2.20%(税込)の事務手数料が発生します。
ボーナス払 | 35年間返済 | 30年間返済 | 25年間返済 | 20年間返済 | 15年間返済 | 10年間返済 |
|---|---|---|---|---|---|---|
0万円 | -円/月 | -円/月 | -円/月 | -円/月 | -円/月 | -円/月 |
5万円 | -円/月 | -円/月 | -円/月 | -円/月 | -円/月 | -円/月 |
10万円 | -円/月 | -円/月 | -円/月 | -円/月 | -円/月 | -円/月 |
15万円 | -円/月 | -円/月 | -円/月 | -円/月 | -円/月 | -円/月 |
20万円 | -円/月 | -円/月 | -円/月 | -円/月 | -円/月 | -円/月 |
25万円 | -円/月 | -円/月 | -円/月 | -円/月 | -円/月 | -円/月 |
30万円 | -円/月 | -円/月 | -円/月 | -円/月 | -円/月 | -円/月 |
ボーナス払 | 35年間返済 | 30年間返済 | 25年間返済 | 20年間返済 | 15年間返済 | 10年間返済 |
|---|---|---|---|---|---|---|
0万円 | -円/月 | -円/月 | -円/月 | -円/月 | -円/月 | -円/月 |
5万円 | -円/月 | -円/月 | -円/月 | -円/月 | -円/月 | -円/月 |
10万円 | -円/月 | -円/月 | -円/月 | -円/月 | -円/月 | -円/月 |
15万円 | -円/月 | -円/月 | -円/月 | -円/月 | -円/月 | -円/月 |
20万円 | -円/月 | -円/月 | -円/月 | -円/月 | -円/月 | -円/月 |
25万円 | -円/月 | -円/月 | -円/月 | -円/月 | -円/月 | -円/月 |
30万円 | -円/月 | -円/月 | -円/月 | -円/月 | -円/月 | -円/月 |
- ・金利は、今後35年間変動しない仮定のもと元利均等返済方式で計算しております。
- ・実際の金利は、各金融機関のホームページをご参照ください。
- ・ローン契約の際には、手数料や印紙税などの諸費用が別途かかります。
- ・ボーナス支払総額が総支払額の50%を超えている場合、上記の表では「ローン不可」となります。
- ・シミュレーションを利用し、それが原因で利用者が受けたいかなる損害についても当社は一切責任を負いません。あらかじめご了承ください。










