NEW中古売マンション大阪府大阪市北区大淀中2丁目の中古売マンションの詳細情報
掲載期限まであと13日
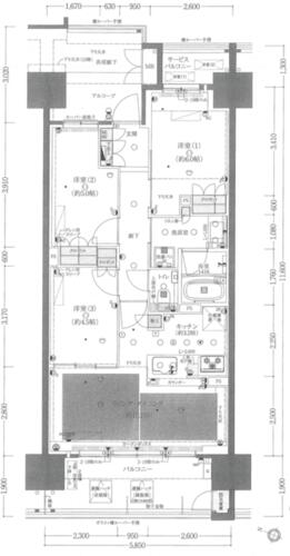
物件概要
| 物件名 | 大阪府大阪市北区大淀中2丁目の中古売マンション | ||||
|---|---|---|---|---|---|
| 所在地 | 大阪府大阪市北区大淀中2丁目 | ||||
| 交通 |
JR大阪環状線 「福島」駅 徒歩11分 JR東海道本線 「大阪」駅 徒歩17分 阪神電鉄本線 「福島」駅 徒歩15分 | ||||
| 建物構造 | RC | 総戸数 | 107戸 | ||
| 主要採光面 | 西 | 修繕積立金 | 6,900円 | ||
| バルコニー面積 | 10.08㎡ | 土地権利 | 所有権 | ||
| 入居時期 | 指定有 | 現況 | 空 | ||
| 管理 | 管理員/管理人日勤 管理形態/全部委託 管理組合/あり | 駐車場 | 空無 | ||
| 都市計画 | - | 用途地域 | 準工業 | ||
| 建ぺい率 | - | 容積率 | - | ||
| リフォーム | - | リノベーション | - | ||
| 取引態様 | 専任媒介 | 施工会社名 | 備考に記載 | ||
| 建築確認番号 | - | ||||
| その他費用 | インターネット使用料/月:1,650円 | ||||
| 備考 | 施工会社:不二建設株式会社・維持費等:インターネット使用料1,650円/月・ゆいぽたサービス料165円/月・エミットマンション550円/月・管理形態/管理員の勤務形態:全部委託/日勤(パナソニックホームズ・合人社)・ペット条件:小型犬可/2匹・管理組合:あり・2020年竣工 お探しの方には嬉しいペット(小型犬)相談可。設計住宅性能評価書有、更に万が一のときに有難みがわかる24時間セキュリティー採用だから、不審者侵入の抑止力に。・仲介手数料:2,699,000円 | ||||
情報公開日:2025/12/16 次回更新予定日:情報更新日より14日以内
取り扱い不動産会社
- 住所
- 大阪府大阪市北区中崎2丁目2-7ナカガミビル1F
- 電話番号
- 06-4802-0077
- 営業時間
- 10:00~19:00
- 定休日
- 水曜日・年末年始、GW、夏季休暇
- 免許番号
- 大阪府知事免許(4)第55044号
- 所属団体
- (一社)大阪府宅地建物取引業協会、(公社)近畿地区不動産公正取引協議会
掲載期限まであと13日
福島駅の口コミ
子育て・病院
3.0
子育てに向く地域は限定される。単身者向けのエリア(★1) こののあたりの新築マンションはほぼラグジュアリーワンルーム。 この街の長所である飲食店でも、エリア的に子連れが歓迎される雰囲気はまるでない。
お買い物・飲食
4.0
駅周辺に居酒屋などの飲食店、ファーストフード、コンビニは充実していますが、スーパーは小さいお店が2件程あるだけで、大きめのスーパーまでは距離があるため不便さを感じました。
住宅ローンシミュレーション
住宅ローン設定
物件価格
返済期間
頭金
ボーナス払(年1回)
※
※物件価格の80%以下でお借入れの場合
※50歳以下で一般団信をご選択の場合
※住宅ローン金利優遇割適用後の変動金利(全期間引き下げプラン)
※実際のお借入日の金利により変動します。
※審査の結果によっては保証付金利プランとなる場合があり、この場合は上記とは異なる金利となります。
※別途借入金額の2.20%(税込)の事務手数料が発生します。
ボーナス払 | 35年間返済 | 30年間返済 | 25年間返済 | 20年間返済 | 15年間返済 | 10年間返済 |
|---|---|---|---|---|---|---|
0万円 | -円/月 | -円/月 | -円/月 | -円/月 | -円/月 | -円/月 |
5万円 | -円/月 | -円/月 | -円/月 | -円/月 | -円/月 | -円/月 |
10万円 | -円/月 | -円/月 | -円/月 | -円/月 | -円/月 | -円/月 |
15万円 | -円/月 | -円/月 | -円/月 | -円/月 | -円/月 | -円/月 |
20万円 | -円/月 | -円/月 | -円/月 | -円/月 | -円/月 | -円/月 |
25万円 | -円/月 | -円/月 | -円/月 | -円/月 | -円/月 | -円/月 |
30万円 | -円/月 | -円/月 | -円/月 | -円/月 | -円/月 | -円/月 |
ボーナス払 | 35年間返済 | 30年間返済 | 25年間返済 | 20年間返済 | 15年間返済 | 10年間返済 |
|---|---|---|---|---|---|---|
0万円 | -円/月 | -円/月 | -円/月 | -円/月 | -円/月 | -円/月 |
5万円 | -円/月 | -円/月 | -円/月 | -円/月 | -円/月 | -円/月 |
10万円 | -円/月 | -円/月 | -円/月 | -円/月 | -円/月 | -円/月 |
15万円 | -円/月 | -円/月 | -円/月 | -円/月 | -円/月 | -円/月 |
20万円 | -円/月 | -円/月 | -円/月 | -円/月 | -円/月 | -円/月 |
25万円 | -円/月 | -円/月 | -円/月 | -円/月 | -円/月 | -円/月 |
30万円 | -円/月 | -円/月 | -円/月 | -円/月 | -円/月 | -円/月 |
- ・金利は、今後35年間変動しない仮定のもと元利均等返済方式で計算しております。
- ・実際の金利は、各金融機関のホームページをご参照ください。
- ・ローン契約の際には、手数料や印紙税などの諸費用が別途かかります。
- ・ボーナス支払総額が総支払額の50%を超えている場合、上記の表では「ローン不可」となります。
- ・シミュレーションを利用し、それが原因で利用者が受けたいかなる損害についても当社は一切責任を負いません。あらかじめご了承ください。



