中古マンショングランドメゾン四條畷 1階/12階 西向きの詳細情報
外観・室内・設備(1枚)
その他(24枚)
物件概要
| 物件名 | グランドメゾン四條畷 1階/12階 西向き | ||||
|---|---|---|---|---|---|
| 所在地 | 大阪府四條畷市中野本町7-23 | ||||
| 交通 |
JR片町線(学研都市線) 忍ケ丘駅 徒歩10分 JR片町線(学研都市線) 四条畷駅 徒歩18分 | ||||
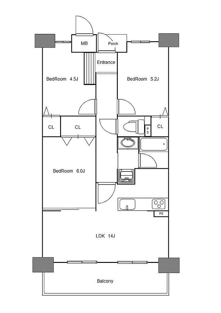
| 建物構造 | RC(鉄筋コンクリート) | 間取り詳細(帖) | リビングダイニングキッチン 14帖(1階)洋室 6帖(1階)洋室 5.2帖(1階)洋室 4.5帖(1階) | ||
| 総戸数 | 142戸 | 事務所戸数 | - | ||
| 主要採光面 | 西 | 修繕積立金 | 12,300円 | ||
| 修繕積立基金 | - | バルコニー面積 | 11.59m2 | ||
| 土地権利 | 所有権 | 引渡し | 即時 | ||
| 現況 | 空家 | 管理 | 管理員:日勤、管理形態:全部委託、管理会社:株式会社浪速管理 | ||
| 駐車場 | 空無 【空無】料金4,000月~10,000円/月 | 地目 | - | ||
| 地勢 | - | 都市計画 | - | ||
| 用途地域 | 第二種住居地域 | 建ぺい率 | - | ||
| 容積率 | - | リフォーム | - | ||
| リノベーション | - | 取引態様 | 仲介 | ||
| 施工会社名 | - | ||||
| その他費用 | - | ||||
| オープンルーム情報 | - | ||||
| 備考 | \\室内一部リフォーム済み♪2025年7月完成♪//◇◇おすすめポイント◇◇■食洗器付き! ■全居室収納付き! ■白を基調とした明るい雰囲気のLDK!!■どんな家具も合わせやすいシンプルなデザイン!◇◇周辺環境◇◇■四條畷市立岡部小学校・・・約1140m■四條畷市立四條畷西中学校・・・約910m■ファミリーマート四條畷中野店・・・約306m■サンディ忍ケ丘店・・・約591m■キリン堂忍ケ丘店・・・約429.1m※駐輪場空有・200円/月※バイク置場空有・1,000円~2,000/月【ご見学希望常時受付中】随時ご見学OK!物件に関するご質問、住宅ローンに関する事など「担当:もり」までお気軽にお問合せ下さい♪ 令和7年リフォーム済!!リフォームされた綺麗なお部屋を見学してみませんか? | ||||
情報公開日:2025/10/23 有効期限:2025/11/06
設備・条件
| 位置 | 1階の物件 | ||||
|---|---|---|---|---|---|
| キッチン | ガスコンロ、カウンターキッチン、コンロ三口、コンロ三口以上、システムキッチン、コンロ二口以上、ガスコンロ設置済、給湯 | ||||
| セキュリティ | オートロック、TVモニタ付インターホン | ||||
| 設備・サービス | バルコニー、フローリング、浴室暖房、下水、都市ガス、公営水道、室内洗濯機置場、浴室乾燥機、専用トイレ、専用バス、追焚機能、バス・トイレ別、シャワー付洗面化粧台、シャワー、洗面所独立、エレベーター | ||||
| 物件規模 | 総戸数・総区画数30以上 | ||||
| その他 | ペット不可、所有権、鉄筋系、駐輪場あり、全室フローリング、子育てに便利な施設が充実、即入居可、全居室収納、シューズボックス、クローゼット | ||||
| 周辺環境 | コンビニ 800m以内 | ||||
この物件の地図・周辺環境
このアイコンは物件のおおよその位置を表しており、実際の場所と異なる場合がございます。詳しくは不動産会社に直接ご確認ください。
取り扱い不動産会社
- 住所
- 大阪府四條畷市岡山東2丁目2-20
- 電話番号
- 072-863-0606
- 営業時間
- 10:00~19:00
- 定休日
- 水曜日 年末年始
- 免許番号
- 大阪府知事(3)第57986号
- 所属団体
- (公社)全日本不動産協会
(株)グッドホームワン
(株)福屋不動産販売 星田駅前店
(株)福屋不動産販売星田駅前店
センチュリー21(株)スマイシア不動産販売香里本店
(株)ヒルズホールディングス不動産購入の窓口
スギタヒコナ(株)
電話で問い合わせる(無料)お急ぎの方はこちらから!
物件お問い合わせ専用ダイヤル
営業時間:10:00~19:00(定休日:水曜日 年末年始) 携帯・PHS可
音声案内に従って以下の数字を入力
お問い合わせ番号:46947-1051
※お客様の電話番号は不動産会社に通知されません。
※光IP電話、及びIP電話からはご利用になれません。
※不動産会社の方からの上記電話番号によるお問合せはお断りしております。
掲載期限まであと8日
忍ケ丘駅の口コミ
お買い物・飲食
4.0
薬局、スーパー、少し頑張ればイオンもあるのでお買い物には不便してません。 ただ、飲食店は結構少なめです。でもUberや出前館は通っているので、困った時はデリバリーも利用できます。
お買い物・飲食
3.0
駅前に使いやすい喫茶店や飲食店があればもっと便利だったかなと思います。もちろんいくつかあったのですが。
四條畷市の駅から中古マンションを探す
住宅ローンシミュレーション
住宅ローン設定
物件価格
返済期間
頭金
ボーナス払(年1回)
※
※物件価格の80%以下でお借入れの場合
※50歳以下で一般団信をご選択の場合
※住宅ローン金利優遇割適用後の変動金利(全期間引き下げプラン)
※実際のお借入日の金利により変動します。
※審査の結果によっては保証付金利プランとなる場合があり、この場合は上記とは異なる金利となります。
※別途借入金額の2.20%(税込)の事務手数料が発生します。
ボーナス払 | 35年間返済 | 30年間返済 | 25年間返済 | 20年間返済 | 15年間返済 | 10年間返済 |
|---|---|---|---|---|---|---|
0万円 | -円/月 | -円/月 | -円/月 | -円/月 | -円/月 | -円/月 |
5万円 | -円/月 | -円/月 | -円/月 | -円/月 | -円/月 | -円/月 |
10万円 | -円/月 | -円/月 | -円/月 | -円/月 | -円/月 | -円/月 |
15万円 | -円/月 | -円/月 | -円/月 | -円/月 | -円/月 | -円/月 |
20万円 | -円/月 | -円/月 | -円/月 | -円/月 | -円/月 | -円/月 |
25万円 | -円/月 | -円/月 | -円/月 | -円/月 | -円/月 | -円/月 |
30万円 | -円/月 | -円/月 | -円/月 | -円/月 | -円/月 | -円/月 |
ボーナス払 | 35年間返済 | 30年間返済 | 25年間返済 | 20年間返済 | 15年間返済 | 10年間返済 |
|---|---|---|---|---|---|---|
0万円 | -円/月 | -円/月 | -円/月 | -円/月 | -円/月 | -円/月 |
5万円 | -円/月 | -円/月 | -円/月 | -円/月 | -円/月 | -円/月 |
10万円 | -円/月 | -円/月 | -円/月 | -円/月 | -円/月 | -円/月 |
15万円 | -円/月 | -円/月 | -円/月 | -円/月 | -円/月 | -円/月 |
20万円 | -円/月 | -円/月 | -円/月 | -円/月 | -円/月 | -円/月 |
25万円 | -円/月 | -円/月 | -円/月 | -円/月 | -円/月 | -円/月 |
30万円 | -円/月 | -円/月 | -円/月 | -円/月 | -円/月 | -円/月 |
- ・金利は、今後35年間変動しない仮定のもと元利均等返済方式で計算しております。
- ・実際の金利は、各金融機関のホームページをご参照ください。
- ・ローン契約の際には、手数料や印紙税などの諸費用が別途かかります。
- ・ボーナス支払総額が総支払額の50%を超えている場合、上記の表では「ローン不可」となります。
- ・シミュレーションを利用し、それが原因で利用者が受けたいかなる損害についても当社は一切責任を負いません。あらかじめご了承ください。


























