中古売マンション日光ハイツ彦根壱番館 滋賀県彦根市岡町の中古売マンションの詳細情報
物件概要
| 物件名 | 日光ハイツ彦根壱番館 滋賀県彦根市岡町の中古売マンション | ||||
|---|---|---|---|---|---|
| 所在地 | 滋賀県彦根市岡町 | ||||
| 交通 |
近江鉄道本線 「彦根口」駅 徒歩5分 JR東海道本線 「南彦根」駅 徒歩20分 | ||||
| 建物構造 | RC | 総戸数 | - | ||
| 主要採光面 | 南西 | 修繕積立金 | 11,390円 | ||
| バルコニー面積 | 11.74㎡ | 土地権利 | 所有権 | ||
| 入居時期 | 即時 | 現況 | 空 | ||
| 管理 | 管理員/管理人常駐 管理形態/全部委託 管理組合/あり | 駐車場 | 空無 | ||
| 都市計画 | - | 用途地域 | 1種住居 | ||
| 建ぺい率 | - | 容積率 | - | ||
| リフォーム | 備考に記載 | リノベーション | 備考に記載 | ||
| 取引態様 | 売主 | 施工会社名 | - | ||
| 建築確認番号 | - | ||||
| その他費用 | - | ||||
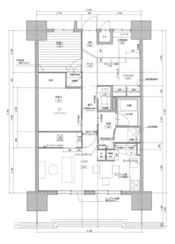
| 備考 | 【2026年2月リノベーション完成】・水廻り新設(UB、SK、洗面、トイレ、給湯器)・照明機器新設・間取り変更・内装工事・管理形態/管理員の勤務形態:全部委託/常駐・ペット条件:小型犬可/猫可・管理組合:あり・★新価格!リノベーション済み ★話題のヌック(リビング内)で快適ライフを! ★ペット同居可!(要規約あり) ★たっぷり収納の土間とファミリークローク・リフォーム実施:2026年2月水回り(キッチン/浴室/トイレ/洗面所/給湯器)、2026年2月内装(内装全面(床・壁・天井・建具))・リノベーション実施:2026年2月全面改修工事 | ||||
情報公開日:2026/03/06 次回更新予定日:情報更新日より14日以内
取り扱い不動産会社
- 住所
- 滋賀県彦根市小泉町854-1
- 電話番号
- 0749-49-2885
- 営業時間
- 10:00~18:00
- 定休日
- 水曜日、日曜日、祝日・年末年始、GW、お盆
- 免許番号
- 滋賀県知事免許(2)第3676号
- 所属団体
- (公社)全日本不動産協会、(公社)近畿地区不動産公正取引協議会
掲載期限まであと6日
彦根口駅の口コミ
子育て・病院
3.0
JR南彦根駅前のマンション一階に内科がある。朝7時30分から診療していて院内もきれい。待合室も広い。駅付近に総合病院もある。
住宅ローンシミュレーション
住宅ローン設定
物件価格
返済期間
頭金
ボーナス払(年1回)
※
※物件価格の80%以下でお借入れの場合
※50歳以下で一般団信をご選択の場合
※住宅ローン金利優遇割適用後の変動金利(全期間引き下げプラン)
※実際のお借入日の金利により変動します。
※審査の結果によっては保証付金利プランとなる場合があり、この場合は上記とは異なる金利となります。
※別途借入金額の2.20%(税込)の事務手数料が発生します。
ボーナス払 | 35年間返済 | 30年間返済 | 25年間返済 | 20年間返済 | 15年間返済 | 10年間返済 |
|---|---|---|---|---|---|---|
0万円 | -円/月 | -円/月 | -円/月 | -円/月 | -円/月 | -円/月 |
5万円 | -円/月 | -円/月 | -円/月 | -円/月 | -円/月 | -円/月 |
10万円 | -円/月 | -円/月 | -円/月 | -円/月 | -円/月 | -円/月 |
15万円 | -円/月 | -円/月 | -円/月 | -円/月 | -円/月 | -円/月 |
20万円 | -円/月 | -円/月 | -円/月 | -円/月 | -円/月 | -円/月 |
25万円 | -円/月 | -円/月 | -円/月 | -円/月 | -円/月 | -円/月 |
30万円 | -円/月 | -円/月 | -円/月 | -円/月 | -円/月 | -円/月 |
ボーナス払 | 35年間返済 | 30年間返済 | 25年間返済 | 20年間返済 | 15年間返済 | 10年間返済 |
|---|---|---|---|---|---|---|
0万円 | -円/月 | -円/月 | -円/月 | -円/月 | -円/月 | -円/月 |
5万円 | -円/月 | -円/月 | -円/月 | -円/月 | -円/月 | -円/月 |
10万円 | -円/月 | -円/月 | -円/月 | -円/月 | -円/月 | -円/月 |
15万円 | -円/月 | -円/月 | -円/月 | -円/月 | -円/月 | -円/月 |
20万円 | -円/月 | -円/月 | -円/月 | -円/月 | -円/月 | -円/月 |
25万円 | -円/月 | -円/月 | -円/月 | -円/月 | -円/月 | -円/月 |
30万円 | -円/月 | -円/月 | -円/月 | -円/月 | -円/月 | -円/月 |
- ・金利は、今後35年間変動しない仮定のもと元利均等返済方式で計算しております。
- ・実際の金利は、各金融機関のホームページをご参照ください。
- ・ローン契約の際には、手数料や印紙税などの諸費用が別途かかります。
- ・ボーナス支払総額が総支払額の50%を超えている場合、上記の表では「ローン不可」となります。
- ・シミュレーションを利用し、それが原因で利用者が受けたいかなる損害についても当社は一切責任を負いません。あらかじめご了承ください。
















