新築マンションシティタワーズ板橋大山サウスタワーの詳細情報
10,500万円~15,900万円
月々のローン返済額を試算駅徒歩3分(サウス)・4分(ノース)、全体計画戸数327邸の住商一体大規模複合再開発プロジェクト池袋都市圏に堂々完成。25階建(ノースタワー)・26階建(サウスタワー)の制震ツインタワーレジデンス「ハッピーロード大山商店街」に隣接。地域を代表する商店街を便利に普段使いできる立地
掲載期限まであと8日
外観・室内・設備(21枚)

対面フラットカウンター
キッチンはフラットな対面カウンターを採用しました。 段差がなく最大約900mmのワイドな奥行きがあるので、配膳する前のお料理の仮置きも持ち上げることなくスムーズにでき、対面側から一緒にお料理を楽しむこともできます。※D・F・F'・H・L・N・Pタイプを除く。※詳細は図面集をご確認ください。

三面鏡洗面化粧台(手元照明付)
お子様の目線に合わせた三面鏡下鏡を備えた三面鏡洗面化粧台を採用しました。 三面鏡の裏側には収納棚を確保。 スキンケア用品やヘアケア用品、洗面台まわりの電気製品などを使いやすくすっきり整理できます。 また収納棚は取り外して掃除ができるので清潔に保てます。

宅配ボックス(着荷表示機能付)
留守中に届いた荷物を、24時間いつでも受け取ることができる他、宅配物の発送やクリーニングの依頼が行えます。 宅配物発送料金・クリーニング料金はクレジットカードで決済することも可能。 また、留守中に届いた荷物は住戸内のインターホン親機で着荷表示により確認できます。※参考写真
周辺環境・アクセス(11枚)
物件概要
| 物件名 | シティタワーズ板橋大山サウスタワー | ||||
|---|---|---|---|---|---|
| 所在地 | 東京都板橋区大山町70番(地番) | ||||
| 交通 |
東武東上線「大山」駅 徒歩3分 都営三田線「板橋区役所前」駅 徒歩12分 | ||||
| 構造および階数 | 鉄筋コンクリート造、一部鉄骨造・地下1階地上26階建 | 敷地面積 | 3,103.89㎡ | ||
| 完成時期 | 2024年12月20日完成済 | 入居時期 | 2026年3月下旬 | ||
| 土地権利 | 所有権 | ||||
| 駐車場 | - | ||||
| 分譲後の権利形態 | 建物は区分所有権、土地は共有 | ||||
| 管理形態 | 区分所有者全員により管理組合を結成し、管理会社に委託、管理人の勤務形態:常駐 | ||||
| 取引態様 | 売主/住友不動産株式会社 | 用途地域 | 商業地域/近隣商業地域/第二種住居地域 | ||
| 建築確認番号 | 第ERI‐21003637号(2021年4月9日付) 計画変更確認番号:第ERI-22003954号(2022年3月14日付)、第ERI-22029555号(2022年8月26日付)、第ERI-22044756号(2022年12月14日付)、第ERI-23046011号(2024年1月25日付)、第ERI-24036408号(2024年11月7日付)第ERI-25013663号(2025年5月9日付) | ||||
| 共有施設 | - | ||||
| 設備 | - | ||||
| 備考 |
特定事項:※本物件敷地の西側は、建築基準法第42条2項道路に基づき道路境界線後退(セットバック)しております。 ※本物件敷地北側は、事業主・大山町クロスポイント周辺地区市街地再開発組合による地上25階建の「シティタワーズ板橋大山ノースタワー」が建設中です。(2024年度竣工予定)。 ※本物件敷地西側は、事業主・大山町クロスポイント周辺地区市街地再開発組合による地上8階建の住宅・店舗及び地上4階建の店舗が建設中です。(2024年度竣工予定)。 ※本物件北側隣接部は、都市計画道路「特定整備路線補助第26号線」の整備が行われております(事業期間:2015年2月~2025年度中予定)。整備完了時期は変更となる場合があります。整備後において本物件の住環境(車両交通量・騒音等)に影響が生じる場合があります。また、整備工事ならびの工事車輌の通行などにより、騒音・振動・粉塵等が生じる場合があります。 ※ 本物件北西側には、2021年12月現在、大山町ピッコロ・スクエア周辺地区市街地再開発準備組合による第一種市街地再開発事業の予定があります。建築物の計画概要については未定となっておりますが、建築後に本物件の住環境(環境・車輛通行量・騒音・眺望・通風等)に影響が生じる場合があります。また、建築工事ならびに工事車両の通行などにより、騒音・振動・粉塵等が生じる場合がありますのであらかじめご承知ください。 ※「シティタワーズ板橋大山」は建築確認上、ノースタワー88戸(地上25階建)、サウスタワー239戸(地上26階建/非分譲住戸54戸含む)の2敷地2棟となりますが、販売上は全体計画戸数327戸(※非分譲住戸54戸含む)で表示しております。分譲後の権利形態は土地、建物(共用部分)ともノースタワー及びサウスタワーでの所有権の共有はなく、共用施設等の相互利用もございません。 ※大山町クロスポイント周辺地区第一種市街地再開発事業は、住宅と商業施設を兼ね備えた複合再開発となります。本物件は、全体のうちA街区の住戸を分譲するもので、その他の街区は本物件ではありません。 | ||||
情報更新日:2025/11/04 次回更新予定日:2025/11/18
販売概要
| 販売価格 | 10,500万円~15,900万円 お問い合わせはこちら | ||||
|---|---|---|---|---|---|
| 販売スケジュール | 先着順受付中 | ||||
| 販売戸数/総戸数 | 7戸/239戸(非分譲住戸54戸を含む)、その他店舗3区画 | ||||
| 最多価格帯 | - | ||||
| 管理費 | 31455円 ~ 41495円 | ||||
| 修繕積立金 | 6450円 ~ 8670円 | 修繕積立基金 | 616000円 ~ 828200円 | ||
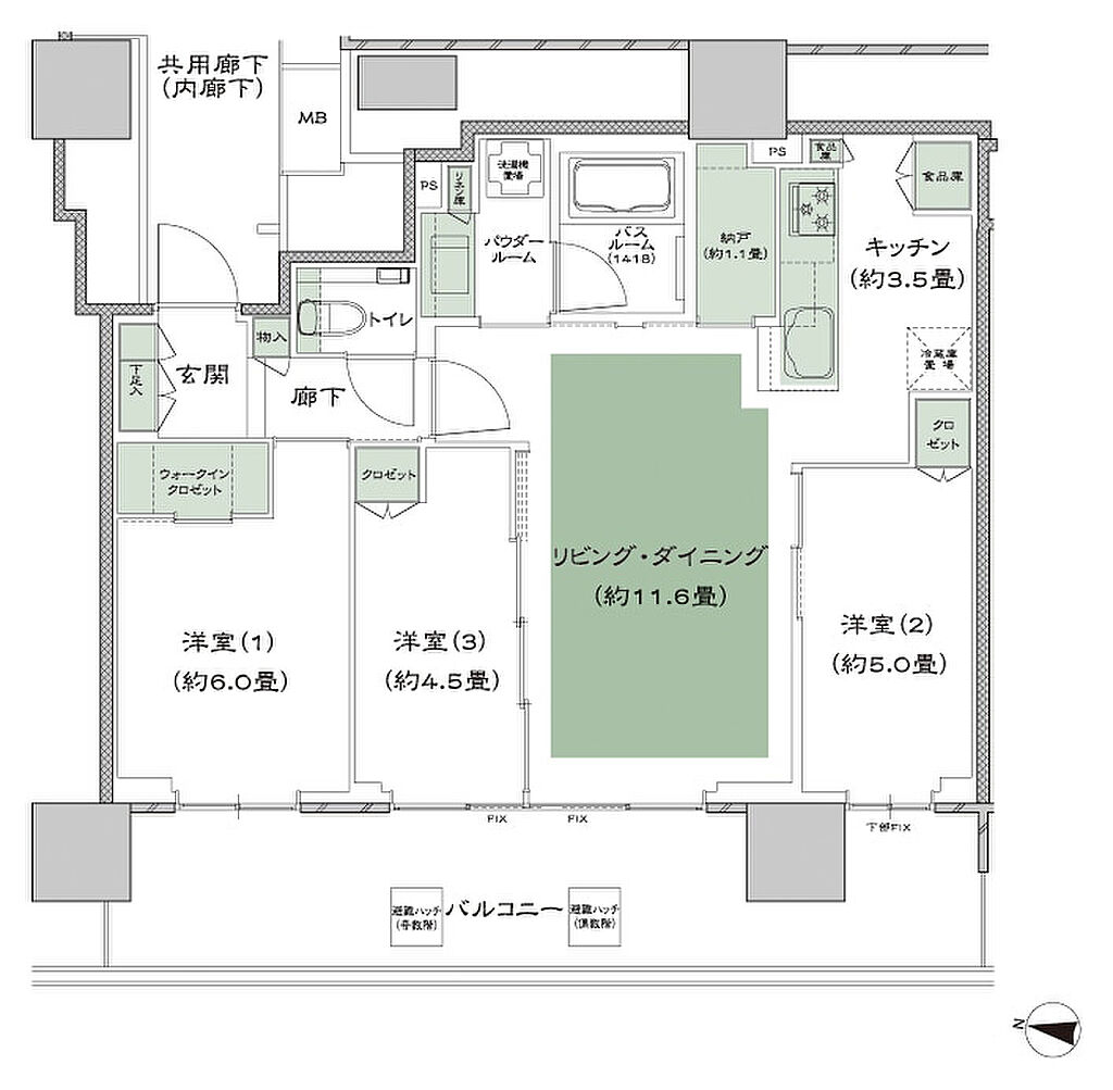
| 間取り | 2LD・K・3LD・K | ||||
| 専有面積 | 53.56㎡~72.01㎡ | バルコニー面積 | 13.65㎡~24.91㎡ | ||
| その他面積 | - | ||||
| その他施設費用、償却費 | 駐車場使用料:28000円~35000円 駐輪場使用料:300円~3500円 | ||||
| その他費用 | 【保証金、敷金】:- | ||||
| 登録受付 | - | 抽選日 | - | ||
| 取引条件有効期限 | 取引条件有効期限:2025-11-07 | ||||
モデルルーム情報
| 営業時間 | 10:00~18:00 | 定休日 | 火曜・水曜定休(祝日除く)、年末年始は休業、2024/12/25~2025/01/01 | ||
|---|---|---|---|---|---|
| 開催期間 | - | 登録受付 | - | ||
| 販売スケジュール | 先着順受付中 | 抽選日 | - | ||
| モデルルーム所在地 | - | ||||
| お問い合わせ先 |
総合マンションギャラリー池袋館 0037-634-66035(通話無料) お問合せ受付時間:営業時間/10:00~18:00、定休日/火曜・水曜定休(祝日除く)、年末年始は休業 | ||||
会社情報
| 売主 |
住友不動産株式会社株式会社フージャースコーポレーション 【免許番号】 国土交通大臣(17)第38号 | ||||
|---|---|---|---|---|---|
| お問い合わせ先 |
総合マンションギャラリー池袋館 0037-634-66035(無料通話) 上記の電話番号にお問合せください。(携帯・PHS 可) ※光IP 電話、及びIP 電話からはご利用になれません 光IP電話、及びIP電話をご利用のお客様は以下へご連絡ください。 総合マンションギャラリー池袋館 TEL:0120-151-327 【物件番号】1610001-0000714 | ||||
| 管理会社 | - | ||||
| 施工会社 | 株式会社長谷工コーポレーション | ||||
| 販売会社 | 売主/住友不動産株式会社 | ||||
| 情報提供元 |
住友不動産株式会社[国土交通大臣(17)第38号] 東京都新宿区西新宿二丁目4番1号新宿NSビル 【所属団体】 (公社)首都圏不動産公正取引協議会、(一社)不動産協会 | ||||
この物件の地図・周辺環境
このアイコンは物件のおおよその位置を表しており、実際の場所と異なる場合がございます。詳しくは不動産会社に直接ご確認ください。
取り扱い不動産会社
総合マンションギャラリー池袋館
- 電話番号
- 0120-151-327
- 営業時間
- 10:00~18:00
- 定休日
- 火曜・水曜定休(祝日除く)、年末年始は休業
- 物件番号
- 1610001-0000714
住友不動産
電話で問い合わせる(無料)お急ぎの方はこちらから!
物件お問い合わせ専用ダイヤル
受付:10:00~18:00(定休日:火曜・水曜定休(祝日除く)、年末年始は休業) 携帯・PHS可
※携帯・PHS可。光IP電話、及びIP電話からはご利用になれません。
掲載期限まであと8日
大山駅の口コミ
治安・安全
2.0
パチンコが多いせいでなのか、柄の悪い歩きタバコしてる人をよく見かけます。 夜の遊座商店街の方はガールズバーの女の子が立っていたら治安がよくありません
子育て・病院
4.0
地域としては飲み屋さんも多く、夜のお店もあり、気になる人は子育てで気になるかもしれません。ただ、街としては活気があるため、何を優先するかだと思います。
住宅ローンシミュレーション
住宅ローン設定
物件価格
返済期間
頭金
ボーナス払(年1回)
※
※物件価格の80%以下でお借入れの場合
※50歳以下で一般団信をご選択の場合
※住宅ローン金利優遇割適用後の変動金利(全期間引き下げプラン)
※実際のお借入日の金利により変動します。
※審査の結果によっては保証付金利プランとなる場合があり、この場合は上記とは異なる金利となります。
※別途借入金額の2.20%(税込)の事務手数料が発生します。
ボーナス払 | 35年間返済 | 30年間返済 | 25年間返済 | 20年間返済 | 15年間返済 | 10年間返済 |
|---|---|---|---|---|---|---|
0万円 | -円/月 | -円/月 | -円/月 | -円/月 | -円/月 | -円/月 |
5万円 | -円/月 | -円/月 | -円/月 | -円/月 | -円/月 | -円/月 |
10万円 | -円/月 | -円/月 | -円/月 | -円/月 | -円/月 | -円/月 |
15万円 | -円/月 | -円/月 | -円/月 | -円/月 | -円/月 | -円/月 |
20万円 | -円/月 | -円/月 | -円/月 | -円/月 | -円/月 | -円/月 |
25万円 | -円/月 | -円/月 | -円/月 | -円/月 | -円/月 | -円/月 |
30万円 | -円/月 | -円/月 | -円/月 | -円/月 | -円/月 | -円/月 |
ボーナス払 | 35年間返済 | 30年間返済 | 25年間返済 | 20年間返済 | 15年間返済 | 10年間返済 |
|---|---|---|---|---|---|---|
0万円 | -円/月 | -円/月 | -円/月 | -円/月 | -円/月 | -円/月 |
5万円 | -円/月 | -円/月 | -円/月 | -円/月 | -円/月 | -円/月 |
10万円 | -円/月 | -円/月 | -円/月 | -円/月 | -円/月 | -円/月 |
15万円 | -円/月 | -円/月 | -円/月 | -円/月 | -円/月 | -円/月 |
20万円 | -円/月 | -円/月 | -円/月 | -円/月 | -円/月 | -円/月 |
25万円 | -円/月 | -円/月 | -円/月 | -円/月 | -円/月 | -円/月 |
30万円 | -円/月 | -円/月 | -円/月 | -円/月 | -円/月 | -円/月 |
- ・金利は、今後35年間変動しない仮定のもと元利均等返済方式で計算しております。
- ・実際の金利は、各金融機関のホームページをご参照ください。
- ・ローン契約の際には、手数料や印紙税などの諸費用が別途かかります。
- ・ボーナス支払総額が総支払額の50%を超えている場合、上記の表では「ローン不可」となります。
- ・シミュレーションを利用し、それが原因で利用者が受けたいかなる損害についても当社は一切責任を負いません。あらかじめご了承ください。




































