新築マンションイノベイシア恵比寿/予告広告の詳細情報
この広告は予告広告です。販売を開始するまでは、契約または予約(仮予約を含む)のお申込みには一切応じられませんのでご了承ください。
価格または販売方法が未定の場合は、新規分譲広告にて確定情報をお知らせします。
外観・室内・設備(9枚)
周辺環境・アクセス(6枚)
物件概要
| 物件名 | イノベイシア恵比寿/予告広告 | ||||
|---|---|---|---|---|---|
| 所在地 | 東京都目黒区三田二丁目144番3(地番) | ||||
| 交通 |
JR山手線「恵比寿」駅 徒歩9分 東京メトロ日比谷線「恵比寿」駅 徒歩10分 JR山手線「目黒」駅 徒歩11分 | ||||
| 構造および階数 | 鉄筋コンクリート造地上5階、地下1階建 | 敷地面積 | 1,909.67㎡(売買対象面積)(私道負担部部分186.79㎡、地上権設定部分(予定)約25㎡を含む) 1,722.88㎡(建築確認対象面積) | ||
| 完成時期 | 2026年8月下旬(予定) | 入居時期 | 2026年9月下旬(予定) | ||
| 土地権利 | 所有権 | ||||
| 駐車場 | - | ||||
| 分譲後の権利形態 | 土地:専有面積割合による所有権の共有、建物:区分所有権、建物共用部分:専有面積割合による所有権の共有 | ||||
| 管理形態 | 区分所有者全員による管理組合結成後、管理委託、管理人の勤務形態:巡回 | ||||
| 取引態様 | 株式会社オープンハウス・ディベロップメント(売主) | 用途地域 | 第一種住居地域 | ||
| 建築確認番号 | 第R06普及協会00151号(令和6年11月20日)、第R06普及協会01151号(令和7年2月18日)、第R06普及協会02151号(令和7年5月20日) | ||||
| 共有施設 | ■駐車場:23台(内、身障者対応駐車場1台)(月額使用料:25,000円~35,000円)※住戸により、駐車場位置の選択優先権があります。■駐輪場:69台(月額使用料:300円~400円) | ||||
| 設備 | - | ||||
| 備考 |
【TOP画像】 ※1.掲載の外観完成予想CGは計画段階の設計図書を基に描き起こしたもので、実際とは異なります。雨樋、エアコン室外機、給湯器、給排気口ベントキャップ、一部外構フェンス等省略、または再現されていない設備機器等がございます。植栽は特定の季節やご入居時期の状態を想定して描かれたものではございません。敷地周辺の電柱、標識、ガードレール等については省略しております。 | ||||
情報更新日:2025/10/30 次回更新予定日:2025/11/06
販売概要
| 販売価格 | 未定(予告広告) お問い合わせはこちら | ||||
|---|---|---|---|---|---|
| 販売スケジュール | 販売開始予定 2025年11月下旬 | ||||
| 販売戸数/総戸数 | 未定/46戸(優先・先行分譲募集対象住戸21戸含む) | ||||
| 予定最多価格帯 | 未定 | ||||
| 管理費 | - | ||||
| 修繕積立金 | - | 修繕積立基金 | - | ||
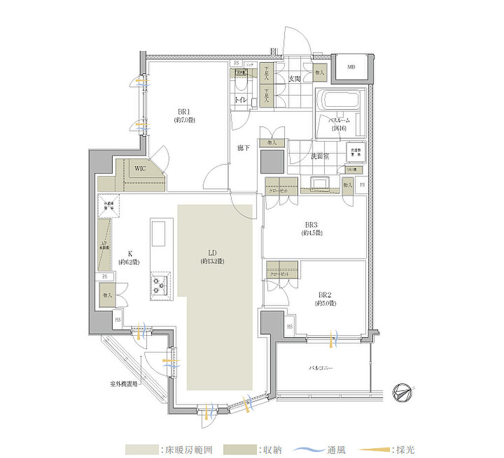
| 間取り | 2LDK~3LDK | ||||
| 専有面積 | 56.52㎡~82.85㎡ | バルコニー面積 | 5.08㎡~13.88㎡ | ||
| その他面積 | - | ||||
| その他施設費用、償却費 | ■町内会費(月額):200円■インターネット使用料(月額):1,540円 | ||||
| その他費用 | 【保証金、敷金】:- | ||||
| 登録受付 | - | 抽選日 | - | ||
| 取引条件有効期限 | - | ||||
会社情報
| 売主 | 株式会社オープンハウス・ディベロップメント | ||||
|---|---|---|---|---|---|
| お問い合わせ先 |
イノベイシア恵比寿 インフォメーションセンター 0037-619-68624(無料通話) 上記の電話番号にお問合せください。(携帯・PHS 可) ※光IP 電話、及びIP 電話からはご利用になれません 光IP電話、及びIP電話をご利用のお客様は以下へご連絡ください。 イノベイシア恵比寿 インフォメーションセンター TEL:0120-418-021 【物件番号】1600736-0000289 | ||||
| 管理会社 | 株式会社オープンハウス合人社コミュニティ | ||||
| 施工会社 | 丸彦渡辺建設株式会社 東京支店 | ||||
| 販売会社 | 株式会社オープンハウス・ディベロップメント(売主) | ||||
| 情報提供元 |
株式会社オープンハウス・ディベロップメント[国土交通大臣(3)第8112号] 東京都千代田区丸の内二丁目7番2号 【所属団体】 (公社)首都圏不動産公正取引協議会、(一社)不動産協会、(一社)全国住宅産業協会 | ||||
この物件の地図・周辺環境
このアイコンは物件のおおよその位置を表しており、実際の場所と異なる場合がございます。詳しくは不動産会社に直接ご確認ください。
取り扱い不動産会社
イノベイシア恵比寿 インフォメーションセンター
- 電話番号
- 0120-418-021
- 営業時間
- 10:00~19:00 (火・水曜定休)
- 物件番号
- 1600736-0000289
電話で問い合わせる(無料)お急ぎの方はこちらから!
物件お問い合わせ専用ダイヤル
受付:10:00~19:00 (火・水曜定休) 携帯・PHS可
※携帯・PHS可。光IP電話、及びIP電話からはご利用になれません。
恵比寿駅の口コミ
子育て・病院
5.0
さすが恵比寿、流行りのものや話題を取り入れたお店などが多く何をするにも便利。特に病院はどこもレベルが高いと思います。耳鼻科ならヒロ耳鼻科かえびす耳鼻科、恵比寿内科、皮膚科も良いですし駅近くの胃腸科の間宮先生も内視鏡がお上手です。循環器のハートクリニックも漢方を出してくれたり先生がとても親切。美容クリニックもたくさんあるし、どこもそこそこ混んでるけど、地方に住んでた身としてはこんなに近所でそれぞれ専門医にレベルの高い診察をしてもらえるのは有り難いです。
お買い物・飲食
2.0
恵比寿駅周辺の飲食店は、イメージよりも良心的な価格設定の店が多く、助かりました。所謂、定食屋は殆ど無いですが、一人で入れる店という意味では不便を感じたことはありませんでした。
住宅ローンシミュレーション
住宅ローン設定
物件価格
返済期間
頭金
ボーナス払(年1回)
※
※物件価格の80%以下でお借入れの場合
※50歳以下で一般団信をご選択の場合
※住宅ローン金利優遇割適用後の変動金利(全期間引き下げプラン)
※実際のお借入日の金利により変動します。
※審査の結果によっては保証付金利プランとなる場合があり、この場合は上記とは異なる金利となります。
※別途借入金額の2.20%(税込)の事務手数料が発生します。
ボーナス払 | 35年間返済 | 30年間返済 | 25年間返済 | 20年間返済 | 15年間返済 | 10年間返済 |
|---|---|---|---|---|---|---|
0万円 | -円/月 | -円/月 | -円/月 | -円/月 | -円/月 | -円/月 |
5万円 | -円/月 | -円/月 | -円/月 | -円/月 | -円/月 | -円/月 |
10万円 | -円/月 | -円/月 | -円/月 | -円/月 | -円/月 | -円/月 |
15万円 | -円/月 | -円/月 | -円/月 | -円/月 | -円/月 | -円/月 |
20万円 | -円/月 | -円/月 | -円/月 | -円/月 | -円/月 | -円/月 |
25万円 | -円/月 | -円/月 | -円/月 | -円/月 | -円/月 | -円/月 |
30万円 | -円/月 | -円/月 | -円/月 | -円/月 | -円/月 | -円/月 |
ボーナス払 | 35年間返済 | 30年間返済 | 25年間返済 | 20年間返済 | 15年間返済 | 10年間返済 |
|---|---|---|---|---|---|---|
0万円 | -円/月 | -円/月 | -円/月 | -円/月 | -円/月 | -円/月 |
5万円 | -円/月 | -円/月 | -円/月 | -円/月 | -円/月 | -円/月 |
10万円 | -円/月 | -円/月 | -円/月 | -円/月 | -円/月 | -円/月 |
15万円 | -円/月 | -円/月 | -円/月 | -円/月 | -円/月 | -円/月 |
20万円 | -円/月 | -円/月 | -円/月 | -円/月 | -円/月 | -円/月 |
25万円 | -円/月 | -円/月 | -円/月 | -円/月 | -円/月 | -円/月 |
30万円 | -円/月 | -円/月 | -円/月 | -円/月 | -円/月 | -円/月 |
- ・金利は、今後35年間変動しない仮定のもと元利均等返済方式で計算しております。
- ・実際の金利は、各金融機関のホームページをご参照ください。
- ・ローン契約の際には、手数料や印紙税などの諸費用が別途かかります。
- ・ボーナス支払総額が総支払額の50%を超えている場合、上記の表では「ローン不可」となります。
- ・シミュレーションを利用し、それが原因で利用者が受けたいかなる損害についても当社は一切責任を負いません。あらかじめご了承ください。






















