新築マンションイノバス市谷仲之町/予告広告の詳細情報
未定(予告広告)
月々のローン返済額を試算
この広告は予告広告です。販売を開始するまでは、契約または予約(仮予約を含む)のお申込みには一切応じられませんのでご了承ください。
価格または販売方法が未定の場合は、新規分譲広告にて確定情報をお知らせします。
飯田橋マンションギャラリーにてモデルルーム公開中!
周辺環境・アクセス(11枚)
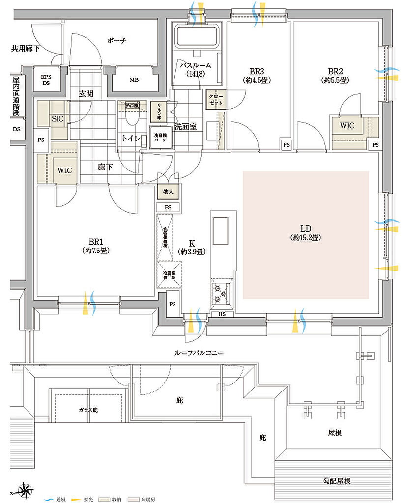
物件概要
| 物件名 | イノバス市谷仲之町/予告広告 | ||||
|---|---|---|---|---|---|
| 所在地 | 東京都新宿区市谷仲之町1番5(地番) | ||||
| 交通 |
都営新宿線「曙橋」駅 徒歩3分 東京メトロ丸ノ内線「四谷三丁目」駅 徒歩10分 都営大江戸線「牛込柳町」駅 徒歩11分 | ||||
| 構造および階数 | 鉄筋コンクリート造地下1階地上5階建 | 敷地面積 | 720.56㎡ | ||
| 完成時期 | 2027年8月下旬(予定) | 入居時期 | 2027年9月下旬(予定) | ||
| 土地権利 | 所有権 | ||||
| 駐車場 | - | ||||
| 分譲後の権利形態 | 土地:専有面積割合による所有権の共有、建物:区分所有権、建物共用部分:専有面積割合による所有権の共有 | ||||
| 管理形態 | 区分所有者全員による管理組合結成後、管理委託、管理人の勤務形態:巡回 | ||||
| 取引態様 | 株式会社オープンハウス・ディベロップメント(売主) | 用途地域 | 第二種中高層住居専用地域・商業地域 | ||
| 建築確認番号 | 第R07普及協会00052号(令和7年7月11日)、第R07普及協会01052号(令和7年10月14日) | ||||
| 共有施設 | ■駐輪場:26台(月額使用料:300円~400円)■バイク置場:1台(月額使用料:1,500円) | ||||
| 設備 | - | ||||
| 備考 |
【変更のお知らせ】 2025年7月24日から2025年10月21日まで当サイトに掲載した物件概要において、 敷地面積が変更になりましたのでお知らせいたします。 【変更前】敷地面積:721.13m2 【変更後】敷地面積:720.56m2 | ||||
情報更新日:2025/11/11 次回更新予定日:随時
販売概要
| 販売価格 | 未定(予告広告) お問い合わせはこちら | ||||
|---|---|---|---|---|---|
| 販売スケジュール | 販売予定時期:2025年11月中旬 | ||||
| 販売戸数/総戸数 | 未定/21戸 | ||||
| 予定最多価格帯 | - | ||||
| 管理費 | 未定(月額) | ||||
| 修繕積立金 | 未定(月額) | 修繕積立基金 | 未定(引渡時一括) | ||
| 間取り | 1LDK+SR(納戸)~3LDK | ||||
| 専有面積 | 57.88㎡~79.46㎡ | バルコニー面積 | 5.85㎡~7.03㎡ | ||
| その他面積 | ルーフバルコニー面積/14.57㎡~43.24㎡ | ||||
| その他施設費用、償却費 | ■インターネット使用料(月額):1,815円 ■町内会費(月額):200円 | ||||
| その他費用 | 【保証金、敷金】:-、【その他費用】:■ルーフバルコニー使用料:未定 ■管理準備金(引渡時一括):未定 | ||||
| 登録受付 | - | 抽選日 | - | ||
| 取引条件有効期限 | - | ||||
モデルルーム情報
| 営業時間 | - | 定休日 | 火・水曜日 | ||
|---|---|---|---|---|---|
| 開催期間 | 2025年08月23日~ | 登録受付 | - | ||
| 販売スケジュール | 販売予定時期:2025年11月中旬 | 抽選日 | - | ||
| モデルルーム所在地 | 東京都新宿区新小川町4-1 KDX飯田橋スクエア1F | ||||
| お問い合わせ先 |
イノバス市谷仲之町 インフォメーションセンター 0037-619-97833(通話無料) お問合せ受付時間:営業時間/10:00~19:00(火・水曜定休)、定休日/火・水曜日 | ||||
会社情報
| 売主 | 株式会社オープンハウス・ディベロップメント | ||||
|---|---|---|---|---|---|
| お問い合わせ先 |
イノバス市谷仲之町 インフォメーションセンター 0037-619-97833(無料通話) 上記の電話番号にお問合せください。(携帯・PHS 可) ※光IP 電話、及びIP 電話からはご利用になれません 光IP電話、及びIP電話をご利用のお客様は以下へご連絡ください。 イノバス市谷仲之町 インフォメーションセンター TEL:0120-418-021 【物件番号】1600736-0000287 | ||||
| 管理会社 | 株式会社オープンハウス合人社コミュニティ | ||||
| 施工会社 | 田中建設株式会社 東京支店 | ||||
| 販売会社 | 株式会社オープンハウス・ディベロップメント(売主) | ||||
| 情報提供元 |
株式会社オープンハウス・ディベロップメント[国土交通大臣(3)第8112号] 東京都千代田区丸の内二丁目7番2号 【所属団体】 (公社)首都圏不動産公正取引協議会、(一社)不動産協会、(一社)全国住宅産業協会 | ||||
この物件の地図・周辺環境
このアイコンは物件のおおよその位置を表しており、実際の場所と異なる場合がございます。詳しくは不動産会社に直接ご確認ください。
取り扱い不動産会社
イノバス市谷仲之町 インフォメーションセンター
- 電話番号
- 0120-418-021
- 営業時間
- 10:00~19:00(火・水曜定休)
- 定休日
- 火・水曜日
- 物件番号
- 1600736-0000287
電話で問い合わせる(無料)お急ぎの方はこちらから!
物件お問い合わせ専用ダイヤル
受付:10:00~19:00(火・水曜定休)(定休日:火・水曜日) 携帯・PHS可
※携帯・PHS可。光IP電話、及びIP電話からはご利用になれません。
曙橋駅の口コミ
子育て・病院
5.0
新宿は児童館が良い。 また、四ツ谷におもちゃ美術館があり、赤ちゃんのいる家にはたまらない。 病院は、古い町医者で、おばあちゃん先生のところにかかっていたが必要にして十分だった。近いところには女子医大をはじめ大学病院も多い。
治安・安全
3.0
とは言え、夜に人があつまる場所に近いため、気をつける部分はあるかもしれません。街灯も特に多い訳ではなさそうです。
住宅ローンシミュレーション
住宅ローン設定
物件価格
返済期間
頭金
ボーナス払(年1回)
※
※物件価格の80%以下でお借入れの場合
※50歳以下で一般団信をご選択の場合
※住宅ローン金利優遇割適用後の変動金利(全期間引き下げプラン)
※実際のお借入日の金利により変動します。
※審査の結果によっては保証付金利プランとなる場合があり、この場合は上記とは異なる金利となります。
※別途借入金額の2.20%(税込)の事務手数料が発生します。
ボーナス払 | 35年間返済 | 30年間返済 | 25年間返済 | 20年間返済 | 15年間返済 | 10年間返済 |
|---|---|---|---|---|---|---|
0万円 | -円/月 | -円/月 | -円/月 | -円/月 | -円/月 | -円/月 |
5万円 | -円/月 | -円/月 | -円/月 | -円/月 | -円/月 | -円/月 |
10万円 | -円/月 | -円/月 | -円/月 | -円/月 | -円/月 | -円/月 |
15万円 | -円/月 | -円/月 | -円/月 | -円/月 | -円/月 | -円/月 |
20万円 | -円/月 | -円/月 | -円/月 | -円/月 | -円/月 | -円/月 |
25万円 | -円/月 | -円/月 | -円/月 | -円/月 | -円/月 | -円/月 |
30万円 | -円/月 | -円/月 | -円/月 | -円/月 | -円/月 | -円/月 |
ボーナス払 | 35年間返済 | 30年間返済 | 25年間返済 | 20年間返済 | 15年間返済 | 10年間返済 |
|---|---|---|---|---|---|---|
0万円 | -円/月 | -円/月 | -円/月 | -円/月 | -円/月 | -円/月 |
5万円 | -円/月 | -円/月 | -円/月 | -円/月 | -円/月 | -円/月 |
10万円 | -円/月 | -円/月 | -円/月 | -円/月 | -円/月 | -円/月 |
15万円 | -円/月 | -円/月 | -円/月 | -円/月 | -円/月 | -円/月 |
20万円 | -円/月 | -円/月 | -円/月 | -円/月 | -円/月 | -円/月 |
25万円 | -円/月 | -円/月 | -円/月 | -円/月 | -円/月 | -円/月 |
30万円 | -円/月 | -円/月 | -円/月 | -円/月 | -円/月 | -円/月 |
- ・金利は、今後35年間変動しない仮定のもと元利均等返済方式で計算しております。
- ・実際の金利は、各金融機関のホームページをご参照ください。
- ・ローン契約の際には、手数料や印紙税などの諸費用が別途かかります。
- ・ボーナス支払総額が総支払額の50%を超えている場合、上記の表では「ローン不可」となります。
- ・シミュレーションを利用し、それが原因で利用者が受けたいかなる損害についても当社は一切責任を負いません。あらかじめご了承ください。















