NEWマンションサンクレイドル西川口の詳細情報
4280万円
月々のローン返済額を試算【City Base】当日案内OK◇駅4分◇南向き2LDK◇最上階角部屋◇
その他(19枚)
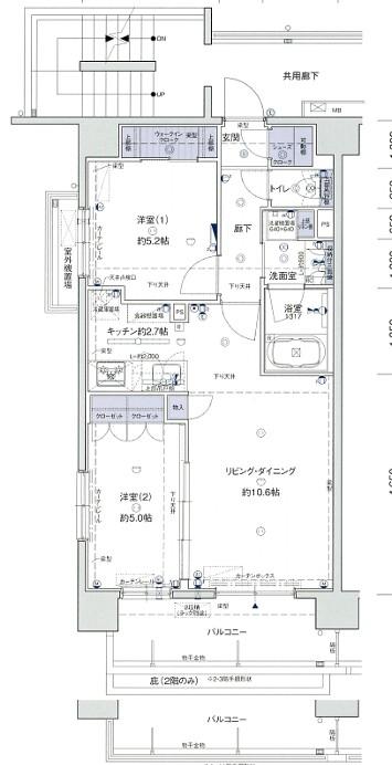
物件概要
| 物件名 | サンクレイドル西川口 | ||||
|---|---|---|---|---|---|
| 所在地 | 埼玉県川口市西川口1-20-11 | ||||
| 交通 |
JR京浜東北線「西川口」歩4分 JR京浜東北線「蕨」歩26分 JR京浜東北線「川口」歩29分 | ||||
| 建物構造 | SRC11階建 | 最多価格帯 | - | ||
| 販売戸数/総戸数 | 1戸/40戸 | 主要採光面 | 南西 | ||
| 修繕積立金 | 5400円/月 | 修繕積立基金 | - | ||
| その他面積 | バルコニー面積:7.68㎡ | 土地権利 | 所有権 | ||
| 入居時期 | 相談 | 管理 | 1万2850円/月(委託(通勤)) | ||
| 駐車場 | 敷地内(2万1000円~2万1000円/月) | 用途地域 | - | ||
| リフォーム | - | 取引態様 | 仲介 | ||
| 施工会社名 | - | ||||
| その他費用 | - | ||||
| 販売スケジュール | - | ||||
| イベント情報 |
現地案内会(事前に必ず予約してください) 日程/公開中 時間/9:00~20:00 1日で複数の物件のご見学も可能です。 ご予約時に『他のマンションも見学したい』 『このエリアで探しておいてほしい』等の リクエストも受けております。 「不動産ポータルサイトに未公開物件」 「新着物件」などもご紹介可能です。 □■ご見学予約■□ ・物件エントランスにてお待ち合わせ ・希望場所にてお待合わせ ・事前にオンラインで物件説明を受けたい □■住宅ローンのご相談■□ 『住宅ローン金利の低い銀行を教えてほしい』 『他行で落ちてしまったので通る銀行を教えてほしい』 『今の収入で最大限借り入れできる銀行を教えてほしい』 『自宅を所有しているが、追加で購入したい』 などお気軽にご相談ください。 □■お住み替えキャンペーンも同時開催中■□ ~ご自宅を売却し購入をお考えのお客様~ 弊社直接買取や仲介でのご売却などお客様に合ったご提案をさせていただきます。 ・物件買取サービスのご提案 お住替えによるお住まいの売却時や至急お持ちの不動産を現金化されたい場合に、 弊社が買主となり直接お住まいを買い取り致します。 ・購入先行型ローンのご提案 お住み替え希望の物件を先に購入し、後からご自宅を売却できます。 新居にお引越しが完了して元のご自宅は空室ですので、内見立ち合いが一切不要です。 ※弊社にて鍵をお預かりし、全ての内見対応いたします。 □■相続・資産売却も可■□ 不動産取り扱いだけでなく、税理士、司法書士、測量士等もご紹介可能です。 | ||||
| その他制限事項 | - | ||||
| 備考 | 担当者:木村 美波 | ||||
| 取引条件有効期限 | - | ||||
情報公開日:2025/11/23 次回更新予定日:情報提供より8日以内
この物件の地図・周辺環境
このアイコンは物件のおおよその位置を表しており、実際の場所と異なる場合がございます。詳しくは不動産会社に直接ご確認ください。
※地図上に表示される物件の位置は付近住所に所在することを表すものであり、実際の物件所在地とは異なる場合がございます。
※地図の更新タイミングの関係で、物件情報が実際のものとは異なる場合や最新情報に更新されていない場合がございます。
※以下の南西諸島及び離島においては、表示される物件の位置が実際のものとは数百メートル程度ずれる場合がございます。
東京都:硫黄島・青ヶ島、沖縄県: 北大東島・南大東島・多良間島・水納島・与那国島・宮古諸島・石垣島・竹富島
取り扱い不動産会社
- 電話番号
- 050-6875-7391
- 営業時間
- 営業時間:10:00~20:00 / 定休日:水曜日
- 免許番号
- 東京都知事(1)第111282号
- 会社概要
- <仲介>
東京都知事(1)第111282号
(公社)全日本不動産協会東京都本部会員 (公社)首都圏不動産公正取引協議会加盟
City Base(株)
〒160-0023 東京都新宿区西新宿8-11-10
西川口駅の口コミ
治安・安全
5.0
川口市で治安を心配してたのですが、変質者を見た事がないですし、迷惑な人を見た事がないです。大きな声で喋っている外国人は見たことあります。うるさいバイク等も
子育て・病院
4.0
病院は多くて便利。戸田市は財政が豊からしいので公園も多く子供を遊ばせる施設は充実している。教育にも力を入れているらしくファミリー層には住みやすい。
埼玉県近隣の都道府県から中古マンションを探す
住宅ローンシミュレーション
住宅ローン設定
物件価格
返済期間
頭金
ボーナス払(年1回)
※
※物件価格の80%以下でお借入れの場合
※50歳以下で一般団信をご選択の場合
※住宅ローン金利優遇割適用後の変動金利(全期間引き下げプラン)
※実際のお借入日の金利により変動します。
※審査の結果によっては保証付金利プランとなる場合があり、この場合は上記とは異なる金利となります。
※別途借入金額の2.20%(税込)の事務手数料が発生します。
ボーナス払 | 35年間返済 | 30年間返済 | 25年間返済 | 20年間返済 | 15年間返済 | 10年間返済 |
|---|---|---|---|---|---|---|
0万円 | -円/月 | -円/月 | -円/月 | -円/月 | -円/月 | -円/月 |
5万円 | -円/月 | -円/月 | -円/月 | -円/月 | -円/月 | -円/月 |
10万円 | -円/月 | -円/月 | -円/月 | -円/月 | -円/月 | -円/月 |
15万円 | -円/月 | -円/月 | -円/月 | -円/月 | -円/月 | -円/月 |
20万円 | -円/月 | -円/月 | -円/月 | -円/月 | -円/月 | -円/月 |
25万円 | -円/月 | -円/月 | -円/月 | -円/月 | -円/月 | -円/月 |
30万円 | -円/月 | -円/月 | -円/月 | -円/月 | -円/月 | -円/月 |
ボーナス払 | 35年間返済 | 30年間返済 | 25年間返済 | 20年間返済 | 15年間返済 | 10年間返済 |
|---|---|---|---|---|---|---|
0万円 | -円/月 | -円/月 | -円/月 | -円/月 | -円/月 | -円/月 |
5万円 | -円/月 | -円/月 | -円/月 | -円/月 | -円/月 | -円/月 |
10万円 | -円/月 | -円/月 | -円/月 | -円/月 | -円/月 | -円/月 |
15万円 | -円/月 | -円/月 | -円/月 | -円/月 | -円/月 | -円/月 |
20万円 | -円/月 | -円/月 | -円/月 | -円/月 | -円/月 | -円/月 |
25万円 | -円/月 | -円/月 | -円/月 | -円/月 | -円/月 | -円/月 |
30万円 | -円/月 | -円/月 | -円/月 | -円/月 | -円/月 | -円/月 |
- ・金利は、今後35年間変動しない仮定のもと元利均等返済方式で計算しております。
- ・実際の金利は、各金融機関のホームページをご参照ください。
- ・ローン契約の際には、手数料や印紙税などの諸費用が別途かかります。
- ・ボーナス支払総額が総支払額の50%を超えている場合、上記の表では「ローン不可」となります。
- ・シミュレーションを利用し、それが原因で利用者が受けたいかなる損害についても当社は一切責任を負いません。あらかじめご了承ください。




















